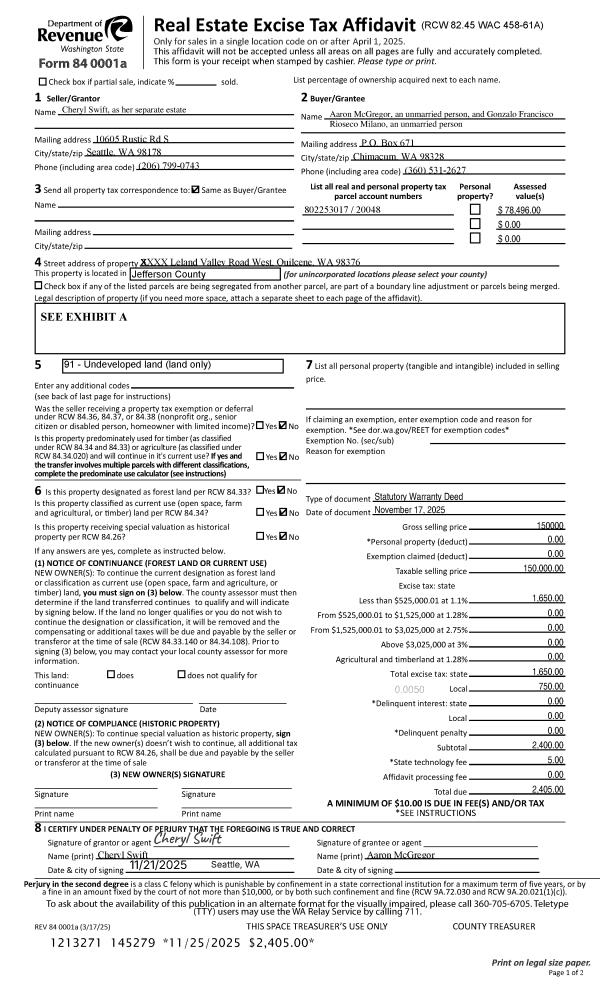
Property
Account |
| Property ID: | 37466 | Abbreviated Legal Description: | OLYMPIC SHORES DIV 1 LOT 4(AMENDED) SUBJ/EASE CANNOT BE SOLD W/O BRHVN 3,LT 14 |
| Parcel # / Geo ID: | 983300004 | Agent Code: | |
| Type: | Real | | |
| Tax Area: | 0213 - 1-49F1E1H2L1 | Land Use Code | 11 |
| Open Space: | N | DFL | N |
| Historic Property: | N | Remodel Property: | N |
| Multi-Family Redevelopment: | N | | |
| Township: | 27N | Section: | 9 |
| Range: | 1E |
Location |
| Address: | 252 BLUEJAY LN PORT LUDLOW, WA 98365 | Mapsco: | 078/073 |
| Neighborhood: | S9 & S16 T27N R1E & OLYMPIC SHORES & ADMIRAL'S ROW | Map ID: | |
| Neighborhood CD: | 3425 |
Owner |
| Name: | GEORGE MC NAUGHT | Owner ID: | 22269 |
| Mailing Address: | DEANNA MC NAUGHT 252 BLUEJAY LN PORT LUDLOW, WA 98365-9570 | % Ownership: | 100.0000000000% |
| | | Exemptions: | SNR/DSBL |
Pay Tax Due
There is currently No Amount Due on this property.
Taxes and Assessment Details
Property Tax Information as of
10/24/2025
Click on "Statement Details" to expand or collapse a tax statement.
* Please enter a valid date ** Please enter a valid date *
Statement Details |
| | TOTAL: | $0.00 | $0.00 | $0.00 | $0.00 | $0.00 | $0.00 |
|
| | $0.00 | $0.00 | $0.00 | $0.00 | $0.00 | $0.00 |
Values
| (+) Improvement Homesite Value: | + | $318,907 | |
| (+) Improvement Non-Homesite Value: | + | $0 | |
| (+) Land Homesite Value: | + | $110,250 | |
| (+) Land Non-Homesite Value: | + | $0 | |
| (+) Curr Use (HS): | + | $0 | $0 |
| (+) Curr Use (NHS): | + | $0 | $0 |
| | | -------------------------- | |
| (=) Market Value: | = | $429,157 | |
| (–) Productivity Loss: | – | $0 | |
| | | -------------------------- | |
| (=) Subtotal: | = | $429,157 | |
| (+) Senior Appraised Value: | + | $260,261 | |
| (+) Non-Senior Appraised Value: | + | $0 | |
| | | -------------------------- | |
| (=) Total Appraised Value: | = | $260,261 | |
| (–) Senior Exemption Loss: | – | $156,157 | |
| (–) Exemption Loss: | – | $0 | |
| | | -------------------------- | |
| (=) Taxable Value: | = | $104,104 | |
Taxing Jurisdiction
| Owner: | GEORGE MC NAUGHT | | |
| % Ownership: | 100.0000000000% | | |
| Total Value: | N/A | | |
| Tax Area: | 0213 - 1-49F1E1H2L1 |
| CE | COUNTY CURRENT EXPENSE | N/A | N/A | N/A | N/A | | |
| CNTYDD | DEVELOPMENTAL DISABILITIES | N/A | N/A | N/A | N/A | | |
| CNTYVET | VETERANS RELIEF | N/A | N/A | N/A | N/A | | |
| MENTAL | MENTAL HEALTH | N/A | N/A | N/A | N/A | | |
| ROADS | COUNTY ROADS | N/A | N/A | N/A | N/A | | |
| ROADSCU | COUNTY ROADS TO CUR EXP | N/A | N/A | N/A | N/A | | |
| HOSP2CASH | HOSP DIST #2 GENERAL | N/A | N/A | N/A | N/A | | |
| SCH49CP | SCHOOL DIST #49 CAP PROJ | N/A | N/A | N/A | N/A | | |
| SCH49MO | SCHOOL DIST #49 EP & O | N/A | N/A | N/A | N/A | | |
| CONSERVE | CONSERVATION FUTURES | N/A | N/A | N/A | N/A | | |
| EMS1 | FIRE DIST #1 EMS | N/A | N/A | N/A | N/A | | |
| FD1 | FIRE DIST #1 GENERAL | N/A | N/A | N/A | N/A | | |
| LIB1 | LIBRARY DIST #1 GENERAL | N/A | N/A | N/A | N/A | | |
| PORTPT | PORT OF PT GENERAL | N/A | N/A | N/A | N/A | | |
| PORTPTIDD | PORT OF PT IDD 2019 | N/A | N/A | N/A | N/A | | |
| PUD1 | PUD #1 GENERAL | N/A | N/A | N/A | N/A | | |
| STATE | STATE SCHOOL PART 1 | N/A | N/A | N/A | N/A | | |
| STATE2 | STATE SCHOOL PART 2 | N/A | N/A | N/A | N/A | | |
| | Total Tax Rate: | N/A | | | | | |
| | | | | Taxes w/Current Exemptions: | N/A | | |
| | | | | Taxes w/o Exemptions: | N/A | | |
Improvement / Building
| Improvement #1: | Residential Bldg | State Code: | 11 | 1480.0 sqft | Value: | $318,907 |
| Bathrooms (#): | 2 (FULL) | Bedrooms (#): | 2 | | Exterior Wall: | SI/ST | Floor Construction: | FRAME | | Foundation: | CONPR | Heating/Cooling: | HPUMP | | Inside Verify: | YES | Roof Cover: | COMP |
|
| | Type | Description | Class CD | Sub Class CD | Year Built | Area |
| | MA | Main Area | 3 | 1S | 1993 | 1480.0 |
| | PATIO | House Patio | 3 | * | 1993 | 1188.0 |
| | HWPOR | House Wood Porch | 3 | * | 1993 | 90.0 |
| | HDECK | House Deck | 3 | * | 1993 | 850.0 |
| | GBSMT | Basement Garage | 3 | * | 1993 | 600.0 |
| | HLOFT | House Loft | 3 | * | 1993 | 270.0 |
| | BSMTU | House basement unfinished | 4 | * | 1993 | 875.0 |
Sketch
Property Image
Land
| 1 | 3425-1345S | Avg-Good Wtr View Sites 1+/- Acre | 0.0000 | 0.00 | 0.00 | 0.00 | 1.00 | $110,250 | $0 |
Roll Value History
| 2025 | N/A | N/A | N/A | N/A | N/A |
| 2024 | $305,041 | $105,000 | $0 | $410,041 | $104,104 |
| 2023 | $305,041 | $100,000 | $0 | $405,041 | $104,104 |
| 2022 | $291,176 | $95,000 | $0 | $386,176 | $104,104 |
| 2021 | $223,820 | $84,375 | $0 | $308,195 | $190,261 |
Deed and Sales History
| 1 | 09/23/2008 | QCD | Quit Claim Deed | MCNAUGHT, GEORGE H | MCNAUGHT, DEANNA/GEORGE | 0 | 0 | $0.00 | 111936 | 0 |
Payout Agreement
| No payout information available.. |