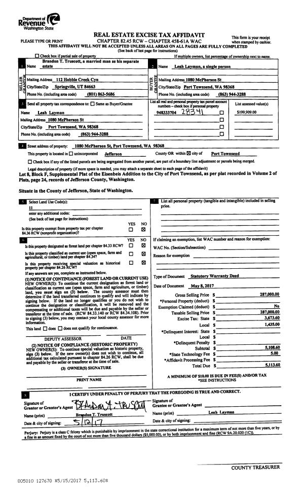
Property
Account |
| Property ID: | 37470 | Abbreviated Legal Description: | PARADISE BAY ESTATES BLK 1 LOT 1 |
| Parcel # / Geo ID: | 983400101 | Agent Code: | |
| Type: | Real | | |
| Tax Area: | 0212 - 1-49F1E1W1H2L1 | Land Use Code | 11 |
| Open Space: | N | DFL | N |
| Historic Property: | N | Remodel Property: | N |
| Multi-Family Redevelopment: | N | | |
| Township: | 28N | Section: | 22 |
| Range: | 1E |
Location |
| Address: | 35 E FIR ST PORT LUDLOW, WA 98365 | Mapsco: | 084/001 |
| Neighborhood: | PARADISE BAY ESTATES; PARADISE VIEW ESTATES | Map ID: | |
| Neighborhood CD: | 3365 |
Owner |
| Name: | MARYBETH IVERSON | Owner ID: | 106174 |
| Mailing Address: | 35 E FIR ST PORT LUDLOW, WA 98365-9741 | % Ownership: | 100.0000000000% |
| | | Exemptions: | SNR/DSBL |
Pay Tax Due
There is currently No Amount Due on this property.
Taxes and Assessment Details
Property Tax Information as of
10/24/2025
Click on "Statement Details" to expand or collapse a tax statement.
* Please enter a valid date ** Please enter a valid date *
Statement Details |
| | TOTAL: | $0.00 | $0.00 | $0.00 | $0.00 | $0.00 | $0.00 |
|
| | $0.00 | $0.00 | $0.00 | $0.00 | $0.00 | $0.00 |
Values
| (+) Improvement Homesite Value: | + | $179,348 | |
| (+) Improvement Non-Homesite Value: | + | $0 | |
| (+) Land Homesite Value: | + | $83,475 | |
| (+) Land Non-Homesite Value: | + | $0 | |
| (+) Curr Use (HS): | + | $0 | $0 |
| (+) Curr Use (NHS): | + | $0 | $0 |
| | | -------------------------- | |
| (=) Market Value: | = | $262,823 | |
| (–) Productivity Loss: | – | $0 | |
| | | -------------------------- | |
| (=) Subtotal: | = | $262,823 | |
| (+) Senior Appraised Value: | + | $245,696 | |
| (+) Non-Senior Appraised Value: | + | $0 | |
| | | -------------------------- | |
| (=) Total Appraised Value: | = | $245,696 | |
| (–) Senior Exemption Loss: | – | $70,000 | |
| (–) Exemption Loss: | – | $0 | |
| | | -------------------------- | |
| (=) Taxable Value: | = | $175,696 | |
Taxing Jurisdiction
| Owner: | MARYBETH IVERSON | | |
| % Ownership: | 100.0000000000% | | |
| Total Value: | N/A | | |
| Tax Area: | 0212 - 1-49F1E1W1H2L1 |
| CE | COUNTY CURRENT EXPENSE | N/A | N/A | N/A | N/A | | |
| CNTYDD | DEVELOPMENTAL DISABILITIES | N/A | N/A | N/A | N/A | | |
| CNTYVET | VETERANS RELIEF | N/A | N/A | N/A | N/A | | |
| MENTAL | MENTAL HEALTH | N/A | N/A | N/A | N/A | | |
| ROADS | COUNTY ROADS | N/A | N/A | N/A | N/A | | |
| ROADSCU | COUNTY ROADS TO CUR EXP | N/A | N/A | N/A | N/A | | |
| HOSP2CASH | HOSP DIST #2 GENERAL | N/A | N/A | N/A | N/A | | |
| SCH49CP | SCHOOL DIST #49 CAP PROJ | N/A | N/A | N/A | N/A | | |
| SCH49MO | SCHOOL DIST #49 EP & O | N/A | N/A | N/A | N/A | | |
| CONSERVE | CONSERVATION FUTURES | N/A | N/A | N/A | N/A | | |
| EMS1 | FIRE DIST #1 EMS | N/A | N/A | N/A | N/A | | |
| FD1 | FIRE DIST #1 GENERAL | N/A | N/A | N/A | N/A | | |
| LIB1 | LIBRARY DIST #1 GENERAL | N/A | N/A | N/A | N/A | | |
| PORTPT | PORT OF PT GENERAL | N/A | N/A | N/A | N/A | | |
| PORTPTIDD | PORT OF PT IDD 2019 | N/A | N/A | N/A | N/A | | |
| PUD1 | PUD #1 GENERAL | N/A | N/A | N/A | N/A | | |
| STATE | STATE SCHOOL PART 1 | N/A | N/A | N/A | N/A | | |
| STATE2 | STATE SCHOOL PART 2 | N/A | N/A | N/A | N/A | | |
| | Total Tax Rate: | N/A | | | | | |
| | | | | Taxes w/Current Exemptions: | N/A | | |
| | | | | Taxes w/o Exemptions: | N/A | | |
Improvement / Building
| Improvement #1: | Residential Bldg | State Code: | 11 | 528.0 sqft | Value: | $179,348 |
| Bathrooms (#): | 1 (FULL) | Bedrooms (#): | 1 | | Exterior Wall: | PL/T1 | Fireplace: | WD ST-GOOD | | Floor Construction: | FRAME | Foundation: | PO&BL | | Heating/Cooling: | OTHER | Roof Cover: | METAL |
|
| | Type | Description | Class CD | Sub Class CD | Year Built | Area |
| | MA | Main Area | 4+ | 15SF | 1963 | 528.0 |
| | HDECK | House Deck | 4 | 15SF | 1963 | 160.0 |
| | HENCL | House Enclosure | 4 | 15SF | 1963 | 200.0 |
| | SHED | Shed (Table Not Dep) | 4 | 15SF | 1963 | 168.0 |
| | HLOFT | House Loft | 4 | 15SF | 1963 | 120.0 |
| | HWPOR | House Wood Porch | 4 | 15SF | 1963 | 80.0 |
Sketch
| No sketches available for this property. |
Property Image
Land
| 1 | 3365-1265S | Fair/Filtered View Sites Typ 2 lot Sites | 0.0000 | 0.00 | 0.00 | 0.00 | 1.00 | $83,475 | $0 |
Roll Value History
| 2025 | N/A | N/A | N/A | N/A | N/A |
| 2024 | $179,348 | $83,475 | $0 | $262,823 | $175,696 |
| 2023 | $171,196 | $74,500 | $0 | $245,696 | $245,696 |
| 2022 | $171,196 | $69,500 | $0 | $240,696 | $240,696 |
| 2021 | $105,814 | $43,200 | $0 | $149,014 | $149,014 |
Deed and Sales History
| 1 | 12/15/2021 | SWD | Statutory Warranty Deed | JERRAD B & ALISHA C DOUGLAS | MARYBETH IVERSON | | | $295,000.00 | 138256 | |
| 2 | 12/01/2017 | SWD | Statutory Warranty Deed | PATTI J HENDRIX | JERRAD B & ALISHA C DOUGLAS | | | $155,500.00 | 129224 | |
| 3 | 08/02/2016 | SWD | Statutory Warranty Deed | MICHAEL E NEWELL | PATTI J HENDRIX | | | $120,559.00 | 125990 | |
| 4 | 11/17/2009 | SWD | Statutory Warranty Deed | ACRES, MICHAEL N/SUSAN M | NEWELL, MICHAEL E | 0 | 0 | $134,900.00 | 113681 | 0 |
| 5 | 05/29/2007 | SWD | Statutory Warranty Deed | BRAYFORD, PAULINE S/PETER | ACRES, MICHAEL N/SUSAN M | | | $125,000.00 | 109328 | 0 |
| 6 | 02/14/2006 | SWD | Statutory Warranty Deed | NIELSEN TRUSTEE, AXEL J | BRAYFORD, PETER/PAULINE S | 0 | 0 | $45,000.00 | 106040 | 0 |
| 7 | 04/24/1997 | QCD | Quit Claim Deed | NIELSEN, AXEL J/DORIS A | NEILSEN FAMILY REVOC TRUST | 0 | 0 | $0.00 | 81844 | 0 |
Payout Agreement
| No payout information available.. |