Property
Account |
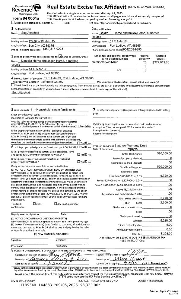
| Property ID: | 37536 | Abbreviated Legal Description: | PARADISE BAY ESTATES BLK 5 LOT 25 |
| Parcel # / Geo ID: | 983400523 | Agent Code: | |
| Type: | Real | | |
| Tax Area: | 0212 - 1-49F1E1W1H2L1 | Land Use Code | 11 |
| Open Space: | N | DFL | N |
| Historic Property: | N | Remodel Property: | N |
| Multi-Family Redevelopment: | N | | |
| Township: | 28N | Section: | 23 |
| Range: | 1E |
Location |
| Address: | 70 E SPRUCE ST PORT LUDLOW, WA 98365 | Mapsco: | 085/022 |
| Neighborhood: | PARADISE BAY ESTATES; PARADISE VIEW ESTATES | Map ID: | |
| Neighborhood CD: | 3365 |
Owner |
| Name: | JOHN E PENDLETON | Owner ID: | 24562 |
| Mailing Address: | THERESA E WRIGHT 70 E SPRUCE ST PORT LUDLOW, WA 98365-9744 | % Ownership: | 100.0000000000% |
| | | Exemptions: | |
Pay Tax Due
There is currently No Amount Due on this property.
Taxes and Assessment Details
Property Tax Information as of
10/24/2025
Click on "Statement Details" to expand or collapse a tax statement.
* Please enter a valid date ** Please enter a valid date *
Statement Details |
| | TOTAL: | $0.00 | $0.00 | $0.00 | $0.00 | $0.00 | $0.00 |
|
| | $0.00 | $0.00 | $0.00 | $0.00 | $0.00 | $0.00 |
Values
| (+) Improvement Homesite Value: | + | $139,773 | |
| (+) Improvement Non-Homesite Value: | + | $89,671 | |
| (+) Land Homesite Value: | + | $71,925 | |
| (+) Land Non-Homesite Value: | + | $0 | |
| (+) Curr Use (HS): | + | $0 | $0 |
| (+) Curr Use (NHS): | + | $0 | $0 |
| | | -------------------------- | |
| (=) Market Value: | = | $301,369 | |
| (–) Productivity Loss: | – | $0 | |
| | | -------------------------- | |
| (=) Subtotal: | = | $301,369 | |
| (+) Senior Appraised Value: | + | $0 | |
| (+) Non-Senior Appraised Value: | + | $301,369 | |
| | | -------------------------- | |
| (=) Total Appraised Value: | = | $301,369 | |
| (–) Senior Exemption Loss: | – | $0 | |
| (–) Exemption Loss: | – | $0 | |
| | | -------------------------- | |
| (=) Taxable Value: | = | $301,369 | |
Taxing Jurisdiction
| Owner: | JOHN E PENDLETON | | |
| % Ownership: | 100.0000000000% | | |
| Total Value: | N/A | | |
| Tax Area: | 0212 - 1-49F1E1W1H2L1 |
| CE | COUNTY CURRENT EXPENSE | N/A | N/A | N/A | N/A | | |
| CNTYDD | DEVELOPMENTAL DISABILITIES | N/A | N/A | N/A | N/A | | |
| CNTYVET | VETERANS RELIEF | N/A | N/A | N/A | N/A | | |
| MENTAL | MENTAL HEALTH | N/A | N/A | N/A | N/A | | |
| ROADS | COUNTY ROADS | N/A | N/A | N/A | N/A | | |
| ROADSCU | COUNTY ROADS TO CUR EXP | N/A | N/A | N/A | N/A | | |
| HOSP2CASH | HOSP DIST #2 GENERAL | N/A | N/A | N/A | N/A | | |
| SCH49CP | SCHOOL DIST #49 CAP PROJ | N/A | N/A | N/A | N/A | | |
| SCH49MO | SCHOOL DIST #49 EP & O | N/A | N/A | N/A | N/A | | |
| CONSERVE | CONSERVATION FUTURES | N/A | N/A | N/A | N/A | | |
| EMS1 | FIRE DIST #1 EMS | N/A | N/A | N/A | N/A | | |
| FD1 | FIRE DIST #1 GENERAL | N/A | N/A | N/A | N/A | | |
| LIB1 | LIBRARY DIST #1 GENERAL | N/A | N/A | N/A | N/A | | |
| PORTPT | PORT OF PT GENERAL | N/A | N/A | N/A | N/A | | |
| PORTPTIDD | PORT OF PT IDD 2019 | N/A | N/A | N/A | N/A | | |
| PUD1 | PUD #1 GENERAL | N/A | N/A | N/A | N/A | | |
| STATE | STATE SCHOOL PART 1 | N/A | N/A | N/A | N/A | | |
| STATE2 | STATE SCHOOL PART 2 | N/A | N/A | N/A | N/A | | |
| | Total Tax Rate: | N/A | | | | | |
| | | | | Taxes w/Current Exemptions: | N/A | | |
| | | | | Taxes w/o Exemptions: | N/A | | |
Improvement / Building
| Improvement #1: | Residential Bldg | State Code: | 11 | 742.0 sqft | Value: | $139,773 |
| Bathrooms (#): | 1 (FULL) | Bedrooms (#): | 1 | | Exterior Wall: | SI/ST | Fireplace: | WD ST-GOOD | | Floor Construction: | FRAME | Foundation: | CONPR | | Heating/Cooling: | ELBB | Roof Cover: | COMP |
|
| | Type | Description | Class CD | Sub Class CD | Year Built | Area |
| | MA | Main Area | 3+ | 1S | 1956 | 742.0 |
| | HWPOR | House Wood Porch | 3 | 1S | 1956 | 89.0 |
| | HDECK | House Deck | 3 | 1S | 1956 | 370.0 |
| Improvement #2: | Residential Bldg | State Code: | 11 | 0.0 sqft | Value: | $89,671 |
| | Type | Description | Class CD | Sub Class CD | Year Built | Area |
| | GDET | Detached Garage | 3 | 1S | 1956 | 946.0 |
| | ADDN | Addition (Table Not Dep) | 4 | 1S | 1956 | 464.0 |
Sketch
| No sketches available for this property. |
Property Image
Land
| 1 | 3365-1265S | Fair/Filtered View Sites Typ 2 lot Sites | 0.0000 | 0.00 | 0.00 | 0.00 | 1.00 | $71,925 | $0 |
Roll Value History
| 2025 | N/A | N/A | N/A | N/A | N/A |
| 2024 | $229,444 | $71,925 | $0 | $301,369 | $301,369 |
| 2023 | $219,014 | $63,500 | $0 | $282,514 | $282,514 |
| 2022 | $219,014 | $58,500 | $0 | $277,514 | $277,514 |
| 2021 | $180,798 | $43,200 | $0 | $223,998 | $127,948 |
Deed and Sales History
| 1 | 06/28/2007 | SWD | Statutory Warranty Deed | BROWN, CHRISTI LYNN | PENDLETON, JOHN/WRIGHT,THERESA | | | $219,000.00 | 109556 | 0 |
| 2 | 07/18/2005 | SWD | Statutory Warranty Deed | ROGERS, MICHAEL P/CATHY C | BROWN, CHRISTI LYNN | | | $173,000.00 | 104275 | 0 |
| 3 | 08/06/2001 | QCD | Quit Claim Deed | ROGERS, MICHAEL P | ROGERS, CATHY C/MICHAEL P | 0 | 0 | $0.00 | 92808 | 0 |
| 4 | 07/11/2001 | SWD | Statutory Warranty Deed | RIGGS, DAVID S/VANESSA A | ROGERS, MICHAEL P | 0 | 0 | $99,500.00 | 92601 | 0 |
| 5 | 07/10/2001 | QCD | Quit Claim Deed | ROGERS, CATHERINE C | ROGERS, MICHAEL P | 0 | 0 | $0.00 | 92602 | 0 |
| 6 | 09/03/1998 | QCD | Quit Claim Deed | RIGGS, VANESSA A | RIGGS, DAVID S/VANESSA A | 0 | 0 | $0.00 | 85274 | 0 |
| 7 | 03/31/1994 | SWD | Statutory Warranty Deed | ROGERS, JULIA F | NATIONS, VANESSA A | 0 | 0 | $34,000.00 | 73756 | 0 |
Payout Agreement
| No payout information available.. |