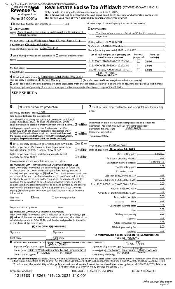
Property
Account |
| Property ID: | 37577 | Abbreviated Legal Description: | PARADISE BAY ESTATES BLK 8 LOTS 7 & 8 BND REST COVT AF#620195 SUBJ/EASE |
| Parcel # / Geo ID: | 983400808 | Agent Code: | |
| Type: | Real | | |
| Tax Area: | 0212 - 1-49F1E1W1H2L1 | Land Use Code | 11 |
| Open Space: | N | DFL | N |
| Historic Property: | N | Remodel Property: | N |
| Multi-Family Redevelopment: | N | | |
| Township: | 28N | Section: | 22 |
| Range: | 1E |
Location |
| Address: | 51 W ALDER ST PORT LUDLOW, WA 98365 | Mapsco: | 086/008 |
| Neighborhood: | PARADISE BAY ESTATES; PARADISE VIEW ESTATES | Map ID: | |
| Neighborhood CD: | 3365 |
Owner |
| Name: | LARRY A JONES & MARLENE BENNETT JONES | Owner ID: | 56932 |
| Mailing Address: | 51 WEST ALDER STREET PORT LUDLOW, WA 98365 | % Ownership: | 100.0000000000% |
| | | Exemptions: | SNR/DSBL |
Pay Tax Due
There is currently No Amount Due on this property.
Taxes and Assessment Details
Property Tax Information as of
10/24/2025
Click on "Statement Details" to expand or collapse a tax statement.
* Please enter a valid date ** Please enter a valid date *
Statement Details |
| | TOTAL: | $0.00 | $0.00 | $0.00 | $0.00 | $0.00 | $0.00 |
|
| | $0.00 | $0.00 | $0.00 | $0.00 | $0.00 | $0.00 |
Values
| (+) Improvement Homesite Value: | + | $35,504 | |
| (+) Improvement Non-Homesite Value: | + | $0 | |
| (+) Land Homesite Value: | + | $78,750 | |
| (+) Land Non-Homesite Value: | + | $0 | |
| (+) Curr Use (HS): | + | $0 | $0 |
| (+) Curr Use (NHS): | + | $0 | $0 |
| | | -------------------------- | |
| (=) Market Value: | = | $114,254 | |
| (–) Productivity Loss: | – | $0 | |
| | | -------------------------- | |
| (=) Subtotal: | = | $114,254 | |
| (+) Senior Appraised Value: | + | $65,717 | |
| (+) Non-Senior Appraised Value: | + | $0 | |
| | | -------------------------- | |
| (=) Total Appraised Value: | = | $65,717 | |
| (–) Senior Exemption Loss: | – | $50,000 | |
| (–) Exemption Loss: | – | $0 | |
| | | -------------------------- | |
| (=) Taxable Value: | = | $15,717 | |
Taxing Jurisdiction
| Owner: | LARRY A JONES & MARLENE BENNETT JONES | | |
| % Ownership: | 100.0000000000% | | |
| Total Value: | N/A | | |
| Tax Area: | 0212 - 1-49F1E1W1H2L1 |
| CE | COUNTY CURRENT EXPENSE | N/A | N/A | N/A | N/A | | |
| CNTYDD | DEVELOPMENTAL DISABILITIES | N/A | N/A | N/A | N/A | | |
| CNTYVET | VETERANS RELIEF | N/A | N/A | N/A | N/A | | |
| MENTAL | MENTAL HEALTH | N/A | N/A | N/A | N/A | | |
| ROADS | COUNTY ROADS | N/A | N/A | N/A | N/A | | |
| ROADSCU | COUNTY ROADS TO CUR EXP | N/A | N/A | N/A | N/A | | |
| HOSP2CASH | HOSP DIST #2 GENERAL | N/A | N/A | N/A | N/A | | |
| SCH49CP | SCHOOL DIST #49 CAP PROJ | N/A | N/A | N/A | N/A | | |
| SCH49MO | SCHOOL DIST #49 EP & O | N/A | N/A | N/A | N/A | | |
| CONSERVE | CONSERVATION FUTURES | N/A | N/A | N/A | N/A | | |
| EMS1 | FIRE DIST #1 EMS | N/A | N/A | N/A | N/A | | |
| FD1 | FIRE DIST #1 GENERAL | N/A | N/A | N/A | N/A | | |
| LIB1 | LIBRARY DIST #1 GENERAL | N/A | N/A | N/A | N/A | | |
| PORTPT | PORT OF PT GENERAL | N/A | N/A | N/A | N/A | | |
| PORTPTIDD | PORT OF PT IDD 2019 | N/A | N/A | N/A | N/A | | |
| PUD1 | PUD #1 GENERAL | N/A | N/A | N/A | N/A | | |
| STATE | STATE SCHOOL PART 1 | N/A | N/A | N/A | N/A | | |
| STATE2 | STATE SCHOOL PART 2 | N/A | N/A | N/A | N/A | | |
| | Total Tax Rate: | N/A | | | | | |
| | | | | Taxes w/Current Exemptions: | N/A | | |
| | | | | Taxes w/o Exemptions: | N/A | | |
Improvement / Building
| Improvement #1: | Manufactured Home | State Code: | 11 | 952.0 sqft | Value: | $35,504 |
| Bathrooms (#): | 1 (FULL) | Bathrooms (#): | 1 (HALF) | | Bedrooms (#): | 2 | Exterior Wall: | SI/ST | | Floor Construction: | FRAME | Foundation: | PO&BL | | Heating/Cooling: | F/A | Roof Cover: | COMP |
|
| | Type | Description | Class CD | Sub Class CD | Year Built | Area |
| | MA | Main Area | 3 | MSG | 1978 | 952.0 |
| | MPATIO | MH Patio | 3 | MSG | 1978 | 952.0 |
| | MWPOR | MH Wood Porch | 3 | MSG | 1978 | 160.0 |
| | MSKIRT_WD | MH Skirting - Wood | 3 | MSG | 1978 | 164.0 |
Sketch
| No sketches available for this property. |
Property Image
Land
| 1 | 3365-1275S | Wooded/Terr View Sites Typ 2 lot Sites | 0.0000 | 0.00 | 0.00 | 0.00 | 1.00 | $78,750 | $0 |
Roll Value History
| 2025 | N/A | N/A | N/A | N/A | N/A |
| 2024 | $35,504 | $78,750 | $0 | $114,254 | $15,717 |
| 2023 | $33,890 | $70,000 | $0 | $103,890 | $5,717 |
| 2022 | $33,890 | $65,000 | $0 | $98,890 | $15,717 |
| 2021 | $30,832 | $48,000 | $0 | $78,832 | $15,717 |
Deed and Sales History
| 1 | 04/27/2015 | SWD | Statutory Warranty Deed | EVVA P BELOW WIEDIGER | LARRY A JONES & MARLENE BENNETT JONES | | | $65,000.00 | 123121 | |
| 2 | 09/24/2008 | SWD | Statutory Warranty Deed | CHESLEDON, JOSEPH | WIEDIGER-BELOW, EVVA | 0 | 0 | $0.00 | 112001 | 0 |
| 3 | 09/23/2008 | QCD | Quit Claim Deed | BELOW, CHARLES O | WIEDIGER-BELOW, EVVA PATRICIA | 0 | 0 | $0.00 | 112014 | 0 |
| 4 | 07/16/1997 | SWD | Statutory Warranty Deed | HICKLES, OLIVER L/LYDIA F | CHESLEDON, JOSEPH JOHN | 0 | 0 | $0.00 | 82375 | 0 |
Payout Agreement
| No payout information available.. |