Property
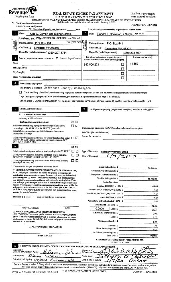
Account |
| Property ID: | 37628 | Abbreviated Legal Description: | PARADISE BAY ESTATES BLK 13, LOT 5 |
| Parcel # / Geo ID: | 983401304 | Agent Code: | |
| Type: | Real | | |
| Tax Area: | 0212 - 1-49F1E1W1H2L1 | Land Use Code | 11 |
| Open Space: | N | DFL | N |
| Historic Property: | N | Remodel Property: | N |
| Multi-Family Redevelopment: | N | | |
| Township: | 28N | Section: | 23 |
| Range: | 1E |
Location |
| Address: | 71 SHORE DR PORT LUDLOW, WA 98365 | Mapsco: | 087/024 |
| Neighborhood: | PARADISE BAY ESTATES; PARADISE VIEW ESTATES | Map ID: | |
| Neighborhood CD: | 3365 |
Owner |
| Name: | JUDITH K HOYLE | Owner ID: | 102170 |
| Mailing Address: | PATRICIA J COSNER 106 ASH LOOP PORT TOWNSEND, WA 98368-9225 | % Ownership: | 100.0000000000% |
| | | Exemptions: | |
Pay Tax Due
There is currently No Amount Due on this property.
Taxes and Assessment Details
Property Tax Information as of
10/24/2025
Click on "Statement Details" to expand or collapse a tax statement.
* Please enter a valid date ** Please enter a valid date *
Statement Details |
| | TOTAL: | $0.00 | $0.00 | $0.00 | $0.00 | $0.00 | $0.00 |
|
| | $0.00 | $0.00 | $0.00 | $0.00 | $0.00 | $0.00 |
Values
| (+) Improvement Homesite Value: | + | $0 | |
| (+) Improvement Non-Homesite Value: | + | $74,804 | |
| (+) Land Homesite Value: | + | $0 | |
| (+) Land Non-Homesite Value: | + | $204,750 | |
| (+) Curr Use (HS): | + | $0 | $0 |
| (+) Curr Use (NHS): | + | $0 | $0 |
| | | -------------------------- | |
| (=) Market Value: | = | $279,554 | |
| (–) Productivity Loss: | – | $0 | |
| | | -------------------------- | |
| (=) Subtotal: | = | $279,554 | |
| (+) Senior Appraised Value: | + | $0 | |
| (+) Non-Senior Appraised Value: | + | $279,554 | |
| | | -------------------------- | |
| (=) Total Appraised Value: | = | $279,554 | |
| (–) Senior Exemption Loss: | – | $0 | |
| (–) Exemption Loss: | – | $0 | |
| | | -------------------------- | |
| (=) Taxable Value: | = | $279,554 | |
Taxing Jurisdiction
| Owner: | JUDITH K HOYLE | | |
| % Ownership: | 100.0000000000% | | |
| Total Value: | N/A | | |
| Tax Area: | 0212 - 1-49F1E1W1H2L1 |
| CE | COUNTY CURRENT EXPENSE | N/A | N/A | N/A | N/A | | |
| CNTYDD | DEVELOPMENTAL DISABILITIES | N/A | N/A | N/A | N/A | | |
| CNTYVET | VETERANS RELIEF | N/A | N/A | N/A | N/A | | |
| MENTAL | MENTAL HEALTH | N/A | N/A | N/A | N/A | | |
| ROADS | COUNTY ROADS | N/A | N/A | N/A | N/A | | |
| ROADSCU | COUNTY ROADS TO CUR EXP | N/A | N/A | N/A | N/A | | |
| HOSP2CASH | HOSP DIST #2 GENERAL | N/A | N/A | N/A | N/A | | |
| SCH49CP | SCHOOL DIST #49 CAP PROJ | N/A | N/A | N/A | N/A | | |
| SCH49MO | SCHOOL DIST #49 EP & O | N/A | N/A | N/A | N/A | | |
| CONSERVE | CONSERVATION FUTURES | N/A | N/A | N/A | N/A | | |
| EMS1 | FIRE DIST #1 EMS | N/A | N/A | N/A | N/A | | |
| FD1 | FIRE DIST #1 GENERAL | N/A | N/A | N/A | N/A | | |
| LIB1 | LIBRARY DIST #1 GENERAL | N/A | N/A | N/A | N/A | | |
| PORTPT | PORT OF PT GENERAL | N/A | N/A | N/A | N/A | | |
| PORTPTIDD | PORT OF PT IDD 2019 | N/A | N/A | N/A | N/A | | |
| PUD1 | PUD #1 GENERAL | N/A | N/A | N/A | N/A | | |
| STATE | STATE SCHOOL PART 1 | N/A | N/A | N/A | N/A | | |
| STATE2 | STATE SCHOOL PART 2 | N/A | N/A | N/A | N/A | | |
| | Total Tax Rate: | N/A | | | | | |
| | | | | Taxes w/Current Exemptions: | N/A | | |
| | | | | Taxes w/o Exemptions: | N/A | | |
Improvement / Building
| Improvement #1: | Residential Bldg | State Code: | 11 | 480.0 sqft | Value: | $74,804 |
| Bathrooms (#): | 1 (FULL) | Bedrooms (#): | 1 | | Exterior Wall: | SI/ST | Fireplace: | WD ST-GOOD | | Floor Construction: | FRAME | Foundation: | CONPR | | Heating/Cooling: | ELBB | Roof Cover: | COMP |
|
| | Type | Description | Class CD | Sub Class CD | Year Built | Area |
| | MA | Main Area | 3- | 1S | 1966 | 480.0 |
| | HDECK | House Deck | 3 | 1S | 1966 | 268.0 |
| | BSMTF | House basement finished | 3 | 1S | 1966 | 224.0 |
Sketch
| No sketches available for this property. |
Property Image
Land
| 1 | 3365-1115L | Waterfront Lots Paradise Bay Est | 0.0000 | 0.00 | 0.00 | 0.00 | 1.00 | $204,750 | $0 |
Roll Value History
| 2025 | N/A | N/A | N/A | N/A | N/A |
| 2024 | $74,804 | $204,750 | $0 | $279,554 | $279,554 |
| 2023 | $71,404 | $190,000 | $0 | $261,404 | $261,404 |
| 2022 | $71,404 | $185,000 | $0 | $256,404 | $256,404 |
| 2021 | $60,822 | $138,000 | $0 | $198,822 | $198,822 |
Deed and Sales History
| 1 | 11/03/2020 | PRD | Personal Representatives Deed | EUGENIA M LYLE | JUDITH K HOYLE | | | | 135508 | |
| 2 | 05/01/2018 | QCD | Quit Claim Deed | THE NORMAN C LYLE TRUST | EUGENIA M LYLE | | | | 135506 | |
| 3 | 01/03/2005 | WD | Warranty Deed | LYLE, NORMAN C ESTATE OF | LYLW, NORMAN C TRUST | 0 | 0 | $0.00 | 102489 | 0 |
| 4 | 01/15/1999 | SWD | Statutory Warranty Deed | MAEHL, CLINTON L/GERTRUDE | LYLE, NORMAN C/EUGENIA M | 0 | 0 | $80,000.00 | 86122 | 0 |
Payout Agreement
| No payout information available.. |