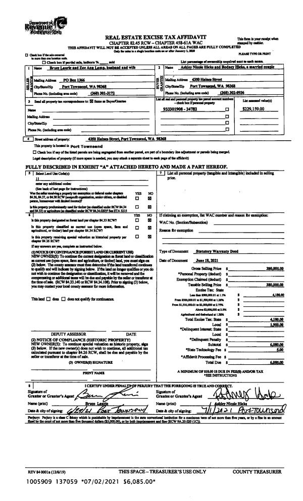
Property
Account |
| Property ID: | 37770 | Abbreviated Legal Description: | PARADISE VIEW ESTATES BLK G LOTS 15 & 17 |
| Parcel # / Geo ID: | 984000714 | Agent Code: | |
| Type: | Real | | |
| Tax Area: | 0212 - 1-49F1E1W1H2L1 | Land Use Code | 11 |
| Open Space: | N | DFL | N |
| Historic Property: | N | Remodel Property: | N |
| Multi-Family Redevelopment: | N | | |
| Township: | 28N | Section: | 22 |
| Range: | 1E |
Location |
| Address: | 161 W ALDER ST PORT LUDLOW, WA 98365 | Mapsco: | 089/047 |
| Neighborhood: | PARADISE BAY ESTATES; PARADISE VIEW ESTATES | Map ID: | |
| Neighborhood CD: | 3365 |
Owner |
| Name: | JENNIFER KYLE STOKES | Owner ID: | 105507 |
| Mailing Address: | 161 W ALDER ST PORT LUDLOW, WA 98365-8757 | % Ownership: | 100.0000000000% |
| | | Exemptions: | |
Pay Tax Due
There is currently No Amount Due on this property.
Taxes and Assessment Details
Property Tax Information as of
10/24/2025
Click on "Statement Details" to expand or collapse a tax statement.
* Please enter a valid date ** Please enter a valid date *
Statement Details |
| | TOTAL: | $0.00 | $0.00 | $0.00 | $0.00 | $0.00 | $0.00 |
|
| | $0.00 | $0.00 | $0.00 | $0.00 | $0.00 | $0.00 |
Values
| (+) Improvement Homesite Value: | + | $0 | |
| (+) Improvement Non-Homesite Value: | + | $360,832 | |
| (+) Land Homesite Value: | + | $0 | |
| (+) Land Non-Homesite Value: | + | $105,000 | |
| (+) Curr Use (HS): | + | $0 | $0 |
| (+) Curr Use (NHS): | + | $0 | $0 |
| | | -------------------------- | |
| (=) Market Value: | = | $465,832 | |
| (–) Productivity Loss: | – | $0 | |
| | | -------------------------- | |
| (=) Subtotal: | = | $465,832 | |
| (+) Senior Appraised Value: | + | $0 | |
| (+) Non-Senior Appraised Value: | + | $465,832 | |
| | | -------------------------- | |
| (=) Total Appraised Value: | = | $465,832 | |
| (–) Senior Exemption Loss: | – | $0 | |
| (–) Exemption Loss: | – | $0 | |
| | | -------------------------- | |
| (=) Taxable Value: | = | $465,832 | |
Taxing Jurisdiction
| Owner: | JENNIFER KYLE STOKES | | |
| % Ownership: | 100.0000000000% | | |
| Total Value: | N/A | | |
| Tax Area: | 0212 - 1-49F1E1W1H2L1 |
| CE | COUNTY CURRENT EXPENSE | N/A | N/A | N/A | N/A | | |
| CNTYDD | DEVELOPMENTAL DISABILITIES | N/A | N/A | N/A | N/A | | |
| CNTYVET | VETERANS RELIEF | N/A | N/A | N/A | N/A | | |
| MENTAL | MENTAL HEALTH | N/A | N/A | N/A | N/A | | |
| ROADS | COUNTY ROADS | N/A | N/A | N/A | N/A | | |
| ROADSCU | COUNTY ROADS TO CUR EXP | N/A | N/A | N/A | N/A | | |
| HOSP2CASH | HOSP DIST #2 GENERAL | N/A | N/A | N/A | N/A | | |
| SCH49CP | SCHOOL DIST #49 CAP PROJ | N/A | N/A | N/A | N/A | | |
| SCH49MO | SCHOOL DIST #49 EP & O | N/A | N/A | N/A | N/A | | |
| CONSERVE | CONSERVATION FUTURES | N/A | N/A | N/A | N/A | | |
| EMS1 | FIRE DIST #1 EMS | N/A | N/A | N/A | N/A | | |
| FD1 | FIRE DIST #1 GENERAL | N/A | N/A | N/A | N/A | | |
| LIB1 | LIBRARY DIST #1 GENERAL | N/A | N/A | N/A | N/A | | |
| PORTPT | PORT OF PT GENERAL | N/A | N/A | N/A | N/A | | |
| PORTPTIDD | PORT OF PT IDD 2019 | N/A | N/A | N/A | N/A | | |
| PUD1 | PUD #1 GENERAL | N/A | N/A | N/A | N/A | | |
| STATE | STATE SCHOOL PART 1 | N/A | N/A | N/A | N/A | | |
| STATE2 | STATE SCHOOL PART 2 | N/A | N/A | N/A | N/A | | |
| | Total Tax Rate: | N/A | | | | | |
| | | | | Taxes w/Current Exemptions: | N/A | | |
| | | | | Taxes w/o Exemptions: | N/A | | |
Improvement / Building
| Improvement #1: | Residential Bldg | State Code: | 11 | 1152.0 sqft | Value: | $360,832 |
| Bathrooms (#): | 1 (FULL) | Bedrooms (#): | 2 | | Exterior Wall: | SI/ST | Floor Construction: | FRAME | | Foundation: | CONPR | Heating/Cooling: | ELBB | | Roof Cover: | COMP |   |   |
|
| | Type | Description | Class CD | Sub Class CD | Year Built | Area |
| | MA | Main Area | 5 | 1S | 1970 | 1152.0 |
| | HDECK | House Deck | 5 | 1S | 1970 | 432.0 |
| | SHED | Shed (Table Not Dep) | 6 | 1S | 1970 | 208.0 |
| | CARPTN | Carport W/O Floor | 3 | 1S | 1970 | 200.0 |
Sketch
Property Image
Land
| 1 | 3365-1255S | Avg Wtr View Sites Typ 2 lot Sites | 0.0000 | 0.00 | 0.00 | 0.00 | 1.00 | $105,000 | $0 |
Roll Value History
| 2025 | N/A | N/A | N/A | N/A | N/A |
| 2024 | $360,832 | $105,000 | $0 | $465,832 | $465,832 |
| 2023 | $344,430 | $95,000 | $0 | $439,430 | $439,430 |
| 2022 | $344,430 | $90,000 | $0 | $434,430 | $434,430 |
| 2021 | $116,593 | $48,000 | $0 | $164,593 | $164,593 |
Deed and Sales History
| 1 | 09/03/2021 | QCD | Quit Claim Deed | JACOB D STOKES | JENNIFER KYLE STOKES | | | | 137569 | |
| 2 | 09/03/2021 | SWD | Statutory Warranty Deed | CRAFTSMAN PROPERTIES NW LLC | JENNIFER KYLE STOKES | | | $430,000.00 | 137568 | |
| 3 | 01/27/2021 | BSD | Bargain and Sale Deed | FEDERAL NATIONAL MORTGAGE | CRAFTSMAN PROPERTIES NW LLC | | | $173,500.00 | 136013 | |
| 4 | 03/30/2020 | SHRD | Sheriff Deed | RAYMOND D MEEKER | FEDERAL NATIONAL MORTGAGE | | | $172,000.00 | 134223 | |
| 5 | 07/23/2003 | SWD | Statutory Warranty Deed | EDWARDS, GEORG/KAREN | MEEKER, RAYMOND D/JENNIFER L | 0 | 0 | $125,000.00 | 97906 | 0 |
| 6 | 03/12/2002 | SWD | Statutory Warranty Deed | HALL, HEATHER R | EDWARDS, GEORGE/KAREN | 0 | 0 | $92,500.00 | 94249 | 0 |
| 7 | 01/26/2000 | QCD | Quit Claim Deed | HALL, H MARTYN/JOYCE L | HALL, HEATHER R | 0 | 0 | $68,453.00 | 88867 | 0 |
| 8 | 06/19/1997 | SWD | Statutory Warranty Deed | JARVIE, C.S. | HALL, H MARTYN & JOYCE L | 0 | 0 | $80,000.00 | 82220 | 0 |
Payout Agreement
| No payout information available.. |