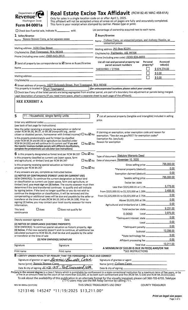
Property
Account |
| Property ID: | 37783 | Abbreviated Legal Description: | PARADISE VIEW ESTATES BLK H LOTS 12 - 14 SUBJ TO REST COVT AFN#445794 |
| Parcel # / Geo ID: | 984000812 | Agent Code: | |
| Type: | Real | | |
| Tax Area: | 0212 - 1-49F1E1W1H2L1 | Land Use Code | 11 |
| Open Space: | N | DFL | N |
| Historic Property: | N | Remodel Property: | N |
| Multi-Family Redevelopment: | N | | |
| Township: | 28N | Section: | 22 |
| Range: | 1E |
Location |
| Address: | 131 W SPRUCE ST PORT LUDLOW, WA 98365 | Mapsco: | 090/010 |
| Neighborhood: | PARADISE BAY ESTATES; PARADISE VIEW ESTATES | Map ID: | |
| Neighborhood CD: | 3365 |
Owner |
| Name: | TONYA FLORES CRUZ & TOMMY CRUZ RODRIGUEZ | Owner ID: | 102377 |
| Mailing Address: | 131 W SPRUCE ST PORT LUDLOW, WA 98365-9791 | % Ownership: | 100.0000000000% |
| | | Exemptions: | |
Pay Tax Due
There is currently No Amount Due on this property.
Taxes and Assessment Details
Property Tax Information as of
10/24/2025
Click on "Statement Details" to expand or collapse a tax statement.
* Please enter a valid date ** Please enter a valid date *
Statement Details |
| | TOTAL: | $0.00 | $0.00 | $0.00 | $0.00 | $0.00 | $0.00 |
|
| | $0.00 | $0.00 | $0.00 | $0.00 | $0.00 | $0.00 |
Values
| (+) Improvement Homesite Value: | + | $0 | |
| (+) Improvement Non-Homesite Value: | + | $162,769 | |
| (+) Land Homesite Value: | + | $0 | |
| (+) Land Non-Homesite Value: | + | $109,200 | |
| (+) Curr Use (HS): | + | $0 | $0 |
| (+) Curr Use (NHS): | + | $0 | $0 |
| | | -------------------------- | |
| (=) Market Value: | = | $271,969 | |
| (–) Productivity Loss: | – | $0 | |
| | | -------------------------- | |
| (=) Subtotal: | = | $271,969 | |
| (+) Senior Appraised Value: | + | $0 | |
| (+) Non-Senior Appraised Value: | + | $271,969 | |
| | | -------------------------- | |
| (=) Total Appraised Value: | = | $271,969 | |
| (–) Senior Exemption Loss: | – | $0 | |
| (–) Exemption Loss: | – | $0 | |
| | | -------------------------- | |
| (=) Taxable Value: | = | $271,969 | |
Taxing Jurisdiction
| Owner: | TONYA FLORES CRUZ & TOMMY CRUZ RODRIGUEZ | | |
| % Ownership: | 100.0000000000% | | |
| Total Value: | N/A | | |
| Tax Area: | 0212 - 1-49F1E1W1H2L1 |
| CE | COUNTY CURRENT EXPENSE | N/A | N/A | N/A | N/A | | |
| CNTYDD | DEVELOPMENTAL DISABILITIES | N/A | N/A | N/A | N/A | | |
| CNTYVET | VETERANS RELIEF | N/A | N/A | N/A | N/A | | |
| MENTAL | MENTAL HEALTH | N/A | N/A | N/A | N/A | | |
| ROADS | COUNTY ROADS | N/A | N/A | N/A | N/A | | |
| ROADSCU | COUNTY ROADS TO CUR EXP | N/A | N/A | N/A | N/A | | |
| HOSP2CASH | HOSP DIST #2 GENERAL | N/A | N/A | N/A | N/A | | |
| SCH49CP | SCHOOL DIST #49 CAP PROJ | N/A | N/A | N/A | N/A | | |
| SCH49MO | SCHOOL DIST #49 EP & O | N/A | N/A | N/A | N/A | | |
| CONSERVE | CONSERVATION FUTURES | N/A | N/A | N/A | N/A | | |
| EMS1 | FIRE DIST #1 EMS | N/A | N/A | N/A | N/A | | |
| FD1 | FIRE DIST #1 GENERAL | N/A | N/A | N/A | N/A | | |
| LIB1 | LIBRARY DIST #1 GENERAL | N/A | N/A | N/A | N/A | | |
| PORTPT | PORT OF PT GENERAL | N/A | N/A | N/A | N/A | | |
| PORTPTIDD | PORT OF PT IDD 2019 | N/A | N/A | N/A | N/A | | |
| PUD1 | PUD #1 GENERAL | N/A | N/A | N/A | N/A | | |
| STATE | STATE SCHOOL PART 1 | N/A | N/A | N/A | N/A | | |
| STATE2 | STATE SCHOOL PART 2 | N/A | N/A | N/A | N/A | | |
| | Total Tax Rate: | N/A | | | | | |
| | | | | Taxes w/Current Exemptions: | N/A | | |
| | | | | Taxes w/o Exemptions: | N/A | | |
Improvement / Building
| Improvement #1: | Manufactured Home | State Code: | 11 | 1120.0 sqft | Value: | $162,769 |
| Bathrooms (#): | 2 (FULL) | Bedrooms (#): | 2 | | Exterior Wall: | SI/ST | Fireplace: | WD ST-GOOD | | Floor Construction: | FRAME | Foundation: | CONPR | | Heating/Cooling: | HPUMP | Roof Cover: | COMP |
|
| | Type | Description | Class CD | Sub Class CD | Year Built | Area |
| | MA | Main Area | 5 | MDBL | 1982 | 1120.0 |
| | MWPOR | MH Wood Porch | 5 | MDBL | 1982 | 24.0 |
| | MDECK | MH Deck | 5 | MDBL | 1982 | 216.0 |
| | MDET | MH Detached Garage | 5 | MDBL | 1982 | 324.0 |
| | SHED | Shed (Table Not Dep) | 5 | MDBL | 1982 | 144.0 |
| | MSKIRT_WD | MH Skirting - Wood | 5 | MDBL | 1982 | 128.0 |
Sketch
| No sketches available for this property. |
Property Image
Land
| 1 | 3365-1265S | Fair/Filtered View Sites Typ 2 lot Sites | 0.0000 | 0.00 | 0.00 | 0.00 | 1.00 | $100,800 | $0 |
| 2 | 3365-1188L | Non View Lots Limited Utility | 0.0000 | 0.00 | 0.00 | 0.00 | 1.00 | $8,400 | $0 |
Roll Value History
| 2025 | N/A | N/A | N/A | N/A | N/A |
| 2024 | $162,769 | $109,200 | $0 | $271,969 | $271,969 |
| 2023 | $155,371 | $99,000 | $0 | $254,371 | $254,371 |
| 2022 | $155,371 | $94,000 | $0 | $249,371 | $249,371 |
| 2021 | $120,726 | $67,200 | $0 | $187,926 | $187,926 |
Deed and Sales History
| 1 | 02/25/2020 | SWD | Statutory Warranty Deed | BLAKE BUEL | TONYA FLORES CRUZ & TOMMY CRUZ RODRIGUEZ | | | $239,000.00 | 134035 | |
| 2 | 09/17/2019 | SWD | Statutory Warranty Deed | JOSEPH P MC DERMOTT | BLAKE BUEL | | | $213,500.00 | 133174 | |
| 3 | 09/19/2005 | SWD | Statutory Warranty Deed | ELSNER, CHESTER L/FLORENC | MCDERMOTT, JOSEPH P/DEBRA D | 0 | 0 | $129,000.00 | 104826 | 0 |
Payout Agreement
| No payout information available.. |