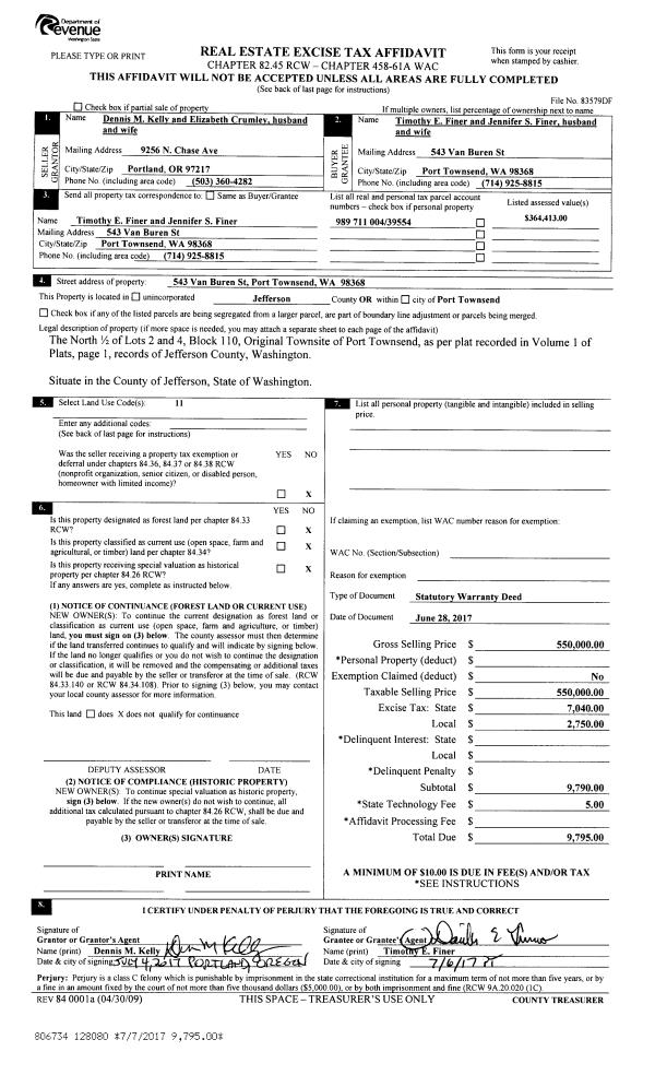
Property
Account |
| Property ID: | 37825 | Abbreviated Legal Description: | PEDERSEN ADD LOT 6 SUBJ/BLA #83882 W/EASE |
| Parcel # / Geo ID: | 984300006 | Agent Code: | |
| Type: | Real | | |
| Tax Area: | 0110 - C-50F1E1H2 | Land Use Code | 11 |
| Open Space: | N | DFL | N |
| Historic Property: | N | Remodel Property: | N |
| Multi-Family Redevelopment: | N | | |
| Township: | 30N | Section: | 3 |
| Range: | 1W |
Location |
| Address: | 415 26TH ST PORT TOWNSEND, WA 98368 | Mapsco: | 087/085 |
| Neighborhood: | ELLIS AND PEDERSEN ADD | Map ID: | |
| Neighborhood CD: | 6125 |
Owner |
| Name: | DORIS M MERRIMAN | Owner ID: | 98643 |
| Mailing Address: | ROLAND D VANDERVORST JTWROS 2023 E SIMS WAY #124 PORT TOWNSEND, WA 98368-6905 | % Ownership: | 100.0000000000% |
| | | Exemptions: | |
Pay Tax Due
There is currently No Amount Due on this property.
Taxes and Assessment Details
Property Tax Information as of
10/24/2025
Click on "Statement Details" to expand or collapse a tax statement.
* Please enter a valid date ** Please enter a valid date *
Statement Details |
| | TOTAL: | $0.00 | $0.00 | $0.00 | $0.00 | $0.00 | $0.00 |
|
| | $0.00 | $0.00 | $0.00 | $0.00 | $0.00 | $0.00 |
Values
| (+) Improvement Homesite Value: | + | $0 | |
| (+) Improvement Non-Homesite Value: | + | $309,964 | |
| (+) Land Homesite Value: | + | $0 | |
| (+) Land Non-Homesite Value: | + | $125,000 | |
| (+) Curr Use (HS): | + | $0 | $0 |
| (+) Curr Use (NHS): | + | $0 | $0 |
| | | -------------------------- | |
| (=) Market Value: | = | $434,964 | |
| (–) Productivity Loss: | – | $0 | |
| | | -------------------------- | |
| (=) Subtotal: | = | $434,964 | |
| (+) Senior Appraised Value: | + | $0 | |
| (+) Non-Senior Appraised Value: | + | $434,964 | |
| | | -------------------------- | |
| (=) Total Appraised Value: | = | $434,964 | |
| (–) Senior Exemption Loss: | – | $0 | |
| (–) Exemption Loss: | – | $0 | |
| | | -------------------------- | |
| (=) Taxable Value: | = | $434,964 | |
Taxing Jurisdiction
| Owner: | DORIS M MERRIMAN | | |
| % Ownership: | 100.0000000000% | | |
| Total Value: | N/A | | |
| Tax Area: | 0110 - C-50F1E1H2 |
| CE | COUNTY CURRENT EXPENSE | N/A | N/A | N/A | N/A | | |
| CNTYDD | DEVELOPMENTAL DISABILITIES | N/A | N/A | N/A | N/A | | |
| CNTYVET | VETERANS RELIEF | N/A | N/A | N/A | N/A | | |
| MENTAL | MENTAL HEALTH | N/A | N/A | N/A | N/A | | |
| PTGEN | CITY OF PT GENERAL | N/A | N/A | N/A | N/A | | |
| PTLLL | CITY OF PT - LIBRARY LID LIFT | N/A | N/A | N/A | N/A | | |
| PTMVBOND | CITY OF PT MV BOND | N/A | N/A | N/A | N/A | | |
| HOSP2CASH | HOSP DIST #2 GENERAL | N/A | N/A | N/A | N/A | | |
| SCH50BOND | SCHOOL DIST #50 BOND 2016 | N/A | N/A | N/A | N/A | | |
| SCH50CP | SCHOOL DIST #50 CAP PROJ | N/A | N/A | N/A | N/A | | |
| SCH50MO | SCHOOL DIST #50 EP & O | N/A | N/A | N/A | N/A | | |
| CONSERVE | CONSERVATION FUTURES | N/A | N/A | N/A | N/A | | |
| EMS1 | FIRE DIST #1 EMS | N/A | N/A | N/A | N/A | | |
| FD1 | FIRE DIST #1 GENERAL | N/A | N/A | N/A | N/A | | |
| PORTPT | PORT OF PT GENERAL | N/A | N/A | N/A | N/A | | |
| PORTPTIDD | PORT OF PT IDD 2019 | N/A | N/A | N/A | N/A | | |
| PUD1 | PUD #1 GENERAL | N/A | N/A | N/A | N/A | | |
| STATE | STATE SCHOOL PART 1 | N/A | N/A | N/A | N/A | | |
| STATE2 | STATE SCHOOL PART 2 | N/A | N/A | N/A | N/A | | |
| | Total Tax Rate: | N/A | | | | | |
| | | | | Taxes w/Current Exemptions: | N/A | | |
| | | | | Taxes w/o Exemptions: | N/A | | |
Improvement / Building
| Improvement #1: | Residential Bldg | State Code: | 11 | 1508.0 sqft | Value: | $309,964 |
| Bathrooms (#): | 2 (FULL) | Bedrooms (#): | 3 | | Exterior Wall: | PL/T1 | Fireplace: | SIN 1-AVG | | Floor Construction: | FRAME | Foundation: | CONPR | | Heating/Cooling: | ELBB | Inside Verify: | YES-FIX | | Roof Cover: | SHNGL |   |   |
|
| | Type | Description | Class CD | Sub Class CD | Year Built | Area |
| | MA | Main Area | 3+ | 1S | 1983 | 1508.0 |
| | HDECK | House Deck | 3 | * | 1983 | 618.0 |
| | GATT | House Attached Garage | 3 | 1S | 1983 | 280.0 |
| | GARAG | Garage (Table Not Dep) | 4 | * | 1983 | 816.0 |
Sketch
Property Image
Land
| 1 | 6125-1275S | Terr View Bldg Sites .25+/- Ac in size | 0.0000 | 0.00 | 0.00 | 0.00 | 1.00 | $125,000 | $0 |
Roll Value History
| 2025 | N/A | N/A | N/A | N/A | N/A |
| 2024 | $295,974 | $115,500 | $0 | $411,474 | $411,474 |
| 2023 | $283,106 | $105,000 | $0 | $388,106 | $388,106 |
| 2022 | $283,106 | $100,000 | $0 | $383,106 | $383,106 |
| 2021 | $231,674 | $89,700 | $0 | $321,374 | $321,374 |
Deed and Sales History
| 1 | 01/24/2018 | QCD | Quit Claim Deed | ROLAND D VANDERVORST | DORIS M MERRIMAN | | | | 129491 | |
| 2 | 01/24/2018 | QCD | Quit Claim Deed | | | | | | 129619 | |
| 3 | 12/19/1998 | BLA | Boundary Line Adjustment | ESTES, JOHN/SUE | VANDERVORST, MERIDEE S/ROLAND | 0 | 0 | $0.00 | 83882 | 0 |
Payout Agreement
| No payout information available.. |