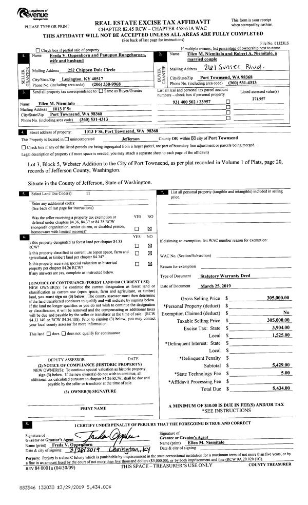
Property
Account |
| Property ID: | 37863 | Abbreviated Legal Description: | AL PETTYGROVE ADDITION BLK 7 LOT 5 |
| Parcel # / Geo ID: | 984600704 | Agent Code: | |
| Type: | Real | | |
| Tax Area: | 0110 - C-50F1E1H2 | Land Use Code | 11 |
| Open Space: | N | DFL | N |
| Historic Property: | N | Remodel Property: | N |
| Multi-Family Redevelopment: | N | | |
| Township: | 30N | Section: | 2 |
| Range: | 1W |
Location |
| Address: | 1344 TAYLOR ST PORT TOWNSEND, WA 98368 | Mapsco: | 089/033 |
| Neighborhood: | AL PETTYGROVE'S SMITH'S & DRUMMOND'S | Map ID: | |
| Neighborhood CD: | 6310 |
Owner |
| Name: | SUSAN C SKILLING REVOCABLE LIVING TRUST | Owner ID: | 101446 |
| Mailing Address: | SUSAN C SKILLING TRUSTEE 1344 TAYLOR ST PORT TOWNSEND, WA 98368-5323 | % Ownership: | 100.0000000000% |
| | | Exemptions: | |
Pay Tax Due
There is currently No Amount Due on this property.
Taxes and Assessment Details
Property Tax Information as of
10/24/2025
Click on "Statement Details" to expand or collapse a tax statement.
* Please enter a valid date ** Please enter a valid date *
Statement Details |
| | TOTAL: | $0.00 | $0.00 | $0.00 | $0.00 | $0.00 | $0.00 |
|
| | $0.00 | $0.00 | $0.00 | $0.00 | $0.00 | $0.00 |
Values
| (+) Improvement Homesite Value: | + | $0 | |
| (+) Improvement Non-Homesite Value: | + | $299,349 | |
| (+) Land Homesite Value: | + | $0 | |
| (+) Land Non-Homesite Value: | + | $280,000 | |
| (+) Curr Use (HS): | + | $0 | $0 |
| (+) Curr Use (NHS): | + | $0 | $0 |
| | | -------------------------- | |
| (=) Market Value: | = | $579,349 | |
| (–) Productivity Loss: | – | $0 | |
| | | -------------------------- | |
| (=) Subtotal: | = | $579,349 | |
| (+) Senior Appraised Value: | + | $0 | |
| (+) Non-Senior Appraised Value: | + | $579,349 | |
| | | -------------------------- | |
| (=) Total Appraised Value: | = | $579,349 | |
| (–) Senior Exemption Loss: | – | $0 | |
| (–) Exemption Loss: | – | $0 | |
| | | -------------------------- | |
| (=) Taxable Value: | = | $579,349 | |
Taxing Jurisdiction
| Owner: | SUSAN C SKILLING REVOCABLE LIVING TRUST | | |
| % Ownership: | 100.0000000000% | | |
| Total Value: | N/A | | |
| Tax Area: | 0110 - C-50F1E1H2 |
| CE | COUNTY CURRENT EXPENSE | N/A | N/A | N/A | N/A | | |
| CNTYDD | DEVELOPMENTAL DISABILITIES | N/A | N/A | N/A | N/A | | |
| CNTYVET | VETERANS RELIEF | N/A | N/A | N/A | N/A | | |
| MENTAL | MENTAL HEALTH | N/A | N/A | N/A | N/A | | |
| PTGEN | CITY OF PT GENERAL | N/A | N/A | N/A | N/A | | |
| PTLLL | CITY OF PT - LIBRARY LID LIFT | N/A | N/A | N/A | N/A | | |
| PTMVBOND | CITY OF PT MV BOND | N/A | N/A | N/A | N/A | | |
| HOSP2CASH | HOSP DIST #2 GENERAL | N/A | N/A | N/A | N/A | | |
| SCH50BOND | SCHOOL DIST #50 BOND 2016 | N/A | N/A | N/A | N/A | | |
| SCH50CP | SCHOOL DIST #50 CAP PROJ | N/A | N/A | N/A | N/A | | |
| SCH50MO | SCHOOL DIST #50 EP & O | N/A | N/A | N/A | N/A | | |
| CONSERVE | CONSERVATION FUTURES | N/A | N/A | N/A | N/A | | |
| EMS1 | FIRE DIST #1 EMS | N/A | N/A | N/A | N/A | | |
| FD1 | FIRE DIST #1 GENERAL | N/A | N/A | N/A | N/A | | |
| PORTPT | PORT OF PT GENERAL | N/A | N/A | N/A | N/A | | |
| PORTPTIDD | PORT OF PT IDD 2019 | N/A | N/A | N/A | N/A | | |
| PUD1 | PUD #1 GENERAL | N/A | N/A | N/A | N/A | | |
| STATE | STATE SCHOOL PART 1 | N/A | N/A | N/A | N/A | | |
| STATE2 | STATE SCHOOL PART 2 | N/A | N/A | N/A | N/A | | |
| | Total Tax Rate: | N/A | | | | | |
| | | | | Taxes w/Current Exemptions: | N/A | | |
| | | | | Taxes w/o Exemptions: | N/A | | |
Improvement / Building
| Improvement #1: | Residential Bldg | State Code: | 11 | 1225.0 sqft | Value: | $254,236 |
| Bathrooms (#): | 1 (FULL) | Bathrooms (#): | 1 (HALF) | | Bedrooms (#): | 3 | Exterior Wall: | PL/T1 | | Fireplace: | SIN 1-GOOD | Floor Construction: | FRAME | | Foundation: | CONPR | Heating/Cooling: | F/A | | Inside Verify: | YES-FIX | Roof Cover: | METAL |
|
| | Type | Description | Class CD | Sub Class CD | Year Built | Area |
| | MA | Main Area | 4- | 1S | 1957 | 1225.0 |
| | HDECK | House Deck | 4 | * | 1957 | 192.0 |
| | CARPTF | Carport W/Floor | 4 | * | 1957 | 312.0 |
| Improvement #2: | Residential Bldg | State Code: | 11 | 0.0 sqft | Value: | $45,113 |
| | Type | Description | Class CD | Sub Class CD | Year Built | Area |
| | ADDN-D | Addition (Table Depreciated) | 3 | ADU | 1957 | 480.0 |
| | HDECK | House Deck | 4 | ADU | 1957 | 480.0 |
Sketch
Property Image
Land
| 1 | 6310-1155L | Uptown Std Lot (View Area) | 0.0000 | 0.00 | 0.00 | 0.00 | 1.00 | $280,000 | $0 |
Roll Value History
| 2025 | N/A | N/A | N/A | N/A | N/A |
| 2024 | $277,059 | $275,000 | $0 | $552,059 | $552,059 |
| 2023 | $265,976 | $257,250 | $0 | $523,226 | $523,226 |
| 2022 | $243,812 | $240,000 | $0 | $483,812 | $483,812 |
| 2021 | $203,856 | $225,000 | $0 | $428,856 | $428,856 |
Deed and Sales History
| 1 | 07/29/2019 | QCD | Quit Claim Deed | SUSAN C SKILLING | SUSAN C SKILLING REVOCABLE LIVING TRUST | | | | 132852 | |
| 2 | 06/22/2017 | TRTD | Trust Transfer Deed | HARRIET CAPRON TRSTEE | SUSAN C SKILLING | | | | 128049 | |
| 3 | 03/25/2014 | QCD | Quit Claim Deed | | | | | | 120931 | |
| 4 | 03/25/2014 | SWD | Statutory Warranty Deed | MAURICIO L CISNEROS | HARRIET CAPRON TRSTEE | | | $302,000.00 | 120932 | |
| 5 | 01/10/2005 | SWD | Statutory Warranty Deed | PERSON, LUCILLE G TRUST | CISNEROS, MAURICIO | 0 | 0 | $300,000.00 | 102515 | 0 |
| 6 | 01/10/2005 | QCD | Quit Claim Deed | CISNEROS, MARIA | CISNEROS, MAURICIO | 0 | 0 | $0.00 | 102516 | 0 |
| 7 | 02/16/1999 | SWD | Statutory Warranty Deed | SARAN, MARK P | PERSON FAMILY TRUST | 0 | 0 | $135,000.00 | 86362 | 0 |
Payout Agreement
| No payout information available.. |