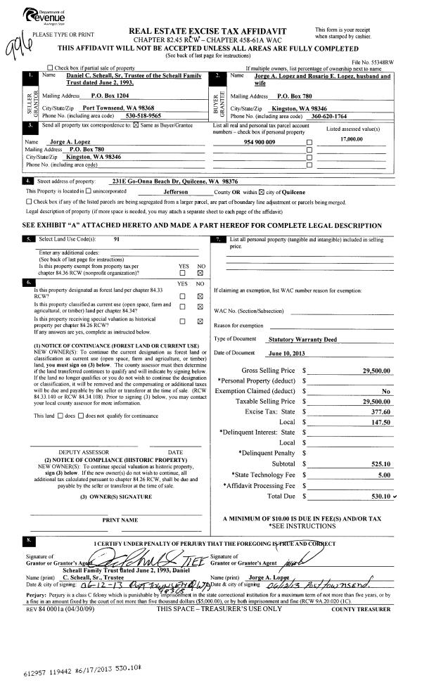
Property
Account |
| Property ID: | 37864 | Abbreviated Legal Description: | AL PETTYGROVE ADDITION BLK 7 LOT 6 |
| Parcel # / Geo ID: | 984600705 | Agent Code: | |
| Type: | Real | | |
| Tax Area: | 0110 - C-50F1E1H2 | Land Use Code | 11 |
| Open Space: | N | DFL | N |
| Historic Property: | N | Remodel Property: | N |
| Multi-Family Redevelopment: | N | | |
| Township: | 30N | Section: | 2 |
| Range: | 1W |
Location |
| Address: | 825 COSGROVE ST PORT TOWNSEND, WA 98368 | Mapsco: | 089/034 |
| Neighborhood: | AL PETTYGROVE'S SMITH'S & DRUMMOND'S | Map ID: | |
| Neighborhood CD: | 6310 |
Owner |
| Name: | ROBERT ELLIOTT & JENNA TERRY | Owner ID: | 92188 |
| Mailing Address: | 1114 FERN AVE WALLA WALLA, WA 99362-3856 | % Ownership: | 100.0000000000% |
| | | Exemptions: | |
Pay Tax Due
There is currently No Amount Due on this property.
Taxes and Assessment Details
Property Tax Information as of
10/24/2025
Click on "Statement Details" to expand or collapse a tax statement.
* Please enter a valid date ** Please enter a valid date *
Statement Details |
| | TOTAL: | $0.00 | $0.00 | $0.00 | $0.00 | $0.00 | $0.00 |
|
| | $0.00 | $0.00 | $0.00 | $0.00 | $0.00 | $0.00 |
Values
| (+) Improvement Homesite Value: | + | $0 | |
| (+) Improvement Non-Homesite Value: | + | $362,000 | |
| (+) Land Homesite Value: | + | $0 | |
| (+) Land Non-Homesite Value: | + | $280,000 | |
| (+) Curr Use (HS): | + | $0 | $0 |
| (+) Curr Use (NHS): | + | $0 | $0 |
| | | -------------------------- | |
| (=) Market Value: | = | $642,000 | |
| (–) Productivity Loss: | – | $0 | |
| | | -------------------------- | |
| (=) Subtotal: | = | $642,000 | |
| (+) Senior Appraised Value: | + | $0 | |
| (+) Non-Senior Appraised Value: | + | $642,000 | |
| | | -------------------------- | |
| (=) Total Appraised Value: | = | $642,000 | |
| (–) Senior Exemption Loss: | – | $0 | |
| (–) Exemption Loss: | – | $0 | |
| | | -------------------------- | |
| (=) Taxable Value: | = | $642,000 | |
Taxing Jurisdiction
| Owner: | ROBERT ELLIOTT & JENNA TERRY | | |
| % Ownership: | 100.0000000000% | | |
| Total Value: | N/A | | |
| Tax Area: | 0110 - C-50F1E1H2 |
| CE | COUNTY CURRENT EXPENSE | N/A | N/A | N/A | N/A | | |
| CNTYDD | DEVELOPMENTAL DISABILITIES | N/A | N/A | N/A | N/A | | |
| CNTYVET | VETERANS RELIEF | N/A | N/A | N/A | N/A | | |
| MENTAL | MENTAL HEALTH | N/A | N/A | N/A | N/A | | |
| PTGEN | CITY OF PT GENERAL | N/A | N/A | N/A | N/A | | |
| PTLLL | CITY OF PT - LIBRARY LID LIFT | N/A | N/A | N/A | N/A | | |
| PTMVBOND | CITY OF PT MV BOND | N/A | N/A | N/A | N/A | | |
| HOSP2CASH | HOSP DIST #2 GENERAL | N/A | N/A | N/A | N/A | | |
| SCH50BOND | SCHOOL DIST #50 BOND 2016 | N/A | N/A | N/A | N/A | | |
| SCH50CP | SCHOOL DIST #50 CAP PROJ | N/A | N/A | N/A | N/A | | |
| SCH50MO | SCHOOL DIST #50 EP & O | N/A | N/A | N/A | N/A | | |
| CONSERVE | CONSERVATION FUTURES | N/A | N/A | N/A | N/A | | |
| EMS1 | FIRE DIST #1 EMS | N/A | N/A | N/A | N/A | | |
| FD1 | FIRE DIST #1 GENERAL | N/A | N/A | N/A | N/A | | |
| PORTPT | PORT OF PT GENERAL | N/A | N/A | N/A | N/A | | |
| PORTPTIDD | PORT OF PT IDD 2019 | N/A | N/A | N/A | N/A | | |
| PUD1 | PUD #1 GENERAL | N/A | N/A | N/A | N/A | | |
| STATE | STATE SCHOOL PART 1 | N/A | N/A | N/A | N/A | | |
| STATE2 | STATE SCHOOL PART 2 | N/A | N/A | N/A | N/A | | |
| | Total Tax Rate: | N/A | | | | | |
| | | | | Taxes w/Current Exemptions: | N/A | | |
| | | | | Taxes w/o Exemptions: | N/A | | |
Improvement / Building
| Improvement #1: | Residential Bldg | State Code: | 11 | 1245.0 sqft | Value: | $362,000 |
| Bathrooms (#): | 2 (FULL) | Bedrooms (#): | 3 | | Exterior Wall: | SI/ST | Fireplace: | SIN 1-GOOD | | Floor Construction: | FRAME | Foundation: | CONPR | | Heating/Cooling: | HTWTR | Inside Verify: | YES-FIX | | Roof Cover: | COMP |   |   |
|
| | Type | Description | Class CD | Sub Class CD | Year Built | Area |
| | MA | Main Area | 4 | 1S | 1967 | 1245.0 |
| | HWPOR | House Wood Porch | 4 | * | 1967 | 143.0 |
| | HCPOR | House Concrete Porch | 4 | * | 1967 | 112.0 |
| | GATT | House Attached Garage | 4 | 1S | 1967 | 276.0 |
| | BSMTF | House basement finished | 4 | * | 1967 | 677.0 |
| | CONCD | Concrete Drive | 4 | * | 1967 | 132.0 |
Sketch
Property Image
Land
| 1 | 6310-1155L | Uptown Std Lot (View Area) | 0.0000 | 0.00 | 0.00 | 0.00 | 1.00 | $280,000 | $0 |
Roll Value History
| 2025 | N/A | N/A | N/A | N/A | N/A |
| 2024 | $338,501 | $275,000 | $0 | $613,501 | $613,501 |
| 2023 | $324,961 | $257,250 | $0 | $582,211 | $582,211 |
| 2022 | $297,881 | $240,000 | $0 | $537,881 | $537,881 |
| 2021 | $249,064 | $225,000 | $0 | $474,064 | $474,064 |
Deed and Sales History
| 1 | 07/07/2014 | SWD | Statutory Warranty Deed | DANIEL ZIMM | ROBERT ELLIOTT & JENNA TERRY | | | $326,000.00 | 121518 | |
| 2 | 08/07/1996 | SWD | Statutory Warranty Deed | THIMGAN, MARCELLE | ZIMM, DANIEL/DILLON, YVONNE | 0 | 0 | $175,500.00 | 80246 | 0 |
| 3 | 03/03/1994 | QCD | Quit Claim Deed | STRANAHAN, STEPHEN S | STRANAHAN, MARCELLE | 0 | 0 | $0.00 | 73612 | 0 |
| 4 | 03/17/1993 | SWD | Statutory Warranty Deed | WILLIAMS, DAVID R/CRIS | STRANAHAN, STEPHEN S/MARCELLE | 0 | 0 | $167,000.00 | 70762 | 0 |
Payout Agreement
| No payout information available.. |