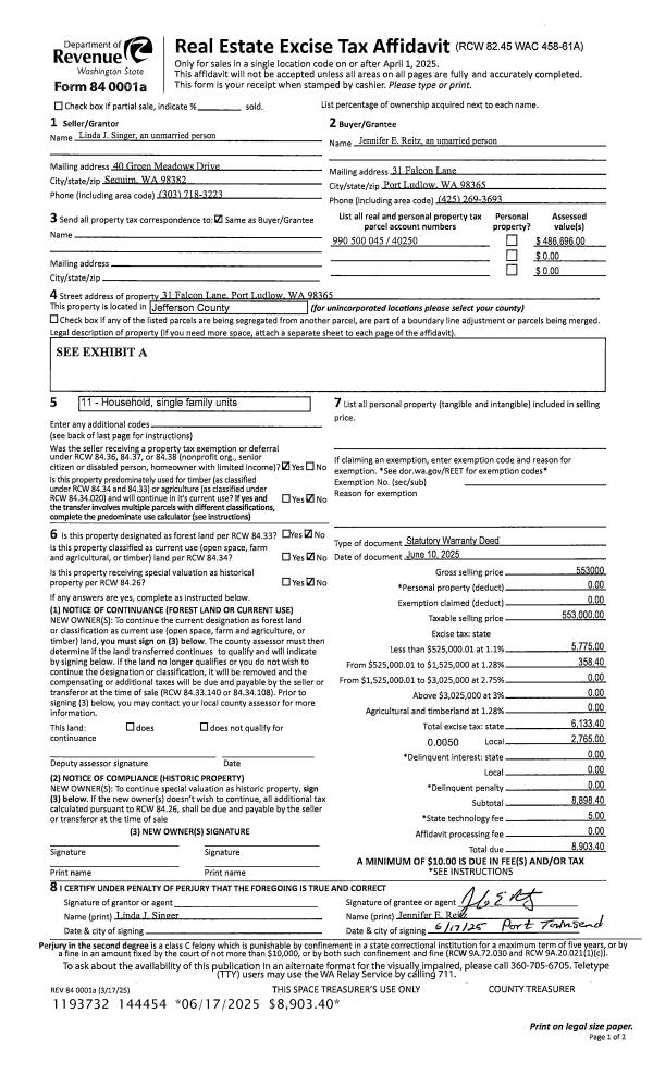
Property
Account |
| Property ID: | 37878 | Abbreviated Legal Description: | AL PETTYGROVE ADDITION BLK 11 LOT 1 |
| Parcel # / Geo ID: | 984601101 | Agent Code: | |
| Type: | Real | | |
| Tax Area: | 0110 - C-50F1E1H2 | Land Use Code | 11 |
| Open Space: | N | DFL | N |
| Historic Property: | N | Remodel Property: | N |
| Multi-Family Redevelopment: | N | | |
| Township: | 30N | Section: | 2 |
| Range: | 1W |
Location |
| Address: | 1323 JACKSON ST PORT TOWNSEND, WA 98368 | Mapsco: | 090/023 |
| Neighborhood: | AL PETTYGROVE'S SMITH'S & DRUMMOND'S | Map ID: | |
| Neighborhood CD: | 6310 |
Owner |
| Name: | DAVID & BRYNN I WALTERS | Owner ID: | 108837 |
| Mailing Address: | 1323 JACKSON ST PORT TOWNSEND, WA 98368-4500 | % Ownership: | 100.0000000000% |
| | | Exemptions: | |
Pay Tax Due
There is currently No Amount Due on this property.
Taxes and Assessment Details
Property Tax Information as of
10/24/2025
Click on "Statement Details" to expand or collapse a tax statement.
* Please enter a valid date ** Please enter a valid date *
Statement Details |
| | TOTAL: | $0.00 | $0.00 | $0.00 | $0.00 | $0.00 | $0.00 |
|
| | $0.00 | $0.00 | $0.00 | $0.00 | $0.00 | $0.00 |
Values
| (+) Improvement Homesite Value: | + | $0 | |
| (+) Improvement Non-Homesite Value: | + | $943,586 | |
| (+) Land Homesite Value: | + | $0 | |
| (+) Land Non-Homesite Value: | + | $305,000 | |
| (+) Curr Use (HS): | + | $0 | $0 |
| (+) Curr Use (NHS): | + | $0 | $0 |
| | | -------------------------- | |
| (=) Market Value: | = | $1,248,586 | |
| (–) Productivity Loss: | – | $0 | |
| | | -------------------------- | |
| (=) Subtotal: | = | $1,248,586 | |
| (+) Senior Appraised Value: | + | $0 | |
| (+) Non-Senior Appraised Value: | + | $1,248,586 | |
| | | -------------------------- | |
| (=) Total Appraised Value: | = | $1,248,586 | |
| (–) Senior Exemption Loss: | – | $0 | |
| (–) Exemption Loss: | – | $0 | |
| | | -------------------------- | |
| (=) Taxable Value: | = | $1,248,586 | |
Taxing Jurisdiction
| Owner: | DAVID & BRYNN I WALTERS | | |
| % Ownership: | 100.0000000000% | | |
| Total Value: | N/A | | |
| Tax Area: | 0110 - C-50F1E1H2 |
| CE | COUNTY CURRENT EXPENSE | N/A | N/A | N/A | N/A | | |
| CNTYDD | DEVELOPMENTAL DISABILITIES | N/A | N/A | N/A | N/A | | |
| CNTYVET | VETERANS RELIEF | N/A | N/A | N/A | N/A | | |
| MENTAL | MENTAL HEALTH | N/A | N/A | N/A | N/A | | |
| PTGEN | CITY OF PT GENERAL | N/A | N/A | N/A | N/A | | |
| PTLLL | CITY OF PT - LIBRARY LID LIFT | N/A | N/A | N/A | N/A | | |
| PTMVBOND | CITY OF PT MV BOND | N/A | N/A | N/A | N/A | | |
| HOSP2CASH | HOSP DIST #2 GENERAL | N/A | N/A | N/A | N/A | | |
| SCH50BOND | SCHOOL DIST #50 BOND 2016 | N/A | N/A | N/A | N/A | | |
| SCH50CP | SCHOOL DIST #50 CAP PROJ | N/A | N/A | N/A | N/A | | |
| SCH50MO | SCHOOL DIST #50 EP & O | N/A | N/A | N/A | N/A | | |
| CONSERVE | CONSERVATION FUTURES | N/A | N/A | N/A | N/A | | |
| EMS1 | FIRE DIST #1 EMS | N/A | N/A | N/A | N/A | | |
| FD1 | FIRE DIST #1 GENERAL | N/A | N/A | N/A | N/A | | |
| PORTPT | PORT OF PT GENERAL | N/A | N/A | N/A | N/A | | |
| PORTPTIDD | PORT OF PT IDD 2019 | N/A | N/A | N/A | N/A | | |
| PUD1 | PUD #1 GENERAL | N/A | N/A | N/A | N/A | | |
| STATE | STATE SCHOOL PART 1 | N/A | N/A | N/A | N/A | | |
| STATE2 | STATE SCHOOL PART 2 | N/A | N/A | N/A | N/A | | |
| | Total Tax Rate: | N/A | | | | | |
| | | | | Taxes w/Current Exemptions: | N/A | | |
| | | | | Taxes w/o Exemptions: | N/A | | |
Improvement / Building
| Improvement #1: | Residential Bldg | State Code: | 11 | 2018.5 sqft | Value: | $943,586 |
| Bathrooms (#): | 2 (FULL) | Bathrooms (#): | 1 (HALF) | | Bedrooms (#): | 2 | Exterior Wall: | SI/ST | | Fireplace: | SIN 1-GOOD | Floor Construction: | FRAME | | Foundation: | CONPR | Heating/Cooling: | HTWTR | | Roof Cover: | COMP |   |   |
|
| | Type | Description | Class CD | Sub Class CD | Year Built | Area |
| | MA | Main Area | 6- | 1S | 2011 | 2018.5 |
| | HCPOR | House Concrete Porch | 5 | * | 2011 | 269.0 |
| | HDECK | House Deck | 5 | * | 2011 | 427.1 |
| | GDET | Detached Garage | 5 | 1S | 2011 | 660.0 |
| | HRPO | House Roof Patio | 5 | * | 2011 | 88.0 |
| | CONCD | Concrete Drive | 5 | * | 2011 | 520.3 |
Sketch
Property Image
Land
| 1 | 6310-1145L | Uptown Std Lot (Good View Area) | 0.0000 | 0.00 | 0.00 | 0.00 | 1.00 | $305,000 | $0 |
Roll Value History
| 2025 | N/A | N/A | N/A | N/A | N/A |
| 2024 | $802,820 | $308,000 | $0 | $1,110,820 | $1,110,820 |
| 2023 | $770,707 | $288,750 | $0 | $1,059,457 | $1,059,457 |
| 2022 | $697,034 | $270,000 | $0 | $967,034 | $967,034 |
| 2021 | $582,804 | $243,750 | $0 | $826,554 | $826,554 |
Deed and Sales History
| 1 | 05/10/2023 | SWD | Statutory Warranty Deed | PAUL EISENHARDT TSTE | DAVID & BRYNN I WALTERS | | | $1,550,000.00 | 140903 | |
|   | |
| 2 | 01/28/2011 | SWD | Statutory Warranty Deed | EISENHARDT, PAUL/ELIZABET | EISENHARDT, PAUL/ELIZABETH CHA | 0 | 0 | $0.00 | 115513 | 0 |
| 3 | 01/11/2010 | SWD | Statutory Warranty Deed | LITTLE, S ALEX/ABIGAIL L | EISENHARDT, PAUL/ELIZABETH | 0 | 0 | $515,000.00 | 113953 | 0 |
|   | |
Payout Agreement
| No payout information available.. |