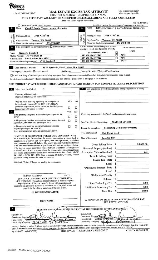
Property
Account |
| Property ID: | 37893 | Abbreviated Legal Description: | AL PETTYGROVE ADDITION BLK 14 LOTS 3 & 4 |
| Parcel # / Geo ID: | 984601402 | Agent Code: | |
| Type: | Real | | |
| Tax Area: | 0110 - C-50F1E1H2 | Land Use Code | 11 |
| Open Space: | N | DFL | N |
| Historic Property: | N | Remodel Property: | N |
| Multi-Family Redevelopment: | N | | |
| Township: | 30N | Section: | 2 |
| Range: | 1W |
Location |
| Address: | 412 FOSTER ST PORT TOWNSEND, WA 98368 | Mapsco: | 090/049 |
| Neighborhood: | AL PETTYGROVE'S SMITH'S & DRUMMOND'S | Map ID: | |
| Neighborhood CD: | 6310 |
Owner |
| Name: | CHARLES & LUAN B BORGESON | Owner ID: | 109700 |
| Mailing Address: | 412 FOSTER ST PORT TOWNSEND, WA 98368-4312 | % Ownership: | 100.0000000000% |
| | | Exemptions: | |
Pay Tax Due
There is currently No Amount Due on this property.
Taxes and Assessment Details
Property Tax Information as of
10/24/2025
Click on "Statement Details" to expand or collapse a tax statement.
* Please enter a valid date ** Please enter a valid date *
Statement Details |
| | TOTAL: | $0.00 | $0.00 | $0.00 | $0.00 | $0.00 | $0.00 |
|
| | $0.00 | $0.00 | $0.00 | $0.00 | $0.00 | $0.00 |
Values
| (+) Improvement Homesite Value: | + | $0 | |
| (+) Improvement Non-Homesite Value: | + | $1,018,535 | |
| (+) Land Homesite Value: | + | $0 | |
| (+) Land Non-Homesite Value: | + | $442,500 | |
| (+) Curr Use (HS): | + | $0 | $0 |
| (+) Curr Use (NHS): | + | $0 | $0 |
| | | -------------------------- | |
| (=) Market Value: | = | $1,461,035 | |
| (–) Productivity Loss: | – | $0 | |
| | | -------------------------- | |
| (=) Subtotal: | = | $1,461,035 | |
| (+) Senior Appraised Value: | + | $0 | |
| (+) Non-Senior Appraised Value: | + | $1,461,035 | |
| | | -------------------------- | |
| (=) Total Appraised Value: | = | $1,461,035 | |
| (–) Senior Exemption Loss: | – | $0 | |
| (–) Exemption Loss: | – | $0 | |
| | | -------------------------- | |
| (=) Taxable Value: | = | $1,461,035 | |
Taxing Jurisdiction
| Owner: | CHARLES & LUAN B BORGESON | | |
| % Ownership: | 100.0000000000% | | |
| Total Value: | N/A | | |
| Tax Area: | 0110 - C-50F1E1H2 |
| CE | COUNTY CURRENT EXPENSE | N/A | N/A | N/A | N/A | | |
| CNTYDD | DEVELOPMENTAL DISABILITIES | N/A | N/A | N/A | N/A | | |
| CNTYVET | VETERANS RELIEF | N/A | N/A | N/A | N/A | | |
| MENTAL | MENTAL HEALTH | N/A | N/A | N/A | N/A | | |
| PTGEN | CITY OF PT GENERAL | N/A | N/A | N/A | N/A | | |
| PTLLL | CITY OF PT - LIBRARY LID LIFT | N/A | N/A | N/A | N/A | | |
| PTMVBOND | CITY OF PT MV BOND | N/A | N/A | N/A | N/A | | |
| HOSP2CASH | HOSP DIST #2 GENERAL | N/A | N/A | N/A | N/A | | |
| SCH50BOND | SCHOOL DIST #50 BOND 2016 | N/A | N/A | N/A | N/A | | |
| SCH50CP | SCHOOL DIST #50 CAP PROJ | N/A | N/A | N/A | N/A | | |
| SCH50MO | SCHOOL DIST #50 EP & O | N/A | N/A | N/A | N/A | | |
| CONSERVE | CONSERVATION FUTURES | N/A | N/A | N/A | N/A | | |
| EMS1 | FIRE DIST #1 EMS | N/A | N/A | N/A | N/A | | |
| FD1 | FIRE DIST #1 GENERAL | N/A | N/A | N/A | N/A | | |
| PORTPT | PORT OF PT GENERAL | N/A | N/A | N/A | N/A | | |
| PORTPTIDD | PORT OF PT IDD 2019 | N/A | N/A | N/A | N/A | | |
| PUD1 | PUD #1 GENERAL | N/A | N/A | N/A | N/A | | |
| STATE | STATE SCHOOL PART 1 | N/A | N/A | N/A | N/A | | |
| STATE2 | STATE SCHOOL PART 2 | N/A | N/A | N/A | N/A | | |
| | Total Tax Rate: | N/A | | | | | |
| | | | | Taxes w/Current Exemptions: | N/A | | |
| | | | | Taxes w/o Exemptions: | N/A | | |
Improvement / Building
| Improvement #1: | Residential Bldg | State Code: | 11 | 2061.5 sqft | Value: | $1,018,535 |
| Bathrooms (#): | 1 (FULL) | Bathrooms (#): | 1 (HALF) | | Bedrooms (#): | 3 | Exterior Wall: | SI/ST | | Fireplace: | DBL 2-GOOD | Floor Construction: | FRAME | | Foundation: | CONPR | Heating/Cooling: | HTWTR | | Inside Verify: | YES-FIX | Roof Cover: | COMP |
|
| | Type | Description | Class CD | Sub Class CD | Year Built | Area |
| | MA | Main Area | 6 | 2S | 2004 | 1615.5 |
| | MA2 | Second Floor Main Area | 6 | 2S | 2004 | 446.0 |
| | PATIO | House Patio | 5 | * | 2004 | 93.1 |
| | HCPOR | House Concrete Porch | 5 | * | 2004 | 77.2 |
| | HDECK | House Deck | 5 | * | 2004 | 50.0 |
| | GBSMT | Basement Garage | 5 | 2S | 2004 | 644.0 |
| | CARPTF | Carport W/Floor | 5 | * | 2004 | 380.0 |
| | SHED | Shed (Table Not Dep) | 3 | * | 2004 | 120.0 |
| | BSMTF | House basement finished | 6 | * | 2004 | 943.3 |
| | ASPHD | Asphalt Drive | 3 | * | 2004 | 699.1 |
Sketch
Property Image
Land
| 1 | 6310-1145L | Uptown Std Lot (Good View Area) | 0.0000 | 0.00 | 0.00 | 0.00 | 1.00 | $305,000 | $0 |
| 2 | 6310-1145L | Uptown Std Lot (Good View Area) | 0.0000 | 0.00 | 0.00 | 0.00 | 1.00 | $137,500 | $0 |
Roll Value History
| 2025 | N/A | N/A | N/A | N/A | N/A |
| 2024 | $948,241 | $445,500 | $0 | $1,393,741 | $1,393,741 |
| 2023 | $910,312 | $420,000 | $0 | $1,330,312 | $1,330,312 |
| 2022 | $834,452 | $395,000 | $0 | $1,229,452 | $1,229,452 |
| 2021 | $697,702 | $356,250 | $0 | $1,053,952 | $1,053,952 |
Deed and Sales History
| 1 | 09/13/2023 | SWD | Statutory Warranty Deed | GAVIN FAMILY TRUST | CHARLES & LUAN B BORGESON | | | $1,599,000.00 | 141579 | |
| 2 | 01/10/2020 | QCD | Quit Claim Deed | TAINE & BRIAN GAVIN | GAVIN FAMILY TRUST | | | | 133937 | ` |
| 3 | 08/09/2017 | SWD | Statutory Warranty Deed | GLENN E STALEY TRSTEE | TAINE & BRIAN GAVIN | | | $875,000.00 | 128341 | |
| 4 | 07/19/2012 | SWD | Statutory Warranty Deed | STALEY, GLENN/PEGGY | STALEY TRUST | 0 | 0 | $0.00 | 118207 | 0 |
| 5 | 07/19/2012 | SWD | Statutory Warranty Deed | STALEY, GLENN/PEGGY TRUST | STALEY, GLENN/PEGGY | 0 | 0 | $0.00 | 118205 | 0 |
| 6 | 04/21/2009 | QCD | Quit Claim Deed | STALEY, GLENN E/PEGGY A | STALEY 09 DECL TRUST | | | $0.00 | 112802 | 0 |
| 7 | 12/16/2002 | SWD | Statutory Warranty Deed | SOFIE, VIRGINIA J ESTATE | STALEY, GLENN E & PEGGY A | 0 | 0 | $385,000.00 | 96229 | 0 |
Payout Agreement
| No payout information available.. |