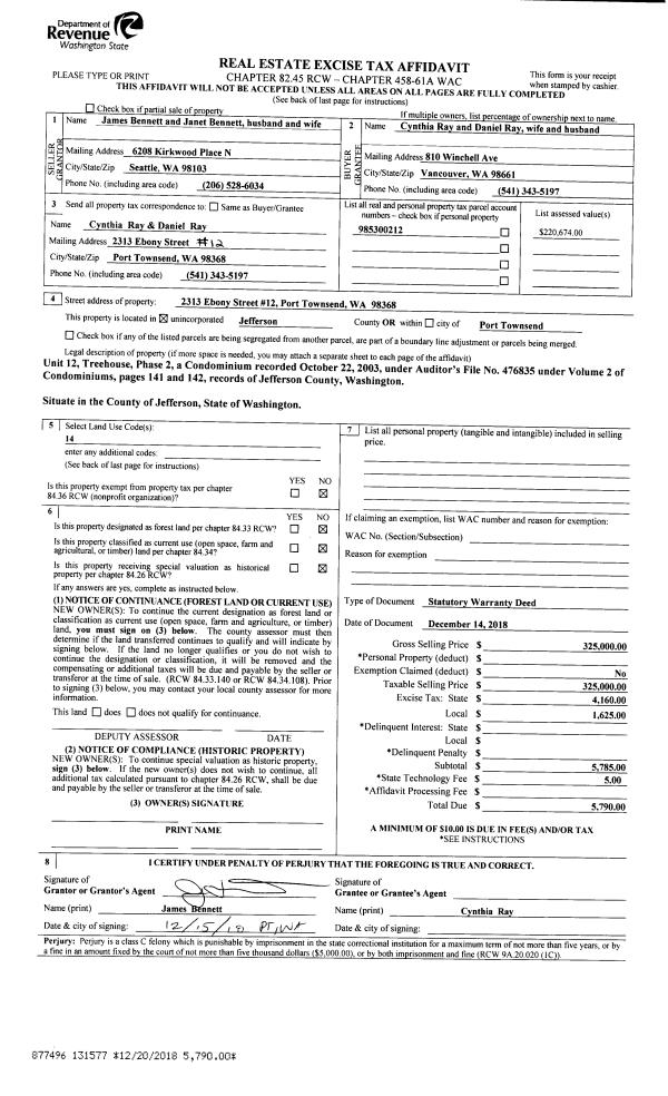
Property
Account |
| Property ID: | 37911 | Abbreviated Legal Description: | AL PETTYGROVE ADDITION BLK 18(TAX 191) BND TGTH THRU LLA#104322 SUBJ/EASE |
| Parcel # / Geo ID: | 984601802 | Agent Code: | |
| Type: | Real | | |
| Tax Area: | 0110 - C-50F1E1H2 | Land Use Code | 11 |
| Open Space: | N | DFL | N |
| Historic Property: | N | Remodel Property: | N |
| Multi-Family Redevelopment: | N | | |
| Township: | 30N | Section: | 2 |
| Range: | 1W |
Location |
| Address: | 1535 CLALLAM ST PORT TOWNSEND, WA 98368 | Mapsco: | 091/018 |
| Neighborhood: | AL PETTYGROVE'S SMITH'S & DRUMMOND'S | Map ID: | |
| Neighborhood CD: | 6310 |
Owner |
| Name: | CHRISTOPHER & ERIN KLUCK | Owner ID: | 110346 |
| Mailing Address: | PO BOX 1771 PORT TOWNSEND, WA 98368-0190 | % Ownership: | 100.0000000000% |
| | | Exemptions: | |
Pay Tax Due
There is currently No Amount Due on this property.
Taxes and Assessment Details
Property Tax Information as of
10/24/2025
Click on "Statement Details" to expand or collapse a tax statement.
* Please enter a valid date ** Please enter a valid date *
Statement Details |
| | TOTAL: | $0.00 | $0.00 | $0.00 | $0.00 | $0.00 | $0.00 |
|
| | $0.00 | $0.00 | $0.00 | $0.00 | $0.00 | $0.00 |
Values
| (+) Improvement Homesite Value: | + | $0 | |
| (+) Improvement Non-Homesite Value: | + | $904,355 | |
| (+) Land Homesite Value: | + | $0 | |
| (+) Land Non-Homesite Value: | + | $515,750 | |
| (+) Curr Use (HS): | + | $0 | $0 |
| (+) Curr Use (NHS): | + | $0 | $0 |
| | | -------------------------- | |
| (=) Market Value: | = | $1,420,105 | |
| (–) Productivity Loss: | – | $0 | |
| | | -------------------------- | |
| (=) Subtotal: | = | $1,420,105 | |
| (+) Senior Appraised Value: | + | $0 | |
| (+) Non-Senior Appraised Value: | + | $1,420,105 | |
| | | -------------------------- | |
| (=) Total Appraised Value: | = | $1,420,105 | |
| (–) Senior Exemption Loss: | – | $0 | |
| (–) Exemption Loss: | – | $0 | |
| | | -------------------------- | |
| (=) Taxable Value: | = | $1,420,105 | |
Taxing Jurisdiction
| Owner: | CHRISTOPHER & ERIN KLUCK | | |
| % Ownership: | 100.0000000000% | | |
| Total Value: | N/A | | |
| Tax Area: | 0110 - C-50F1E1H2 |
| CE | COUNTY CURRENT EXPENSE | N/A | N/A | N/A | N/A | | |
| CNTYDD | DEVELOPMENTAL DISABILITIES | N/A | N/A | N/A | N/A | | |
| CNTYVET | VETERANS RELIEF | N/A | N/A | N/A | N/A | | |
| MENTAL | MENTAL HEALTH | N/A | N/A | N/A | N/A | | |
| PTGEN | CITY OF PT GENERAL | N/A | N/A | N/A | N/A | | |
| PTLLL | CITY OF PT - LIBRARY LID LIFT | N/A | N/A | N/A | N/A | | |
| PTMVBOND | CITY OF PT MV BOND | N/A | N/A | N/A | N/A | | |
| HOSP2CASH | HOSP DIST #2 GENERAL | N/A | N/A | N/A | N/A | | |
| SCH50BOND | SCHOOL DIST #50 BOND 2016 | N/A | N/A | N/A | N/A | | |
| SCH50CP | SCHOOL DIST #50 CAP PROJ | N/A | N/A | N/A | N/A | | |
| SCH50MO | SCHOOL DIST #50 EP & O | N/A | N/A | N/A | N/A | | |
| CONSERVE | CONSERVATION FUTURES | N/A | N/A | N/A | N/A | | |
| EMS1 | FIRE DIST #1 EMS | N/A | N/A | N/A | N/A | | |
| FD1 | FIRE DIST #1 GENERAL | N/A | N/A | N/A | N/A | | |
| PORTPT | PORT OF PT GENERAL | N/A | N/A | N/A | N/A | | |
| PORTPTIDD | PORT OF PT IDD 2019 | N/A | N/A | N/A | N/A | | |
| PUD1 | PUD #1 GENERAL | N/A | N/A | N/A | N/A | | |
| STATE | STATE SCHOOL PART 1 | N/A | N/A | N/A | N/A | | |
| STATE2 | STATE SCHOOL PART 2 | N/A | N/A | N/A | N/A | | |
| | Total Tax Rate: | N/A | | | | | |
| | | | | Taxes w/Current Exemptions: | N/A | | |
| | | | | Taxes w/o Exemptions: | N/A | | |
Improvement / Building
| Improvement #1: | Residential Bldg | State Code: | 11 | 3634.5 sqft | Value: | $904,355 |
| Bathrooms (#): | 3 (FULL) | Bathrooms (#): | 1 (HALF) | | Bedrooms (#): | 5 | Exterior Wall: | SI/ST | | Fireplace: | SIN 2-AVG | Fireplace: | WD ST-AVG | | Floor Construction: | FRAME | Foundation: | CONPR | | Heating/Cooling: | HPUMP | Inside Verify: | YES-FIX | | Roof Cover: | COMP |   |   |
|
| | Type | Description | Class CD | Sub Class CD | Year Built | Area |
| | MA | Main Area | 5 | 2S | 1982 | 2033.5 |
| | MA2 | Second Floor Main Area | 5 | 2S | 1982 | 1601.0 |
| | HCPOR | House Concrete Porch | 5 | * | 1982 | 39.0 |
| | HDECK | House Deck | 5 | * | 1982 | 210.0 |
| | GBSMT | Basement Garage | 3 | 2S | 1982 | 778.8 |
| | BSMTF | House basement finished | 3 | * | 1982 | 630.0 |
| | CONCD | Concrete Drive | 3 | * | 1982 | 1232.7 |
| | PATIO | House Patio | 4 | * | 1982 | 80.0 |
Sketch
Property Image
Land
| 1 | 6310-1135F | Bluff Frtg with Unblockable Views | 0.0000 | 0.00 | 0.00 | 0.00 | 0.00 | $320,000 | $0 |
| 2 | 6310-1135F | Bluff Frtg with Unblockable Views | 0.0000 | 0.00 | 0.00 | 0.00 | 0.00 | $195,750 | $0 |
Roll Value History
| 2025 | N/A | N/A | N/A | N/A | N/A |
| 2024 | $912,835 | $512,050 | $0 | $1,424,885 | $1,424,885 |
| 2023 | $709,530 | $483,525 | $0 | $1,193,055 | $1,193,055 |
| 2022 | $650,403 | $455,500 | $0 | $1,105,903 | $1,105,903 |
| 2021 | $543,815 | $445,875 | $0 | $989,690 | $989,690 |
Deed and Sales History
| 1 | 01/24/2024 | PRD | Personal Representatives Deed | NANCY L SMEE | CHRISTOPHER & ERIN KLUCK | | | $1,420,000.00 | 142188 | |
| 2 | 06/17/2020 | QCD | Quit Claim Deed | RODNEY GEHRKE & NANCY SMEE | NANCY L SMEE | | | | 134511 | |
| 3 | 04/12/2019 | SWD | Statutory Warranty Deed | GARY F ROE | RODNEY GEHRKE & NANCY SMEE | | | $1,110,000.00 | 132297 | |
| 4 | 04/21/2006 | SWD | Statutory Warranty Deed | HOLLOWAY III, HARRY/LUCIL | ROE, GARY F/GRACE M | | | $820,000.00 | 106504 | 0 |
| 5 | 07/22/2005 | BLA | Boundary Line Adjustment | HOLLOWAY III, HARRY | HOLLOWAY III, HARRY | | | $0.00 | 104322 | 0 |
| 6 | 07/22/2005 | BLA | Boundary Line Adjustment | HOLLOWAY, HARRY III & LUC | HOLLOWAY, HARRY III & LUCI M | | | $0.00 | 104260 | 0 |
| 7 | 01/14/2005 | QCD | Quit Claim Deed | HOLLOWAY III, HARRY/LUCI | HOLLOWAY FAMILY LIVING TRUST | 0 | 0 | $0.00 | 102501 | 0 |
Payout Agreement
| No payout information available.. |