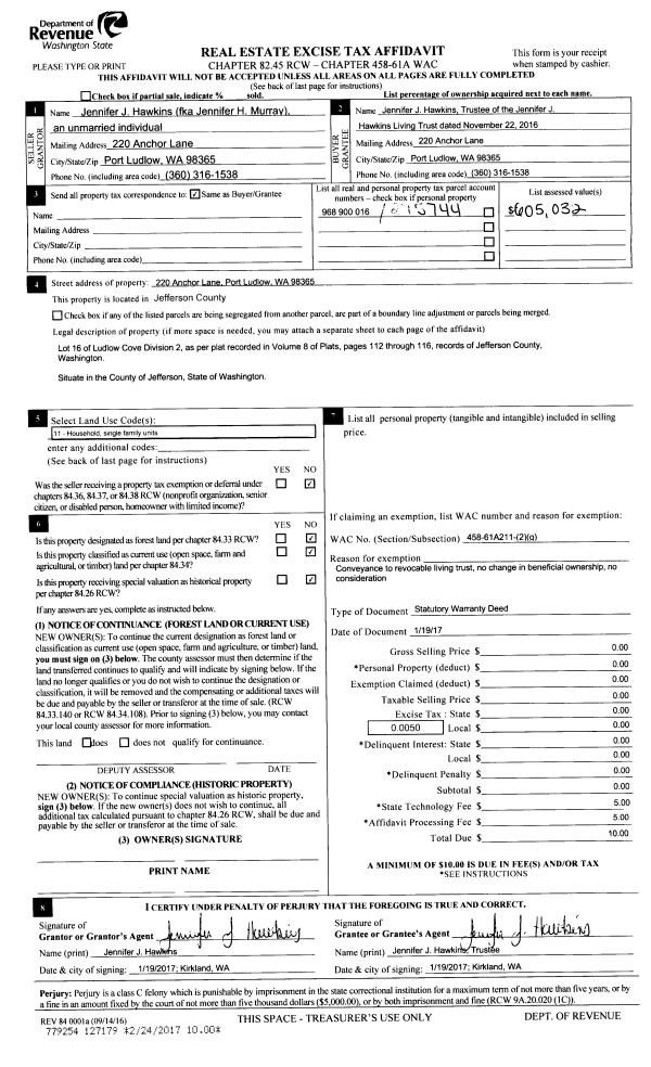
Property
Account |
| Property ID: | 37944 | Abbreviated Legal Description: | PETTYGROVE'S 1ST ADDITION BLK 1 LOTS 6 & 8 |
| Parcel # / Geo ID: | 984900103 | Agent Code: | |
| Type: | Real | | |
| Tax Area: | 0110 - C-50F1E1H2 | Land Use Code | 13 |
| Open Space: | N | DFL | N |
| Historic Property: | N | Remodel Property: | N |
| Multi-Family Redevelopment: | N | | |
| Township: | 30N | Section: | 2 |
| Range: | 1W |
Location |
| Address: | 730 WILLOW ST PORT TOWNSEND, WA 98368 | Mapsco: | 092/004 |
| Neighborhood: | PETTYGROVES 1ST & PETTYGROVES PARK | Map ID: | |
| Neighborhood CD: | 6300 |
Owner |
| Name: | UPTOWN PT LLC | Owner ID: | 99659 |
| Mailing Address: | 6827 55TH AVE NE SEATTLE, WA 98115 | % Ownership: | 100.0000000000% |
| | | Exemptions: | |
Pay Tax Due
There is currently No Amount Due on this property.
Taxes and Assessment Details
Property Tax Information as of
10/24/2025
Click on "Statement Details" to expand or collapse a tax statement.
* Please enter a valid date ** Please enter a valid date *
Statement Details |
| | TOTAL: | $0.00 | $0.00 | $0.00 | $0.00 | $0.00 | $0.00 |
|
| | $0.00 | $0.00 | $0.00 | $0.00 | $0.00 | $0.00 |
Values
| (+) Improvement Homesite Value: | + | $0 | |
| (+) Improvement Non-Homesite Value: | + | $599,265 | |
| (+) Land Homesite Value: | + | $0 | |
| (+) Land Non-Homesite Value: | + | $160,000 | |
| (+) Curr Use (HS): | + | $0 | $0 |
| (+) Curr Use (NHS): | + | $0 | $0 |
| | | -------------------------- | |
| (=) Market Value: | = | $759,265 | |
| (–) Productivity Loss: | – | $0 | |
| | | -------------------------- | |
| (=) Subtotal: | = | $759,265 | |
| (+) Senior Appraised Value: | + | $0 | |
| (+) Non-Senior Appraised Value: | + | $759,265 | |
| | | -------------------------- | |
| (=) Total Appraised Value: | = | $759,265 | |
| (–) Senior Exemption Loss: | – | $0 | |
| (–) Exemption Loss: | – | $0 | |
| | | -------------------------- | |
| (=) Taxable Value: | = | $759,265 | |
Taxing Jurisdiction
| Owner: | UPTOWN PT LLC | | |
| % Ownership: | 100.0000000000% | | |
| Total Value: | N/A | | |
| Tax Area: | 0110 - C-50F1E1H2 |
| CE | COUNTY CURRENT EXPENSE | N/A | N/A | N/A | N/A | | |
| CNTYDD | DEVELOPMENTAL DISABILITIES | N/A | N/A | N/A | N/A | | |
| CNTYVET | VETERANS RELIEF | N/A | N/A | N/A | N/A | | |
| MENTAL | MENTAL HEALTH | N/A | N/A | N/A | N/A | | |
| PTGEN | CITY OF PT GENERAL | N/A | N/A | N/A | N/A | | |
| PTLLL | CITY OF PT - LIBRARY LID LIFT | N/A | N/A | N/A | N/A | | |
| PTMVBOND | CITY OF PT MV BOND | N/A | N/A | N/A | N/A | | |
| HOSP2CASH | HOSP DIST #2 GENERAL | N/A | N/A | N/A | N/A | | |
| SCH50BOND | SCHOOL DIST #50 BOND 2016 | N/A | N/A | N/A | N/A | | |
| SCH50CP | SCHOOL DIST #50 CAP PROJ | N/A | N/A | N/A | N/A | | |
| SCH50MO | SCHOOL DIST #50 EP & O | N/A | N/A | N/A | N/A | | |
| CONSERVE | CONSERVATION FUTURES | N/A | N/A | N/A | N/A | | |
| EMS1 | FIRE DIST #1 EMS | N/A | N/A | N/A | N/A | | |
| FD1 | FIRE DIST #1 GENERAL | N/A | N/A | N/A | N/A | | |
| PORTPT | PORT OF PT GENERAL | N/A | N/A | N/A | N/A | | |
| PORTPTIDD | PORT OF PT IDD 2019 | N/A | N/A | N/A | N/A | | |
| PUD1 | PUD #1 GENERAL | N/A | N/A | N/A | N/A | | |
| STATE | STATE SCHOOL PART 1 | N/A | N/A | N/A | N/A | | |
| STATE2 | STATE SCHOOL PART 2 | N/A | N/A | N/A | N/A | | |
| | Total Tax Rate: | N/A | | | | | |
| | | | | Taxes w/Current Exemptions: | N/A | | |
| | | | | Taxes w/o Exemptions: | N/A | | |
Improvement / Building
| Improvement #1: | Residential Bldg | State Code: | 13 | 3200.0 sqft | Value: | $599,265 |
| Bathrooms (#): | 1 (FULL) | Bedrooms (#): | 2 | | Exterior Wall: | SI/ST | Floor Construction: | FRAME | | Foundation: | CONPR | Heating/Cooling: | ELBB | | Roof Cover: | COMP |   |   |
|
| | Type | Description | Class CD | Sub Class CD | Year Built | Area |
| | MA | Main Area | 4+ | D2S | 1966 | 1600.0 |
| | MA2 | Second Floor Main Area | 4+ | D2S | 1966 | 1600.0 |
Sketch
Property Image
Land
| 1 | 6300-3275Q | Apartments and Multi-Use Parcels | 0.2296 | 10000.00 | 0.00 | 0.00 | 0.00 | $160,000 | $0 |
Roll Value History
| 2025 | N/A | N/A | N/A | N/A | N/A |
| 2024 | $576,795 | $165,000 | $0 | $741,795 | $741,795 |
| 2023 | $553,723 | $152,250 | $0 | $705,973 | $705,973 |
| 2022 | $530,651 | $140,000 | $0 | $670,651 | $670,651 |
| 2021 | $446,676 | $137,500 | $0 | $584,176 | $584,176 |
Deed and Sales History
| 1 | 07/27/2018 | SWD | Statutory Warranty Deed | RICHARD A JR & BEVERLY STAPF | UPTOWN PT LLC | | | $615,500.00 | 130714 | |
| 2 | 07/27/2017 | SWD | Statutory Warranty Deed | RUTH KVINSLAND TRSTE | RICHARD A JR & BEVERLY STAPF | | | $475,000.00 | 128246 | |
| 3 | 03/29/2011 | QCD | Quit Claim Deed | KVINSLAND, RUTH | KVINSLAND TRUST, RUTH E | 0 | 0 | $0.00 | 115772 | 0 |
| 4 | 07/11/2007 | QCD | Quit Claim Deed | STAPF FAMILY TRUST | KVINSLAND, RUTH/STAPF, RICHARD | | | $0.00 | 109598 | 0 |
Payout Agreement
| No payout information available.. |