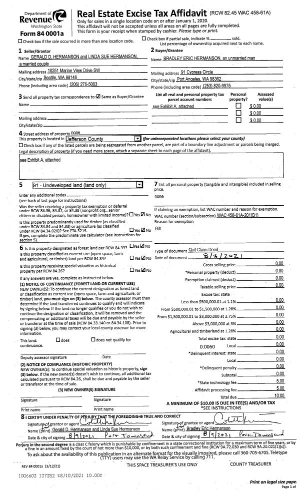
Property
Account |
| Property ID: | 37948 | Abbreviated Legal Description: | PETTYGROVE'S 1ST ADDITION BLK 2 LOTS 2 & 4(LS S30') SUBJ/EASE |
| Parcel # / Geo ID: | 984900205 | Agent Code: | |
| Type: | Real | | |
| Tax Area: | 0110 - C-50F1E1H2 | Land Use Code | 11 |
| Open Space: | N | DFL | N |
| Historic Property: | N | Remodel Property: | N |
| Multi-Family Redevelopment: | N | | |
| Township: | 30N | Section: | 2 |
| Range: | 1W |
Location |
| Address: | 733 WILLOW ST PORT TOWNSEND, WA 98368 | Mapsco: | 092/006 |
| Neighborhood: | PETTYGROVES 1ST & PETTYGROVES PARK | Map ID: | |
| Neighborhood CD: | 6300 |
Owner |
| Name: | UPTOWN PT LLC | Owner ID: | 99659 |
| Mailing Address: | 6827 55TH AVE NE SEATTLE, WA 98115 | % Ownership: | 100.0000000000% |
| | | Exemptions: | |
Pay Tax Due
There is currently No Amount Due on this property.
Taxes and Assessment Details
Property Tax Information as of
10/24/2025
Click on "Statement Details" to expand or collapse a tax statement.
* Please enter a valid date ** Please enter a valid date *
Statement Details |
| | TOTAL: | $0.00 | $0.00 | $0.00 | $0.00 | $0.00 | $0.00 |
|
| | $0.00 | $0.00 | $0.00 | $0.00 | $0.00 | $0.00 |
Values
| (+) Improvement Homesite Value: | + | $0 | |
| (+) Improvement Non-Homesite Value: | + | $431,889 | |
| (+) Land Homesite Value: | + | $0 | |
| (+) Land Non-Homesite Value: | + | $150,000 | |
| (+) Curr Use (HS): | + | $0 | $0 |
| (+) Curr Use (NHS): | + | $0 | $0 |
| | | -------------------------- | |
| (=) Market Value: | = | $581,889 | |
| (–) Productivity Loss: | – | $0 | |
| | | -------------------------- | |
| (=) Subtotal: | = | $581,889 | |
| (+) Senior Appraised Value: | + | $0 | |
| (+) Non-Senior Appraised Value: | + | $581,889 | |
| | | -------------------------- | |
| (=) Total Appraised Value: | = | $581,889 | |
| (–) Senior Exemption Loss: | – | $0 | |
| (–) Exemption Loss: | – | $0 | |
| | | -------------------------- | |
| (=) Taxable Value: | = | $581,889 | |
Taxing Jurisdiction
| Owner: | UPTOWN PT LLC | | |
| % Ownership: | 100.0000000000% | | |
| Total Value: | N/A | | |
| Tax Area: | 0110 - C-50F1E1H2 |
| CE | COUNTY CURRENT EXPENSE | N/A | N/A | N/A | N/A | | |
| CNTYDD | DEVELOPMENTAL DISABILITIES | N/A | N/A | N/A | N/A | | |
| CNTYVET | VETERANS RELIEF | N/A | N/A | N/A | N/A | | |
| MENTAL | MENTAL HEALTH | N/A | N/A | N/A | N/A | | |
| PTGEN | CITY OF PT GENERAL | N/A | N/A | N/A | N/A | | |
| PTLLL | CITY OF PT - LIBRARY LID LIFT | N/A | N/A | N/A | N/A | | |
| PTMVBOND | CITY OF PT MV BOND | N/A | N/A | N/A | N/A | | |
| HOSP2CASH | HOSP DIST #2 GENERAL | N/A | N/A | N/A | N/A | | |
| SCH50BOND | SCHOOL DIST #50 BOND 2016 | N/A | N/A | N/A | N/A | | |
| SCH50CP | SCHOOL DIST #50 CAP PROJ | N/A | N/A | N/A | N/A | | |
| SCH50MO | SCHOOL DIST #50 EP & O | N/A | N/A | N/A | N/A | | |
| CONSERVE | CONSERVATION FUTURES | N/A | N/A | N/A | N/A | | |
| EMS1 | FIRE DIST #1 EMS | N/A | N/A | N/A | N/A | | |
| FD1 | FIRE DIST #1 GENERAL | N/A | N/A | N/A | N/A | | |
| PORTPT | PORT OF PT GENERAL | N/A | N/A | N/A | N/A | | |
| PORTPTIDD | PORT OF PT IDD 2019 | N/A | N/A | N/A | N/A | | |
| PUD1 | PUD #1 GENERAL | N/A | N/A | N/A | N/A | | |
| STATE | STATE SCHOOL PART 1 | N/A | N/A | N/A | N/A | | |
| STATE2 | STATE SCHOOL PART 2 | N/A | N/A | N/A | N/A | | |
| | Total Tax Rate: | N/A | | | | | |
| | | | | Taxes w/Current Exemptions: | N/A | | |
| | | | | Taxes w/o Exemptions: | N/A | | |
Improvement / Building
| Improvement #1: | Residential Bldg | State Code: | 11 | 1300.0 sqft | Value: | $431,889 |
| Bathrooms (#): | 2 (FULL) | Bathrooms (#): | 1 (HALF) | | Bedrooms (#): | 3 | Exterior Wall: | SI/ST | | Fireplace: | DBL 2-GOOD | Floor Construction: | FRAME | | Foundation: | CONPR | Heating/Cooling: | ELBB | | Inside Verify: | YES-FIX | Roof Cover: | COMP |
|
| | Type | Description | Class CD | Sub Class CD | Year Built | Area |
| | MA | Main Area | 4 | 1S | 1969 | 1300.0 |
| | HWPOR | House Wood Porch | 4 | * | 1969 | 105.0 |
| | HDECK | House Deck | 4 | * | 1969 | 175.0 |
| | BSMTF | House basement finished | 3 | * | 1969 | 1300.0 |
| | SHED | Shed (Table Not Dep) | 3 | * | 1969 | 0.0 |
Sketch
Property Image
Land
| 1 | 6300-1177L | Pettygroves Area Terr(Fair) | 0.0000 | 0.00 | 0.00 | 0.00 | 1.00 | $130,000 | $0 |
| 2 | 6300-1177L | Pettygroves Area Terr(Fair) | 0.0000 | 0.00 | 0.00 | 0.00 | 1.00 | $20,000 | $0 |
Roll Value History
| 2025 | N/A | N/A | N/A | N/A | N/A |
| 2024 | $412,370 | $151,800 | $0 | $564,170 | $564,170 |
| 2023 | $395,875 | $139,650 | $0 | $535,525 | $535,525 |
| 2022 | $379,380 | $128,000 | $0 | $507,380 | $507,380 |
| 2021 | $319,343 | $96,750 | $0 | $416,093 | $416,093 |
Deed and Sales History
| 1 | 04/15/2022 | QCD | Quit Claim Deed | NATHANIEL BURGESS | UPTOWN PT LLC | | | | 139024 | |
| 2 | 08/26/2020 | QCD | Quit Claim Deed | | | | | | 135079 | |
| 3 | 08/26/2020 | SWD | Statutory Warranty Deed | TERRY L HASSELL | NATHANIEL BURGESS | | | $425,000.00 | 135078 | |
| 4 | 03/01/2007 | SWD | Statutory Warranty Deed | TISMEER TRSTEE, ELIZABETH | HASSELL, TERRY LYNN | 0 | 0 | $310,000.00 | 108813 | 0 |
| 5 | 06/24/2005 | QCD | Quit Claim Deed | TISMEER, ELIZABETH | TISMEER, ELIZABETH, ABRAHM TRU | | | $0.00 | 104065 | 0 |
| 6 | 06/24/2005 | QCD | Quit Claim Deed | THE ABRAHAM TRUST | TISMEER, ELIZABETH | | | $0.00 | 103993 | 0 |
| 7 | 07/08/2004 | SWD | Statutory Warranty Deed | MOGA, TESSIE & GREG | ABRAHAM TRUST | 0 | 0 | $262,000.00 | 100765 | 0 |
| 8 | 09/28/2002 | QCD | Quit Claim Deed | HICKENBOTTOM, JOHN G | HICKENBOTTOM, TEOFISTA C | 0 | 0 | $0.00 | 95649 | 0 |
Payout Agreement
| No payout information available.. |