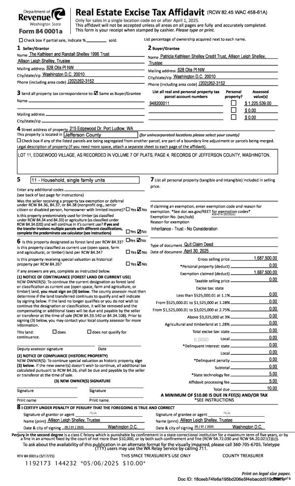
Property
Account |
| Property ID: | 37953 | Abbreviated Legal Description: | PETTYGROVE'S 1ST ADDITION BLK 3 LOT 6 |
| Parcel # / Geo ID: | 984900305 | Agent Code: | |
| Type: | Real | | |
| Tax Area: | 0110 - C-50F1E1H2 | Land Use Code | 11 |
| Open Space: | N | DFL | N |
| Historic Property: | N | Remodel Property: | N |
| Multi-Family Redevelopment: | N | | |
| Township: | 30N | Section: | 2 |
| Range: | 1W |
Location |
| Address: | 851 GTH ST PORT TOWNSEND, WA 98368 | Mapsco: | 092/013 |
| Neighborhood: | PETTYGROVES 1ST & PETTYGROVES PARK | Map ID: | |
| Neighborhood CD: | 6300 |
Owner |
| Name: | RICHARD H JOHNSON TRSTE | Owner ID: | 19262 |
| Mailing Address: | MARTHA JOHNSON TRUSTEE JOHNSON FAMILY LIVING TRS 851 G ST PORT TOWNSEND, WA 98368-5110 | % Ownership: | 100.0000000000% |
| | | Exemptions: | |
Pay Tax Due
There is currently No Amount Due on this property.
Taxes and Assessment Details
Property Tax Information as of
10/24/2025
Click on "Statement Details" to expand or collapse a tax statement.
* Please enter a valid date ** Please enter a valid date *
Statement Details |
| | TOTAL: | $0.00 | $0.00 | $0.00 | $0.00 | $0.00 | $0.00 |
|
| | $0.00 | $0.00 | $0.00 | $0.00 | $0.00 | $0.00 |
Values
| (+) Improvement Homesite Value: | + | $0 | |
| (+) Improvement Non-Homesite Value: | + | $465,909 | |
| (+) Land Homesite Value: | + | $0 | |
| (+) Land Non-Homesite Value: | + | $130,000 | |
| (+) Curr Use (HS): | + | $0 | $0 |
| (+) Curr Use (NHS): | + | $0 | $0 |
| | | -------------------------- | |
| (=) Market Value: | = | $595,909 | |
| (–) Productivity Loss: | – | $0 | |
| | | -------------------------- | |
| (=) Subtotal: | = | $595,909 | |
| (+) Senior Appraised Value: | + | $0 | |
| (+) Non-Senior Appraised Value: | + | $595,909 | |
| | | -------------------------- | |
| (=) Total Appraised Value: | = | $595,909 | |
| (–) Senior Exemption Loss: | – | $0 | |
| (–) Exemption Loss: | – | $0 | |
| | | -------------------------- | |
| (=) Taxable Value: | = | $595,909 | |
Taxing Jurisdiction
| Owner: | RICHARD H JOHNSON TRSTE | | |
| % Ownership: | 100.0000000000% | | |
| Total Value: | N/A | | |
| Tax Area: | 0110 - C-50F1E1H2 |
| CE | COUNTY CURRENT EXPENSE | N/A | N/A | N/A | N/A | | |
| CNTYDD | DEVELOPMENTAL DISABILITIES | N/A | N/A | N/A | N/A | | |
| CNTYVET | VETERANS RELIEF | N/A | N/A | N/A | N/A | | |
| MENTAL | MENTAL HEALTH | N/A | N/A | N/A | N/A | | |
| PTGEN | CITY OF PT GENERAL | N/A | N/A | N/A | N/A | | |
| PTLLL | CITY OF PT - LIBRARY LID LIFT | N/A | N/A | N/A | N/A | | |
| PTMVBOND | CITY OF PT MV BOND | N/A | N/A | N/A | N/A | | |
| HOSP2CASH | HOSP DIST #2 GENERAL | N/A | N/A | N/A | N/A | | |
| SCH50BOND | SCHOOL DIST #50 BOND 2016 | N/A | N/A | N/A | N/A | | |
| SCH50CP | SCHOOL DIST #50 CAP PROJ | N/A | N/A | N/A | N/A | | |
| SCH50MO | SCHOOL DIST #50 EP & O | N/A | N/A | N/A | N/A | | |
| CONSERVE | CONSERVATION FUTURES | N/A | N/A | N/A | N/A | | |
| EMS1 | FIRE DIST #1 EMS | N/A | N/A | N/A | N/A | | |
| FD1 | FIRE DIST #1 GENERAL | N/A | N/A | N/A | N/A | | |
| PORTPT | PORT OF PT GENERAL | N/A | N/A | N/A | N/A | | |
| PORTPTIDD | PORT OF PT IDD 2019 | N/A | N/A | N/A | N/A | | |
| PUD1 | PUD #1 GENERAL | N/A | N/A | N/A | N/A | | |
| STATE | STATE SCHOOL PART 1 | N/A | N/A | N/A | N/A | | |
| STATE2 | STATE SCHOOL PART 2 | N/A | N/A | N/A | N/A | | |
| | Total Tax Rate: | N/A | | | | | |
| | | | | Taxes w/Current Exemptions: | N/A | | |
| | | | | Taxes w/o Exemptions: | N/A | | |
Improvement / Building
| Improvement #1: | Residential Bldg | State Code: | 11 | 1472.0 sqft | Value: | $465,909 |
| Bathrooms (#): | 2 (FULL) | Bedrooms (#): | 2 | | Exterior Wall: | SI/ST | Floor Construction: | FRAME | | Foundation: | CONPR | Heating/Cooling: | F/A | | Roof Cover: | METAL |   |   |
|
| | Type | Description | Class CD | Sub Class CD | Year Built | Area |
| | MA | Main Area | 5 | 15SF | 2007 | 856.0 |
| | MA2 | Second Floor Main Area | 5 | 15SF | 2007 | 616.0 |
| | HWPOR | House Wood Porch | 5 | * | 2007 | 192.0 |
| | HBAL | House Balcony | 5 | * | 2007 | 96.0 |
| | HDECK | House Deck | 5 | * | 2007 | 88.0 |
Sketch
Property Image
Land
| 1 | 6300-1177L | Pettygroves Area Terr(Fair) | 0.0000 | 0.00 | 0.00 | 0.00 | 1.00 | $130,000 | $0 |
Roll Value History
| 2025 | N/A | N/A | N/A | N/A | N/A |
| 2024 | $441,105 | $132,000 | $0 | $573,105 | $573,105 |
| 2023 | $423,461 | $120,750 | $0 | $544,211 | $544,211 |
| 2022 | $405,817 | $110,000 | $0 | $515,817 | $515,817 |
| 2021 | $341,597 | $83,750 | $0 | $425,347 | $425,347 |
Deed and Sales History
| 1 | 05/23/2006 | SWD | Statutory Warranty Deed | KOCH, MARKUS & SILVER, JI | JOHNSON, RICHARD & MARTHA/TRTE | | | $92,500.00 | 106671 | 0 |
| 2 | 08/30/1999 | SWD | Statutory Warranty Deed | TIR CORPORATION | KOCH, MARKUS/SILVER, JILL | 0 | 0 | $30,000.00 | 87717 | 0 |
| 3 | 05/02/1997 | SWD | Statutory Warranty Deed | DICK, STEVEN P/CHRISTINA | T I R CORPORATION | 0 | 0 | $33,000.00 | 81991 | 0 |
Payout Agreement
| No payout information available.. |