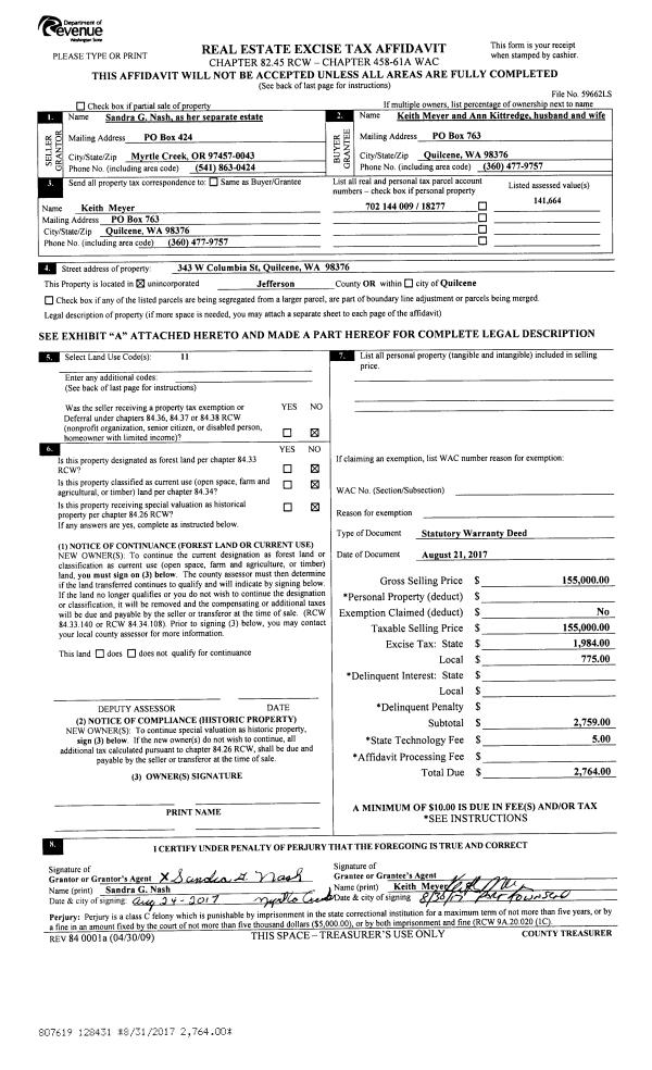
Property
Account |
| Property ID: | 37975 | Abbreviated Legal Description: | PETTYGROVE'S 1ST ADDITION BLK 8 LOTS 4, 6 & 8 |
| Parcel # / Geo ID: | 984900802 | Agent Code: | |
| Type: | Real | | |
| Tax Area: | 0110 - C-50F1E1H2 | Land Use Code | 11 |
| Open Space: | N | DFL | N |
| Historic Property: | N | Remodel Property: | N |
| Multi-Family Redevelopment: | N | | |
| Township: | 30N | Section: | 2 |
| Range: | 1W |
Location |
| Address: | 936 FIR ST PORT TOWNSEND, WA 98368 | Mapsco: | 092/031 |
| Neighborhood: | PETTYGROVES 1ST & PETTYGROVES PARK | Map ID: | |
| Neighborhood CD: | 6300 |
Owner |
| Name: | JAMES GIBSON & JUDY JONES | Owner ID: | 103519 |
| Mailing Address: | 936 FIR ST PORT TOWNSEND, WA 98368-5216 | % Ownership: | 100.0000000000% |
| | | Exemptions: | |
Pay Tax Due
There is currently No Amount Due on this property.
Taxes and Assessment Details
Property Tax Information as of
10/24/2025
Click on "Statement Details" to expand or collapse a tax statement.
* Please enter a valid date ** Please enter a valid date *
Statement Details |
| | TOTAL: | $0.00 | $0.00 | $0.00 | $0.00 | $0.00 | $0.00 |
|
| | $0.00 | $0.00 | $0.00 | $0.00 | $0.00 | $0.00 |
Values
| (+) Improvement Homesite Value: | + | $0 | |
| (+) Improvement Non-Homesite Value: | + | $467,184 | |
| (+) Land Homesite Value: | + | $0 | |
| (+) Land Non-Homesite Value: | + | $301,250 | |
| (+) Curr Use (HS): | + | $0 | $0 |
| (+) Curr Use (NHS): | + | $0 | $0 |
| | | -------------------------- | |
| (=) Market Value: | = | $768,434 | |
| (–) Productivity Loss: | – | $0 | |
| | | -------------------------- | |
| (=) Subtotal: | = | $768,434 | |
| (+) Senior Appraised Value: | + | $0 | |
| (+) Non-Senior Appraised Value: | + | $768,434 | |
| | | -------------------------- | |
| (=) Total Appraised Value: | = | $768,434 | |
| (–) Senior Exemption Loss: | – | $0 | |
| (–) Exemption Loss: | – | $0 | |
| | | -------------------------- | |
| (=) Taxable Value: | = | $768,434 | |
Taxing Jurisdiction
| Owner: | JAMES GIBSON & JUDY JONES | | |
| % Ownership: | 100.0000000000% | | |
| Total Value: | N/A | | |
| Tax Area: | 0110 - C-50F1E1H2 |
| CE | COUNTY CURRENT EXPENSE | N/A | N/A | N/A | N/A | | |
| CNTYDD | DEVELOPMENTAL DISABILITIES | N/A | N/A | N/A | N/A | | |
| CNTYVET | VETERANS RELIEF | N/A | N/A | N/A | N/A | | |
| MENTAL | MENTAL HEALTH | N/A | N/A | N/A | N/A | | |
| PTGEN | CITY OF PT GENERAL | N/A | N/A | N/A | N/A | | |
| PTLLL | CITY OF PT - LIBRARY LID LIFT | N/A | N/A | N/A | N/A | | |
| PTMVBOND | CITY OF PT MV BOND | N/A | N/A | N/A | N/A | | |
| HOSP2CASH | HOSP DIST #2 GENERAL | N/A | N/A | N/A | N/A | | |
| SCH50BOND | SCHOOL DIST #50 BOND 2016 | N/A | N/A | N/A | N/A | | |
| SCH50CP | SCHOOL DIST #50 CAP PROJ | N/A | N/A | N/A | N/A | | |
| SCH50MO | SCHOOL DIST #50 EP & O | N/A | N/A | N/A | N/A | | |
| CONSERVE | CONSERVATION FUTURES | N/A | N/A | N/A | N/A | | |
| EMS1 | FIRE DIST #1 EMS | N/A | N/A | N/A | N/A | | |
| FD1 | FIRE DIST #1 GENERAL | N/A | N/A | N/A | N/A | | |
| PORTPT | PORT OF PT GENERAL | N/A | N/A | N/A | N/A | | |
| PORTPTIDD | PORT OF PT IDD 2019 | N/A | N/A | N/A | N/A | | |
| PUD1 | PUD #1 GENERAL | N/A | N/A | N/A | N/A | | |
| STATE | STATE SCHOOL PART 1 | N/A | N/A | N/A | N/A | | |
| STATE2 | STATE SCHOOL PART 2 | N/A | N/A | N/A | N/A | | |
| | Total Tax Rate: | N/A | | | | | |
| | | | | Taxes w/Current Exemptions: | N/A | | |
| | | | | Taxes w/o Exemptions: | N/A | | |
Improvement / Building
| Improvement #1: | Residential Bldg | State Code: | 11 | 1500.0 sqft | Value: | $467,184 |
| Bathrooms (#): | 1 (FULL) | Bathrooms (#): | 1 (HALF) | | Bedrooms (#): | 3 | Exterior Wall: | SI/ST | | Floor Construction: | FRAME | Foundation: | CONPR | | Heating/Cooling: | HTWTR | Inside Verify: | YES-FIX | | Roof Cover: | COMP |   |   |
|
| | Type | Description | Class CD | Sub Class CD | Year Built | Area |
| | MA | Main Area | 4 | 1S | 1970 | 1500.0 |
| | HDECK | House Deck | 4 | * | 1970 | 224.0 |
| | BSMTF | House basement finished | 3 | 15SF | 1970 | 840.0 |
| | ADDN | Addition (Table Not Dep) | 4 | 15SF | 1970 | 288.0 |
| | GBSMT | Basement Garage | 3 | * | 1970 | 660.0 |
| | HWPOR | House Wood Porch | 3 | * | 1970 | 72.0 |
Sketch
Property Image
Land
| 1 | 6300-1173L | Pettygroves Area Terr(Good) | 0.0000 | 0.00 | 0.00 | 0.00 | 1.00 | $38,750 | $0 |
| 2 | 6300-1173L | Pettygroves Area Terr(Good) | 0.0000 | 0.00 | 0.00 | 0.00 | 1.00 | $185,000 | $0 |
| 3 | 6300-1173L | Pettygroves Area Terr(Good) | 0.0000 | 0.00 | 0.00 | 0.00 | 1.00 | $77,500 | $0 |
Roll Value History
| 2025 | N/A | N/A | N/A | N/A | N/A |
| 2024 | $429,959 | $302,500 | $0 | $732,459 | $732,459 |
| 2023 | $271,442 | $283,500 | $0 | $554,942 | $554,942 |
| 2022 | $260,132 | $265,000 | $0 | $525,132 | $525,132 |
| 2021 | $218,966 | $193,750 | $0 | $412,716 | $412,716 |
Deed and Sales History
| 1 | 10/14/2020 | SWD | Statutory Warranty Deed | ERIC B YANDELL | JAMES GIBSON & JUDY JONES | | | $404,000.00 | 135368 | |
| 2 | 09/02/2020 | QCD | Quit Claim Deed | | | | | $80,000.00 | 135258 | |
| 3 | 11/17/2017 | QCD | Quit Claim Deed | | | | | | 129466 | |
| 4 | 09/13/2006 | QCD | Quit Claim Deed | YANDELL, CAROL L TRUST | YANDELL,ERIC/KURT/KEVIN/BRIAN | 0 | 0 | $0.00 | 107772 | 0 |
| 5 | 02/15/1992 | QCD | Quit Claim Deed | YANDELL, CAROL L | YANDELL, CAROL L,TRUSTEE | 0 | 0 | $0.00 | 67834 | 0 |
Payout Agreement
| No payout information available.. |