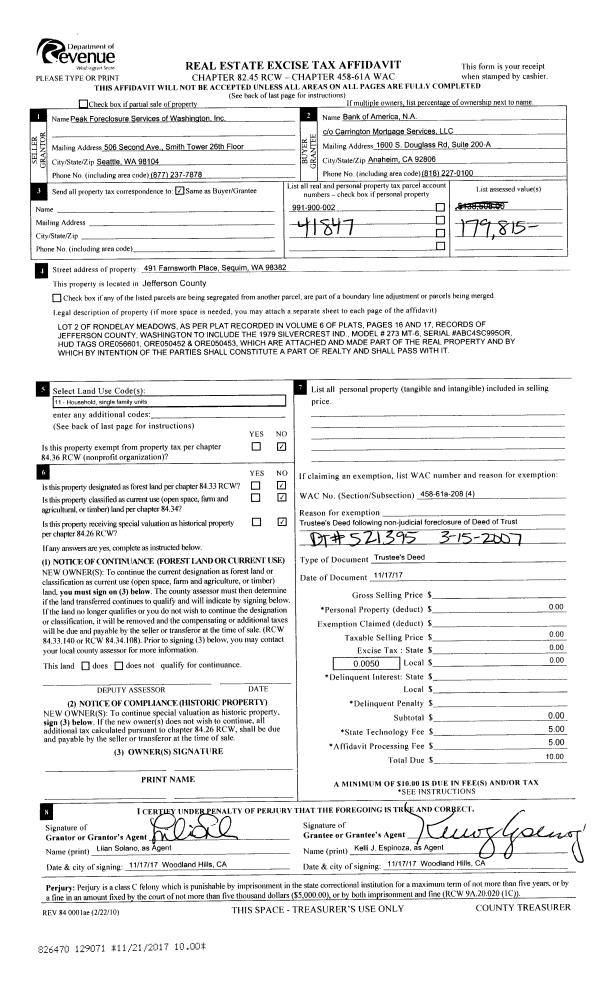
Property
Account |
| Property ID: | 38051 | Abbreviated Legal Description: | PETTYGROVE'S 1ST ADDITION BLK 25 LOTS 2 & 4(S1/2 OF EA) BND TGTH THRU LLA#104208 |
| Parcel # / Geo ID: | 984902505 | Agent Code: | |
| Type: | Real | | |
| Tax Area: | 0110 - C-50F1E1H2 | Land Use Code | 91 |
| Open Space: | N | DFL | N |
| Historic Property: | N | Remodel Property: | N |
| Multi-Family Redevelopment: | N | | |
| Township: | 30N | Section: | 2 |
| Range: | 1W |
Location |
| Address: | | Mapsco: | 094/020 |
| Neighborhood: | PETTYGROVES 1ST & PETTYGROVES PARK | Map ID: | |
| Neighborhood CD: | 6300 |
Owner |
| Name: | DARYL H GILLETTE | Owner ID: | 49198 |
| Mailing Address: | PO BOX 198 PORT TOWNSEND, WA 98368-0198 | % Ownership: | 100.0000000000% |
| | | Exemptions: | |
Pay Tax Due
There is currently No Amount Due on this property.
Taxes and Assessment Details
Property Tax Information as of
10/24/2025
Click on "Statement Details" to expand or collapse a tax statement.
* Please enter a valid date ** Please enter a valid date *
Statement Details |
| | TOTAL: | $0.00 | $0.00 | $0.00 | $0.00 | $0.00 | $0.00 |
|
| | $0.00 | $0.00 | $0.00 | $0.00 | $0.00 | $0.00 |
Values
| (+) Improvement Homesite Value: | + | $0 | |
| (+) Improvement Non-Homesite Value: | + | $0 | |
| (+) Land Homesite Value: | + | $0 | |
| (+) Land Non-Homesite Value: | + | $135,000 | |
| (+) Curr Use (HS): | + | $0 | $0 |
| (+) Curr Use (NHS): | + | $0 | $0 |
| | | -------------------------- | |
| (=) Market Value: | = | $135,000 | |
| (–) Productivity Loss: | – | $0 | |
| | | -------------------------- | |
| (=) Subtotal: | = | $135,000 | |
| (+) Senior Appraised Value: | + | $0 | |
| (+) Non-Senior Appraised Value: | + | $135,000 | |
| | | -------------------------- | |
| (=) Total Appraised Value: | = | $135,000 | |
| (–) Senior Exemption Loss: | – | $0 | |
| (–) Exemption Loss: | – | $0 | |
| | | -------------------------- | |
| (=) Taxable Value: | = | $135,000 | |
Taxing Jurisdiction
| Owner: | DARYL H GILLETTE | | |
| % Ownership: | 100.0000000000% | | |
| Total Value: | N/A | | |
| Tax Area: | 0110 - C-50F1E1H2 |
| CE | COUNTY CURRENT EXPENSE | N/A | N/A | N/A | N/A | | |
| CNTYDD | DEVELOPMENTAL DISABILITIES | N/A | N/A | N/A | N/A | | |
| CNTYVET | VETERANS RELIEF | N/A | N/A | N/A | N/A | | |
| MENTAL | MENTAL HEALTH | N/A | N/A | N/A | N/A | | |
| PTGEN | CITY OF PT GENERAL | N/A | N/A | N/A | N/A | | |
| PTLLL | CITY OF PT - LIBRARY LID LIFT | N/A | N/A | N/A | N/A | | |
| PTMVBOND | CITY OF PT MV BOND | N/A | N/A | N/A | N/A | | |
| HOSP2CASH | HOSP DIST #2 GENERAL | N/A | N/A | N/A | N/A | | |
| SCH50BOND | SCHOOL DIST #50 BOND 2016 | N/A | N/A | N/A | N/A | | |
| SCH50CP | SCHOOL DIST #50 CAP PROJ | N/A | N/A | N/A | N/A | | |
| SCH50MO | SCHOOL DIST #50 EP & O | N/A | N/A | N/A | N/A | | |
| CONSERVE | CONSERVATION FUTURES | N/A | N/A | N/A | N/A | | |
| EMS1 | FIRE DIST #1 EMS | N/A | N/A | N/A | N/A | | |
| FD1 | FIRE DIST #1 GENERAL | N/A | N/A | N/A | N/A | | |
| PORTPT | PORT OF PT GENERAL | N/A | N/A | N/A | N/A | | |
| PORTPTIDD | PORT OF PT IDD 2019 | N/A | N/A | N/A | N/A | | |
| PUD1 | PUD #1 GENERAL | N/A | N/A | N/A | N/A | | |
| STATE | STATE SCHOOL PART 1 | N/A | N/A | N/A | N/A | | |
| STATE2 | STATE SCHOOL PART 2 | N/A | N/A | N/A | N/A | | |
| | Total Tax Rate: | N/A | | | | | |
| | | | | Taxes w/Current Exemptions: | N/A | | |
| | | | | Taxes w/o Exemptions: | N/A | | |
Improvement / Building
Sketch
| No sketches available for this property. |
Property Image
Land
| 1 | 6300-1175L | Pettygroves Area Terr(Avg) | 0.0000 | 0.00 | 0.00 | 0.00 | 1.00 | $135,000 | $0 |
Roll Value History
| 2025 | N/A | N/A | N/A | N/A | N/A |
| 2024 | $0 | $132,000 | $0 | $132,000 | $132,000 |
| 2023 | $0 | $126,000 | $0 | $126,000 | $126,000 |
| 2022 | $0 | $120,000 | $0 | $120,000 | $120,000 |
| 2021 | $0 | $81,250 | $0 | $81,250 | $81,250 |
Deed and Sales History
| 1 | 02/27/2023 | QCD | Quit Claim Deed | | DARYL H GILLETTE | | | | 140604 | |
| 2 | 02/27/2023 | QCD | Quit Claim Deed | MATHIAS & GILLETTE LLC | DARYL H GILLETTE | | | | 140565 | |
| 3 | 07/06/2018 | QCD | Quit Claim Deed | CAROLYN P MATHIAS | MATHIAS & GILLETTE LLC | | | | 130515 | |
| 4 | 03/18/2009 | QCD | Quit Claim Deed | MATHIAS TRUST, CAROLYN TR | MATHIAS, CAROLYN A | 0 | 0 | $200,000.00 | 112637 | 0 |
|   | |
| 5 | 10/09/2006 | QCD | Quit Claim Deed | MATHIAS & GILLETTE LLC | MATHIAS, JAMES M TRUST | 0 | 0 | $200,000.00 | 107796 | 0 |
|   | |
Payout Agreement
| No payout information available.. |