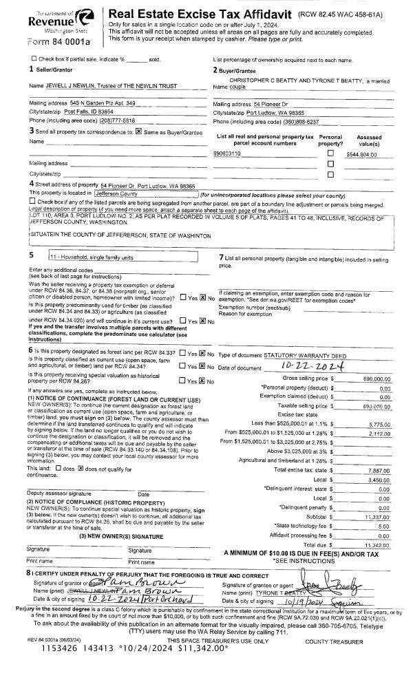
Property
Account |
| Property ID: | 38100 | Abbreviated Legal Description: | PETTYGROVE'S 1ST ADDITION BLK 39 LOTS 4(W1/2), 6 & 8 |
| Parcel # / Geo ID: | 984903904 | Agent Code: | |
| Type: | Real | | |
| Tax Area: | 0110 - C-50F1E1H2 | Land Use Code | 11 |
| Open Space: | N | DFL | N |
| Historic Property: | N | Remodel Property: | N |
| Multi-Family Redevelopment: | N | | |
| Township: | 30N | Section: | 2 |
| Range: | 1W |
Location |
| Address: | 1538 FIR ST PORT TOWNSEND, WA 98368 | Mapsco: | 095/027 |
| Neighborhood: | PETTYGROVES 1ST & PETTYGROVES PARK | Map ID: | |
| Neighborhood CD: | 6300 |
Owner |
| Name: | PETER RUST | Owner ID: | 112721 |
| Mailing Address: | 1531 31ST ST PORT TOWNSEND, WA 98368-4803 | % Ownership: | 100.0000000000% |
| | | Exemptions: | |
Pay Tax Due
There is currently No Amount Due on this property.
Taxes and Assessment Details
Property Tax Information as of
10/24/2025
Click on "Statement Details" to expand or collapse a tax statement.
* Please enter a valid date ** Please enter a valid date *
Statement Details |
| | TOTAL: | $0.00 | $0.00 | $0.00 | $0.00 | $0.00 | $0.00 |
|
| | $0.00 | $0.00 | $0.00 | $0.00 | $0.00 | $0.00 |
Values
| (+) Improvement Homesite Value: | + | $0 | |
| (+) Improvement Non-Homesite Value: | + | $159,161 | |
| (+) Land Homesite Value: | + | $0 | |
| (+) Land Non-Homesite Value: | + | $260,000 | |
| (+) Curr Use (HS): | + | $0 | $0 |
| (+) Curr Use (NHS): | + | $0 | $0 |
| | | -------------------------- | |
| (=) Market Value: | = | $419,161 | |
| (–) Productivity Loss: | – | $0 | |
| | | -------------------------- | |
| (=) Subtotal: | = | $419,161 | |
| (+) Senior Appraised Value: | + | $0 | |
| (+) Non-Senior Appraised Value: | + | $419,161 | |
| | | -------------------------- | |
| (=) Total Appraised Value: | = | $419,161 | |
| (–) Senior Exemption Loss: | – | $0 | |
| (–) Exemption Loss: | – | $0 | |
| | | -------------------------- | |
| (=) Taxable Value: | = | $419,161 | |
Taxing Jurisdiction
| Owner: | PETER RUST | | |
| % Ownership: | 100.0000000000% | | |
| Total Value: | N/A | | |
| Tax Area: | 0110 - C-50F1E1H2 |
| CE | COUNTY CURRENT EXPENSE | N/A | N/A | N/A | N/A | | |
| CNTYDD | DEVELOPMENTAL DISABILITIES | N/A | N/A | N/A | N/A | | |
| CNTYVET | VETERANS RELIEF | N/A | N/A | N/A | N/A | | |
| MENTAL | MENTAL HEALTH | N/A | N/A | N/A | N/A | | |
| PTGEN | CITY OF PT GENERAL | N/A | N/A | N/A | N/A | | |
| PTLLL | CITY OF PT - LIBRARY LID LIFT | N/A | N/A | N/A | N/A | | |
| PTMVBOND | CITY OF PT MV BOND | N/A | N/A | N/A | N/A | | |
| HOSP2CASH | HOSP DIST #2 GENERAL | N/A | N/A | N/A | N/A | | |
| SCH50BOND | SCHOOL DIST #50 BOND 2016 | N/A | N/A | N/A | N/A | | |
| SCH50CP | SCHOOL DIST #50 CAP PROJ | N/A | N/A | N/A | N/A | | |
| SCH50MO | SCHOOL DIST #50 EP & O | N/A | N/A | N/A | N/A | | |
| CONSERVE | CONSERVATION FUTURES | N/A | N/A | N/A | N/A | | |
| EMS1 | FIRE DIST #1 EMS | N/A | N/A | N/A | N/A | | |
| FD1 | FIRE DIST #1 GENERAL | N/A | N/A | N/A | N/A | | |
| PORTPT | PORT OF PT GENERAL | N/A | N/A | N/A | N/A | | |
| PORTPTIDD | PORT OF PT IDD 2019 | N/A | N/A | N/A | N/A | | |
| PUD1 | PUD #1 GENERAL | N/A | N/A | N/A | N/A | | |
| STATE | STATE SCHOOL PART 1 | N/A | N/A | N/A | N/A | | |
| STATE2 | STATE SCHOOL PART 2 | N/A | N/A | N/A | N/A | | |
| | Total Tax Rate: | N/A | | | | | |
| | | | | Taxes w/Current Exemptions: | N/A | | |
| | | | | Taxes w/o Exemptions: | N/A | | |
Improvement / Building
| Improvement #1: | Residential Bldg | State Code: | 11 | 1120.0 sqft | Value: | $159,161 |
| Bathrooms (#): | 1 (FULL) | Bathrooms (#): | 1 (HALF) | | Bedrooms (#): | 3 | Exterior Wall: | SI/ST | | Floor Construction: | FRAME | Foundation: | CONPR | | Heating/Cooling: | F/A | Inside Verify: | YES-FIX | | Roof Cover: | BLTUP |   |   |
|
| | Type | Description | Class CD | Sub Class CD | Year Built | Area |
| | MA | Main Area | 2 | 1S | 1955 | 1120.0 |
| | PATIO | House Patio | 2 | * | 1955 | 354.0 |
| | CARPTF | Carport W/Floor | 2 | * | 1955 | 336.0 |
| | BSMTU | House basement unfinished | 2 | * | 1955 | 448.0 |
| | CONCD | Concrete Drive | 2 | * | 1955 | 500.0 |
Sketch
Property Image
Land
| 1 | 6300-1179L | Pettygroves XS Lots | 0.0000 | 0.00 | 0.00 | 0.00 | 1.00 | $27,500 | $0 |
| 2 | 6300-1175L | Pettygroves Area Terr(Avg) | 0.0000 | 0.00 | 0.00 | 0.00 | 1.00 | $165,000 | $0 |
| 3 | 6300-1175L | Pettygroves Area Terr(Avg) | 0.0000 | 0.00 | 0.00 | 0.00 | 1.00 | $67,500 | $0 |
Roll Value History
| 2025 | N/A | N/A | N/A | N/A | N/A |
| 2024 | $189,700 | $258,500 | $0 | $448,200 | $448,200 |
| 2023 | $182,112 | $241,500 | $0 | $423,612 | $423,612 |
| 2022 | $174,524 | $225,000 | $0 | $399,524 | $399,524 |
| 2021 | $146,906 | $153,125 | $0 | $300,031 | $300,031 |
Deed and Sales History
| 1 | 05/30/2025 | QCD | Quit Claim Deed | LAURA RUST | PETER RUST | | | $0.00 | 144393 | |
| 2 | 05/31/2025 | SWD | Statutory Warranty Deed | ALTA L MAIR LIVING TRUST | PETER RUST | | | $425,000.00 | 144392 | |
| 3 | 01/09/2025 | PRD | Personal Representatives Deed | DONNA CALDWELL & CLAUDIA WOOD PERSONAL | DENNIS MUENSTERMAN | | | | 143751 | |
| 4 | 10/20/1995 | SPWD | Special Warranty Deed | LITTON LOAN SERVICING INC | MAIR, ALTA L/LELAND | 0 | 0 | $0.00 | 81628 | 0 |
| 5 | 02/13/1992 | QCD | Quit Claim Deed | MAIR, ALTA L | MAIR, ALTA L LIVING TRUST | 0 | 0 | $0.00 | 67985 | 0 |
| 6 | 04/04/1968 | REC | Real Estate Contract | VETERAN'S ADMINISTRATION | PETERSON, ALBERT R/MARY A | 0 | 0 | $0.00 | 81627 | 0 |
Payout Agreement
| No payout information available.. |