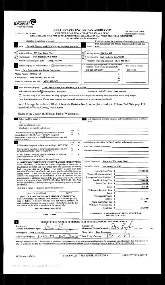
Property
Account |
| Property ID: | 38106 | Abbreviated Legal Description: | PETTYGROVE'S 1ST ADDITION BLK 41 LOTS 1 & 3 & W1/2 VAC WILLOW ADJ LOT 1 |
| Parcel # / Geo ID: | 984904101 | Agent Code: | |
| Type: | Real | | |
| Tax Area: | 0110 - C-50F1E1H2 | Land Use Code | 11 |
| Open Space: | N | DFL | N |
| Historic Property: | N | Remodel Property: | N |
| Multi-Family Redevelopment: | N | | |
| Township: | 30N | Section: | 2 |
| Range: | 1W |
Location |
| Address: | 710 O ST PORT TOWNSEND, WA 98368 | Mapsco: | 095/036 |
| Neighborhood: | PETTYGROVES 1ST & PETTYGROVES PARK | Map ID: | |
| Neighborhood CD: | 6300 |
Owner |
| Name: | ARNE APSENS | Owner ID: | 96874 |
| Mailing Address: | 710 O ST PORT TOWNSEND, WA 98368-4112 | % Ownership: | 100.0000000000% |
| | | Exemptions: | |
Pay Tax Due
There is currently No Amount Due on this property.
Taxes and Assessment Details
Property Tax Information as of
10/24/2025
Click on "Statement Details" to expand or collapse a tax statement.
* Please enter a valid date ** Please enter a valid date *
Statement Details |
| | TOTAL: | $0.00 | $0.00 | $0.00 | $0.00 | $0.00 | $0.00 |
|
| | $0.00 | $0.00 | $0.00 | $0.00 | $0.00 | $0.00 |
Values
| (+) Improvement Homesite Value: | + | $0 | |
| (+) Improvement Non-Homesite Value: | + | $443,913 | |
| (+) Land Homesite Value: | + | $0 | |
| (+) Land Non-Homesite Value: | + | $309,000 | |
| (+) Curr Use (HS): | + | $0 | $0 |
| (+) Curr Use (NHS): | + | $0 | $0 |
| | | -------------------------- | |
| (=) Market Value: | = | $752,913 | |
| (–) Productivity Loss: | – | $0 | |
| | | -------------------------- | |
| (=) Subtotal: | = | $752,913 | |
| (+) Senior Appraised Value: | + | $0 | |
| (+) Non-Senior Appraised Value: | + | $752,913 | |
| | | -------------------------- | |
| (=) Total Appraised Value: | = | $752,913 | |
| (–) Senior Exemption Loss: | – | $0 | |
| (–) Exemption Loss: | – | $0 | |
| | | -------------------------- | |
| (=) Taxable Value: | = | $752,913 | |
Taxing Jurisdiction
| Owner: | ARNE APSENS | | |
| % Ownership: | 100.0000000000% | | |
| Total Value: | N/A | | |
| Tax Area: | 0110 - C-50F1E1H2 |
| CE | COUNTY CURRENT EXPENSE | N/A | N/A | N/A | N/A | | |
| CNTYDD | DEVELOPMENTAL DISABILITIES | N/A | N/A | N/A | N/A | | |
| CNTYVET | VETERANS RELIEF | N/A | N/A | N/A | N/A | | |
| MENTAL | MENTAL HEALTH | N/A | N/A | N/A | N/A | | |
| PTGEN | CITY OF PT GENERAL | N/A | N/A | N/A | N/A | | |
| PTLLL | CITY OF PT - LIBRARY LID LIFT | N/A | N/A | N/A | N/A | | |
| PTMVBOND | CITY OF PT MV BOND | N/A | N/A | N/A | N/A | | |
| HOSP2CASH | HOSP DIST #2 GENERAL | N/A | N/A | N/A | N/A | | |
| SCH50BOND | SCHOOL DIST #50 BOND 2016 | N/A | N/A | N/A | N/A | | |
| SCH50CP | SCHOOL DIST #50 CAP PROJ | N/A | N/A | N/A | N/A | | |
| SCH50MO | SCHOOL DIST #50 EP & O | N/A | N/A | N/A | N/A | | |
| CONSERVE | CONSERVATION FUTURES | N/A | N/A | N/A | N/A | | |
| EMS1 | FIRE DIST #1 EMS | N/A | N/A | N/A | N/A | | |
| FD1 | FIRE DIST #1 GENERAL | N/A | N/A | N/A | N/A | | |
| PORTPT | PORT OF PT GENERAL | N/A | N/A | N/A | N/A | | |
| PORTPTIDD | PORT OF PT IDD 2019 | N/A | N/A | N/A | N/A | | |
| PUD1 | PUD #1 GENERAL | N/A | N/A | N/A | N/A | | |
| STATE | STATE SCHOOL PART 1 | N/A | N/A | N/A | N/A | | |
| STATE2 | STATE SCHOOL PART 2 | N/A | N/A | N/A | N/A | | |
| | Total Tax Rate: | N/A | | | | | |
| | | | | Taxes w/Current Exemptions: | N/A | | |
| | | | | Taxes w/o Exemptions: | N/A | | |
Improvement / Building
| Improvement #1: | Residential Bldg | State Code: | 11 | 1332.0 sqft | Value: | $443,913 |
| Bathrooms (#): | 1 (FULL) | Bathrooms (#): | 1 (HALF) | | Bedrooms (#): | 4 | Exterior Wall: | SI/ST | | Fireplace: | SIN 1-AVG | Fireplace: | WD ST-AVG | | Floor Construction: | FRAME | Foundation: | CONPR | | Heating/Cooling: | F/A | Roof Cover: | COMP |
|
| | Type | Description | Class CD | Sub Class CD | Year Built | Area |
| | MA | Main Area | 4- | 1S | 1967 | 1332.0 |
| | PATIO | House Patio | 4 | * | 1967 | 196.0 |
| | HCPOR | House Concrete Porch | 4 | * | 1967 | 32.0 |
| | HDECK | House Deck | 4 | * | 1967 | 244.0 |
| | GATT | House Attached Garage | 4 | 1S | 1967 | 404.0 |
| | BSMTF | House basement finished | 4 | * | 1967 | 918.4 |
| | HRPO | House Roof Patio | 4 | * | 1967 | 48.0 |
| | BSMTU | House basement unfinished | 4 | * | 1967 | 393.6 |
Sketch
Property Image
Land
| 1 | 6300-1173L | Pettygroves Area Terr(Good) | 0.0000 | 0.00 | 0.00 | 0.00 | 1.00 | $185,000 | $0 |
| 2 | 6300-1173L | Pettygroves Area Terr(Good) | 0.0000 | 0.00 | 0.00 | 0.00 | 1.00 | $124,000 | $0 |
Roll Value History
| 2025 | N/A | N/A | N/A | N/A | N/A |
| 2024 | $414,068 | $310,200 | $0 | $724,268 | $724,268 |
| 2023 | $397,505 | $290,850 | $0 | $688,355 | $688,355 |
| 2022 | $380,942 | $272,000 | $0 | $652,942 | $652,942 |
| 2021 | $320,658 | $198,750 | $0 | $519,408 | $519,408 |
Deed and Sales History
| 1 | 03/09/2017 | SWD | Statutory Warranty Deed | | | | | | 127889 | |
| 2 | 03/09/2017 | SWD | Statutory Warranty Deed | FRANK E & BONNIE L BLAKELY | ARNE APSENS | | | $430,000.00 | 127293 | |
| 3 | 07/14/2016 | SWD | Statutory Warranty Deed | KEVIN C CLARK | FRANK E & BONNIE L BLAKELY | | | $405,000.00 | 125850 | |
| 4 | 03/21/2013 | QCD | Quit Claim Deed | REGINA MARIE CLARK | KEVIN C CLARK | | | | 119028 | |
| 5 | 04/01/2013 | SWD | Statutory Warranty Deed | BRENDA L WAGNER | KEVIN C CLARK | | | $288,000.00 | 119027 | |
| 6 | 06/10/2009 | SWD | Statutory Warranty Deed | BERRY, WILLIAM C/SUSAN K | WAGNER, BRENDA L | | | $320,000.00 | 112963 | 0 |
| 7 | 05/01/2008 | SWD | Statutory Warranty Deed | WEIR, FRANK/YVONNE J | BERRY, WILLIAM/SUSAN | | | $365,000.00 | 111242 | 0 |
| 8 | 10/03/1997 | SWD | Statutory Warranty Deed | GARRISON, KENNETH W/SHARO | WEIR, FRANK C/YVONNE J | 0 | 0 | $156,500.00 | 82926 | 0 |
Payout Agreement
| No payout information available.. |