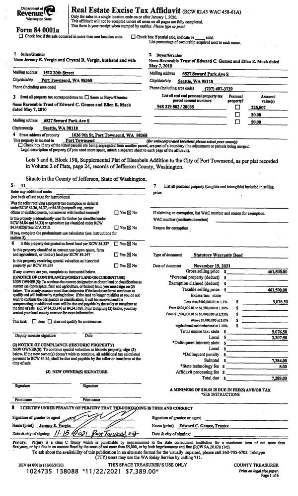
Property
Account |
| Property ID: | 38115 | Abbreviated Legal Description: | PETTYGROVE'S 1ST ADDITION BLK 43 LOT 8 INC PTN VAC Q CERT/LOTS OF RECORD #516153 |
| Parcel # / Geo ID: | 984904301 | Agent Code: | |
| Type: | Real | | |
| Tax Area: | 0110 - C-50F1E1H2 | Land Use Code | 11 |
| Open Space: | N | DFL | N |
| Historic Property: | N | Remodel Property: | N |
| Multi-Family Redevelopment: | N | | |
| Township: | 30N | Section: | 2 |
| Range: | 1W |
Location |
| Address: | 1654 CHERRY ST PORT TOWNSEND, WA 98368 | Mapsco: | 095/054 |
| Neighborhood: | PETTYGROVES 1ST & PETTYGROVES PARK | Map ID: | |
| Neighborhood CD: | 6300 |
Owner |
| Name: | GREGORY & AMY GLASS REVOCABLE LIVING TRUST | Owner ID: | 107643 |
| Mailing Address: | GREGORY R GLASS TRUSTEE AMY E GLASS TRUSTEE 1654 CHERRY ST PORT TOWNSEND, WA 98368-3704 | % Ownership: | 100.0000000000% |
| | | Exemptions: | |
Pay Tax Due
There is currently No Amount Due on this property.
Taxes and Assessment Details
Property Tax Information as of
10/24/2025
Click on "Statement Details" to expand or collapse a tax statement.
* Please enter a valid date ** Please enter a valid date *
Statement Details |
| | TOTAL: | $0.00 | $0.00 | $0.00 | $0.00 | $0.00 | $0.00 |
|
| | $0.00 | $0.00 | $0.00 | $0.00 | $0.00 | $0.00 |
Values
| (+) Improvement Homesite Value: | + | $0 | |
| (+) Improvement Non-Homesite Value: | + | $615,463 | |
| (+) Land Homesite Value: | + | $0 | |
| (+) Land Non-Homesite Value: | + | $195,250 | |
| (+) Curr Use (HS): | + | $0 | $0 |
| (+) Curr Use (NHS): | + | $0 | $0 |
| | | -------------------------- | |
| (=) Market Value: | = | $810,713 | |
| (–) Productivity Loss: | – | $0 | |
| | | -------------------------- | |
| (=) Subtotal: | = | $810,713 | |
| (+) Senior Appraised Value: | + | $0 | |
| (+) Non-Senior Appraised Value: | + | $810,713 | |
| | | -------------------------- | |
| (=) Total Appraised Value: | = | $810,713 | |
| (–) Senior Exemption Loss: | – | $0 | |
| (–) Exemption Loss: | – | $0 | |
| | | -------------------------- | |
| (=) Taxable Value: | = | $810,713 | |
Taxing Jurisdiction
| Owner: | GREGORY & AMY GLASS REVOCABLE LIVING TRUST | | |
| % Ownership: | 100.0000000000% | | |
| Total Value: | N/A | | |
| Tax Area: | 0110 - C-50F1E1H2 |
| CE | COUNTY CURRENT EXPENSE | N/A | N/A | N/A | N/A | | |
| CNTYDD | DEVELOPMENTAL DISABILITIES | N/A | N/A | N/A | N/A | | |
| CNTYVET | VETERANS RELIEF | N/A | N/A | N/A | N/A | | |
| MENTAL | MENTAL HEALTH | N/A | N/A | N/A | N/A | | |
| PTGEN | CITY OF PT GENERAL | N/A | N/A | N/A | N/A | | |
| PTLLL | CITY OF PT - LIBRARY LID LIFT | N/A | N/A | N/A | N/A | | |
| PTMVBOND | CITY OF PT MV BOND | N/A | N/A | N/A | N/A | | |
| HOSP2CASH | HOSP DIST #2 GENERAL | N/A | N/A | N/A | N/A | | |
| SCH50BOND | SCHOOL DIST #50 BOND 2016 | N/A | N/A | N/A | N/A | | |
| SCH50CP | SCHOOL DIST #50 CAP PROJ | N/A | N/A | N/A | N/A | | |
| SCH50MO | SCHOOL DIST #50 EP & O | N/A | N/A | N/A | N/A | | |
| CONSERVE | CONSERVATION FUTURES | N/A | N/A | N/A | N/A | | |
| EMS1 | FIRE DIST #1 EMS | N/A | N/A | N/A | N/A | | |
| FD1 | FIRE DIST #1 GENERAL | N/A | N/A | N/A | N/A | | |
| PORTPT | PORT OF PT GENERAL | N/A | N/A | N/A | N/A | | |
| PORTPTIDD | PORT OF PT IDD 2019 | N/A | N/A | N/A | N/A | | |
| PUD1 | PUD #1 GENERAL | N/A | N/A | N/A | N/A | | |
| STATE | STATE SCHOOL PART 1 | N/A | N/A | N/A | N/A | | |
| STATE2 | STATE SCHOOL PART 2 | N/A | N/A | N/A | N/A | | |
| | Total Tax Rate: | N/A | | | | | |
| | | | | Taxes w/Current Exemptions: | N/A | | |
| | | | | Taxes w/o Exemptions: | N/A | | |
Improvement / Building
| Improvement #1: | Residential Bldg | State Code: | 11 | 704.0 sqft | Value: | $184,890 |
| Bathrooms (#): | 1 (FULL) | Bedrooms (#): | 1 | | Exterior Wall: | SI/ST | Floor Construction: | CONCR | | Foundation: | CONPR | Heating/Cooling: | HTWTR | | Roof Cover: | COMP |   |   |
|
| | Type | Description | Class CD | Sub Class CD | Year Built | Area |
| | MA | Main Area | 4+ | 15SF | 2004 | 448.0 |
| | MA2 | Second Floor Main Area | 4+ | 15SF | 2004 | 256.0 |
| | PATIO | House Patio | 4 | * | 2004 | 160.0 |
| | HCPOR | House Concrete Porch | 4 | * | 2004 | 24.0 |
| Improvement #2: | Residential Bldg | State Code: | 11 | 1394.0 sqft | Value: | $430,573 |
| Bathrooms (#): | 2 (FULL) | Bedrooms (#): | 2 | | Exterior Wall: | SI/ST | Floor Construction: | FRAME | | Foundation: | CONPR | Heating/Cooling: | ELBB | | Roof Cover: | COMP |   |   |
|
| | Type | Description | Class CD | Sub Class CD | Year Built | Area |
| | MA | Main Area | 5- | 2S | 2012 | 722.0 |
| | MA2 | Second Floor Main Area | 5- | 2S | 2012 | 672.0 |
| | HBAL | House Balcony | 4 | * | 2012 | 56.0 |
| | HDECK | House Deck | 4 | * | 2012 | 176.0 |
| | ADDN | Addition (Table Not Dep) | 4 | * | 2012 | 120.0 |
| | ADDN | Addition (Table Not Dep) | 4 | * | 2012 | 200.0 |
Sketch
Property Image
Land
| 1 | 6300-1175L | Pettygroves Area Terr(Avg) | 0.0000 | 0.00 | 0.00 | 0.00 | 1.00 | $175,000 | $0 |
| 2 | 6300-1175L | Pettygroves Area Terr(Avg) | 0.0000 | 0.00 | 0.00 | 0.00 | 1.00 | $20,250 | $0 |
Roll Value History
| 2025 | N/A | N/A | N/A | N/A | N/A |
| 2024 | $583,577 | $195,800 | $0 | $779,377 | $779,377 |
| 2023 | $560,234 | $176,400 | $0 | $736,634 | $736,634 |
| 2022 | $536,891 | $168,000 | $0 | $704,891 | $704,891 |
| 2021 | $451,928 | $124,688 | $0 | $576,616 | $576,616 |
Deed and Sales History
| 1 | 09/06/2022 | QCD | Quit Claim Deed | AMY & GREGORY GLASS JTWROS | GREGORY & AMY GLASS REVOCABLE LIVING TRUST | | | | 139813 | |
| 2 | 07/08/2022 | SWD | Statutory Warranty Deed | NICOLETTE DUCOMMUN | AMY & GREGORY GLASS JTWROS | | | $790,000.00 | 139453 | |
| 3 | 08/11/2016 | QCD | Quit Claim Deed | | | | | | 126071 | |
| 4 | 08/11/2016 | SWD | Statutory Warranty Deed | ALETA ERICKSON | NICOLETTE DUCOMMUN | | | $469,000.00 | 126070 | |
| 5 | 07/08/2008 | SWD | Statutory Warranty Deed | GARRISON, VERNON, LLC | ERICKSON, ALETA | | | $197,000.00 | 111581 | 0 |
| 6 | 11/09/2006 | QCD | Quit Claim Deed | GARRISON TRTEE, VERNON I | GARRISON LLC, VERNON I | 0 | 0 | $0.00 | 108315 | 0 |
| 7 | 11/09/2006 | QCD | Quit Claim Deed | GARRISON, VERNON I TRUSTE | GARRISON, VERNON LLC | 0 | 0 | $0.00 | 108087 | 0 |
| 8 | 06/14/2001 | SWD | Statutory Warranty Deed | PRIOR, GLENN E/CARMELLA A | GARRISON, VERNON I TRUSTEE OF | 0 | 0 | $80,000.00 | 92529 | 0 |
Payout Agreement
| No payout information available.. |