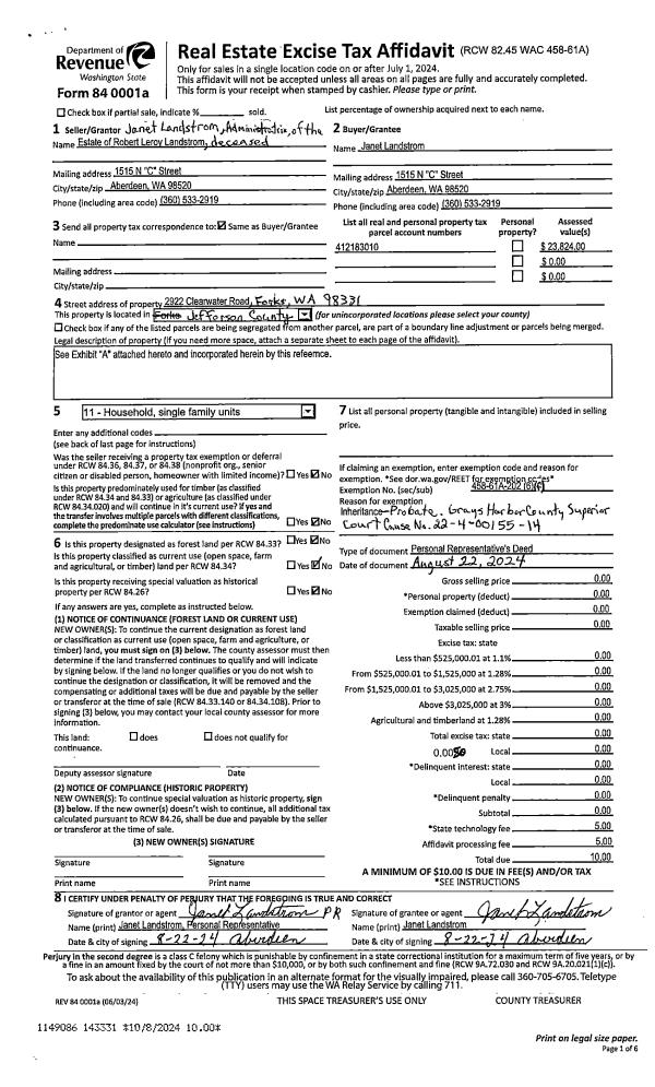
Property
Account |
| Property ID: | 38118 | Abbreviated Legal Description: | PETTYGROVE'S 1ST ADDITION BLK 43 LOT 4 INC PTN VAC Q ST ADJ CERT/LOTS OF REC #516153 |
| Parcel # / Geo ID: | 984904304 | Agent Code: | |
| Type: | Real | | |
| Tax Area: | 0110 - C-50F1E1H2 | Land Use Code | 11 |
| Open Space: | N | DFL | N |
| Historic Property: | N | Remodel Property: | N |
| Multi-Family Redevelopment: | N | | |
| Township: | 30N | Section: | 2 |
| Range: | 1W |
Location |
| Address: | 1648 CHERRY ST PORT TOWNSEND, WA 98368 | Mapsco: | 095/052 |
| Neighborhood: | PETTYGROVES 1ST & PETTYGROVES PARK | Map ID: | |
| Neighborhood CD: | 6300 |
Owner |
| Name: | ALEXIS E MEEHAN TRUST | Owner ID: | 112524 |
| Mailing Address: | ALEXIS E MEEHAN TRUSTEE 11300 STEWARTS POINT-SKAGGS SPRINGS RD GEYSERVILLE, CA 95441 | % Ownership: | 100.0000000000% |
| | | Exemptions: | |
Pay Tax Due
There is currently No Amount Due on this property.
Taxes and Assessment Details
Property Tax Information as of
10/24/2025
Click on "Statement Details" to expand or collapse a tax statement.
* Please enter a valid date ** Please enter a valid date *
Statement Details |
| | TOTAL: | $0.00 | $0.00 | $0.00 | $0.00 | $0.00 | $0.00 |
|
| | $0.00 | $0.00 | $0.00 | $0.00 | $0.00 | $0.00 |
Values
| (+) Improvement Homesite Value: | + | $0 | |
| (+) Improvement Non-Homesite Value: | + | $581,234 | |
| (+) Land Homesite Value: | + | $0 | |
| (+) Land Non-Homesite Value: | + | $185,250 | |
| (+) Curr Use (HS): | + | $0 | $0 |
| (+) Curr Use (NHS): | + | $0 | $0 |
| | | -------------------------- | |
| (=) Market Value: | = | $766,484 | |
| (–) Productivity Loss: | – | $0 | |
| | | -------------------------- | |
| (=) Subtotal: | = | $766,484 | |
| (+) Senior Appraised Value: | + | $0 | |
| (+) Non-Senior Appraised Value: | + | $766,484 | |
| | | -------------------------- | |
| (=) Total Appraised Value: | = | $766,484 | |
| (–) Senior Exemption Loss: | – | $0 | |
| (–) Exemption Loss: | – | $0 | |
| | | -------------------------- | |
| (=) Taxable Value: | = | $766,484 | |
Taxing Jurisdiction
| Owner: | ALEXIS E MEEHAN TRUST | | |
| % Ownership: | 100.0000000000% | | |
| Total Value: | N/A | | |
| Tax Area: | 0110 - C-50F1E1H2 |
| CE | COUNTY CURRENT EXPENSE | N/A | N/A | N/A | N/A | | |
| CNTYDD | DEVELOPMENTAL DISABILITIES | N/A | N/A | N/A | N/A | | |
| CNTYVET | VETERANS RELIEF | N/A | N/A | N/A | N/A | | |
| MENTAL | MENTAL HEALTH | N/A | N/A | N/A | N/A | | |
| PTGEN | CITY OF PT GENERAL | N/A | N/A | N/A | N/A | | |
| PTLLL | CITY OF PT - LIBRARY LID LIFT | N/A | N/A | N/A | N/A | | |
| PTMVBOND | CITY OF PT MV BOND | N/A | N/A | N/A | N/A | | |
| HOSP2CASH | HOSP DIST #2 GENERAL | N/A | N/A | N/A | N/A | | |
| SCH50BOND | SCHOOL DIST #50 BOND 2016 | N/A | N/A | N/A | N/A | | |
| SCH50CP | SCHOOL DIST #50 CAP PROJ | N/A | N/A | N/A | N/A | | |
| SCH50MO | SCHOOL DIST #50 EP & O | N/A | N/A | N/A | N/A | | |
| CONSERVE | CONSERVATION FUTURES | N/A | N/A | N/A | N/A | | |
| EMS1 | FIRE DIST #1 EMS | N/A | N/A | N/A | N/A | | |
| FD1 | FIRE DIST #1 GENERAL | N/A | N/A | N/A | N/A | | |
| PORTPT | PORT OF PT GENERAL | N/A | N/A | N/A | N/A | | |
| PORTPTIDD | PORT OF PT IDD 2019 | N/A | N/A | N/A | N/A | | |
| PUD1 | PUD #1 GENERAL | N/A | N/A | N/A | N/A | | |
| STATE | STATE SCHOOL PART 1 | N/A | N/A | N/A | N/A | | |
| STATE2 | STATE SCHOOL PART 2 | N/A | N/A | N/A | N/A | | |
| | Total Tax Rate: | N/A | | | | | |
| | | | | Taxes w/Current Exemptions: | N/A | | |
| | | | | Taxes w/o Exemptions: | N/A | | |
Improvement / Building
| Improvement #1: | Residential Bldg | State Code: | 11 | 1579.5 sqft | Value: | $581,234 |
| Bathrooms (#): | 1 (FULL) | Bathrooms (#): | 1 (HALF) | | Bedrooms (#): | 1 | Exterior Wall: | SI/ST | | Floor Construction: | CONCR | Foundation: | 01BASE | | Heating/Cooling: | HTWTR | Roof Cover: | METAL |
|
| | Type | Description | Class CD | Sub Class CD | Year Built | Area |
| | MA | Main Area | 5+ | 2S | 2016 | 1085.5 |
| | CARPTF | Carport W/Floor | 5 | * | 2016 | 168.0 |
| | HCPOR | House Concrete Porch | 5 | * | 2016 | 72.0 |
| | MA2 | Second Floor Main Area | 5+ | 2S | 2016 | 494.0 |
| | HBAL | House Balcony | 5 | * | 2016 | 60.0 |
| | OTHER | Other | 5 | * | 2016 | 120.0 |
Sketch
Property Image
Land
| 1 | 6300-1175L | Pettygroves Area Terr(Avg) | 0.0000 | 0.00 | 0.00 | 0.00 | 1.00 | $165,000 | $0 |
| 2 | 6300-1175L | Pettygroves Area Terr(Avg) | 0.0000 | 0.00 | 0.00 | 0.00 | 1.00 | $20,250 | $0 |
Roll Value History
| 2025 | N/A | N/A | N/A | N/A | N/A |
| 2024 | $483,368 | $184,800 | $0 | $668,168 | $668,168 |
| 2023 | $464,033 | $171,150 | $0 | $635,183 | $635,183 |
| 2022 | $444,698 | $158,000 | $0 | $602,698 | $602,698 |
| 2021 | $374,325 | $112,188 | $0 | $486,513 | $486,513 |
Deed and Sales History
| 1 | 04/30/2025 | SWD | Statutory Warranty Deed | RICHARD P REINHARDT | ALEXIS E MEEHAN TRUST | | | $849,000.00 | 144244 | |
| 2 | 09/02/2014 | SWD | Statutory Warranty Deed | VERNON I GARRISON LLC | RICHARD P REINHARDT | | | $62,500.00 | 121851 | |
| 3 | 05/09/2007 | QCD | Quit Claim Deed | GARRISON, VERNON TRUSTEE | GARRISON, VERNON I LLC | | | $0.00 | 109167 | 0 |
Payout Agreement
| No payout information available.. |