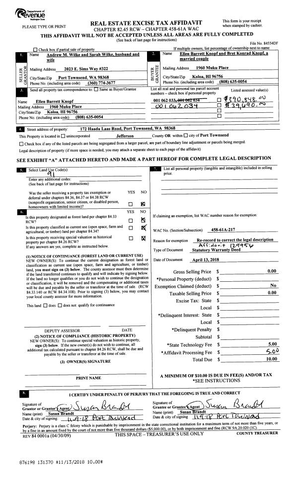
Property
Account |
| Property ID: | 38154 | Abbreviated Legal Description: | PETTYGROVE'S 1ST ADDITION BLK 51 LOTS 1,3,5 & 7 |
| Parcel # / Geo ID: | 984905101 | Agent Code: | |
| Type: | Real | | |
| Tax Area: | 0110 - C-50F1E1H2 | Land Use Code | 11 |
| Open Space: | N | DFL | N |
| Historic Property: | N | Remodel Property: | N |
| Multi-Family Redevelopment: | N | | |
| Township: | 31N | Section: | 35 |
| Range: | 1W |
Location |
| Address: | 1808 MAPLE ST PORT TOWNSEND, WA 98368 | Mapsco: | 096/021 |
| Neighborhood: | PETTYGROVES 1ST & PETTYGROVES PARK | Map ID: | |
| Neighborhood CD: | 6300 |
Owner |
| Name: | STEPHEN C EVANS TRUSTEE | Owner ID: | 15388 |
| Mailing Address: | MONICA J FLETCHER TRUSTEE EVANS & FLETCHER TRUST 2145 IVY ST PORT TOWNSEND, WA 98368-6829 | % Ownership: | 100.0000000000% |
| | | Exemptions: | |
Pay Tax Due
There is currently No Amount Due on this property.
Taxes and Assessment Details
Property Tax Information as of
10/24/2025
Click on "Statement Details" to expand or collapse a tax statement.
* Please enter a valid date ** Please enter a valid date *
Statement Details |
| | TOTAL: | $0.00 | $0.00 | $0.00 | $0.00 | $0.00 | $0.00 |
|
| | $0.00 | $0.00 | $0.00 | $0.00 | $0.00 | $0.00 |
Values
| (+) Improvement Homesite Value: | + | $0 | |
| (+) Improvement Non-Homesite Value: | + | $388,522 | |
| (+) Land Homesite Value: | + | $0 | |
| (+) Land Non-Homesite Value: | + | $465,000 | |
| (+) Curr Use (HS): | + | $0 | $0 |
| (+) Curr Use (NHS): | + | $0 | $0 |
| | | -------------------------- | |
| (=) Market Value: | = | $853,522 | |
| (–) Productivity Loss: | – | $0 | |
| | | -------------------------- | |
| (=) Subtotal: | = | $853,522 | |
| (+) Senior Appraised Value: | + | $0 | |
| (+) Non-Senior Appraised Value: | + | $853,522 | |
| | | -------------------------- | |
| (=) Total Appraised Value: | = | $853,522 | |
| (–) Senior Exemption Loss: | – | $0 | |
| (–) Exemption Loss: | – | $0 | |
| | | -------------------------- | |
| (=) Taxable Value: | = | $853,522 | |
Taxing Jurisdiction
| Owner: | STEPHEN C EVANS TRUSTEE | | |
| % Ownership: | 100.0000000000% | | |
| Total Value: | N/A | | |
| Tax Area: | 0110 - C-50F1E1H2 |
| CE | COUNTY CURRENT EXPENSE | N/A | N/A | N/A | N/A | | |
| CNTYDD | DEVELOPMENTAL DISABILITIES | N/A | N/A | N/A | N/A | | |
| CNTYVET | VETERANS RELIEF | N/A | N/A | N/A | N/A | | |
| MENTAL | MENTAL HEALTH | N/A | N/A | N/A | N/A | | |
| PTGEN | CITY OF PT GENERAL | N/A | N/A | N/A | N/A | | |
| PTLLL | CITY OF PT - LIBRARY LID LIFT | N/A | N/A | N/A | N/A | | |
| PTMVBOND | CITY OF PT MV BOND | N/A | N/A | N/A | N/A | | |
| HOSP2CASH | HOSP DIST #2 GENERAL | N/A | N/A | N/A | N/A | | |
| SCH50BOND | SCHOOL DIST #50 BOND 2016 | N/A | N/A | N/A | N/A | | |
| SCH50CP | SCHOOL DIST #50 CAP PROJ | N/A | N/A | N/A | N/A | | |
| SCH50MO | SCHOOL DIST #50 EP & O | N/A | N/A | N/A | N/A | | |
| CONSERVE | CONSERVATION FUTURES | N/A | N/A | N/A | N/A | | |
| EMS1 | FIRE DIST #1 EMS | N/A | N/A | N/A | N/A | | |
| FD1 | FIRE DIST #1 GENERAL | N/A | N/A | N/A | N/A | | |
| PORTPT | PORT OF PT GENERAL | N/A | N/A | N/A | N/A | | |
| PORTPTIDD | PORT OF PT IDD 2019 | N/A | N/A | N/A | N/A | | |
| PUD1 | PUD #1 GENERAL | N/A | N/A | N/A | N/A | | |
| STATE | STATE SCHOOL PART 1 | N/A | N/A | N/A | N/A | | |
| STATE2 | STATE SCHOOL PART 2 | N/A | N/A | N/A | N/A | | |
| | Total Tax Rate: | N/A | | | | | |
| | | | | Taxes w/Current Exemptions: | N/A | | |
| | | | | Taxes w/o Exemptions: | N/A | | |
Improvement / Building
| Improvement #1: | Residential Bldg | State Code: | 11 | 958.0 sqft | Value: | $202,784 |
| Bathrooms (#): | 2 (FULL) | Bathrooms (#): | 1 (HALF) | | Bedrooms (#): | 1 | Exterior Wall: | PL/T1 | | Fireplace: | SIN 2-AVG | Fireplace: | WD ST-AVG | | Floor Construction: | FRAME | Foundation: | CONPR | | Heating/Cooling: | ELBB | Inside Verify: | YES-FIX | | Roof Cover: | BLTUP |   |   |
|
| | Type | Description | Class CD | Sub Class CD | Year Built | Area |
| | MA | Main Area | 3 | 1S | 1978 | 958.0 |
| | HDECK | House Deck | 3 | * | 1978 | 812.0 |
| | SHED | Shed (Table Not Dep) | 3 | * | 1978 | 96.0 |
| | BSMTF | House basement finished | 2 | * | 1978 | 958.0 |
| Improvement #2: | Residential Bldg | State Code: | 11 | 592.0 sqft | Value: | $185,738 |
| Bathrooms (#): | 2 (FULL) | Bedrooms (#): | 1 | | Exterior Wall: | SI/ST | Floor Construction: | FRAME | | Foundation: | CONPR | Heating/Cooling: | OTHER | | Inside Verify: | YES-FIX | Roof Cover: | COMP |
|
| | Type | Description | Class CD | Sub Class CD | Year Built | Area |
| | MA | Main Area | 3 | 1S | 1997 | 592.0 |
| | HBAL | House Balcony | 3 | * | 1997 | 136.0 |
| | HDECK | House Deck | 3 | * | 1997 | 218.0 |
| | BSMTU | House basement unfinished | 1 | * | 1997 | 576.0 |
| | HLOFT | House Loft | 3 | * | 1997 | 252.0 |
Sketch
Property Image
Land
| 1 | 6300-1171L | Pettygroves Area Terr(VGood) | 0.0000 | 0.00 | 0.00 | 0.00 | 1.00 | $210,000 | $0 |
| 2 | 6300-1171L | Pettygroves Area Terr(VGood) | 0.0000 | 0.00 | 0.00 | 0.00 | 1.00 | $90,000 | $0 |
| 3 | 6300-1179L | Pettygroves XS Lots | 0.0000 | 0.00 | 0.00 | 0.00 | 2.00 | $165,000 | $0 |
Roll Value History
| 2025 | N/A | N/A | N/A | N/A | N/A |
| 2024 | $360,885 | $470,250 | $0 | $831,135 | $831,135 |
| 2023 | $346,450 | $443,625 | $0 | $790,075 | $790,075 |
| 2022 | $332,015 | $417,500 | $0 | $749,515 | $749,515 |
| 2021 | $279,474 | $281,250 | $0 | $560,724 | $560,724 |
Deed and Sales History
| 1 | 11/25/2013 | SWD | Statutory Warranty Deed | WILLIAM C WHITE TRUSTEE | STEPHEN C EVANS TRUSTEE | | | $375,000.00 | 120392 | |
| 2 | 01/10/2006 | QCD | Quit Claim Deed | DAVIS, SALLY, WHITE, COLE | WHITE, WILLIAM COLEMAN, DAVIS, | 0 | 0 | $0.00 | 105799 | 0 |
| 3 | 04/29/1993 | SWD | Statutory Warranty Deed | KVINSLAND, P GARY/SARAH B | RICKARD, ROBERT B/JACQUELINE | 0 | 0 | $0.00 | 71013 | 0 |
Payout Agreement
| No payout information available.. |