Property
Account |
| Property ID: | 38233 | Abbreviated Legal Description: | PETTYGROVE'S 2ND ADDITION BLK 22 LOTS 2 TO 7 |
| Parcel # / Geo ID: | 985202201 | Agent Code: | |
| Type: | Real | | |
| Tax Area: | 0110 - C-50F1E1H2 | Land Use Code | 11 |
| Open Space: | N | DFL | N |
| Historic Property: | N | Remodel Property: | N |
| Multi-Family Redevelopment: | N | | |
| Township: | 31N | Section: | 35 |
| Range: | 1W |
Location |
| Address: | 1731 ROSEWOOD ST PORT TOWNSEND, WA 98368 | Mapsco: | 097/054 |
| Neighborhood: | PORTION PETTYGROVES 2ND LYING W OF CHERRY,QED SP | Map ID: | |
| Neighborhood CD: | 6410 |
Owner |
| Name: | REHR THOMPSON REVOCABLE LIVING TRUST | Owner ID: | 73897 |
| Mailing Address: | JOHN J REHR TRUSTEE SUSAN R THOMPSON TRUSTEE 1731 ROSEWOOD ST PORT TOWNSEND, WA 98368-3302 | % Ownership: | 100.0000000000% |
| | | Exemptions: | |
Pay Tax Due
There is currently No Amount Due on this property.
Taxes and Assessment Details
Property Tax Information as of
10/24/2025
Click on "Statement Details" to expand or collapse a tax statement.
* Please enter a valid date ** Please enter a valid date *
Statement Details |
| | TOTAL: | $0.00 | $0.00 | $0.00 | $0.00 | $0.00 | $0.00 |
|
| | $0.00 | $0.00 | $0.00 | $0.00 | $0.00 | $0.00 |
Values
| (+) Improvement Homesite Value: | + | $430,525 | |
| (+) Improvement Non-Homesite Value: | + | $91,175 | |
| (+) Land Homesite Value: | + | $392,500 | |
| (+) Land Non-Homesite Value: | + | $0 | |
| (+) Curr Use (HS): | + | $0 | $0 |
| (+) Curr Use (NHS): | + | $0 | $0 |
| | | -------------------------- | |
| (=) Market Value: | = | $914,200 | |
| (–) Productivity Loss: | – | $0 | |
| | | -------------------------- | |
| (=) Subtotal: | = | $914,200 | |
| (+) Senior Appraised Value: | + | $0 | |
| (+) Non-Senior Appraised Value: | + | $914,200 | |
| | | -------------------------- | |
| (=) Total Appraised Value: | = | $914,200 | |
| (–) Senior Exemption Loss: | – | $0 | |
| (–) Exemption Loss: | – | $0 | |
| | | -------------------------- | |
| (=) Taxable Value: | = | $914,200 | |
Taxing Jurisdiction
| Owner: | REHR THOMPSON REVOCABLE LIVING TRUST | | |
| % Ownership: | 100.0000000000% | | |
| Total Value: | N/A | | |
| Tax Area: | 0110 - C-50F1E1H2 |
| CE | COUNTY CURRENT EXPENSE | N/A | N/A | N/A | N/A | | |
| CNTYDD | DEVELOPMENTAL DISABILITIES | N/A | N/A | N/A | N/A | | |
| CNTYVET | VETERANS RELIEF | N/A | N/A | N/A | N/A | | |
| MENTAL | MENTAL HEALTH | N/A | N/A | N/A | N/A | | |
| PTGEN | CITY OF PT GENERAL | N/A | N/A | N/A | N/A | | |
| PTLLL | CITY OF PT - LIBRARY LID LIFT | N/A | N/A | N/A | N/A | | |
| PTMVBOND | CITY OF PT MV BOND | N/A | N/A | N/A | N/A | | |
| HOSP2CASH | HOSP DIST #2 GENERAL | N/A | N/A | N/A | N/A | | |
| SCH50BOND | SCHOOL DIST #50 BOND 2016 | N/A | N/A | N/A | N/A | | |
| SCH50CP | SCHOOL DIST #50 CAP PROJ | N/A | N/A | N/A | N/A | | |
| SCH50MO | SCHOOL DIST #50 EP & O | N/A | N/A | N/A | N/A | | |
| CONSERVE | CONSERVATION FUTURES | N/A | N/A | N/A | N/A | | |
| EMS1 | FIRE DIST #1 EMS | N/A | N/A | N/A | N/A | | |
| FD1 | FIRE DIST #1 GENERAL | N/A | N/A | N/A | N/A | | |
| PORTPT | PORT OF PT GENERAL | N/A | N/A | N/A | N/A | | |
| PORTPTIDD | PORT OF PT IDD 2019 | N/A | N/A | N/A | N/A | | |
| PUD1 | PUD #1 GENERAL | N/A | N/A | N/A | N/A | | |
| STATE | STATE SCHOOL PART 1 | N/A | N/A | N/A | N/A | | |
| STATE2 | STATE SCHOOL PART 2 | N/A | N/A | N/A | N/A | | |
| | Total Tax Rate: | N/A | | | | | |
| | | | | Taxes w/Current Exemptions: | N/A | | |
| | | | | Taxes w/o Exemptions: | N/A | | |
Improvement / Building
| Improvement #1: | Residential Bldg | State Code: | 11 | 1906.0 sqft | Value: | $430,525 |
| Bathrooms (#): | 2 (FULL) | Bathrooms (#): | 1 (HALF) | | Bedrooms (#): | 3 | Exterior Wall: | SI/ST | | Fireplace: | SIN 2-AVG | Floor Construction: | FRAME | | Foundation: | CONPR | Heating/Cooling: | F/A | | Inside Verify: | YES-FIX | Roof Cover: | COMP |
|
| | Type | Description | Class CD | Sub Class CD | Year Built | Area |
| | MA | Main Area | 4 | 15SF | 1976 | 1456.0 |
| | MA2 | Second Floor Main Area | 4 | 15SF | 1976 | 450.0 |
| | HWPOR | House Wood Porch | 4 | * | 1976 | 40.0 |
| | HDECK | House Deck | 4 | * | 1976 | 129.5 |
| | HENCL | House Enclosure | 4 | * | 1976 | 90.0 |
| | SHED | Shed (Table Not Dep) | 3 | * | 1976 | 80.0 |
| | HLOFT | House Loft | 4 | * | 1976 | 330.0 |
| | BSMTF | House basement finished | 2 | * | 1976 | 284.9 |
| | BSMTU | House basement unfinished | 2 | * | 1976 | 529.1 |
| | SOLAR | Solar Panel | 3 | * | 1976 | 0.0 |
| Improvement #2: | Residential Bldg | State Code: | 11 | 0.0 sqft | Value: | $91,175 |
| | Type | Description | Class CD | Sub Class CD | Year Built | Area |
| | ADDN-D | Addition (Table Depreciated) | 4 | ADU | 1976 | 814.0 |
| | HDECK | House Deck | 4 | ADU | 1976 | 217.0 |
Sketch
Property Image
Land
| 1 | 6410-1177L | Pettygroves 2nd Area Terr(Fair) | 0.0000 | 0.00 | 0.00 | 0.00 | 1.00 | $155,000 | $0 |
| 2 | 6410-1177L | Pettygroves 2nd Area Terr(Fair) | 0.0000 | 0.00 | 0.00 | 0.00 | 1.00 | $62,500 | $0 |
| 3 | 6410-1177L | Pettygroves 2nd Area Terr(Fair) | 0.0000 | 0.00 | 0.00 | 0.00 | 4.00 | $175,000 | $0 |
Roll Value History
| 2025 | N/A | N/A | N/A | N/A | N/A |
| 2024 | $490,173 | $383,900 | $0 | $874,073 | $874,073 |
| 2023 | $494,899 | $361,200 | $0 | $856,099 | $856,099 |
| 2022 | $453,658 | $339,000 | $0 | $792,658 | $792,658 |
| 2021 | $379,313 | $207,250 | $0 | $586,563 | $586,563 |
Deed and Sales History
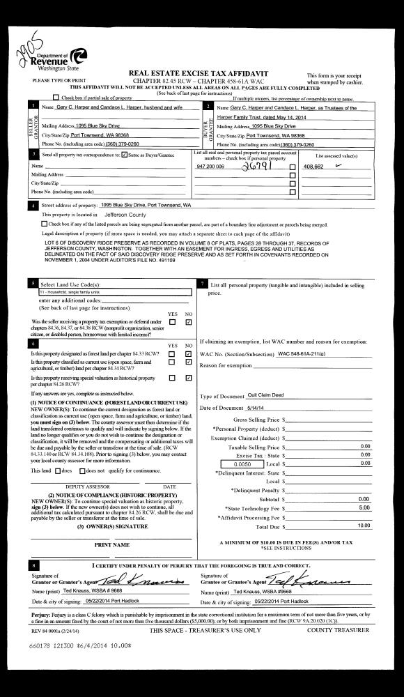
| 1 | 06/03/2021 | QCD | Quit Claim Deed | JOHN J REHR | REHR THOMPSON REVOCABLE LIVING TRUST | | | | 136858 | |
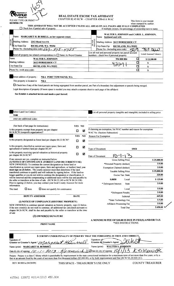
| 2 | 10/26/2015 | SWD | Statutory Warranty Deed | JAMES A OAKLAND 50% INT | JOHN J REHR | | | $445,000.00 | 124268 | |
| 3 | 03/08/2012 | QCD | Quit Claim Deed | JOHANNES M VELLEKOOP | JAMES A OAKLAND 50% INT | | | $0.00 | 123461 | |
| 4 | 09/23/2010 | SWD | Statutory Warranty Deed | WILLARD, STANLEY/S. ANNE | VELLEKOOP,JOHANNES/OAKLAND,SUI | 0 | 0 | $360,000.00 | 114948 | 0 |
| 5 | 05/16/2001 | SWD | Statutory Warranty Deed | WONG, BONNIE K TRUSTEE OF | WILLARD, STANLEY G/S ANNE | 0 | 0 | $246,000.00 | 92239 | 0 |
| 6 | 09/22/1999 | QCD | Quit Claim Deed | WONG, BONNIE K | WONG REVOCABLE LIVING TRUST | 0 | 0 | $0.00 | 88017 | 0 |
Payout Agreement
| No payout information available.. |