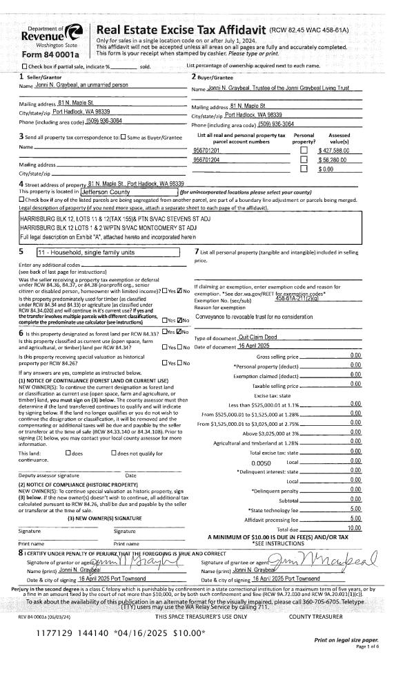
Property
Account |
| Property ID: | 38238 | Abbreviated Legal Description: | PETTYGROVE'S 2ND ADDITION BLK 23 LOTS 1(LS N80'), 2(LS E25'&N80'),7(LS E25'),8(ALL) |
| Parcel # / Geo ID: | 985202305 | Agent Code: | |
| Type: | Real | | |
| Tax Area: | 0110 - C-50F1E1H2 | Land Use Code | 11 |
| Open Space: | N | DFL | N |
| Historic Property: | N | Remodel Property: | N |
| Multi-Family Redevelopment: | N | | |
| Township: | 30N | Section: | 2 |
| Range: | 1W |
Location |
| Address: | 1620 SPRUCE ST PORT TOWNSEND, WA 98368 | Mapsco: | 097/057 |
| Neighborhood: | PORTION PETTYGROVES 2ND LYING W OF CHERRY,QED SP | Map ID: | |
| Neighborhood CD: | 6410 |
Owner |
| Name: | MICHAEL LEVINE REV LIVING TRUST | Owner ID: | 20772 |
| Mailing Address: | MICHAEL LEVINE TRUSTEE 789 QUINCY ST PORT TOWNSEND, WA 98368-5524 | % Ownership: | 100.0000000000% |
| | | Exemptions: | |
Pay Tax Due
There is currently No Amount Due on this property.
Taxes and Assessment Details
Property Tax Information as of
10/24/2025
Click on "Statement Details" to expand or collapse a tax statement.
* Please enter a valid date ** Please enter a valid date *
Statement Details |
| | TOTAL: | $0.00 | $0.00 | $0.00 | $0.00 | $0.00 | $0.00 |
|
| | $0.00 | $0.00 | $0.00 | $0.00 | $0.00 | $0.00 |
Values
| (+) Improvement Homesite Value: | + | $0 | |
| (+) Improvement Non-Homesite Value: | + | $106,840 | |
| (+) Land Homesite Value: | + | $0 | |
| (+) Land Non-Homesite Value: | + | $205,000 | |
| (+) Curr Use (HS): | + | $0 | $0 |
| (+) Curr Use (NHS): | + | $0 | $0 |
| | | -------------------------- | |
| (=) Market Value: | = | $311,840 | |
| (–) Productivity Loss: | – | $0 | |
| | | -------------------------- | |
| (=) Subtotal: | = | $311,840 | |
| (+) Senior Appraised Value: | + | $0 | |
| (+) Non-Senior Appraised Value: | + | $311,840 | |
| | | -------------------------- | |
| (=) Total Appraised Value: | = | $311,840 | |
| (–) Senior Exemption Loss: | – | $0 | |
| (–) Exemption Loss: | – | $0 | |
| | | -------------------------- | |
| (=) Taxable Value: | = | $311,840 | |
Taxing Jurisdiction
| Owner: | MICHAEL LEVINE REV LIVING TRUST | | |
| % Ownership: | 100.0000000000% | | |
| Total Value: | N/A | | |
| Tax Area: | 0110 - C-50F1E1H2 |
| CE | COUNTY CURRENT EXPENSE | N/A | N/A | N/A | N/A | | |
| CNTYDD | DEVELOPMENTAL DISABILITIES | N/A | N/A | N/A | N/A | | |
| CNTYVET | VETERANS RELIEF | N/A | N/A | N/A | N/A | | |
| MENTAL | MENTAL HEALTH | N/A | N/A | N/A | N/A | | |
| PTGEN | CITY OF PT GENERAL | N/A | N/A | N/A | N/A | | |
| PTLLL | CITY OF PT - LIBRARY LID LIFT | N/A | N/A | N/A | N/A | | |
| PTMVBOND | CITY OF PT MV BOND | N/A | N/A | N/A | N/A | | |
| HOSP2CASH | HOSP DIST #2 GENERAL | N/A | N/A | N/A | N/A | | |
| SCH50BOND | SCHOOL DIST #50 BOND 2016 | N/A | N/A | N/A | N/A | | |
| SCH50CP | SCHOOL DIST #50 CAP PROJ | N/A | N/A | N/A | N/A | | |
| SCH50MO | SCHOOL DIST #50 EP & O | N/A | N/A | N/A | N/A | | |
| CONSERVE | CONSERVATION FUTURES | N/A | N/A | N/A | N/A | | |
| EMS1 | FIRE DIST #1 EMS | N/A | N/A | N/A | N/A | | |
| FD1 | FIRE DIST #1 GENERAL | N/A | N/A | N/A | N/A | | |
| PORTPT | PORT OF PT GENERAL | N/A | N/A | N/A | N/A | | |
| PORTPTIDD | PORT OF PT IDD 2019 | N/A | N/A | N/A | N/A | | |
| PUD1 | PUD #1 GENERAL | N/A | N/A | N/A | N/A | | |
| STATE | STATE SCHOOL PART 1 | N/A | N/A | N/A | N/A | | |
| STATE2 | STATE SCHOOL PART 2 | N/A | N/A | N/A | N/A | | |
| | Total Tax Rate: | N/A | | | | | |
| | | | | Taxes w/Current Exemptions: | N/A | | |
| | | | | Taxes w/o Exemptions: | N/A | | |
Improvement / Building
| Improvement #1: | Residential Bldg | State Code: | 11 | 699.0 sqft | Value: | $106,840 |
| Bathrooms (#): | 1 (FULL) | Bedrooms (#): | 2 | | Exterior Wall: | SI/ST | Fireplace: | WD ST-AVG | | Floor Construction: | FRAME | Foundation: | PO&BL | | Heating/Cooling: | WD/NO | Inside Verify: | YES-FIX | | Roof Cover: | METAL |   |   |
|
| | Type | Description | Class CD | Sub Class CD | Year Built | Area |
| | MA | Main Area | 3 | 1S | 1918 | 699.0 |
| | HWPOR | House Wood Porch | 2 | * | 1918 | 201.0 |
| | HENCL | House Enclosure | 2 | * | 1918 | 45.0 |
Sketch
Property Image
Land
| 1 | 6410-1177L | Pettygroves 2nd Area Terr(Fair) | 0.0000 | 0.00 | 0.00 | 0.00 | 1.00 | $155,000 | $0 |
| 2 | 6410-1177L | Pettygroves 2nd Area Terr(Fair) | 0.0000 | 0.00 | 0.00 | 0.00 | 1.00 | $50,000 | $0 |
Roll Value History
| 2025 | N/A | N/A | N/A | N/A | N/A |
| 2024 | $102,454 | $202,400 | $0 | $304,854 | $304,854 |
| 2023 | $98,356 | $187,950 | $0 | $286,306 | $286,306 |
| 2022 | $90,159 | $174,000 | $0 | $264,159 | $264,159 |
| 2021 | $75,384 | $109,750 | $0 | $185,134 | $185,134 |
Deed and Sales History
| 1 | 01/05/2021 | QCD | Quit Claim Deed | MICHAEL LEVINE TRSTEE | MICHAEL LEVINE REV LIVING TRUST | | | | 136559 | |
| 2 | 03/18/2009 | SWD | Statutory Warranty Deed | LEVINE, MICHAEL | LEVINE, MICHAEL TRUSTEE OF THE | 0 | 0 | $0.00 | 113224 | 0 |
| 3 | 09/01/2005 | QCD | Quit Claim Deed | LEVINE, MICHAEL N | LEVINE, MICHAEL/LEVINE, KEVIN | 0 | 0 | $0.00 | 104647 | 0 |
| 4 | 11/28/1998 | QCD | Quit Claim Deed | LEVINE, KEVIN | LEVINE, MICHAEL N | 0 | 0 | $0.00 | 85967 | 0 |
Payout Agreement
| No payout information available.. |