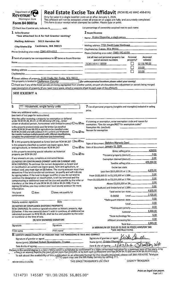
Property
Account |
| Property ID: | 38267 | Abbreviated Legal Description: | PETTYGROVE'S 2ND ADDITION BLK 30 LOTS 1 & 2 |
| Parcel # / Geo ID: | 985203604 | Agent Code: | |
| Type: | Real | | |
| Tax Area: | 0110 - C-50F1E1H2 | Land Use Code | 11 |
| Open Space: | N | DFL | N |
| Historic Property: | N | Remodel Property: | N |
| Multi-Family Redevelopment: | N | | |
| Township: | 31N | Section: | 35 |
| Range: | 1W |
Location |
| Address: | 1229 W ST PORT TOWNSEND, WA 98368 | Mapsco: | 098/021 |
| Neighborhood: | PORTION PETTYGROVES 2ND LYING W OF CHERRY,QED SP | Map ID: | |
| Neighborhood CD: | 6410 |
Owner |
| Name: | HENRY & PATRICIA CARDOSA REVOCABLE LIVING TRUST | Owner ID: | 111341 |
| Mailing Address: | HENRY T & PATRICIA ANNE C CARDOSA TTEES 1229 W ST PORT TOWNSEND, WA 98368-2741 | % Ownership: | 100.0000000000% |
| | | Exemptions: | |
Pay Tax Due
There is currently No Amount Due on this property.
Taxes and Assessment Details
Property Tax Information as of
10/24/2025
Click on "Statement Details" to expand or collapse a tax statement.
* Please enter a valid date ** Please enter a valid date *
Statement Details |
| | TOTAL: | $0.00 | $0.00 | $0.00 | $0.00 | $0.00 | $0.00 |
|
| | $0.00 | $0.00 | $0.00 | $0.00 | $0.00 | $0.00 |
Values
| (+) Improvement Homesite Value: | + | $0 | |
| (+) Improvement Non-Homesite Value: | + | $413,571 | |
| (+) Land Homesite Value: | + | $0 | |
| (+) Land Non-Homesite Value: | + | $322,500 | |
| (+) Curr Use (HS): | + | $0 | $0 |
| (+) Curr Use (NHS): | + | $0 | $0 |
| | | -------------------------- | |
| (=) Market Value: | = | $736,071 | |
| (–) Productivity Loss: | – | $0 | |
| | | -------------------------- | |
| (=) Subtotal: | = | $736,071 | |
| (+) Senior Appraised Value: | + | $0 | |
| (+) Non-Senior Appraised Value: | + | $736,071 | |
| | | -------------------------- | |
| (=) Total Appraised Value: | = | $736,071 | |
| (–) Senior Exemption Loss: | – | $0 | |
| (–) Exemption Loss: | – | $0 | |
| | | -------------------------- | |
| (=) Taxable Value: | = | $736,071 | |
Taxing Jurisdiction
| Owner: | HENRY & PATRICIA CARDOSA REVOCABLE LIVING TRUST | | |
| % Ownership: | 100.0000000000% | | |
| Total Value: | N/A | | |
| Tax Area: | 0110 - C-50F1E1H2 |
| CE | COUNTY CURRENT EXPENSE | N/A | N/A | N/A | N/A | | |
| CNTYDD | DEVELOPMENTAL DISABILITIES | N/A | N/A | N/A | N/A | | |
| CNTYVET | VETERANS RELIEF | N/A | N/A | N/A | N/A | | |
| MENTAL | MENTAL HEALTH | N/A | N/A | N/A | N/A | | |
| PTGEN | CITY OF PT GENERAL | N/A | N/A | N/A | N/A | | |
| PTLLL | CITY OF PT - LIBRARY LID LIFT | N/A | N/A | N/A | N/A | | |
| PTMVBOND | CITY OF PT MV BOND | N/A | N/A | N/A | N/A | | |
| HOSP2CASH | HOSP DIST #2 GENERAL | N/A | N/A | N/A | N/A | | |
| SCH50BOND | SCHOOL DIST #50 BOND 2016 | N/A | N/A | N/A | N/A | | |
| SCH50CP | SCHOOL DIST #50 CAP PROJ | N/A | N/A | N/A | N/A | | |
| SCH50MO | SCHOOL DIST #50 EP & O | N/A | N/A | N/A | N/A | | |
| CONSERVE | CONSERVATION FUTURES | N/A | N/A | N/A | N/A | | |
| EMS1 | FIRE DIST #1 EMS | N/A | N/A | N/A | N/A | | |
| FD1 | FIRE DIST #1 GENERAL | N/A | N/A | N/A | N/A | | |
| PORTPT | PORT OF PT GENERAL | N/A | N/A | N/A | N/A | | |
| PORTPTIDD | PORT OF PT IDD 2019 | N/A | N/A | N/A | N/A | | |
| PUD1 | PUD #1 GENERAL | N/A | N/A | N/A | N/A | | |
| STATE | STATE SCHOOL PART 1 | N/A | N/A | N/A | N/A | | |
| STATE2 | STATE SCHOOL PART 2 | N/A | N/A | N/A | N/A | | |
| | Total Tax Rate: | N/A | | | | | |
| | | | | Taxes w/Current Exemptions: | N/A | | |
| | | | | Taxes w/o Exemptions: | N/A | | |
Improvement / Building
| Improvement #1: | Residential Bldg | State Code: | 11 | 1650.0 sqft | Value: | $413,571 |
| Bathrooms (#): | 2 (FULL) | Bathrooms (#): | 1 (HALF) | | Bedrooms (#): | 3 | Exterior Wall: | SI/ST | | Fireplace: | WD ST-GOOD | Floor Construction: | FRAME | | Foundation: | CONPR | Heating/Cooling: | MINISPLIT | | Inside Verify: | YES-FIX | Roof Cover: | COMP |
|
| | Type | Description | Class CD | Sub Class CD | Year Built | Area |
| | MA | Main Area | 4+ | 15SF | 1984 | 952.0 |
| | MA2 | Second Floor Main Area | 4+ | 15SF | 1984 | 698.0 |
| | HWPOR | House Wood Porch | 4 | * | 1984 | 144.0 |
| | GDET | Detached Garage | 3 | 15SF | 1984 | 400.0 |
Sketch
Property Image
Land
| 1 | 6410-1173L | Pettygroves 2nd Area Terr(Good) | 0.0000 | 0.00 | 0.00 | 0.00 | 1.00 | $225,000 | $0 |
| 2 | 6410-1173L | Pettygroves 2nd Area Terr(Good) | 0.0000 | 0.00 | 0.00 | 0.00 | 1.00 | $97,500 | $0 |
Roll Value History
| 2025 | N/A | N/A | N/A | N/A | N/A |
| 2024 | $386,244 | $321,750 | $0 | $707,994 | $707,994 |
| 2023 | $370,794 | $301,875 | $0 | $672,669 | $672,669 |
| 2022 | $339,895 | $282,500 | $0 | $622,395 | $622,395 |
| 2021 | $284,194 | $178,125 | $0 | $462,319 | $462,319 |
Deed and Sales History
| 1 | 08/23/2024 | SWD | Statutory Warranty Deed | AMY MCINTYRE YALEY | HENRY & PATRICIA CARDOSA REVOCABLE LIVING TRUST | | | $775,100.00 | 143134 | |
| 2 | 01/26/2021 | QCD | Quit Claim Deed | AMY MCINTYRE YALEY | AMY MCINTYRE YALEY | | | | 136020 | |
| 3 | 07/08/2016 | SWD | Statutory Warranty Deed | LAURA & TIMOTHY BRUNER | AMY MCINTYRE YALEY | | | $359,000.00 | 125871 | |
| 4 | 03/17/2015 | SWD | Statutory Warranty Deed | DOUGLAS M HEMPHILL TRUST | LAURA & TIMOTHY BRUNER | | | $299,000.00 | 122892 | |
| 5 | 07/24/2013 | QCD | Quit Claim Deed | DOUGLAS M HEMPHILL | DOUGLAS M HEMPHILL TRUST | | | | 119767 | |
| 6 | 05/02/2012 | QCD | Quit Claim Deed | WHITTLSEY, LINDA CM | HEMPHILL, DOUGLAS C | 0 | 0 | $0.00 | 117814 | 0 |
| 7 | 01/28/2009 | SWD | Statutory Warranty Deed | DE ROCHEFORT, MARC/SUSAN | HEMPHILL, DOUGLAS/WHITTLESEY | 0 | 0 | $325,000.00 | 112492 | 0 |
| 8 | 05/21/1997 | SWD | Statutory Warranty Deed | HINDLEY, NORMAN D/SOPHIA | DEROCHEFORT, MARC/SUSAN | 0 | 0 | $130,000.00 | 82140 | 0 |
Payout Agreement
| No payout information available.. |