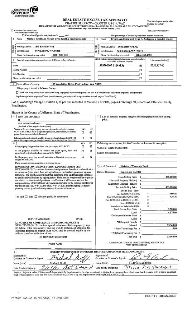
Property
Account |
| Property ID: | 38303 | Abbreviated Legal Description: | PETTYGROVE'S 2ND ADDITION BLK 57 LOT 1 & 2 |
| Parcel # / Geo ID: | 985205701 | Agent Code: | |
| Type: | Real | | |
| Tax Area: | 0110 - C-50F1E1H2 | Land Use Code | 11 |
| Open Space: | N | DFL | N |
| Historic Property: | N | Remodel Property: | N |
| Multi-Family Redevelopment: | N | | |
| Township: | 31N | Section: | 35 |
| Range: | 1W |
Location |
| Address: | 925 W ST PORT TOWNSEND, WA 98368 | Mapsco: | 099/009 |
| Neighborhood: | PORTION PETTYGROVES 2ND LYING W OF CHERRY,QED SP | Map ID: | |
| Neighborhood CD: | 6410 |
Owner |
| Name: | KENDRA L HERMANSON | Owner ID: | 105549 |
| Mailing Address: | 925 W ST PORT TOWNSEND, WA 98368-3434 | % Ownership: | 100.0000000000% |
| | | Exemptions: | |
Pay Tax Due
There is currently No Amount Due on this property.
Taxes and Assessment Details
Property Tax Information as of
10/24/2025
Click on "Statement Details" to expand or collapse a tax statement.
* Please enter a valid date ** Please enter a valid date *
Statement Details |
| | TOTAL: | $0.00 | $0.00 | $0.00 | $0.00 | $0.00 | $0.00 |
|
| | $0.00 | $0.00 | $0.00 | $0.00 | $0.00 | $0.00 |
Values
| (+) Improvement Homesite Value: | + | $0 | |
| (+) Improvement Non-Homesite Value: | + | $137,670 | |
| (+) Land Homesite Value: | + | $0 | |
| (+) Land Non-Homesite Value: | + | $322,500 | |
| (+) Curr Use (HS): | + | $0 | $0 |
| (+) Curr Use (NHS): | + | $0 | $0 |
| | | -------------------------- | |
| (=) Market Value: | = | $460,170 | |
| (–) Productivity Loss: | – | $0 | |
| | | -------------------------- | |
| (=) Subtotal: | = | $460,170 | |
| (+) Senior Appraised Value: | + | $0 | |
| (+) Non-Senior Appraised Value: | + | $460,170 | |
| | | -------------------------- | |
| (=) Total Appraised Value: | = | $460,170 | |
| (–) Senior Exemption Loss: | – | $0 | |
| (–) Exemption Loss: | – | $0 | |
| | | -------------------------- | |
| (=) Taxable Value: | = | $460,170 | |
Taxing Jurisdiction
| Owner: | KENDRA L HERMANSON | | |
| % Ownership: | 100.0000000000% | | |
| Total Value: | N/A | | |
| Tax Area: | 0110 - C-50F1E1H2 |
| CE | COUNTY CURRENT EXPENSE | N/A | N/A | N/A | N/A | | |
| CNTYDD | DEVELOPMENTAL DISABILITIES | N/A | N/A | N/A | N/A | | |
| CNTYVET | VETERANS RELIEF | N/A | N/A | N/A | N/A | | |
| MENTAL | MENTAL HEALTH | N/A | N/A | N/A | N/A | | |
| PTGEN | CITY OF PT GENERAL | N/A | N/A | N/A | N/A | | |
| PTLLL | CITY OF PT - LIBRARY LID LIFT | N/A | N/A | N/A | N/A | | |
| PTMVBOND | CITY OF PT MV BOND | N/A | N/A | N/A | N/A | | |
| HOSP2CASH | HOSP DIST #2 GENERAL | N/A | N/A | N/A | N/A | | |
| SCH50BOND | SCHOOL DIST #50 BOND 2016 | N/A | N/A | N/A | N/A | | |
| SCH50CP | SCHOOL DIST #50 CAP PROJ | N/A | N/A | N/A | N/A | | |
| SCH50MO | SCHOOL DIST #50 EP & O | N/A | N/A | N/A | N/A | | |
| CONSERVE | CONSERVATION FUTURES | N/A | N/A | N/A | N/A | | |
| EMS1 | FIRE DIST #1 EMS | N/A | N/A | N/A | N/A | | |
| FD1 | FIRE DIST #1 GENERAL | N/A | N/A | N/A | N/A | | |
| PORTPT | PORT OF PT GENERAL | N/A | N/A | N/A | N/A | | |
| PORTPTIDD | PORT OF PT IDD 2019 | N/A | N/A | N/A | N/A | | |
| PUD1 | PUD #1 GENERAL | N/A | N/A | N/A | N/A | | |
| STATE | STATE SCHOOL PART 1 | N/A | N/A | N/A | N/A | | |
| STATE2 | STATE SCHOOL PART 2 | N/A | N/A | N/A | N/A | | |
| | Total Tax Rate: | N/A | | | | | |
| | | | | Taxes w/Current Exemptions: | N/A | | |
| | | | | Taxes w/o Exemptions: | N/A | | |
Improvement / Building
| Improvement #1: | Residential Bldg | State Code: | 11 | 1008.0 sqft | Value: | $137,670 |
| Bathrooms (#): | 1 (FULL) | Bedrooms (#): | 2 | | Exterior Wall: | SI/ST | Floor Construction: | FRAME | | Foundation: | PO&BL | Heating/Cooling: | F/A | | Inside Verify: | YES-FIX | Roof Cover: | COMP |
|
| | Type | Description | Class CD | Sub Class CD | Year Built | Area |
| | MA | Main Area | 3 | 1S | 1950 | 1008.0 |
| | HWPOR | House Wood Porch | 3 | * | 1950 | 48.0 |
| | HENCL | House Enclosure | 3 | * | 1950 | 80.0 |
| | PATIO | House Patio | 3 | 1S | 1950 | 135.0 |
| | HDECK | House Deck | 4 | 1S | 2020 | 180.0 |
| | SHED | Shed (Table Not Dep) | 4 | * | 2020 | 160.0 |
Sketch
Property Image
Land
| 1 | 6410-1173L | Pettygroves 2nd Area Terr(Good) | 0.0000 | 0.00 | 0.00 | 0.00 | 1.00 | $225,000 | $0 |
| 2 | 6410-1173L | Pettygroves 2nd Area Terr(Good) | 0.0000 | 0.00 | 0.00 | 0.00 | 1.00 | $97,500 | $0 |
Roll Value History
| 2025 | N/A | N/A | N/A | N/A | N/A |
| 2024 | $122,704 | $321,750 | $0 | $444,454 | $444,454 |
| 2023 | $117,796 | $301,875 | $0 | $419,671 | $419,671 |
| 2022 | $107,979 | $282,500 | $0 | $390,479 | $390,479 |
| 2021 | $90,284 | $178,125 | $0 | $268,409 | $268,409 |
Deed and Sales History
| 1 | 02/16/2022 | MISC | MISC | HARRY JOHNSON LIVING TRUST | KENDRA L HERMANSON | | | | 0 | QTA 21-2-00179-16 |
| 2 | 03/23/2021 | SWD | Statutory Warranty Deed | STEPHEN S HERMANSON | KENDRA HERMANSON | | | $180,000.00 | 136387 | |
| 3 | 10/05/2012 | QCD | Quit Claim Deed | HERMANSON TRSTE, DOROTHY | HERMANSON, STEPHEN S | 0 | 0 | $0.00 | 118179 | 0 |
| 4 | 06/26/2006 | QCD | Quit Claim Deed | JOHNSON, HARRY D | HERMANSON, JAMES & DOROTHY TRU | | | $17,000.00 | 106957 | 0 |
| 5 | 01/07/2000 | QCD | Quit Claim Deed | HERMANSON, JAMES S/DOROTH | HERMANSON, JAMES & DOROTHY/TR | 0 | 0 | $0.00 | 88779 | 0 |
| 6 | 05/05/1993 | QCD | Quit Claim Deed | JOHNSON, HARRY | JOHNSON, HARRY DAVID TRUST | 0 | 0 | $0.00 | 71015 | 0 |
Payout Agreement
| No payout information available.. |