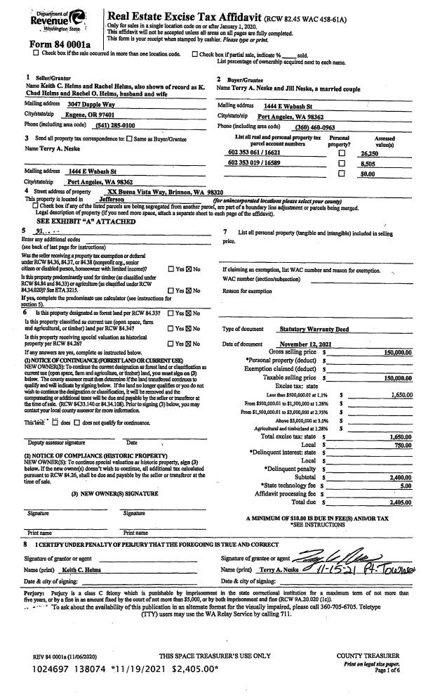
Property
Account |
| Property ID: | 38376 | Abbreviated Legal Description: | PETTYGROVE'S 2ND ADDITION BLK 93 LOTS 5 & 6-LOTS OF RECORD AF#599192 |
| Parcel # / Geo ID: | 985209302 | Agent Code: | |
| Type: | Real | | |
| Tax Area: | 0110 - C-50F1E1H2 | Land Use Code | 11 |
| Open Space: | N | DFL | N |
| Historic Property: | N | Remodel Property: | N |
| Multi-Family Redevelopment: | N | | |
| Township: | 31N | Section: | 35 |
| Range: | 1W |
Location |
| Address: | 1909 WALNUT ST PORT TOWNSEND, WA 98368 | Mapsco: | 100/042 |
| Neighborhood: | PTN OF PETTYGROVES 2ND LYING EAST OF CHERRY ST. & ALDRICH'S | Map ID: | |
| Neighborhood CD: | 6420 |
Owner |
| Name: | KATHLEEN ANN FOX | Owner ID: | 107394 |
| Mailing Address: | 1909 WALNUT ST PORT TOWNSEND, WA 98368-3613 | % Ownership: | 100.0000000000% |
| | | Exemptions: | |
Pay Tax Due
There is currently No Amount Due on this property.
Taxes and Assessment Details
Property Tax Information as of
10/24/2025
Click on "Statement Details" to expand or collapse a tax statement.
* Please enter a valid date ** Please enter a valid date *
Statement Details |
| | TOTAL: | $0.00 | $0.00 | $0.00 | $0.00 | $0.00 | $0.00 |
|
| | $0.00 | $0.00 | $0.00 | $0.00 | $0.00 | $0.00 |
Values
| (+) Improvement Homesite Value: | + | $220,070 | |
| (+) Improvement Non-Homesite Value: | + | $40,573 | |
| (+) Land Homesite Value: | + | $262,500 | |
| (+) Land Non-Homesite Value: | + | $0 | |
| (+) Curr Use (HS): | + | $0 | $0 |
| (+) Curr Use (NHS): | + | $0 | $0 |
| | | -------------------------- | |
| (=) Market Value: | = | $523,143 | |
| (–) Productivity Loss: | – | $0 | |
| | | -------------------------- | |
| (=) Subtotal: | = | $523,143 | |
| (+) Senior Appraised Value: | + | $0 | |
| (+) Non-Senior Appraised Value: | + | $523,143 | |
| | | -------------------------- | |
| (=) Total Appraised Value: | = | $523,143 | |
| (–) Senior Exemption Loss: | – | $0 | |
| (–) Exemption Loss: | – | $0 | |
| | | -------------------------- | |
| (=) Taxable Value: | = | $523,143 | |
Taxing Jurisdiction
| Owner: | KATHLEEN ANN FOX | | |
| % Ownership: | 100.0000000000% | | |
| Total Value: | N/A | | |
| Tax Area: | 0110 - C-50F1E1H2 |
| CE | COUNTY CURRENT EXPENSE | N/A | N/A | N/A | N/A | | |
| CNTYDD | DEVELOPMENTAL DISABILITIES | N/A | N/A | N/A | N/A | | |
| CNTYVET | VETERANS RELIEF | N/A | N/A | N/A | N/A | | |
| MENTAL | MENTAL HEALTH | N/A | N/A | N/A | N/A | | |
| PTGEN | CITY OF PT GENERAL | N/A | N/A | N/A | N/A | | |
| PTLLL | CITY OF PT - LIBRARY LID LIFT | N/A | N/A | N/A | N/A | | |
| PTMVBOND | CITY OF PT MV BOND | N/A | N/A | N/A | N/A | | |
| HOSP2CASH | HOSP DIST #2 GENERAL | N/A | N/A | N/A | N/A | | |
| SCH50BOND | SCHOOL DIST #50 BOND 2016 | N/A | N/A | N/A | N/A | | |
| SCH50CP | SCHOOL DIST #50 CAP PROJ | N/A | N/A | N/A | N/A | | |
| SCH50MO | SCHOOL DIST #50 EP & O | N/A | N/A | N/A | N/A | | |
| CONSERVE | CONSERVATION FUTURES | N/A | N/A | N/A | N/A | | |
| EMS1 | FIRE DIST #1 EMS | N/A | N/A | N/A | N/A | | |
| FD1 | FIRE DIST #1 GENERAL | N/A | N/A | N/A | N/A | | |
| PORTPT | PORT OF PT GENERAL | N/A | N/A | N/A | N/A | | |
| PORTPTIDD | PORT OF PT IDD 2019 | N/A | N/A | N/A | N/A | | |
| PUD1 | PUD #1 GENERAL | N/A | N/A | N/A | N/A | | |
| STATE | STATE SCHOOL PART 1 | N/A | N/A | N/A | N/A | | |
| STATE2 | STATE SCHOOL PART 2 | N/A | N/A | N/A | N/A | | |
| | Total Tax Rate: | N/A | | | | | |
| | | | | Taxes w/Current Exemptions: | N/A | | |
| | | | | Taxes w/o Exemptions: | N/A | | |
Improvement / Building
| Improvement #1: | Residential Bldg | State Code: | 11 | 1056.0 sqft | Value: | $220,070 |
| Bathrooms (#): | 2 (FULL) | Bedrooms (#): | 2 | | Exterior Wall: | PL/T1 | Fireplace: | WD ST-GOOD | | Floor Construction: | FRAME | Foundation: | CONPR | | Heating/Cooling: | HPUMP | Inside Verify: | YES-FIX | | Roof Cover: | COMP |   |   |
|
| | Type | Description | Class CD | Sub Class CD | Year Built | Area |
| | MA | Main Area | 3 | 1S | 1983 | 1056.0 |
| | GATT | House Attached Garage | 3 | 1S | 1983 | 480.0 |
| | CONCD | Concrete Drive | 3 | * | 1983 | 700.0 |
| | PATIO | House Patio | 3 | * | 1983 | 296.0 |
| | HDECK | House Deck | 3 | * | 2019 | 60.0 |
| Improvement #2: | Residential Bldg | State Code: | 11 | 0.0 sqft | Value: | $40,573 |
| | Type | Description | Class CD | Sub Class CD | Year Built | Area |
| | ADDN | Addition (Table Not Dep) | 4 | ADU | 1983 | 280.0 |
| | HDECK | House Deck | 3 | * | 1983 | 24.0 |
Sketch
Property Image
Land
| 1 | 6420-1173L | Pettygroves 2nd Area Terr(Good) | 0.0000 | 0.00 | 0.00 | 0.00 | 1.00 | $185,000 | $0 |
| 2 | 6420-1173L | Pettygroves 2nd Area Terr(Good) | 0.0000 | 0.00 | 0.00 | 0.00 | 1.00 | $77,500 | $0 |
Roll Value History
| 2025 | N/A | N/A | N/A | N/A | N/A |
| 2024 | $244,194 | $264,000 | $0 | $508,194 | $508,194 |
| 2023 | $234,426 | $246,750 | $0 | $481,176 | $481,176 |
| 2022 | $214,890 | $230,000 | $0 | $444,890 | $444,890 |
| 2021 | $179,674 | $206,250 | $0 | $385,924 | $385,924 |
Deed and Sales History
| 1 | 06/06/2022 | QCD | Quit Claim Deed | VERNON I GARRISON LIVING TRUST | KATHLEEN A FOX | | | | 139227 | |
| 2 | 04/15/2016 | SWD | Statutory Warranty Deed | DAVID C HARRISON | VERNON I GARRISON LIVING TRUST | | | $319,000.00 | 125213 | |
|   | |
| 3 | 03/21/2011 | PRD | Personal Representatives Deed | HARRISON, SUSANNE F ESTAT | HARRISON, DAVID C | | | $0.00 | 115923 | 0 |
| 4 | 03/21/2011 | MISC | MISC | HARRISON, SALLY A | HARRISON, SUSANNE F | | | $0.00 | 115856 | 0 |
| 5 | 10/07/1996 | QCD | Quit Claim Deed | HARRISON, SUSANNE F | HARRISON, SUSANNE F/SALLY A | 0 | 0 | $0.00 | 80562 | 0 |
Payout Agreement
| No payout information available.. |