Property
Account |
| Property ID: | 38476 | Abbreviated Legal Description: | PETTYGROVE PARK BLK 2 LOT 4 |
| Parcel # / Geo ID: | 985800204 | Agent Code: | |
| Type: | Real | | |
| Tax Area: | 0110 - C-50F1E1H2 | Land Use Code | 11 |
| Open Space: | N | DFL | N |
| Historic Property: | N | Remodel Property: | N |
| Multi-Family Redevelopment: | N | | |
| Township: | 31N | Section: | 35 |
| Range: | 1W |
Location |
| Address: | 715 T ST PORT TOWNSEND, WA 98368 | Mapsco: | 102/025 |
| Neighborhood: | PETTYGROVES 1ST & PETTYGROVES PARK | Map ID: | |
| Neighborhood CD: | 6300 |
Owner |
| Name: | ROBYN M GARING | Owner ID: | 103842 |
| Mailing Address: | PO BOX 1044 PORT HADLOCK, WA 98339-1044 | % Ownership: | 100.0000000000% |
| | | Exemptions: | |
Pay Tax Due
There is currently No Amount Due on this property.
Taxes and Assessment Details
Property Tax Information as of
10/24/2025
Click on "Statement Details" to expand or collapse a tax statement.
* Please enter a valid date ** Please enter a valid date *
Statement Details |
| | TOTAL: | $0.00 | $0.00 | $0.00 | $0.00 | $0.00 | $0.00 |
|
| | $0.00 | $0.00 | $0.00 | $0.00 | $0.00 | $0.00 |
Values
| (+) Improvement Homesite Value: | + | $328,863 | |
| (+) Improvement Non-Homesite Value: | + | $0 | |
| (+) Land Homesite Value: | + | $165,000 | |
| (+) Land Non-Homesite Value: | + | $0 | |
| (+) Curr Use (HS): | + | $0 | $0 |
| (+) Curr Use (NHS): | + | $0 | $0 |
| | | -------------------------- | |
| (=) Market Value: | = | $493,863 | |
| (–) Productivity Loss: | – | $0 | |
| | | -------------------------- | |
| (=) Subtotal: | = | $493,863 | |
| (+) Senior Appraised Value: | + | $0 | |
| (+) Non-Senior Appraised Value: | + | $493,863 | |
| | | -------------------------- | |
| (=) Total Appraised Value: | = | $493,863 | |
| (–) Senior Exemption Loss: | – | $0 | |
| (–) Exemption Loss: | – | $0 | |
| | | -------------------------- | |
| (=) Taxable Value: | = | $493,863 | |
Taxing Jurisdiction
| Owner: | ROBYN M GARING | | |
| % Ownership: | 100.0000000000% | | |
| Total Value: | N/A | | |
| Tax Area: | 0110 - C-50F1E1H2 |
| CE | COUNTY CURRENT EXPENSE | N/A | N/A | N/A | N/A | | |
| CNTYDD | DEVELOPMENTAL DISABILITIES | N/A | N/A | N/A | N/A | | |
| CNTYVET | VETERANS RELIEF | N/A | N/A | N/A | N/A | | |
| MENTAL | MENTAL HEALTH | N/A | N/A | N/A | N/A | | |
| PTGEN | CITY OF PT GENERAL | N/A | N/A | N/A | N/A | | |
| PTLLL | CITY OF PT - LIBRARY LID LIFT | N/A | N/A | N/A | N/A | | |
| PTMVBOND | CITY OF PT MV BOND | N/A | N/A | N/A | N/A | | |
| HOSP2CASH | HOSP DIST #2 GENERAL | N/A | N/A | N/A | N/A | | |
| SCH50BOND | SCHOOL DIST #50 BOND 2016 | N/A | N/A | N/A | N/A | | |
| SCH50CP | SCHOOL DIST #50 CAP PROJ | N/A | N/A | N/A | N/A | | |
| SCH50MO | SCHOOL DIST #50 EP & O | N/A | N/A | N/A | N/A | | |
| CONSERVE | CONSERVATION FUTURES | N/A | N/A | N/A | N/A | | |
| EMS1 | FIRE DIST #1 EMS | N/A | N/A | N/A | N/A | | |
| FD1 | FIRE DIST #1 GENERAL | N/A | N/A | N/A | N/A | | |
| PORTPT | PORT OF PT GENERAL | N/A | N/A | N/A | N/A | | |
| PORTPTIDD | PORT OF PT IDD 2019 | N/A | N/A | N/A | N/A | | |
| PUD1 | PUD #1 GENERAL | N/A | N/A | N/A | N/A | | |
| STATE | STATE SCHOOL PART 1 | N/A | N/A | N/A | N/A | | |
| STATE2 | STATE SCHOOL PART 2 | N/A | N/A | N/A | N/A | | |
| | Total Tax Rate: | N/A | | | | | |
| | | | | Taxes w/Current Exemptions: | N/A | | |
| | | | | Taxes w/o Exemptions: | N/A | | |
Improvement / Building
| Improvement #1: | Residential Bldg | State Code: | 11 | 1056.0 sqft | Value: | $328,863 |
| Bathrooms (#): | 1 (FULL) | Bedrooms (#): | 3 | | Exterior Wall: | SI/ST | Fireplace: | SIN 1-AVG | | Floor Construction: | FRAME | Foundation: | CONPR | | Heating/Cooling: | F/A | Inside Verify: | YES-FIX | | Roof Cover: | COMP |   |   |
|
| | Type | Description | Class CD | Sub Class CD | Year Built | Area |
| | MA | Main Area | 4 | 1S | 1952 | 1056.0 |
| | HCPOR | House Concrete Porch | 3 | * | 1952 | 36.0 |
| | ADDN | Addition (Table Not Dep) | 4 | ADU | 1952 | 260.0 |
| | HDECK | House Deck | 3 | ADU | 1952 | 260.0 |
| | HDECK | House Deck | 3 | 1S | 1952 | 248.0 |
Sketch
Property Image
Land
| 1 | 6300-1175L | Pettygroves Area Terr(Avg) | 0.0000 | 0.00 | 0.00 | 0.00 | 1.00 | $165,000 | $0 |
Roll Value History
| 2025 | N/A | N/A | N/A | N/A | N/A |
| 2024 | $298,213 | $165,000 | $0 | $463,213 | $463,213 |
| 2023 | $286,284 | $152,250 | $0 | $438,534 | $438,534 |
| 2022 | $274,355 | $140,000 | $0 | $414,355 | $414,355 |
| 2021 | $230,939 | $100,000 | $0 | $330,939 | $330,939 |
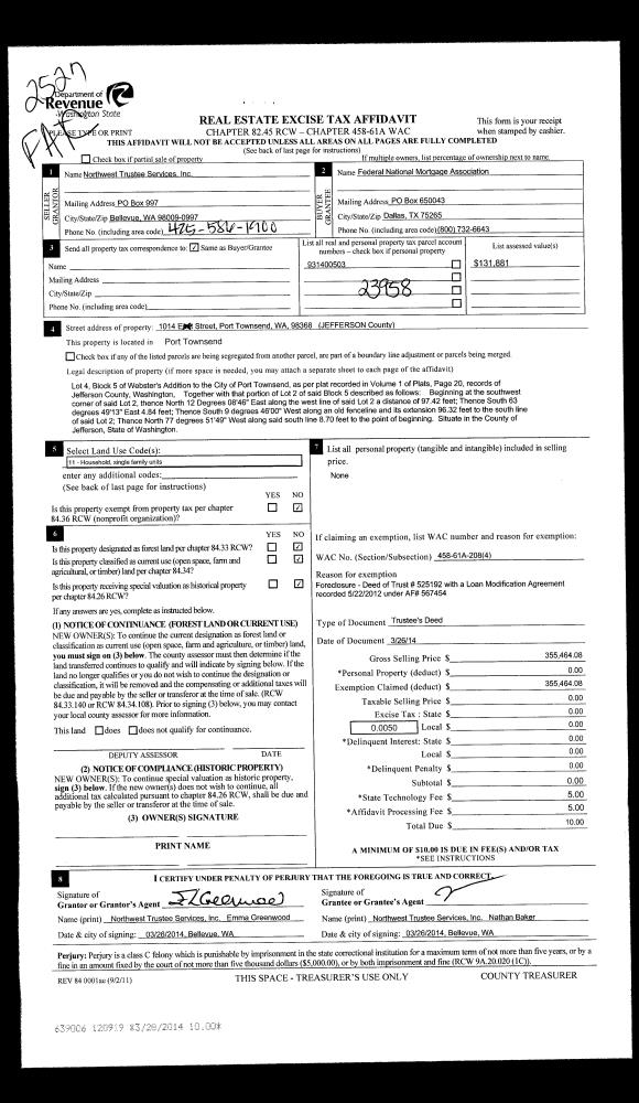
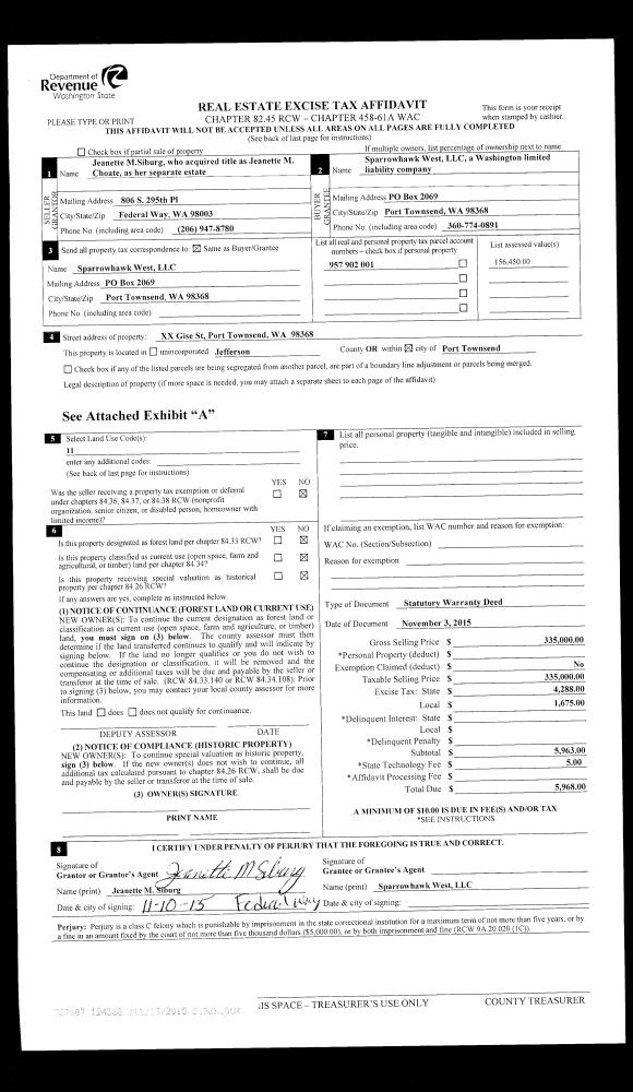
Deed and Sales History
| 1 | 12/06/2020 | QCD | Quit Claim Deed | TIMOTHY FLUGSTAD & ROBYN M GARING | ROBYN M GARING | | | | 135740 | |
| 2 | 04/07/2016 | SWD | Statutory Warranty Deed | MICHAEL REUDINK | TIMOTHY FLUGSTAD & ROBYN M GARING | | | $265,900.00 | 125177 | |
| 3 | 11/07/2014 | QCD | Quit Claim Deed | | | | | | 122232 | |
| 4 | 11/13/2014 | TRED | Trustee Deed | DWAYNE H TOLLE TRUSTEE | MICHAEL REUDINK | | | $93,500.00 | 122231 | |
| 5 | 10/16/2002 | SWD | Statutory Warranty Deed | TOLLE, DWAYNE H | TOLLE, DWAYNE/FAMILY TRUST | 0 | 0 | $0.00 | 97554 | 0 |
Payout Agreement
| No payout information available.. |