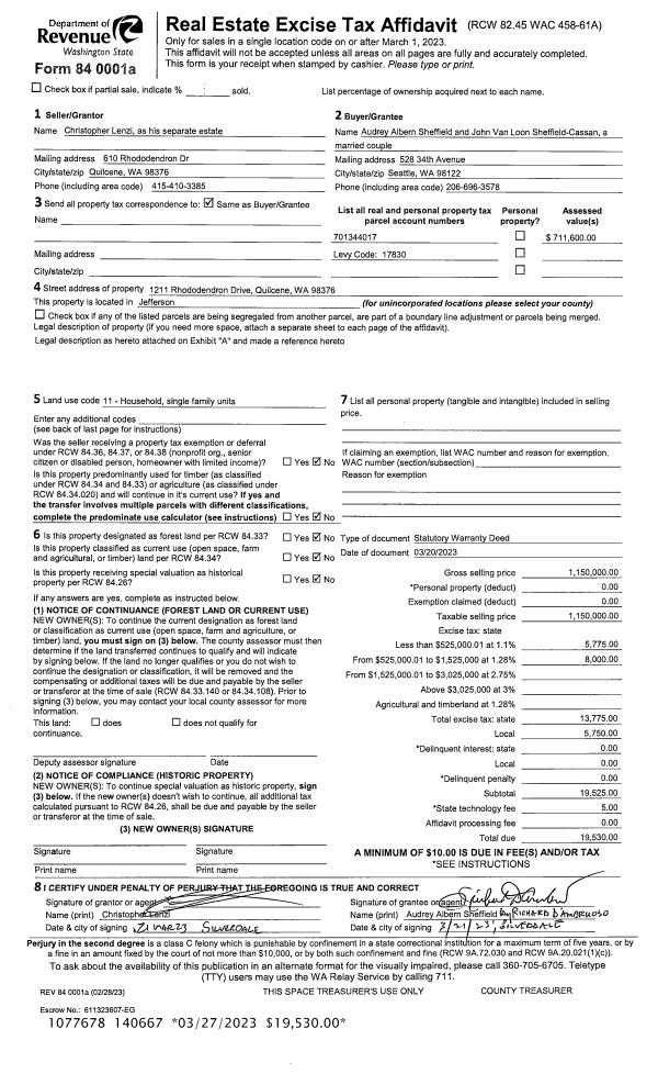
Property
Account |
| Property ID: | 38539 | Abbreviated Legal Description: | PHILLIPS ADDN TO IRONDALE BLK 7 LOTS 8,9 AND 10 |
| Parcel # / Geo ID: | 986400705 | Agent Code: | |
| Type: | Real | | |
| Tax Area: | 0211 - 1-49F1E1H2L1 | Land Use Code | 11 |
| Open Space: | N | DFL | N |
| Historic Property: | N | Remodel Property: | N |
| Multi-Family Redevelopment: | N | | |
| Township: | 29N | Section: | 2 |
| Range: | 1W |
Location |
| Address: | 111 2ND ST PORT HADLOCK, WA 98339 | Mapsco: | 091/032 |
| Neighborhood: | HAYDEN'S; PHILLIP'S TO IRONDALE; SOUTH PORT TOWNSEND | Map ID: | |
| Neighborhood CD: | 4212 |
Owner |
| Name: | KARL KEOGAN | Owner ID: | 19737 |
| Mailing Address: | PO BOX 112 PORT HADLOCK, WA 98339-0112 | % Ownership: | 100.0000000000% |
| | | Exemptions: | |
Pay Tax Due
There is currently No Amount Due on this property.
Taxes and Assessment Details
Property Tax Information as of
10/24/2025
Click on "Statement Details" to expand or collapse a tax statement.
* Please enter a valid date ** Please enter a valid date *
Statement Details |
| | TOTAL: | $0.00 | $0.00 | $0.00 | $0.00 | $0.00 | $0.00 |
|
| | $0.00 | $0.00 | $0.00 | $0.00 | $0.00 | $0.00 |
Values
| (+) Improvement Homesite Value: | + | $0 | |
| (+) Improvement Non-Homesite Value: | + | $183,287 | |
| (+) Land Homesite Value: | + | $0 | |
| (+) Land Non-Homesite Value: | + | $100,100 | |
| (+) Curr Use (HS): | + | $0 | $0 |
| (+) Curr Use (NHS): | + | $0 | $0 |
| | | -------------------------- | |
| (=) Market Value: | = | $283,387 | |
| (–) Productivity Loss: | – | $0 | |
| | | -------------------------- | |
| (=) Subtotal: | = | $283,387 | |
| (+) Senior Appraised Value: | + | $0 | |
| (+) Non-Senior Appraised Value: | + | $283,387 | |
| | | -------------------------- | |
| (=) Total Appraised Value: | = | $283,387 | |
| (–) Senior Exemption Loss: | – | $0 | |
| (–) Exemption Loss: | – | $0 | |
| | | -------------------------- | |
| (=) Taxable Value: | = | $283,387 | |
Taxing Jurisdiction
| Owner: | KARL KEOGAN | | |
| % Ownership: | 100.0000000000% | | |
| Total Value: | N/A | | |
| Tax Area: | 0211 - 1-49F1E1H2L1 |
| CE | COUNTY CURRENT EXPENSE | N/A | N/A | N/A | N/A | | |
| CNTYDD | DEVELOPMENTAL DISABILITIES | N/A | N/A | N/A | N/A | | |
| CNTYVET | VETERANS RELIEF | N/A | N/A | N/A | N/A | | |
| MENTAL | MENTAL HEALTH | N/A | N/A | N/A | N/A | | |
| ROADS | COUNTY ROADS | N/A | N/A | N/A | N/A | | |
| ROADSCU | COUNTY ROADS TO CUR EXP | N/A | N/A | N/A | N/A | | |
| HOSP2CASH | HOSP DIST #2 GENERAL | N/A | N/A | N/A | N/A | | |
| SCH49CP | SCHOOL DIST #49 CAP PROJ | N/A | N/A | N/A | N/A | | |
| SCH49MO | SCHOOL DIST #49 EP & O | N/A | N/A | N/A | N/A | | |
| CONSERVE | CONSERVATION FUTURES | N/A | N/A | N/A | N/A | | |
| EMS1 | FIRE DIST #1 EMS | N/A | N/A | N/A | N/A | | |
| FD1 | FIRE DIST #1 GENERAL | N/A | N/A | N/A | N/A | | |
| LIB1 | LIBRARY DIST #1 GENERAL | N/A | N/A | N/A | N/A | | |
| PORTPT | PORT OF PT GENERAL | N/A | N/A | N/A | N/A | | |
| PORTPTIDD | PORT OF PT IDD 2019 | N/A | N/A | N/A | N/A | | |
| PUD1 | PUD #1 GENERAL | N/A | N/A | N/A | N/A | | |
| STATE | STATE SCHOOL PART 1 | N/A | N/A | N/A | N/A | | |
| STATE2 | STATE SCHOOL PART 2 | N/A | N/A | N/A | N/A | | |
| | Total Tax Rate: | N/A | | | | | |
| | | | | Taxes w/Current Exemptions: | N/A | | |
| | | | | Taxes w/o Exemptions: | N/A | | |
Improvement / Building
| Improvement #1: | Residential Bldg | State Code: | 11 | 972.0 sqft | Value: | $183,287 |
| Bathrooms (#): | 1 (FULL) | Bedrooms (#): | 2 | | Exterior Wall: | SI/ST | Fireplace: | WD ST-AVG | | Floor Construction: | FRAME | Foundation: | CONPR | | Heating/Cooling: | ELBB | Inside Verify: | YES-FIX | | Roof Cover: | COMP |   |   |
|
| | Type | Description | Class CD | Sub Class CD | Year Built | Area |
| | MA | Main Area | 3+ | 1S | 1950 | 972.0 |
| | HENCL | House Enclosure | 3 | * | 1950 | 432.0 |
| | GDET | Detached Garage | 3 | 1S | 1950 | 648.0 |
Sketch
| No sketches available for this property. |
Property Image
Land
| 1 | 4212-1283S | Haydens and Phillips 2 Lot Sites | 0.0000 | 0.00 | 0.00 | 0.00 | 1.00 | $93,500 | $0 |
| 2 | 4212-1187L | Additional Lots for 2 Lot Sites | 0.0000 | 0.00 | 0.00 | 0.00 | 1.00 | $6,600 | $0 |
Roll Value History
| 2025 | N/A | N/A | N/A | N/A | N/A |
| 2024 | $175,318 | $95,550 | $0 | $270,868 | $270,868 |
| 2023 | $167,349 | $86,000 | $0 | $253,349 | $253,349 |
| 2022 | $140,299 | $81,000 | $0 | $221,299 | $221,299 |
| 2021 | $129,907 | $68,120 | $0 | $198,027 | $198,027 |
Deed and Sales History
| 1 | 12/16/2004 | SWD | Statutory Warranty Deed | KNOEPFLE, WANDA NORINE/ES | KEOGAN, KARL C | 0 | 0 | $90,000.00 | 102296 | 0 |
Payout Agreement
| No payout information available.. |