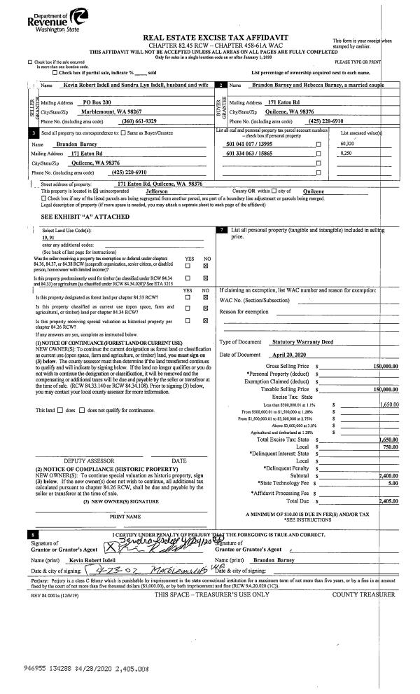
Property
Account |
| Property ID: | 38600 | Abbreviated Legal Description: | PHILLIPS BAY VIEW ADDITION BLK 24 - TAX 74 LESS PTN TAX 75 |
| Parcel # / Geo ID: | 986702401 | Agent Code: | |
| Type: | Real | | |
| Tax Area: | 0111 - 1-50F1E1H2L1 | Land Use Code | 21 |
| Open Space: | N | DFL | N |
| Historic Property: | N | Remodel Property: | N |
| Multi-Family Redevelopment: | N | | |
| Township: | 30N | Section: | 16 |
| Range: | 1W |
Location |
| Address: | 153 N OTTO ST PORT TOWNSEND, WA 98368 | Mapsco: | 063/015 |
| Neighborhood: | SR20 / OTTO ST / GLEN COVE COMMERCIAL AREA NORTH | Map ID: | |
| Neighborhood CD: | 5350C |
Owner |
| Name: | TITTERNESS LLC | Owner ID: | 109090 |
| Mailing Address: | 83 ISLAND VIEW RD PORT ANGELES, WA 98362-9133 | % Ownership: | 100.0000000000% |
| | | Exemptions: | |
Pay Tax Due
There is currently No Amount Due on this property.
Taxes and Assessment Details
Property Tax Information as of
10/24/2025
Click on "Statement Details" to expand or collapse a tax statement.
* Please enter a valid date ** Please enter a valid date *
Statement Details |
| | TOTAL: | $0.00 | $0.00 | $0.00 | $0.00 | $0.00 | $0.00 |
|
| | $0.00 | $0.00 | $0.00 | $0.00 | $0.00 | $0.00 |
Values
| (+) Improvement Homesite Value: | + | $0 | |
| (+) Improvement Non-Homesite Value: | + | $517,875 | |
| (+) Land Homesite Value: | + | $0 | |
| (+) Land Non-Homesite Value: | + | $175,114 | |
| (+) Curr Use (HS): | + | $0 | $0 |
| (+) Curr Use (NHS): | + | $0 | $0 |
| | | -------------------------- | |
| (=) Market Value: | = | $692,989 | |
| (–) Productivity Loss: | – | $0 | |
| | | -------------------------- | |
| (=) Subtotal: | = | $692,989 | |
| (+) Senior Appraised Value: | + | $0 | |
| (+) Non-Senior Appraised Value: | + | $692,989 | |
| | | -------------------------- | |
| (=) Total Appraised Value: | = | $692,989 | |
| (–) Senior Exemption Loss: | – | $0 | |
| (–) Exemption Loss: | – | $0 | |
| | | -------------------------- | |
| (=) Taxable Value: | = | $692,989 | |
Taxing Jurisdiction
| Owner: | TITTERNESS LLC | | |
| % Ownership: | 100.0000000000% | | |
| Total Value: | N/A | | |
| Tax Area: | 0111 - 1-50F1E1H2L1 |
| CE | COUNTY CURRENT EXPENSE | N/A | N/A | N/A | N/A | | |
| CNTYDD | DEVELOPMENTAL DISABILITIES | N/A | N/A | N/A | N/A | | |
| CNTYVET | VETERANS RELIEF | N/A | N/A | N/A | N/A | | |
| MENTAL | MENTAL HEALTH | N/A | N/A | N/A | N/A | | |
| ROADS | COUNTY ROADS | N/A | N/A | N/A | N/A | | |
| ROADSCU | COUNTY ROADS TO CUR EXP | N/A | N/A | N/A | N/A | | |
| HOSP2CASH | HOSP DIST #2 GENERAL | N/A | N/A | N/A | N/A | | |
| SCH50BOND | SCHOOL DIST #50 BOND 2016 | N/A | N/A | N/A | N/A | | |
| SCH50CP | SCHOOL DIST #50 CAP PROJ | N/A | N/A | N/A | N/A | | |
| SCH50MO | SCHOOL DIST #50 EP & O | N/A | N/A | N/A | N/A | | |
| CONSERVE | CONSERVATION FUTURES | N/A | N/A | N/A | N/A | | |
| EMS1 | FIRE DIST #1 EMS | N/A | N/A | N/A | N/A | | |
| FD1 | FIRE DIST #1 GENERAL | N/A | N/A | N/A | N/A | | |
| LIB1 | LIBRARY DIST #1 GENERAL | N/A | N/A | N/A | N/A | | |
| PORTPT | PORT OF PT GENERAL | N/A | N/A | N/A | N/A | | |
| PORTPTIDD | PORT OF PT IDD 2019 | N/A | N/A | N/A | N/A | | |
| PUD1 | PUD #1 GENERAL | N/A | N/A | N/A | N/A | | |
| STATE | STATE SCHOOL PART 1 | N/A | N/A | N/A | N/A | | |
| STATE2 | STATE SCHOOL PART 2 | N/A | N/A | N/A | N/A | | |
| | Total Tax Rate: | N/A | | | | | |
| | | | | Taxes w/Current Exemptions: | N/A | | |
| | | | | Taxes w/o Exemptions: | N/A | | |
Improvement / Building
| Improvement #1: | Commercial/Industrial/Government Bldg | State Code: | 20 | 7500.0 sqft | Value: | $517,875 |
| Bathrooms (#): | 1 (HALF) | Exterior Wall: | METAL | | Foundation: | CONPR | Interior Finish: | FIN | | Roof Cover: | METAL |   |   |
|
Sketch
Property Image
Land
| 1 | 5350-6277Q | Commercial/Light Industrial Without SR20/Otto Frtg | 1.1078 | 48255.00 | 0.00 | 0.00 | 1.00 | $175,114 | $0 |
Roll Value History
| 2025 | N/A | N/A | N/A | N/A | N/A |
| 2024 | $517,875 | $175,114 | $0 | $692,989 | $692,989 |
| 2023 | $0 | $135,114 | $0 | $135,114 | $135,114 |
| 2022 | $0 | $115,812 | $0 | $115,812 | $115,812 |
| 2021 | $0 | $127,644 | $0 | $127,644 | $127,644 |
Deed and Sales History
| 1 | 06/08/2023 | QCD | Quit Claim Deed | MARC & HEATHER TITTERNESS | TITTERNESS LLC | | | | 141066 | |
| 2 | 01/29/2021 | SWD | Statutory Warranty Deed | DISCOVERY TIMBER CO | MARC & HEATHER TITTERNESS | | | $95,000.00 | 136059 | |
| 3 | 01/24/2015 | QCD | Quit Claim Deed | | | | | | 122652 | |
| 4 | 06/17/2014 | QCD | Quit Claim Deed | | | | | | 121477 | |
| 5 | 12/28/2010 | QCD | Quit Claim Deed | VANTROJEN, GARY/PATRICIA | SETON, W.E. ET AL | | | $0.00 | 115811 | 0 |
Payout Agreement
| No payout information available.. |