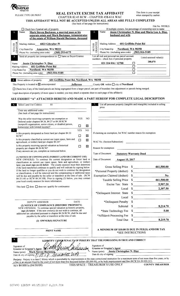
Property
Account |
| Property ID: | 38814 | Abbreviated Legal Description: | PLEASANT HARBOR BLK 2 LOT 4 |
| Parcel # / Geo ID: | 988200204 | Agent Code: | |
| Type: | Real | | |
| Tax Area: | 0441 - 1-46F4E4H2C1L1P2 | Land Use Code | 11 |
| Open Space: | N | DFL | N |
| Historic Property: | N | Remodel Property: | N |
| Multi-Family Redevelopment: | N | | |
| Township: | 25N | Section: | 10 |
| Range: | 2W |
Location |
| Address: | 402 PLEASANT HARBOR RD BRINNON, WA 98320 | Mapsco: | 025/047 |
| Neighborhood: | S9-11 T25 R2W+SUNNYSLOPE+PLEASANT HBR+CEDAR COVE/ELLIS/LENTI | Map ID: | |
| Neighborhood CD: | 1220 |
Owner |
| Name: | TIMOTHY A & JANET M BROWN | Owner ID: | 99616 |
| Mailing Address: | JOHN HOVDESVEN 402 PLEASANT HARBOR RD BRINNON, WA 98320-9773 | % Ownership: | 100.0000000000% |
| | | Exemptions: | |
Pay Tax Due
There is currently No Amount Due on this property.
Taxes and Assessment Details
Property Tax Information as of
10/24/2025
Click on "Statement Details" to expand or collapse a tax statement.
* Please enter a valid date ** Please enter a valid date *
Statement Details |
| | TOTAL: | $0.00 | $0.00 | $0.00 | $0.00 | $0.00 | $0.00 |
|
| | $0.00 | $0.00 | $0.00 | $0.00 | $0.00 | $0.00 |
Values
| (+) Improvement Homesite Value: | + | $0 | |
| (+) Improvement Non-Homesite Value: | + | $215,677 | |
| (+) Land Homesite Value: | + | $0 | |
| (+) Land Non-Homesite Value: | + | $65,550 | |
| (+) Curr Use (HS): | + | $0 | $0 |
| (+) Curr Use (NHS): | + | $0 | $0 |
| | | -------------------------- | |
| (=) Market Value: | = | $281,227 | |
| (–) Productivity Loss: | – | $0 | |
| | | -------------------------- | |
| (=) Subtotal: | = | $281,227 | |
| (+) Senior Appraised Value: | + | $0 | |
| (+) Non-Senior Appraised Value: | + | $281,227 | |
| | | -------------------------- | |
| (=) Total Appraised Value: | = | $281,227 | |
| (–) Senior Exemption Loss: | – | $0 | |
| (–) Exemption Loss: | – | $0 | |
| | | -------------------------- | |
| (=) Taxable Value: | = | $281,227 | |
Taxing Jurisdiction
| Owner: | TIMOTHY A & JANET M BROWN | | |
| % Ownership: | 100.0000000000% | | |
| Total Value: | N/A | | |
| Tax Area: | 0441 - 1-46F4E4H2C1L1P2 |
| CE | COUNTY CURRENT EXPENSE | N/A | N/A | N/A | N/A | | |
| CNTYDD | DEVELOPMENTAL DISABILITIES | N/A | N/A | N/A | N/A | | |
| CNTYVET | VETERANS RELIEF | N/A | N/A | N/A | N/A | | |
| MENTAL | MENTAL HEALTH | N/A | N/A | N/A | N/A | | |
| ROADS | COUNTY ROADS | N/A | N/A | N/A | N/A | | |
| ROADSCU | COUNTY ROADS TO CUR EXP | N/A | N/A | N/A | N/A | | |
| HOSP2CASH | HOSP DIST #2 GENERAL | N/A | N/A | N/A | N/A | | |
| SCH46MO | SCHOOL DIST #46 EP & O | N/A | N/A | N/A | N/A | | |
| CEM1 | CEMETERY DIST #1 GENERAL | N/A | N/A | N/A | N/A | | |
| CONSERVE | CONSERVATION FUTURES | N/A | N/A | N/A | N/A | | |
| EMS4 | FIRE DIST #4 EMS | N/A | N/A | N/A | N/A | | |
| FD4 | FIRE DIST #4 GENERAL | N/A | N/A | N/A | N/A | | |
| FD4BOND | FIRE DIST #4 BOND 2019 | N/A | N/A | N/A | N/A | | |
| LIB1 | LIBRARY DIST #1 GENERAL | N/A | N/A | N/A | N/A | | |
| PORTPT | PORT OF PT GENERAL | N/A | N/A | N/A | N/A | | |
| PORTPTIDD | PORT OF PT IDD 2019 | N/A | N/A | N/A | N/A | | |
| PUD1 | PUD #1 GENERAL | N/A | N/A | N/A | N/A | | |
| STATE | STATE SCHOOL PART 1 | N/A | N/A | N/A | N/A | | |
| STATE2 | STATE SCHOOL PART 2 | N/A | N/A | N/A | N/A | | |
| | Total Tax Rate: | N/A | | | | | |
| | | | | Taxes w/Current Exemptions: | N/A | | |
| | | | | Taxes w/o Exemptions: | N/A | | |
Improvement / Building
| Improvement #1: | Residential Bldg | State Code: | 11 | 864.0 sqft | Value: | $215,677 |
| Bathrooms (#): | 1 (FULL) | Bedrooms (#): | 1 | | Exterior Wall: | PL/T1 | Fireplace: | WD ST-AVG | | Floor Construction: | CONCR | Foundation: | CONPR | | Heating/Cooling: | HPUMP | Roof Cover: | METAL |
|
| | Type | Description | Class CD | Sub Class CD | Year Built | Area |
| | MA | Main Area | 3+ | 1S | 1999 | 864.0 |
| | HENCL | House Enclosure | 3 | * | 1999 | 240.0 |
| | GDET | Detached Garage | 3 | 1S | 1999 | 576.0 |
| | SHED | Shed (Table Not Dep) | 4 | * | 1999 | 0.0 |
Sketch
Property Image
Land
| 1 | 1220-1145L | Water View Lots in Pleasant Harbor Blk 2 | 0.0000 | 0.00 | 0.00 | 0.00 | 1.00 | $65,550 | $0 |
Roll Value History
| 2025 | N/A | N/A | N/A | N/A | N/A |
| 2024 | $206,300 | $62,700 | $0 | $269,000 | $269,000 |
| 2023 | $206,300 | $54,600 | $0 | $260,900 | $260,900 |
| 2022 | $187,545 | $47,000 | $0 | $234,545 | $234,545 |
| 2021 | $154,995 | $42,900 | $0 | $197,895 | $197,895 |
Deed and Sales History
| 1 | 07/12/2018 | SWD | Statutory Warranty Deed | KI HWA NEAR | TIMOTHY A & JANET M BROWN | | | $212,000.00 | 130602 | |
|   | |
| 2 | 04/02/2014 | TRTD | Trust Transfer Deed | ESTATE OF FRED MICHAEL NEAR | KI HWA NEAR | | | | 120989 | |
| 3 | 08/19/2013 | MISC | MISC | KI HWA NEAR | ESTATE OF FRED MICHAEL NEAR | | | | 119963 | |
| 4 | 07/03/2013 | PRD | Personal Representatives Deed | FRED M NEAR | KI HWA NEAR | | | | 119574 | |
| 5 | 05/28/1993 | SWD | Statutory Warranty Deed | HERMAN, DURELL R/SUE | NEAR, FRED M | 0 | 0 | $22,950.00 | 71286 | 0 |
|   | |
Payout Agreement
| No payout information available.. |