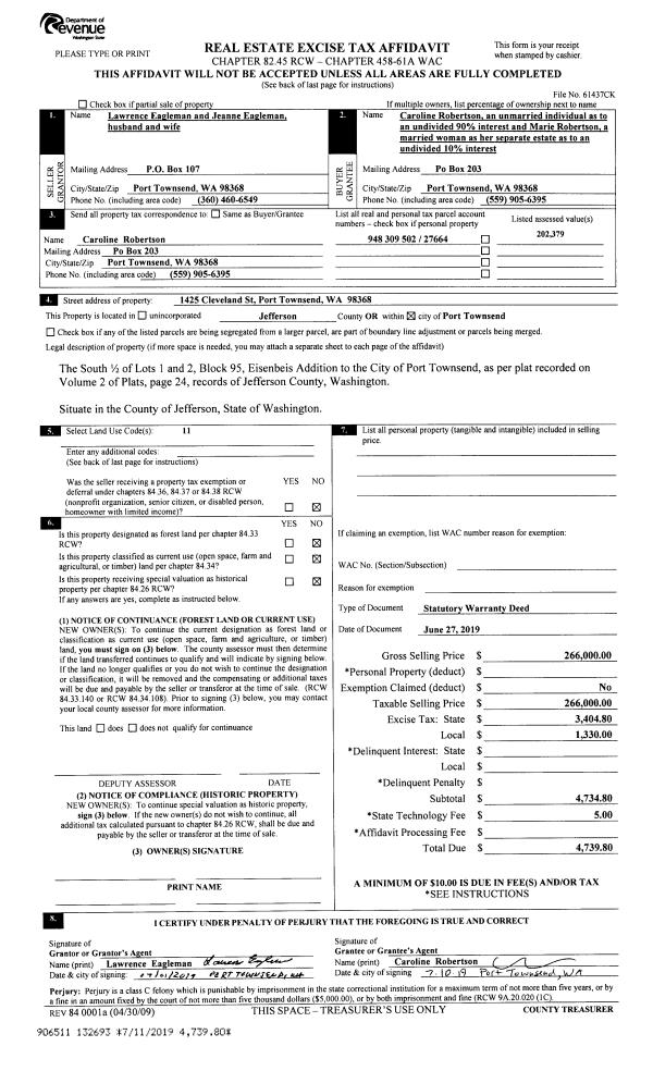
Property
Account |
| Property ID: | 38840 | Abbreviated Legal Description: | PLEASANT TIDES LOT 19 W/TL |
| Parcel # / Geo ID: | 988500019 | Agent Code: | |
| Type: | Real | | |
| Tax Area: | 0441 - 1-46F4E4H2C1L1P2 | Land Use Code | 11 |
| Open Space: | N | DFL | N |
| Historic Property: | N | Remodel Property: | N |
| Multi-Family Redevelopment: | N | | |
| Township: | 25N | Section: | 10 |
| Range: | 2W |
Location |
| Address: | 852 RHODODENDRON LN BRINNON, WA 98320 | Mapsco: | 026/019 |
| Neighborhood: | PLEASANT TIDES | Map ID: | |
| Neighborhood CD: | 1235 |
Owner |
| Name: | SALLY J SHEELAR | Owner ID: | 27179 |
| Mailing Address: | 852 RHODODENDRON LN BRINNON, WA 98320-9706 | % Ownership: | 100.0000000000% |
| | | Exemptions: | |
Pay Tax Due
There is currently No Amount Due on this property.
Taxes and Assessment Details
Property Tax Information as of
10/24/2025
Click on "Statement Details" to expand or collapse a tax statement.
* Please enter a valid date ** Please enter a valid date *
Statement Details |
| | TOTAL: | $0.00 | $0.00 | $0.00 | $0.00 | $0.00 | $0.00 |
|
| | $0.00 | $0.00 | $0.00 | $0.00 | $0.00 | $0.00 |
Values
| (+) Improvement Homesite Value: | + | $0 | |
| (+) Improvement Non-Homesite Value: | + | $134,234 | |
| (+) Land Homesite Value: | + | $0 | |
| (+) Land Non-Homesite Value: | + | $264,500 | |
| (+) Curr Use (HS): | + | $0 | $0 |
| (+) Curr Use (NHS): | + | $0 | $0 |
| | | -------------------------- | |
| (=) Market Value: | = | $398,734 | |
| (–) Productivity Loss: | – | $0 | |
| | | -------------------------- | |
| (=) Subtotal: | = | $398,734 | |
| (+) Senior Appraised Value: | + | $0 | |
| (+) Non-Senior Appraised Value: | + | $398,734 | |
| | | -------------------------- | |
| (=) Total Appraised Value: | = | $398,734 | |
| (–) Senior Exemption Loss: | – | $0 | |
| (–) Exemption Loss: | – | $0 | |
| | | -------------------------- | |
| (=) Taxable Value: | = | $398,734 | |
Taxing Jurisdiction
| Owner: | SALLY J SHEELAR | | |
| % Ownership: | 100.0000000000% | | |
| Total Value: | N/A | | |
| Tax Area: | 0441 - 1-46F4E4H2C1L1P2 |
| CE | COUNTY CURRENT EXPENSE | N/A | N/A | N/A | N/A | | |
| CNTYDD | DEVELOPMENTAL DISABILITIES | N/A | N/A | N/A | N/A | | |
| CNTYVET | VETERANS RELIEF | N/A | N/A | N/A | N/A | | |
| MENTAL | MENTAL HEALTH | N/A | N/A | N/A | N/A | | |
| ROADS | COUNTY ROADS | N/A | N/A | N/A | N/A | | |
| ROADSCU | COUNTY ROADS TO CUR EXP | N/A | N/A | N/A | N/A | | |
| HOSP2CASH | HOSP DIST #2 GENERAL | N/A | N/A | N/A | N/A | | |
| SCH46MO | SCHOOL DIST #46 EP & O | N/A | N/A | N/A | N/A | | |
| CEM1 | CEMETERY DIST #1 GENERAL | N/A | N/A | N/A | N/A | | |
| CONSERVE | CONSERVATION FUTURES | N/A | N/A | N/A | N/A | | |
| EMS4 | FIRE DIST #4 EMS | N/A | N/A | N/A | N/A | | |
| FD4 | FIRE DIST #4 GENERAL | N/A | N/A | N/A | N/A | | |
| FD4BOND | FIRE DIST #4 BOND 2019 | N/A | N/A | N/A | N/A | | |
| LIB1 | LIBRARY DIST #1 GENERAL | N/A | N/A | N/A | N/A | | |
| PORTPT | PORT OF PT GENERAL | N/A | N/A | N/A | N/A | | |
| PORTPTIDD | PORT OF PT IDD 2019 | N/A | N/A | N/A | N/A | | |
| PUD1 | PUD #1 GENERAL | N/A | N/A | N/A | N/A | | |
| STATE | STATE SCHOOL PART 1 | N/A | N/A | N/A | N/A | | |
| STATE2 | STATE SCHOOL PART 2 | N/A | N/A | N/A | N/A | | |
| | Total Tax Rate: | N/A | | | | | |
| | | | | Taxes w/Current Exemptions: | N/A | | |
| | | | | Taxes w/o Exemptions: | N/A | | |
Improvement / Building
| Improvement #1: | Residential Bldg | State Code: | 11 | 802.0 sqft | Value: | $134,234 |
| Bathrooms (#): | 1 (FULL) | Bathrooms (#): | 1 (HALF) | | Bedrooms (#): | 2 | Exterior Wall: | PL/T1 | | Fireplace: | WD ST-AVG | Floor Construction: | FRAME | | Foundation: | CONPR | Heating/Cooling: | ELBB | | Roof Cover: | METAL |   |   |
|
| | Type | Description | Class CD | Sub Class CD | Year Built | Area |
| | MA | Main Area | 3+ | 2S | 1977 | 480.0 |
| | MA2 | Second Floor Main Area | 3+ | 2S | 1977 | 322.0 |
| | HBAL | House Balcony | 3 | * | 1977 | 48.0 |
| | HDECK | House Deck | 3 | * | 1977 | 300.0 |
| | CARPTF | Carport W/Floor | 3 | * | 1977 | 320.0 |
| | HRPO | House Roof Patio | 3 | * | 1977 | 100.0 |
Sketch
Property Image
Land
| 1 | 1235-1125L | Low to Medium Bank Waterfront Lots w/TL | 0.0000 | 0.00 | 0.00 | 0.00 | 1.00 | $264,500 | $0 |
Roll Value History
| 2025 | N/A | N/A | N/A | N/A | N/A |
| 2024 | $134,234 | $253,000 | $0 | $387,234 | $387,234 |
| 2023 | $128,398 | $236,250 | $0 | $364,648 | $364,648 |
| 2022 | $116,725 | $220,000 | $0 | $336,725 | $336,725 |
| 2021 | $96,467 | $214,500 | $0 | $310,967 | $310,967 |
Deed and Sales History
| 1 | 03/07/2008 | SWD | Statutory Warranty Deed | SLIMP, LINNEA E/DUAYNE A | SHEELAR, SALLY J | 0 | 0 | $390,000.00 | 110941 | 0 |
| 2 | 03/07/2008 | QCD | Quit Claim Deed | SHEELAR, RICK | SHEELAR, SALLY | 0 | 0 | $0.00 | 110942 | 0 |
| 3 | 12/04/2003 | QCD | Quit Claim Deed | SLIMP, LINNEA E TRUSTEE | SLIMP, ROBERT J/DUAYNE A | 0 | 0 | $0.00 | 98971 | 0 |
Payout Agreement
| No payout information available.. |