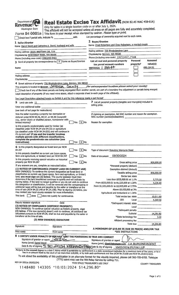
Property
Account |
| Property ID: | 38915 | Abbreviated Legal Description: | PLUMMER'S ADDITION BLK 1 LOT 7 |
| Parcel # / Geo ID: | 988800105 | Agent Code: | |
| Type: | Real | | |
| Tax Area: | 0110 - C-50F1E1H2 | Land Use Code | 12 |
| Open Space: | N | DFL | N |
| Historic Property: | N | Remodel Property: | N |
| Multi-Family Redevelopment: | N | | |
| Township: | 30N | Section: | 2 |
| Range: | 1W |
Location |
| Address: | 738 TYLER ST & 740 PORT TOWNSEND, WA 98368 | Mapsco: | 107/004 |
| Neighborhood: | PLUMMERS LP AND HELANDER SP | Map ID: | |
| Neighborhood CD: | 6370 |
Owner |
| Name: | LAUREEN MARTIN | Owner ID: | 21691 |
| Mailing Address: | 740 TYLER ST PORT TOWNSEND, WA 98368-6538 | % Ownership: | 100.0000000000% |
| | | Exemptions: | |
Pay Tax Due
There is currently No Amount Due on this property.
Taxes and Assessment Details
Property Tax Information as of
10/24/2025
Click on "Statement Details" to expand or collapse a tax statement.
* Please enter a valid date ** Please enter a valid date *
Statement Details |
| | TOTAL: | $0.00 | $0.00 | $0.00 | $0.00 | $0.00 | $0.00 |
|
| | $0.00 | $0.00 | $0.00 | $0.00 | $0.00 | $0.00 |
Values
| (+) Improvement Homesite Value: | + | $0 | |
| (+) Improvement Non-Homesite Value: | + | $548,088 | |
| (+) Land Homesite Value: | + | $0 | |
| (+) Land Non-Homesite Value: | + | $260,000 | |
| (+) Curr Use (HS): | + | $0 | $0 |
| (+) Curr Use (NHS): | + | $0 | $0 |
| | | -------------------------- | |
| (=) Market Value: | = | $808,088 | |
| (–) Productivity Loss: | – | $0 | |
| | | -------------------------- | |
| (=) Subtotal: | = | $808,088 | |
| (+) Senior Appraised Value: | + | $0 | |
| (+) Non-Senior Appraised Value: | + | $808,088 | |
| | | -------------------------- | |
| (=) Total Appraised Value: | = | $808,088 | |
| (–) Senior Exemption Loss: | – | $0 | |
| (–) Exemption Loss: | – | $0 | |
| | | -------------------------- | |
| (=) Taxable Value: | = | $808,088 | |
Taxing Jurisdiction
| Owner: | LAUREEN MARTIN | | |
| % Ownership: | 100.0000000000% | | |
| Total Value: | N/A | | |
| Tax Area: | 0110 - C-50F1E1H2 |
| CE | COUNTY CURRENT EXPENSE | N/A | N/A | N/A | N/A | | |
| CNTYDD | DEVELOPMENTAL DISABILITIES | N/A | N/A | N/A | N/A | | |
| CNTYVET | VETERANS RELIEF | N/A | N/A | N/A | N/A | | |
| MENTAL | MENTAL HEALTH | N/A | N/A | N/A | N/A | | |
| PTGEN | CITY OF PT GENERAL | N/A | N/A | N/A | N/A | | |
| PTLLL | CITY OF PT - LIBRARY LID LIFT | N/A | N/A | N/A | N/A | | |
| PTMVBOND | CITY OF PT MV BOND | N/A | N/A | N/A | N/A | | |
| HOSP2CASH | HOSP DIST #2 GENERAL | N/A | N/A | N/A | N/A | | |
| SCH50BOND | SCHOOL DIST #50 BOND 2016 | N/A | N/A | N/A | N/A | | |
| SCH50CP | SCHOOL DIST #50 CAP PROJ | N/A | N/A | N/A | N/A | | |
| SCH50MO | SCHOOL DIST #50 EP & O | N/A | N/A | N/A | N/A | | |
| CONSERVE | CONSERVATION FUTURES | N/A | N/A | N/A | N/A | | |
| EMS1 | FIRE DIST #1 EMS | N/A | N/A | N/A | N/A | | |
| FD1 | FIRE DIST #1 GENERAL | N/A | N/A | N/A | N/A | | |
| PORTPT | PORT OF PT GENERAL | N/A | N/A | N/A | N/A | | |
| PORTPTIDD | PORT OF PT IDD 2019 | N/A | N/A | N/A | N/A | | |
| PUD1 | PUD #1 GENERAL | N/A | N/A | N/A | N/A | | |
| STATE | STATE SCHOOL PART 1 | N/A | N/A | N/A | N/A | | |
| STATE2 | STATE SCHOOL PART 2 | N/A | N/A | N/A | N/A | | |
| | Total Tax Rate: | N/A | | | | | |
| | | | | Taxes w/Current Exemptions: | N/A | | |
| | | | | Taxes w/o Exemptions: | N/A | | |
Improvement / Building
| Improvement #1: | Residential Bldg | State Code: | 12 | 2421.0 sqft | Value: | $548,088 |
| Exterior Wall: | SI/ST | Floor Construction: | FRAME | | Foundation: | PO&BL | Heating/Cooling: | OTHER | | Inside Verify: | YES-FIX | Roof Cover: | COMP |
|
| | Type | Description | Class CD | Sub Class CD | Year Built | Area |
| | MA | Main Area | 5+ | D2S | 1888 | 1203.0 |
| | MA2 | Second Floor Main Area | 5+ | D2S | 1888 | 1218.0 |
| | HWPOR | House Wood Porch | 5 | * | 1888 | 15.0 |
| | HCPOR | House Concrete Porch | 5 | * | 1888 | 54.0 |
| | GARAG | Garage (Table Not Dep) | 4 | * | 1888 | 462.0 |
| | DATTIC | Duplex Attic | 5 | * | 1888 | 225.0 |
Sketch
Property Image
Land
| 1 | 6370-1165L | Uptown Std Lot (Avg) | 0.0000 | 0.00 | 0.00 | 0.00 | 1.00 | $260,000 | $0 |
Roll Value History
| 2025 | N/A | N/A | N/A | N/A | N/A |
| 2024 | $528,155 | $262,500 | $0 | $790,655 | $790,655 |
| 2023 | $505,192 | $245,000 | $0 | $750,192 | $750,192 |
| 2022 | $505,192 | $240,000 | $0 | $745,192 | $745,192 |
| 2021 | $422,401 | $216,000 | $0 | $638,401 | $638,401 |
Deed and Sales History
| 1 | 03/27/2002 | SWD | Statutory Warranty Deed | GREY EAGLE TRUST | MARTIN, LAUREEN | 0 | 0 | $276,000.00 | 94308 | 0 |
| 2 | 06/09/1993 | QCD | Quit Claim Deed | ANDERSON, ROBERT E JR/JUD | ANDERSON, ROBT/JUDITH TRUST | 0 | 0 | $0.00 | 71390 | 0 |
Payout Agreement
| No payout information available.. |