Property
Account |
| Property ID: | 38927 | Abbreviated Legal Description: | PLUMMER'S ADDITION BLK 3 LOT 6 |
| Parcel # / Geo ID: | 988800305 | Agent Code: | |
| Type: | Real | | |
| Tax Area: | 0110 - C-50F1E1H2 | Land Use Code | 11 |
| Open Space: | N | DFL | N |
| Historic Property: | N | Remodel Property: | N |
| Multi-Family Redevelopment: | N | | |
| Township: | 30N | Section: | 2 |
| Range: | 1W |
Location |
| Address: | 737 QUINCY ST PORT TOWNSEND, WA 98368 | Mapsco: | 107/017 |
| Neighborhood: | PLUMMERS LP AND HELANDER SP | Map ID: | |
| Neighborhood CD: | 6370 |
Owner |
| Name: | FLOYD ANDREWS | Owner ID: | 99776 |
| Mailing Address: | DONNA DEROUIN REGISTERED CA DOMESTIC PTNRS 737 QUINCY ST PORT TOWNSEND, WA 98368-5524 | % Ownership: | 100.0000000000% |
| | | Exemptions: | |
Pay Tax Due
There is currently No Amount Due on this property.
Taxes and Assessment Details
Property Tax Information as of
10/24/2025
Click on "Statement Details" to expand or collapse a tax statement.
* Please enter a valid date ** Please enter a valid date *
Statement Details |
| | TOTAL: | $0.00 | $0.00 | $0.00 | $0.00 | $0.00 | $0.00 |
|
| | $0.00 | $0.00 | $0.00 | $0.00 | $0.00 | $0.00 |
Values
| (+) Improvement Homesite Value: | + | $291,870 | |
| (+) Improvement Non-Homesite Value: | + | $59,780 | |
| (+) Land Homesite Value: | + | $240,000 | |
| (+) Land Non-Homesite Value: | + | $0 | |
| (+) Curr Use (HS): | + | $0 | $0 |
| (+) Curr Use (NHS): | + | $0 | $0 |
| | | -------------------------- | |
| (=) Market Value: | = | $591,650 | |
| (–) Productivity Loss: | – | $0 | |
| | | -------------------------- | |
| (=) Subtotal: | = | $591,650 | |
| (+) Senior Appraised Value: | + | $0 | |
| (+) Non-Senior Appraised Value: | + | $591,650 | |
| | | -------------------------- | |
| (=) Total Appraised Value: | = | $591,650 | |
| (–) Senior Exemption Loss: | – | $0 | |
| (–) Exemption Loss: | – | $0 | |
| | | -------------------------- | |
| (=) Taxable Value: | = | $591,650 | |
Taxing Jurisdiction
| Owner: | FLOYD ANDREWS | | |
| % Ownership: | 100.0000000000% | | |
| Total Value: | N/A | | |
| Tax Area: | 0110 - C-50F1E1H2 |
| CE | COUNTY CURRENT EXPENSE | N/A | N/A | N/A | N/A | | |
| CNTYDD | DEVELOPMENTAL DISABILITIES | N/A | N/A | N/A | N/A | | |
| CNTYVET | VETERANS RELIEF | N/A | N/A | N/A | N/A | | |
| MENTAL | MENTAL HEALTH | N/A | N/A | N/A | N/A | | |
| PTGEN | CITY OF PT GENERAL | N/A | N/A | N/A | N/A | | |
| PTLLL | CITY OF PT - LIBRARY LID LIFT | N/A | N/A | N/A | N/A | | |
| PTMVBOND | CITY OF PT MV BOND | N/A | N/A | N/A | N/A | | |
| HOSP2CASH | HOSP DIST #2 GENERAL | N/A | N/A | N/A | N/A | | |
| SCH50BOND | SCHOOL DIST #50 BOND 2016 | N/A | N/A | N/A | N/A | | |
| SCH50CP | SCHOOL DIST #50 CAP PROJ | N/A | N/A | N/A | N/A | | |
| SCH50MO | SCHOOL DIST #50 EP & O | N/A | N/A | N/A | N/A | | |
| CONSERVE | CONSERVATION FUTURES | N/A | N/A | N/A | N/A | | |
| EMS1 | FIRE DIST #1 EMS | N/A | N/A | N/A | N/A | | |
| FD1 | FIRE DIST #1 GENERAL | N/A | N/A | N/A | N/A | | |
| PORTPT | PORT OF PT GENERAL | N/A | N/A | N/A | N/A | | |
| PORTPTIDD | PORT OF PT IDD 2019 | N/A | N/A | N/A | N/A | | |
| PUD1 | PUD #1 GENERAL | N/A | N/A | N/A | N/A | | |
| STATE | STATE SCHOOL PART 1 | N/A | N/A | N/A | N/A | | |
| STATE2 | STATE SCHOOL PART 2 | N/A | N/A | N/A | N/A | | |
| | Total Tax Rate: | N/A | | | | | |
| | | | | Taxes w/Current Exemptions: | N/A | | |
| | | | | Taxes w/o Exemptions: | N/A | | |
Improvement / Building
| Improvement #1: | Residential Bldg | State Code: | 11 | 896.0 sqft | Value: | $351,650 |
| Bathrooms (#): | 1 (FULL) | Bedrooms (#): | 2 | | Exterior Wall: | SI/ST | Floor Construction: | FRAME | | Foundation: | CONPR | Heating/Cooling: | OTHER | | Roof Cover: | COMP |   |   |
|
| | Type | Description | Class CD | Sub Class CD | Year Built | Area |
| | MA | Main Area | 4+ | 1S | 1900 | 896.0 |
| | HWPOR | House Wood Porch | 4 | * | 1900 | 300.0 |
| | HDECK | House Deck | 4 | * | 1900 | 336.0 |
| | ADDN | Addition (Table Not Dep) | 2 | * | 1900 | 400.0 |
| | BSMTF | House basement finished | 3 | * | 1900 | 896.0 |
Sketch
Property Image
Land
| 1 | 6370-1165L | Uptown Std Lot (Avg) | 0.0000 | 0.00 | 0.00 | 0.00 | 1.00 | $240,000 | $0 |
Roll Value History
| 2025 | N/A | N/A | N/A | N/A | N/A |
| 2024 | $331,137 | $241,500 | $0 | $572,637 | $572,637 |
| 2023 | $316,740 | $225,000 | $0 | $541,740 | $541,740 |
| 2022 | $316,739 | $220,000 | $0 | $536,739 | $536,739 |
| 2021 | $264,832 | $192,000 | $0 | $456,832 | $456,832 |
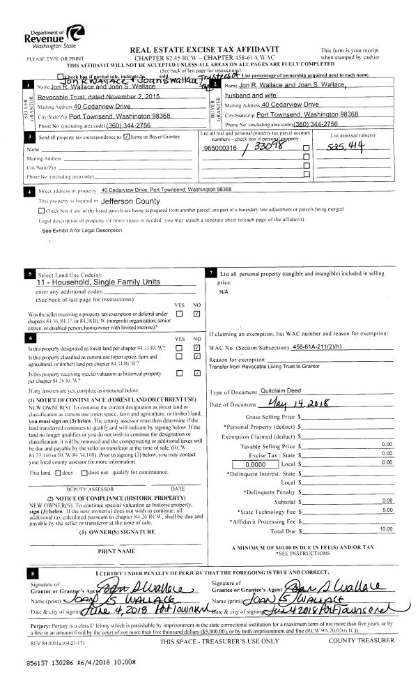
Deed and Sales History
| 1 | 08/01/2018 | SWD | Statutory Warranty Deed | JERYL L PARKER | FLOYD ANDREWS | | | $410,000.00 | 130796 | |
| 2 | 07/28/2004 | SWD | Statutory Warranty Deed | SPAFFORD, ROBERT | PARKER, JERYL L/SUSAN M | 0 | 0 | $219,000.00 | 100994 | 0 |
| 3 | 12/14/2000 | QCD | Quit Claim Deed | STERBICK-HAMMOND, MARILYN | SPAFFORD, ROBERT | 0 | 0 | $0.00 | 91302 | 0 |
| 4 | 12/14/2000 | QCD | Quit Claim Deed | STERBRICK-HAMMOND, MARILY | SPAFFORD, ROBERT | 0 | 0 | $235,000.00 | 91204 | 0 |
Payout Agreement
| No payout information available.. |