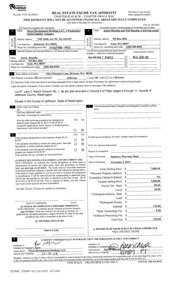
Property
Account |
| Property ID: | 38948 | Abbreviated Legal Description: | PLUMMER'S ADDITION BLK 7 LOT 6(LS S2' OF E25') BND BY LLA#134895 |
| Parcel # / Geo ID: | 988800704 | Agent Code: | |
| Type: | Real | | |
| Tax Area: | 0110 - C-50F1E1H2 | Land Use Code | 11 |
| Open Space: | N | DFL | N |
| Historic Property: | N | Remodel Property: | N |
| Multi-Family Redevelopment: | N | | |
| Township: | 30N | Section: | 2 |
| Range: | 1W |
Location |
| Address: | 831 JACKSON ST PORT TOWNSEND, WA 98368 | Mapsco: | 108/021 |
| Neighborhood: | PLUMMERS LP AND HELANDER SP | Map ID: | |
| Neighborhood CD: | 6370 |
Owner |
| Name: | LINDSEY FREW | Owner ID: | 112683 |
| Mailing Address: | BRADY KANE 831 JACKSON ST PORT TOWNSEND, WA 98368-4505 | % Ownership: | 100.0000000000% |
| | | Exemptions: | |
Pay Tax Due
There is currently No Amount Due on this property.
Taxes and Assessment Details
Property Tax Information as of
10/24/2025
Click on "Statement Details" to expand or collapse a tax statement.
* Please enter a valid date ** Please enter a valid date *
Statement Details |
| | TOTAL: | $0.00 | $0.00 | $0.00 | $0.00 | $0.00 | $0.00 |
|
| | $0.00 | $0.00 | $0.00 | $0.00 | $0.00 | $0.00 |
Values
| (+) Improvement Homesite Value: | + | $0 | |
| (+) Improvement Non-Homesite Value: | + | $389,514 | |
| (+) Land Homesite Value: | + | $0 | |
| (+) Land Non-Homesite Value: | + | $265,000 | |
| (+) Curr Use (HS): | + | $0 | $0 |
| (+) Curr Use (NHS): | + | $0 | $0 |
| | | -------------------------- | |
| (=) Market Value: | = | $654,514 | |
| (–) Productivity Loss: | – | $0 | |
| | | -------------------------- | |
| (=) Subtotal: | = | $654,514 | |
| (+) Senior Appraised Value: | + | $0 | |
| (+) Non-Senior Appraised Value: | + | $654,514 | |
| | | -------------------------- | |
| (=) Total Appraised Value: | = | $654,514 | |
| (–) Senior Exemption Loss: | – | $0 | |
| (–) Exemption Loss: | – | $0 | |
| | | -------------------------- | |
| (=) Taxable Value: | = | $654,514 | |
Taxing Jurisdiction
| Owner: | LINDSEY FREW | | |
| % Ownership: | 100.0000000000% | | |
| Total Value: | N/A | | |
| Tax Area: | 0110 - C-50F1E1H2 |
| CE | COUNTY CURRENT EXPENSE | N/A | N/A | N/A | N/A | | |
| CNTYDD | DEVELOPMENTAL DISABILITIES | N/A | N/A | N/A | N/A | | |
| CNTYVET | VETERANS RELIEF | N/A | N/A | N/A | N/A | | |
| MENTAL | MENTAL HEALTH | N/A | N/A | N/A | N/A | | |
| PTGEN | CITY OF PT GENERAL | N/A | N/A | N/A | N/A | | |
| PTLLL | CITY OF PT - LIBRARY LID LIFT | N/A | N/A | N/A | N/A | | |
| PTMVBOND | CITY OF PT MV BOND | N/A | N/A | N/A | N/A | | |
| HOSP2CASH | HOSP DIST #2 GENERAL | N/A | N/A | N/A | N/A | | |
| SCH50BOND | SCHOOL DIST #50 BOND 2016 | N/A | N/A | N/A | N/A | | |
| SCH50CP | SCHOOL DIST #50 CAP PROJ | N/A | N/A | N/A | N/A | | |
| SCH50MO | SCHOOL DIST #50 EP & O | N/A | N/A | N/A | N/A | | |
| CONSERVE | CONSERVATION FUTURES | N/A | N/A | N/A | N/A | | |
| EMS1 | FIRE DIST #1 EMS | N/A | N/A | N/A | N/A | | |
| FD1 | FIRE DIST #1 GENERAL | N/A | N/A | N/A | N/A | | |
| PORTPT | PORT OF PT GENERAL | N/A | N/A | N/A | N/A | | |
| PORTPTIDD | PORT OF PT IDD 2019 | N/A | N/A | N/A | N/A | | |
| PUD1 | PUD #1 GENERAL | N/A | N/A | N/A | N/A | | |
| STATE | STATE SCHOOL PART 1 | N/A | N/A | N/A | N/A | | |
| STATE2 | STATE SCHOOL PART 2 | N/A | N/A | N/A | N/A | | |
| | Total Tax Rate: | N/A | | | | | |
| | | | | Taxes w/Current Exemptions: | N/A | | |
| | | | | Taxes w/o Exemptions: | N/A | | |
Improvement / Building
| Improvement #1: | Residential Bldg | State Code: | 11 | 1216.0 sqft | Value: | $389,514 |
| Bathrooms (#): | 1 (FULL) | Bedrooms (#): | 3 | | Exterior Wall: | SI/ST | Floor Construction: | FRAME | | Foundation: | CONPR | Heating/Cooling: | HTWTR | | Roof Cover: | COMP |   |   |
|
| | Type | Description | Class CD | Sub Class CD | Year Built | Area |
| | MA | Main Area | 5 | 15SF | 1940 | 856.0 |
| | HDECK | House Deck | 5 | * | 1940 | 204.0 |
| | CARPT | Carport (Table Not Dep) | 5 | * | 1940 | 312.0 |
| | GDET | Detached Garage | 5 | * | 1940 | 312.0 |
| | MA2 | Second Floor Main Area | 5 | 15SF | 1940 | 360.0 |
| | PATIO | House Patio | 5 | * | 1940 | 592.9 |
| | SHED | Shed (Table Not Dep) | 3 | * | 1940 | 0.0 |
Sketch
Property Image
Land
| 1 | 6370-1155L | Uptown Std Lot (View Area) | 0.0000 | 0.00 | 0.00 | 0.00 | 1.00 | $265,000 | $0 |
Roll Value History
| 2025 | N/A | N/A | N/A | N/A | N/A |
| 2024 | $373,333 | $262,500 | $0 | $635,833 | $635,833 |
| 2023 | $357,101 | $245,000 | $0 | $602,101 | $602,101 |
| 2022 | $357,101 | $240,000 | $0 | $597,101 | $597,101 |
| 2021 | $298,579 | $216,000 | $0 | $514,579 | $514,579 |
Deed and Sales History
| 1 | 05/21/2025 | QCD | Quit Claim Deed | LINDSEY D FREW | LINDSEY FREW | | | | 144348 | |
| 2 | 10/12/2020 | SWD | Statutory Warranty Deed | MARGARET H SCHOCH | LINDSEY D FREW | | | $575,000.00 | 135355 | |
| 3 | 08/12/2020 | BLA | Boundary Line Adjustment | | DANIEL L & ALLISON D NEEDLES | | | | 0 | |
| 4 | 07/23/2014 | SWD | Statutory Warranty Deed | ALAN GREENWALD REVOCABLE LIVING TRUST | MARGARET H SCHOCH | | | $325,000.00 | 121610 | |
| 5 | 12/12/2013 | QCD | Quit Claim Deed | ALAN GREENWALD | ALAN GREENWALD REVOCABLE LIVING TRUST | | | | 120466 | |
| 6 | 06/01/2007 | QCD | Quit Claim Deed | MULLEE-GREENWALD, JENNIFE | GREENWALD, ALAN G | | | $0.00 | 109383 | 0 |
| 7 | 05/26/2006 | SWD | Statutory Warranty Deed | JONES, ROBERT L ESTATE OF | GREENWALD, ALAN & JENNIFER | | | $375,000.00 | 106763 | 0 |
Payout Agreement
| No payout information available.. |