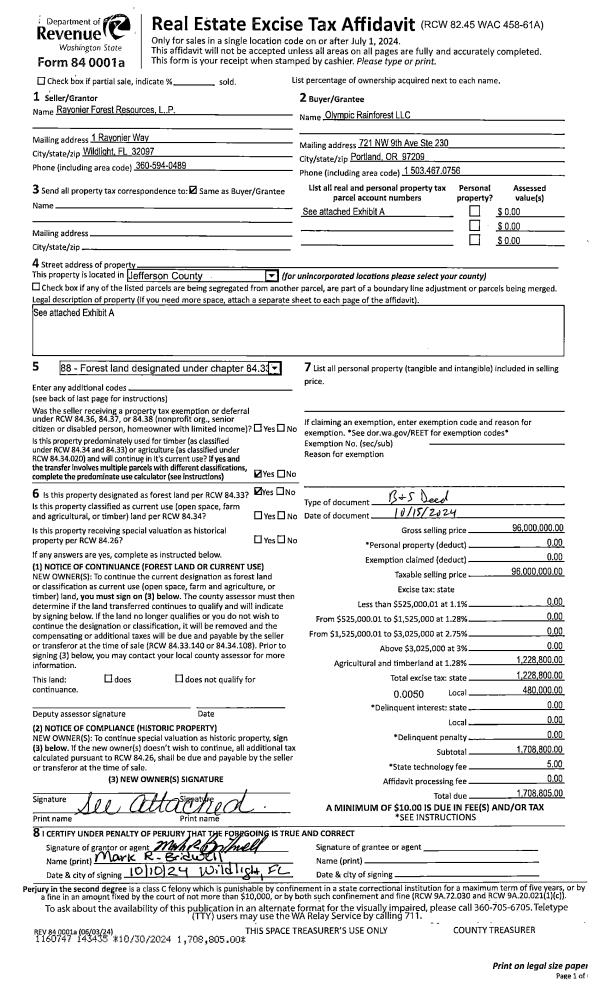
Property
Account |
| Property ID: | 38975 | Abbreviated Legal Description: | PLUMMER'S ADDITION- BLK 12 LOTS 3(ALL), 5(S14') |
| Parcel # / Geo ID: | 988801203 | Agent Code: | |
| Type: | Real | | |
| Tax Area: | 0110 - C-50F1E1H2 | Land Use Code | 11 |
| Open Space: | N | DFL | N |
| Historic Property: | N | Remodel Property: | N |
| Multi-Family Redevelopment: | N | | |
| Township: | 30N | Section: | 2 |
| Range: | 1W |
Location |
| Address: | 820 TYLER ST PORT TOWNSEND, WA 98368 | Mapsco: | 109/003 |
| Neighborhood: | PLUMMERS LP AND HELANDER SP | Map ID: | |
| Neighborhood CD: | 6370 |
Owner |
| Name: | 2005 MATTINSON FAMILY TRUST | Owner ID: | 109891 |
| Mailing Address: | LAURIE A & WILLIAM J MATTINSON TRUSTEES 820 TYLER ST PORT TOWNSEND, WA 98368-6540 | % Ownership: | 100.0000000000% |
| | | Exemptions: | |
Pay Tax Due
There is currently No Amount Due on this property.
Taxes and Assessment Details
Property Tax Information as of
10/24/2025
Click on "Statement Details" to expand or collapse a tax statement.
* Please enter a valid date ** Please enter a valid date *
Statement Details |
| | TOTAL: | $0.00 | $0.00 | $0.00 | $0.00 | $0.00 | $0.00 |
|
| | $0.00 | $0.00 | $0.00 | $0.00 | $0.00 | $0.00 |
Values
| (+) Improvement Homesite Value: | + | $333,834 | |
| (+) Improvement Non-Homesite Value: | + | $44,551 | |
| (+) Land Homesite Value: | + | $275,000 | |
| (+) Land Non-Homesite Value: | + | $29,375 | |
| (+) Curr Use (HS): | + | $0 | $0 |
| (+) Curr Use (NHS): | + | $0 | $0 |
| | | -------------------------- | |
| (=) Market Value: | = | $682,760 | |
| (–) Productivity Loss: | – | $0 | |
| | | -------------------------- | |
| (=) Subtotal: | = | $682,760 | |
| (+) Senior Appraised Value: | + | $0 | |
| (+) Non-Senior Appraised Value: | + | $682,760 | |
| | | -------------------------- | |
| (=) Total Appraised Value: | = | $682,760 | |
| (–) Senior Exemption Loss: | – | $0 | |
| (–) Exemption Loss: | – | $0 | |
| | | -------------------------- | |
| (=) Taxable Value: | = | $682,760 | |
Taxing Jurisdiction
| Owner: | 2005 MATTINSON FAMILY TRUST | | |
| % Ownership: | 100.0000000000% | | |
| Total Value: | N/A | | |
| Tax Area: | 0110 - C-50F1E1H2 |
| CE | COUNTY CURRENT EXPENSE | N/A | N/A | N/A | N/A | | |
| CNTYDD | DEVELOPMENTAL DISABILITIES | N/A | N/A | N/A | N/A | | |
| CNTYVET | VETERANS RELIEF | N/A | N/A | N/A | N/A | | |
| MENTAL | MENTAL HEALTH | N/A | N/A | N/A | N/A | | |
| PTGEN | CITY OF PT GENERAL | N/A | N/A | N/A | N/A | | |
| PTLLL | CITY OF PT - LIBRARY LID LIFT | N/A | N/A | N/A | N/A | | |
| PTMVBOND | CITY OF PT MV BOND | N/A | N/A | N/A | N/A | | |
| HOSP2CASH | HOSP DIST #2 GENERAL | N/A | N/A | N/A | N/A | | |
| SCH50BOND | SCHOOL DIST #50 BOND 2016 | N/A | N/A | N/A | N/A | | |
| SCH50CP | SCHOOL DIST #50 CAP PROJ | N/A | N/A | N/A | N/A | | |
| SCH50MO | SCHOOL DIST #50 EP & O | N/A | N/A | N/A | N/A | | |
| CONSERVE | CONSERVATION FUTURES | N/A | N/A | N/A | N/A | | |
| EMS1 | FIRE DIST #1 EMS | N/A | N/A | N/A | N/A | | |
| FD1 | FIRE DIST #1 GENERAL | N/A | N/A | N/A | N/A | | |
| PORTPT | PORT OF PT GENERAL | N/A | N/A | N/A | N/A | | |
| PORTPTIDD | PORT OF PT IDD 2019 | N/A | N/A | N/A | N/A | | |
| PUD1 | PUD #1 GENERAL | N/A | N/A | N/A | N/A | | |
| STATE | STATE SCHOOL PART 1 | N/A | N/A | N/A | N/A | | |
| STATE2 | STATE SCHOOL PART 2 | N/A | N/A | N/A | N/A | | |
| | Total Tax Rate: | N/A | | | | | |
| | | | | Taxes w/Current Exemptions: | N/A | | |
| | | | | Taxes w/o Exemptions: | N/A | | |
Improvement / Building
| Improvement #1: | Residential Bldg | State Code: | 11 | 1133.0 sqft | Value: | $333,834 |
| Bathrooms (#): | 1 (FULL) | Bedrooms (#): | 2 | | Exterior Wall: | SI/ST | Fireplace: | WD ST-AVG | | Floor Construction: | FRAME | Foundation: | CONBL | | Heating/Cooling: | F/A | Inside Verify: | YES-FIX | | Roof Cover: | COMP |   |   |
|
| | Type | Description | Class CD | Sub Class CD | Year Built | Area |
| | MA | Main Area | 4+ | 1S | 1910 | 1133.0 |
| | BSMTU | House basement unfinished | 3 | * | 1910 | 566.0 |
| | HDECK | House Deck | 4 | 1S | 1910 | 200.0 |
| | HENCL | House Enclosure | 4 | 1S | 1910 | 120.0 |
| Improvement #2: | Residential Bldg | State Code: | 19 | 0.0 sqft | Value: | $44,551 |
| | Type | Description | Class CD | Sub Class CD | Year Built | Area |
| | GDET | Detached Garage | 3 | * | 0 | 350.0 |
| | ADDN | Addition (Table Not Dep) | 3 | * | 0 | 350.0 |
Sketch
Property Image
Land
| 1 | 6370-1155L | Uptown Std Lot (View Area) | 0.0000 | 0.00 | 0.00 | 0.00 | 1.00 | $29,375 | $0 |
| 2 | 6370-1155L | Uptown Std Lot (View Area) | 0.0000 | 0.00 | 0.00 | 0.00 | 1.00 | $275,000 | $0 |
Roll Value History
| 2025 | N/A | N/A | N/A | N/A | N/A |
| 2024 | $352,418 | $301,875 | $0 | $654,293 | $654,293 |
| 2023 | $337,096 | $297,500 | $0 | $634,596 | $634,596 |
| 2022 | $266,204 | $287,500 | $0 | $553,704 | $553,704 |
| 2021 | $221,929 | $258,750 | $0 | $480,679 | $480,679 |
Deed and Sales History
| 1 | 10/13/2023 | QCD | Quit Claim Deed | LAURIE & BILL MATTINSON | 2005 MATTINSON FAMILY TRUST | | | | 141761 | |
| 2 | 05/28/2021 | SWD | Statutory Warranty Deed | MINDY LOU PARESI | LAURIE & BILL MATTINSON | | | $595,000.00 | 136844 | |
| 3 | 09/11/2019 | PRD | Personal Representatives Deed | JOYCE A COX | MINDY LOU PARESI | | | $0.00 | 133124 | |
Payout Agreement
| No payout information available.. |