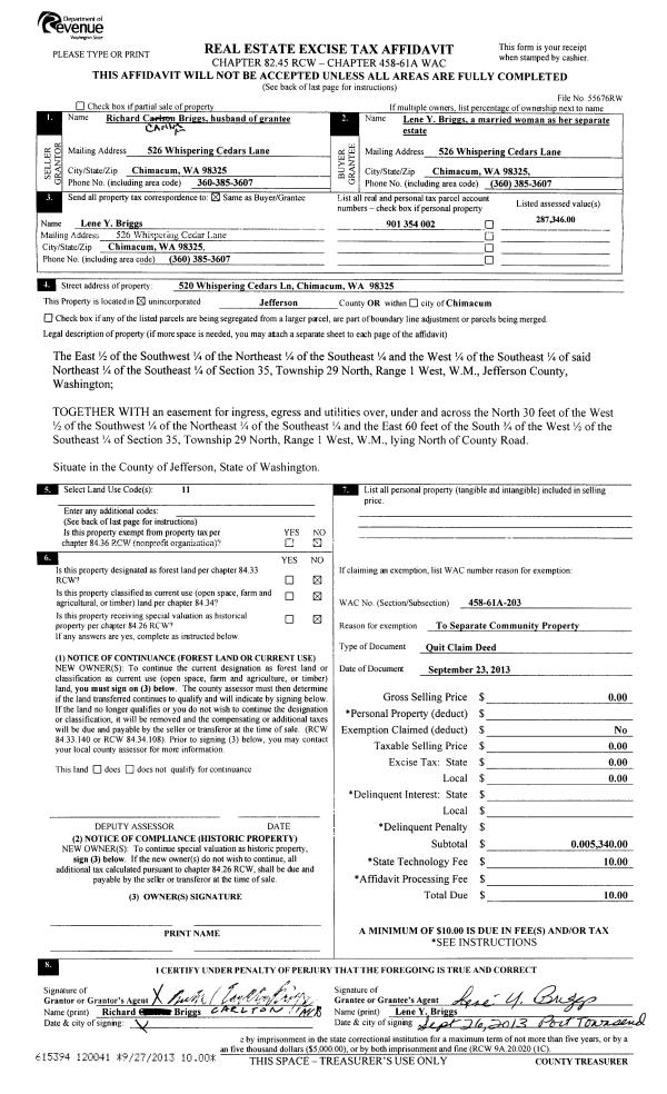
Property
Account |
| Property ID: | 39036 | Abbreviated Legal Description: | PLUMMER'S ADDITION BLK 20 LOTS 1 & 3 |
| Parcel # / Geo ID: | 988802001 | Agent Code: | |
| Type: | Real | | |
| Tax Area: | 0110 - C-50F1E1H2 | Land Use Code | 11 |
| Open Space: | N | DFL | N |
| Historic Property: | N | Remodel Property: | N |
| Multi-Family Redevelopment: | N | | |
| Township: | 30N | Section: | 2 |
| Range: | 1W |
Location |
| Address: | 1000 MADISON ST PORT TOWNSEND, WA 98368 | Mapsco: | 110/030 |
| Neighborhood: | PLUMMERS LP AND HELANDER SP | Map ID: | |
| Neighborhood CD: | 6370 |
Owner |
| Name: | KERRI M BALLARD | Owner ID: | 113446 |
| Mailing Address: | 1199 FREITAS PL MAKAWAO, HI 96768-9609 | % Ownership: | 100.0000000000% |
| | | Exemptions: | |
Pay Tax Due
There is currently No Amount Due on this property.
Taxes and Assessment Details
Property Tax Information as of
10/24/2025
Click on "Statement Details" to expand or collapse a tax statement.
* Please enter a valid date ** Please enter a valid date *
Statement Details |
| | TOTAL: | $0.00 | $0.00 | $0.00 | $0.00 | $0.00 | $0.00 |
|
| | $0.00 | $0.00 | $0.00 | $0.00 | $0.00 | $0.00 |
Values
| (+) Improvement Homesite Value: | + | $0 | |
| (+) Improvement Non-Homesite Value: | + | $643,988 | |
| (+) Land Homesite Value: | + | $0 | |
| (+) Land Non-Homesite Value: | + | $382,500 | |
| (+) Curr Use (HS): | + | $0 | $0 |
| (+) Curr Use (NHS): | + | $0 | $0 |
| | | -------------------------- | |
| (=) Market Value: | = | $1,026,488 | |
| (–) Productivity Loss: | – | $0 | |
| | | -------------------------- | |
| (=) Subtotal: | = | $1,026,488 | |
| (+) Senior Appraised Value: | + | $0 | |
| (+) Non-Senior Appraised Value: | + | $1,026,488 | |
| | | -------------------------- | |
| (=) Total Appraised Value: | = | $1,026,488 | |
| (–) Senior Exemption Loss: | – | $0 | |
| (–) Exemption Loss: | – | $0 | |
| | | -------------------------- | |
| (=) Taxable Value: | = | $1,026,488 | |
Taxing Jurisdiction
| Owner: | KERRI M BALLARD | | |
| % Ownership: | 100.0000000000% | | |
| Total Value: | N/A | | |
| Tax Area: | 0110 - C-50F1E1H2 |
| CE | COUNTY CURRENT EXPENSE | N/A | N/A | N/A | N/A | | |
| CNTYDD | DEVELOPMENTAL DISABILITIES | N/A | N/A | N/A | N/A | | |
| CNTYVET | VETERANS RELIEF | N/A | N/A | N/A | N/A | | |
| MENTAL | MENTAL HEALTH | N/A | N/A | N/A | N/A | | |
| PTGEN | CITY OF PT GENERAL | N/A | N/A | N/A | N/A | | |
| PTLLL | CITY OF PT - LIBRARY LID LIFT | N/A | N/A | N/A | N/A | | |
| PTMVBOND | CITY OF PT MV BOND | N/A | N/A | N/A | N/A | | |
| HOSP2CASH | HOSP DIST #2 GENERAL | N/A | N/A | N/A | N/A | | |
| SCH50BOND | SCHOOL DIST #50 BOND 2016 | N/A | N/A | N/A | N/A | | |
| SCH50CP | SCHOOL DIST #50 CAP PROJ | N/A | N/A | N/A | N/A | | |
| SCH50MO | SCHOOL DIST #50 EP & O | N/A | N/A | N/A | N/A | | |
| CONSERVE | CONSERVATION FUTURES | N/A | N/A | N/A | N/A | | |
| EMS1 | FIRE DIST #1 EMS | N/A | N/A | N/A | N/A | | |
| FD1 | FIRE DIST #1 GENERAL | N/A | N/A | N/A | N/A | | |
| PORTPT | PORT OF PT GENERAL | N/A | N/A | N/A | N/A | | |
| PORTPTIDD | PORT OF PT IDD 2019 | N/A | N/A | N/A | N/A | | |
| PUD1 | PUD #1 GENERAL | N/A | N/A | N/A | N/A | | |
| STATE | STATE SCHOOL PART 1 | N/A | N/A | N/A | N/A | | |
| STATE2 | STATE SCHOOL PART 2 | N/A | N/A | N/A | N/A | | |
| | Total Tax Rate: | N/A | | | | | |
| | | | | Taxes w/Current Exemptions: | N/A | | |
| | | | | Taxes w/o Exemptions: | N/A | | |
Improvement / Building
| Improvement #1: | Residential Bldg | State Code: | 11 | 1419.0 sqft | Value: | $436,173 |
| Bathrooms (#): | 1 (FULL) | Bathrooms (#): | 1 (HALF) | | Bedrooms (#): | 2 | Exterior Wall: | SI/ST | | Fireplace: | SIN 1-AVG | Floor Construction: | FRAME | | Foundation: | CONPR | Heating/Cooling: | F/A | | Roof Cover: | COMP |   |   |
|
| | Type | Description | Class CD | Sub Class CD | Year Built | Area |
| | MA | Main Area | 5 | 1S | 1942 | 1419.0 |
| | PATIO | House Patio | 5 | * | 1942 | 500.0 |
| | HCPOR | House Concrete Porch | 5 | * | 1942 | 24.0 |
| | SOLAR | Solar Panel | 5 | * | 1942 | 0.0 |
| Improvement #2: | Residential Bldg | State Code: | 11 | 0.0 sqft | Value: | $207,815 |
| | Type | Description | Class CD | Sub Class CD | Year Built | Area |
| | GDET | Detached Garage | 5 | ADU | 1940 | 743.0 |
| | ADDN | Addition (Table Not Dep) | 5 | ADU | 1940 | 820.0 |
| | HBAL | House Balcony | 5 | * | 1940 | 50.0 |
Sketch
Property Image
Land
| 1 | 6370-1155L | Uptown Std Lot (View Area) | 0.0000 | 0.00 | 0.00 | 0.00 | 1.00 | $265,000 | $0 |
| 2 | 6370-1155L | Uptown Std Lot (View Area) | 0.0000 | 0.00 | 0.00 | 0.00 | 1.00 | $117,500 | $0 |
Roll Value History
| 2025 | N/A | N/A | N/A | N/A | N/A |
| 2024 | $609,886 | $378,000 | $0 | $987,886 | $987,886 |
| 2023 | $583,370 | $355,000 | $0 | $938,370 | $938,370 |
| 2022 | $583,370 | $350,000 | $0 | $933,370 | $933,370 |
| 2021 | $487,767 | $315,000 | $0 | $802,767 | $802,767 |
Deed and Sales History
| 1 | 09/29/2025 | QCD | Quit Claim Deed | BERNADETTE MANSELL | KERRI M BALLARD | | | | 145035 | |
| 2 | 09/29/2025 | SWD | Statutory Warranty Deed | LYNN B & ROBIN GILMAN | KERRI M BALLARD | | | $1,150,000.00 | 145034 | |
| 3 | 09/04/2018 | SWD | Statutory Warranty Deed | PETER G & ANNA M QUINN | LYNN B & ROBIN GILMAN | | | $721,000.00 | 131017 | |
| 4 | 03/19/2015 | SWD | Statutory Warranty Deed | ANNE K ALFKE | PETER G & ANNA M QUINN | | | $535,000.00 | 122931 | |
| 5 | 04/02/2002 | QCD | Quit Claim Deed | MATTHEW O ROWE | ANNE KAREN ALFKE | 0 | 0 | $0.00 | 95000 | 0 |
| 6 | 03/24/1998 | SWD | Statutory Warranty Deed | HOOVER, C RUSSEL/JR & JES | ROWE, MATTHEW O/ALFKE, ANNE K | 0 | 0 | $168,000.00 | 84089 | 0 |
| 7 | 06/09/1995 | SWD | Statutory Warranty Deed | STREAKER, STEPHEN J | HOOVER, C RUSSELL/JR & JESSICA | 0 | 0 | $162,000.00 | 77100 | 0 |
Payout Agreement
| No payout information available.. |