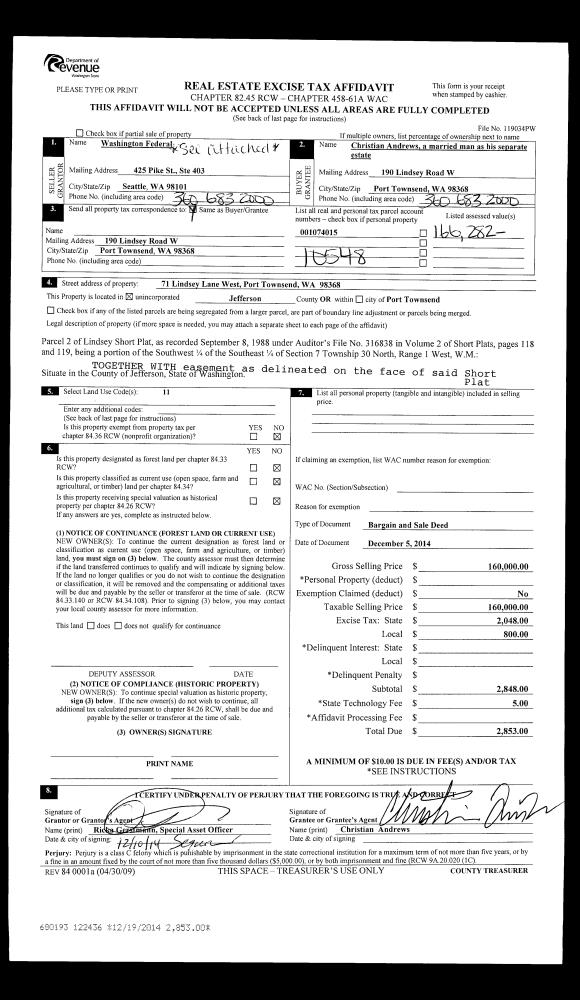
Property
Account |
| Property ID: | 39073 | Abbreviated Legal Description: | PLUMMER'S ADDITION BLK 24 LOTS 1(ALL),3(S35') BND BY LLA#129226 |
| Parcel # / Geo ID: | 988802401 | Agent Code: | |
| Type: | Real | | |
| Tax Area: | 0110 - C-50F1E1H2 | Land Use Code | 11 |
| Open Space: | N | DFL | N |
| Historic Property: | N | Remodel Property: | N |
| Multi-Family Redevelopment: | N | | |
| Township: | 30N | Section: | 2 |
| Range: | 1W |
Location |
| Address: | 988 BLAINE ST PORT TOWNSEND, WA 98368 | Mapsco: | 111/037 |
| Neighborhood: | PLUMMERS LP AND HELANDER SP | Map ID: | |
| Neighborhood CD: | 6370 |
Owner |
| Name: | REBECCA B NIENOW & DALE R NIENOW REV TRUST | Owner ID: | 104936 |
| Mailing Address: | REBECCA B & DALE NIENOW TRUSTEES 988 BLAINE ST PORT TOWNSEND, WA 98368-5412 | % Ownership: | 100.0000000000% |
| | | Exemptions: | |
Pay Tax Due
There is currently No Amount Due on this property.
Taxes and Assessment Details
Property Tax Information as of
10/24/2025
Click on "Statement Details" to expand or collapse a tax statement.
* Please enter a valid date ** Please enter a valid date *
Statement Details |
| | TOTAL: | $0.00 | $0.00 | $0.00 | $0.00 | $0.00 | $0.00 |
|
| | $0.00 | $0.00 | $0.00 | $0.00 | $0.00 | $0.00 |
Values
| (+) Improvement Homesite Value: | + | $0 | |
| (+) Improvement Non-Homesite Value: | + | $758,779 | |
| (+) Land Homesite Value: | + | $0 | |
| (+) Land Non-Homesite Value: | + | $307,200 | |
| (+) Curr Use (HS): | + | $0 | $0 |
| (+) Curr Use (NHS): | + | $0 | $0 |
| | | -------------------------- | |
| (=) Market Value: | = | $1,065,979 | |
| (–) Productivity Loss: | – | $0 | |
| | | -------------------------- | |
| (=) Subtotal: | = | $1,065,979 | |
| (+) Senior Appraised Value: | + | $0 | |
| (+) Non-Senior Appraised Value: | + | $1,065,979 | |
| | | -------------------------- | |
| (=) Total Appraised Value: | = | $1,065,979 | |
| (–) Senior Exemption Loss: | – | $0 | |
| (–) Exemption Loss: | – | $0 | |
| | | -------------------------- | |
| (=) Taxable Value: | = | $1,065,979 | |
Taxing Jurisdiction
| Owner: | REBECCA B NIENOW & DALE R NIENOW REV TRUST | | |
| % Ownership: | 100.0000000000% | | |
| Total Value: | N/A | | |
| Tax Area: | 0110 - C-50F1E1H2 |
| CE | COUNTY CURRENT EXPENSE | N/A | N/A | N/A | N/A | | |
| CNTYDD | DEVELOPMENTAL DISABILITIES | N/A | N/A | N/A | N/A | | |
| CNTYVET | VETERANS RELIEF | N/A | N/A | N/A | N/A | | |
| MENTAL | MENTAL HEALTH | N/A | N/A | N/A | N/A | | |
| PTGEN | CITY OF PT GENERAL | N/A | N/A | N/A | N/A | | |
| PTLLL | CITY OF PT - LIBRARY LID LIFT | N/A | N/A | N/A | N/A | | |
| PTMVBOND | CITY OF PT MV BOND | N/A | N/A | N/A | N/A | | |
| HOSP2CASH | HOSP DIST #2 GENERAL | N/A | N/A | N/A | N/A | | |
| SCH50BOND | SCHOOL DIST #50 BOND 2016 | N/A | N/A | N/A | N/A | | |
| SCH50CP | SCHOOL DIST #50 CAP PROJ | N/A | N/A | N/A | N/A | | |
| SCH50MO | SCHOOL DIST #50 EP & O | N/A | N/A | N/A | N/A | | |
| CONSERVE | CONSERVATION FUTURES | N/A | N/A | N/A | N/A | | |
| EMS1 | FIRE DIST #1 EMS | N/A | N/A | N/A | N/A | | |
| FD1 | FIRE DIST #1 GENERAL | N/A | N/A | N/A | N/A | | |
| PORTPT | PORT OF PT GENERAL | N/A | N/A | N/A | N/A | | |
| PORTPTIDD | PORT OF PT IDD 2019 | N/A | N/A | N/A | N/A | | |
| PUD1 | PUD #1 GENERAL | N/A | N/A | N/A | N/A | | |
| STATE | STATE SCHOOL PART 1 | N/A | N/A | N/A | N/A | | |
| STATE2 | STATE SCHOOL PART 2 | N/A | N/A | N/A | N/A | | |
| | Total Tax Rate: | N/A | | | | | |
| | | | | Taxes w/Current Exemptions: | N/A | | |
| | | | | Taxes w/o Exemptions: | N/A | | |
Improvement / Building
| Improvement #1: | Residential Bldg | State Code: | 11 | 2264.0 sqft | Value: | $758,779 |
| Bathrooms (#): | 3 (FULL) | Bedrooms (#): | 3 | | Exterior Wall: | SI/ST | Fireplace: | SIN 1-GOOD | | Foundation: | CONPR | Heating/Cooling: | F/A | | Roof Cover: | COMP |   |   |
|
| | Type | Description | Class CD | Sub Class CD | Year Built | Area |
| | MA | Main Area | 5+ | 15SF | 2017 | 1296.0 |
| | MA2 | Second Floor Main Area | 5+ | 15SF | 2017 | 968.0 |
| | HWPOR | House Wood Porch | 4 | * | 2017 | 368.0 |
| | GDET | Detached Garage | 4 | * | 2017 | 504.0 |
| | ADDN | Addition (Table Not Dep) | 4 | * | 2017 | 400.0 |
Sketch
Property Image
Land
| 1 | 6370-1165L | Uptown Std Lot (Avg) | 0.0000 | 0.00 | 0.00 | 0.00 | 1.00 | $240,000 | $0 |
| 2 | 6370-1165L | Uptown Std Lot (Avg) | 0.0000 | 0.00 | 0.00 | 0.00 | 1.00 | $67,200 | $0 |
Roll Value History
| 2025 | N/A | N/A | N/A | N/A | N/A |
| 2024 | $719,776 | $308,700 | $0 | $1,028,476 | $1,028,476 |
| 2023 | $688,481 | $289,000 | $0 | $977,481 | $977,481 |
| 2022 | $688,481 | $284,000 | $0 | $972,481 | $972,481 |
| 2021 | $575,653 | $247,680 | $0 | $823,333 | $823,333 |
Deed and Sales History
| 1 | 06/14/2021 | QCD | Quit Claim Deed | REBECCA & DALE NIENOW | REBECCA B NIENOW & DALE R NIENOW REV TRUST | | | | 136932 | |
| 2 | 12/14/2017 | SWD | Statutory Warranty Deed | MARSHALL EARL RANEY | REBECCA & DALE NIENOW | | | $110,000.00 | 129266 | |
| 3 | 12/08/2017 | BLA | Boundary Line Adjustment | | REBECCA & DALE NIENOW | | | | 129226 | |
| 4 | 12/16/2015 | BSD | Bargain and Sale Deed | SUSAN T BROWN TRTEE | REBECCA & DALE NIENOW | | | $319,696.00 | 124587 | |
| 5 | 09/06/2015 | SWD | Statutory Warranty Deed | SUSAN T BROWN TRTEE | | | | $82,000.00 | 123749 | |
| 6 | 09/18/2015 | SWD | Statutory Warranty Deed | MARSHALL EARL RANEY | SUSAN T BROWN TRTEE | | | $235,000.00 | 122735 | |
| 7 | 03/11/2004 | BLA | Boundary Line Adjustment | RANEY, MARSHALL E | RANEY, MARSHALL E | 0 | 0 | $0.00 | 99700 | 0 |
| 8 | 09/14/1999 | SWD | Statutory Warranty Deed | SEVERIN GROUP INC | RANEY, MARSHALL EARL | 0 | 0 | $0.00 | 87872 | 0 |
| 9 | 12/07/1997 | SWD | Statutory Warranty Deed | SEVERIN GROUP INC | MARSHALL EARL RANEY | 0 | 0 | $0.00 | 86421 | 0 |
| 10 | 12/04/1997 | SWD | Statutory Warranty Deed | NOWAK, RONALD E/ROSE ANN | SEVERIN GROUP INC | 0 | 0 | $0.00 | 83423 | 0 |
Payout Agreement
| No payout information available.. |