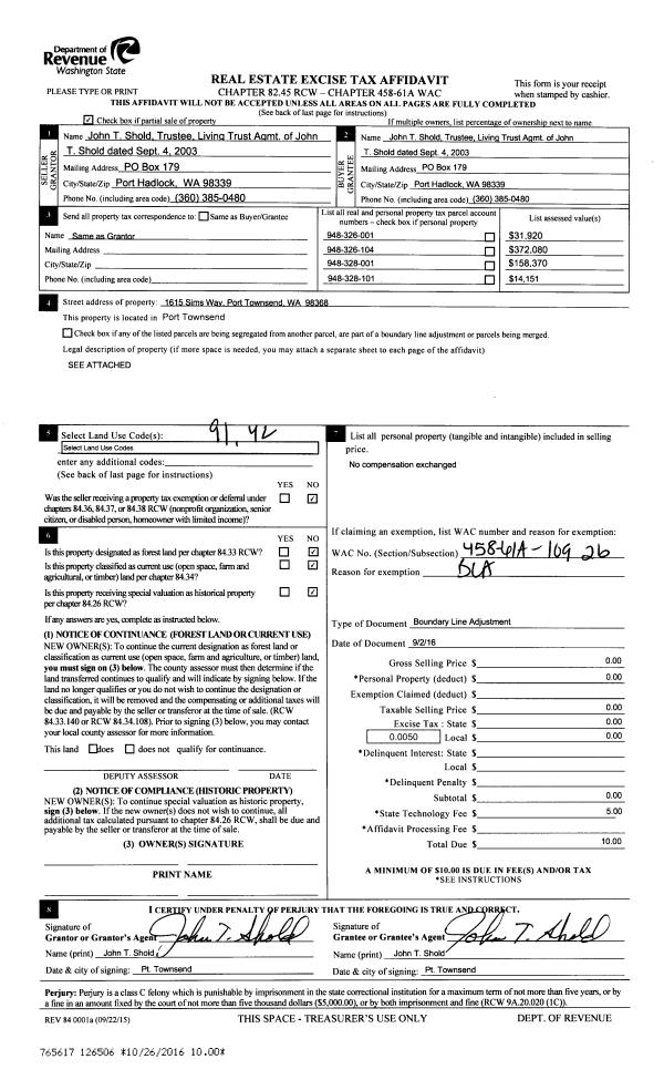
Property
Account |
| Property ID: | 39234 | Abbreviated Legal Description: | PORT HADLOCK HEIGHTS MH PARK LOT 28 IMPS ONLY |
| Parcel # / Geo ID: | 989506128 | Agent Code: | |
| Type: | Real | | |
| Tax Area: | 0211 - 1-49F1E1H2L1 | Land Use Code | 11M |
| Open Space: | N | DFL | N |
| Historic Property: | N | Remodel Property: | N |
| Multi-Family Redevelopment: | N | | |
| Township: | 29N | Section: | 11 |
| Range: | 1W |
Location |
| Address: | 415 PT HADLOCK HGHTS RD PORT HADLOCK, WA 98339 | Mapsco: | 261/028 |
| Neighborhood: | HADLOCK MH/RV PARKS (ADULT PK/B&R/MOUNTAIN VIEW/E. COHO/OLYMPIC GREENS/HADLOCK HTS) | Map ID: | |
| Neighborhood CD: | 4216 |
Owner |
| Name: | JOHN SPOFFORTH | Owner ID: | 107223 |
| Mailing Address: | CHERYL SPOFFORTH 415 PORT HADLOCK HEIGHTS RD PORT HADLOCK, WA 98339-8714 | % Ownership: | 100.0000000000% |
| | | Exemptions: | |
Pay Tax Due
There is currently No Amount Due on this property.
Taxes and Assessment Details
Property Tax Information as of
10/24/2025
Click on "Statement Details" to expand or collapse a tax statement.
* Please enter a valid date ** Please enter a valid date *
Statement Details |
| | TOTAL: | $0.00 | $0.00 | $0.00 | $0.00 | $0.00 | $0.00 |
|
| | $0.00 | $0.00 | $0.00 | $0.00 | $0.00 | $0.00 |
Values
| (+) Improvement Homesite Value: | + | $171,021 | |
| (+) Improvement Non-Homesite Value: | + | $0 | |
| (+) Land Homesite Value: | + | $0 | |
| (+) Land Non-Homesite Value: | + | $0 | |
| (+) Curr Use (HS): | + | $0 | $0 |
| (+) Curr Use (NHS): | + | $0 | $0 |
| | | -------------------------- | |
| (=) Market Value: | = | $171,021 | |
| (–) Productivity Loss: | – | $0 | |
| | | -------------------------- | |
| (=) Subtotal: | = | $171,021 | |
| (+) Senior Appraised Value: | + | $0 | |
| (+) Non-Senior Appraised Value: | + | $171,021 | |
| | | -------------------------- | |
| (=) Total Appraised Value: | = | $171,021 | |
| (–) Senior Exemption Loss: | – | $0 | |
| (–) Exemption Loss: | – | $0 | |
| | | -------------------------- | |
| (=) Taxable Value: | = | $171,021 | |
Taxing Jurisdiction
| Owner: | JOHN SPOFFORTH | | |
| % Ownership: | 100.0000000000% | | |
| Total Value: | N/A | | |
| Tax Area: | 0211 - 1-49F1E1H2L1 |
| CE | COUNTY CURRENT EXPENSE | N/A | N/A | N/A | N/A | | |
| CNTYDD | DEVELOPMENTAL DISABILITIES | N/A | N/A | N/A | N/A | | |
| CNTYVET | VETERANS RELIEF | N/A | N/A | N/A | N/A | | |
| MENTAL | MENTAL HEALTH | N/A | N/A | N/A | N/A | | |
| ROADS | COUNTY ROADS | N/A | N/A | N/A | N/A | | |
| ROADSCU | COUNTY ROADS TO CUR EXP | N/A | N/A | N/A | N/A | | |
| HOSP2CASH | HOSP DIST #2 GENERAL | N/A | N/A | N/A | N/A | | |
| SCH49CP | SCHOOL DIST #49 CAP PROJ | N/A | N/A | N/A | N/A | | |
| SCH49MO | SCHOOL DIST #49 EP & O | N/A | N/A | N/A | N/A | | |
| CONSERVE | CONSERVATION FUTURES | N/A | N/A | N/A | N/A | | |
| EMS1 | FIRE DIST #1 EMS | N/A | N/A | N/A | N/A | | |
| FD1 | FIRE DIST #1 GENERAL | N/A | N/A | N/A | N/A | | |
| LIB1 | LIBRARY DIST #1 GENERAL | N/A | N/A | N/A | N/A | | |
| PORTPT | PORT OF PT GENERAL | N/A | N/A | N/A | N/A | | |
| PORTPTIDD | PORT OF PT IDD 2019 | N/A | N/A | N/A | N/A | | |
| PUD1 | PUD #1 GENERAL | N/A | N/A | N/A | N/A | | |
| STATE | STATE SCHOOL PART 1 | N/A | N/A | N/A | N/A | | |
| STATE2 | STATE SCHOOL PART 2 | N/A | N/A | N/A | N/A | | |
| | Total Tax Rate: | N/A | | | | | |
| | | | | Taxes w/Current Exemptions: | N/A | | |
| | | | | Taxes w/o Exemptions: | N/A | | |
Improvement / Building
| Improvement #1: | Manufactured Home | State Code: | 11M | 1180.0 sqft | Value: | $171,021 |
| Bathrooms (#): | 2 (FULL) | Bedrooms (#): | 2 | | Exterior Wall: | PL/T1 | Floor Construction: | FRAME | | Foundation: | CONBL | Heating/Cooling: | F/A | | Roof Cover: | COMP |   |   |
|
| | Type | Description | Class CD | Sub Class CD | Year Built | Area |
| | MA | Main Area | 4 | MFH | 2014 | 1180.0 |
| | MDECK | MH Deck | 4 | * | 2014 | 120.0 |
| | MDECK | MH Deck | 4 | * | 2014 | 184.0 |
Sketch
| No sketches available for this property. |
Property Image
Land
No land segments exist for this property.
Roll Value History
| 2025 | N/A | N/A | N/A | N/A | N/A |
| 2024 | $171,021 | $0 | $0 | $171,021 | $171,021 |
| 2023 | $163,248 | $0 | $0 | $163,248 | $163,248 |
| 2022 | $153,406 | $0 | $0 | $153,406 | $153,406 |
| 2021 | $87,126 | $0 | $0 | $87,126 | $19,968 |
Deed and Sales History
| 1 | 06/21/2022 | MH | Mobile Home | JOHN HIXON | JOHN SPOFFORTH | | | $286,000.00 | 139322 | |
Payout Agreement
| No payout information available.. |