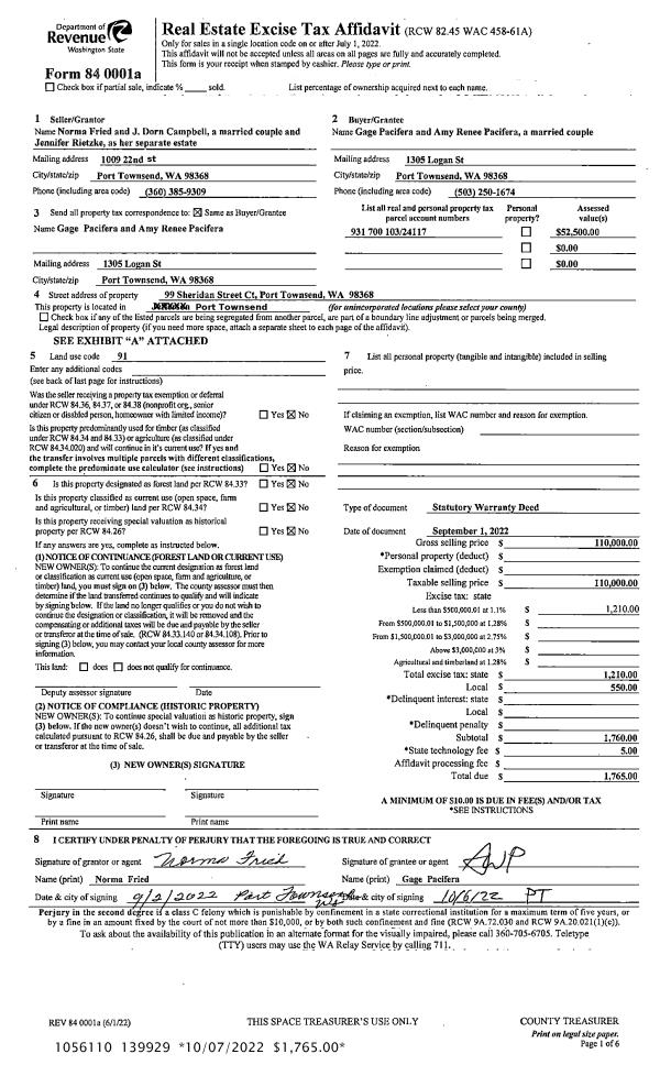
Property
Account |
| Property ID: | 39264 | Abbreviated Legal Description: | PROSPECT VIEW ESTATES LOT 14 |
| Parcel # / Geo ID: | 989600014 | Agent Code: | |
| Type: | Real | | |
| Tax Area: | 0211 - 1-49F1E1H2L1 | Land Use Code | 11 |
| Open Space: | N | DFL | N |
| Historic Property: | N | Remodel Property: | N |
| Multi-Family Redevelopment: | N | | |
| Township: | 30N | Section: | 35 |
| Range: | 1W |
Location |
| Address: | 1343 PROSPECT AVE PORT TOWNSEND, WA 98368 | Mapsco: | 118/014 |
| Neighborhood: | IRONDALE BLOCKS 100 - 179 (I.E. PROSPECT AVENUE AREA) | Map ID: | |
| Neighborhood CD: | 4120 |
Owner |
| Name: | THOMAS M GATES | Owner ID: | 16333 |
| Mailing Address: | 1343 PROSPECT AVE PORT TOWNSEND, WA 98368-2541 | % Ownership: | 100.0000000000% |
| | | Exemptions: | |
Pay Tax Due
There is currently No Amount Due on this property.
Taxes and Assessment Details
Property Tax Information as of
10/24/2025
Click on "Statement Details" to expand or collapse a tax statement.
* Please enter a valid date ** Please enter a valid date *
Statement Details |
| | TOTAL: | $0.00 | $0.00 | $0.00 | $0.00 | $0.00 | $0.00 |
|
| | $0.00 | $0.00 | $0.00 | $0.00 | $0.00 | $0.00 |
Values
| (+) Improvement Homesite Value: | + | $0 | |
| (+) Improvement Non-Homesite Value: | + | $559,857 | |
| (+) Land Homesite Value: | + | $0 | |
| (+) Land Non-Homesite Value: | + | $147,000 | |
| (+) Curr Use (HS): | + | $0 | $0 |
| (+) Curr Use (NHS): | + | $0 | $0 |
| | | -------------------------- | |
| (=) Market Value: | = | $706,857 | |
| (–) Productivity Loss: | – | $0 | |
| | | -------------------------- | |
| (=) Subtotal: | = | $706,857 | |
| (+) Senior Appraised Value: | + | $0 | |
| (+) Non-Senior Appraised Value: | + | $706,857 | |
| | | -------------------------- | |
| (=) Total Appraised Value: | = | $706,857 | |
| (–) Senior Exemption Loss: | – | $0 | |
| (–) Exemption Loss: | – | $0 | |
| | | -------------------------- | |
| (=) Taxable Value: | = | $706,857 | |
Taxing Jurisdiction
| Owner: | THOMAS M GATES | | |
| % Ownership: | 100.0000000000% | | |
| Total Value: | N/A | | |
| Tax Area: | 0211 - 1-49F1E1H2L1 |
| CE | COUNTY CURRENT EXPENSE | N/A | N/A | N/A | N/A | | |
| CNTYDD | DEVELOPMENTAL DISABILITIES | N/A | N/A | N/A | N/A | | |
| CNTYVET | VETERANS RELIEF | N/A | N/A | N/A | N/A | | |
| MENTAL | MENTAL HEALTH | N/A | N/A | N/A | N/A | | |
| ROADS | COUNTY ROADS | N/A | N/A | N/A | N/A | | |
| ROADSCU | COUNTY ROADS TO CUR EXP | N/A | N/A | N/A | N/A | | |
| HOSP2CASH | HOSP DIST #2 GENERAL | N/A | N/A | N/A | N/A | | |
| SCH49CP | SCHOOL DIST #49 CAP PROJ | N/A | N/A | N/A | N/A | | |
| SCH49MO | SCHOOL DIST #49 EP & O | N/A | N/A | N/A | N/A | | |
| CONSERVE | CONSERVATION FUTURES | N/A | N/A | N/A | N/A | | |
| EMS1 | FIRE DIST #1 EMS | N/A | N/A | N/A | N/A | | |
| FD1 | FIRE DIST #1 GENERAL | N/A | N/A | N/A | N/A | | |
| LIB1 | LIBRARY DIST #1 GENERAL | N/A | N/A | N/A | N/A | | |
| PORTPT | PORT OF PT GENERAL | N/A | N/A | N/A | N/A | | |
| PORTPTIDD | PORT OF PT IDD 2019 | N/A | N/A | N/A | N/A | | |
| PUD1 | PUD #1 GENERAL | N/A | N/A | N/A | N/A | | |
| STATE | STATE SCHOOL PART 1 | N/A | N/A | N/A | N/A | | |
| STATE2 | STATE SCHOOL PART 2 | N/A | N/A | N/A | N/A | | |
| | Total Tax Rate: | N/A | | | | | |
| | | | | Taxes w/Current Exemptions: | N/A | | |
| | | | | Taxes w/o Exemptions: | N/A | | |
Improvement / Building
| Improvement #1: | Residential Bldg | State Code: | 11 | 2650.0 sqft | Value: | $559,857 |
| Bathrooms (#): | 3 (FULL) | Bedrooms (#): | 3 | | Exterior Wall: | SI/ST | Fireplace: | SIN 1-GOOD | | Floor Construction: | CONCR | Foundation: | CONPR | | Heating/Cooling: | HPUMP | Inside Verify: | YES-FIX | | Roof Cover: | COMP |   |   |
|
| | Type | Description | Class CD | Sub Class CD | Year Built | Area |
| | MA | Main Area | 4+ | 2S | 2006 | 962.0 |
| | MA2 | Second Floor Main Area | 4+ | 2S | 2006 | 1688.0 |
| | HWPOR | House Wood Porch | 4 | * | 2006 | 28.0 |
| | HBAL | House Balcony | 4 | * | 2006 | 445.0 |
| | GBLTIN | Builtin Garage | 4 | 2S | 2006 | 818.0 |
| | HRPO | House Roof Patio | 4 | * | 2006 | 445.0 |
Sketch
| No sketches available for this property. |
Property Image
Land
| 1 | 4120-1245S | Good Wtr View Sites w/PUD/Access | 0.0000 | 0.00 | 0.00 | 0.00 | 1.00 | $147,000 | $0 |
Roll Value History
| 2025 | N/A | N/A | N/A | N/A | N/A |
| 2024 | $559,857 | $147,000 | $0 | $706,857 | $706,857 |
| 2023 | $534,409 | $135,000 | $0 | $669,409 | $669,409 |
| 2022 | $465,578 | $130,000 | $0 | $595,578 | $595,578 |
| 2021 | $387,982 | $122,100 | $0 | $510,082 | $510,082 |
Deed and Sales History
| 1 | 10/07/2005 | SWD | Statutory Warranty Deed | CRUSHA, ROGER E/NANCEE | GATES, THOMAS | 0 | 0 | $99,000.00 | 105058 | 0 |
| 2 | 01/08/1997 | SWD | Statutory Warranty Deed | PROSPECT VIEW INC | CRUSHA, ROGER E/NANCEE | 0 | 0 | $65,500.00 | 81187 | 0 |
Payout Agreement
| No payout information available.. |