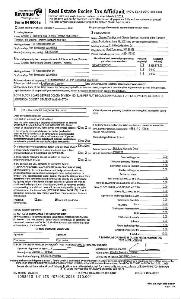
Property
Account |
| Property ID: | 39318 | Abbreviated Legal Description: | PORT TOWNSEND O.T. BLK 33 LOTS 3 & 4 |
| Parcel # / Geo ID: | 989703302 | Agent Code: | |
| Type: | Real | | |
| Tax Area: | 0110 - C-50F1E1H2 | Land Use Code | 11 |
| Open Space: | N | DFL | N |
| Historic Property: | N | Remodel Property: | N |
| Multi-Family Redevelopment: | N | | |
| Township: | 30N | Section: | 11 |
| Range: | 1W |
Location |
| Address: | 1617 WASHINGTON ST PORT TOWNSEND, WA 98368 | Mapsco: | 115/021 |
| Neighborhood: | PTOT ABOVE BLUFF TO LAWRENCE ST, WEST OF TYLER | Map ID: | |
| Neighborhood CD: | 6280 |
Owner |
| Name: | ALLAN R & MARY L MERRALLS | Owner ID: | 22404 |
| Mailing Address: | PO BOX 2029 PORT TOWNSEND, WA 98368-0099 | % Ownership: | 100.0000000000% |
| | | Exemptions: | |
Pay Tax Due
There is currently No Amount Due on this property.
Taxes and Assessment Details
Property Tax Information as of
10/24/2025
Click on "Statement Details" to expand or collapse a tax statement.
* Please enter a valid date ** Please enter a valid date *
Statement Details |
| | TOTAL: | $0.00 | $0.00 | $0.00 | $0.00 | $0.00 | $0.00 |
|
| | $0.00 | $0.00 | $0.00 | $0.00 | $0.00 | $0.00 |
Values
| (+) Improvement Homesite Value: | + | $0 | |
| (+) Improvement Non-Homesite Value: | + | $638,294 | |
| (+) Land Homesite Value: | + | $0 | |
| (+) Land Non-Homesite Value: | + | $380,625 | |
| (+) Curr Use (HS): | + | $0 | $0 |
| (+) Curr Use (NHS): | + | $0 | $0 |
| | | -------------------------- | |
| (=) Market Value: | = | $1,018,919 | |
| (–) Productivity Loss: | – | $0 | |
| | | -------------------------- | |
| (=) Subtotal: | = | $1,018,919 | |
| (+) Senior Appraised Value: | + | $0 | |
| (+) Non-Senior Appraised Value: | + | $1,018,919 | |
| | | -------------------------- | |
| (=) Total Appraised Value: | = | $1,018,919 | |
| (–) Senior Exemption Loss: | – | $0 | |
| (–) Exemption Loss: | – | $0 | |
| | | -------------------------- | |
| (=) Taxable Value: | = | $1,018,919 | |
Taxing Jurisdiction
| Owner: | ALLAN R & MARY L MERRALLS | | |
| % Ownership: | 100.0000000000% | | |
| Total Value: | N/A | | |
| Tax Area: | 0110 - C-50F1E1H2 |
| CE | COUNTY CURRENT EXPENSE | N/A | N/A | N/A | N/A | | |
| CNTYDD | DEVELOPMENTAL DISABILITIES | N/A | N/A | N/A | N/A | | |
| CNTYVET | VETERANS RELIEF | N/A | N/A | N/A | N/A | | |
| MENTAL | MENTAL HEALTH | N/A | N/A | N/A | N/A | | |
| PTGEN | CITY OF PT GENERAL | N/A | N/A | N/A | N/A | | |
| PTLLL | CITY OF PT - LIBRARY LID LIFT | N/A | N/A | N/A | N/A | | |
| PTMVBOND | CITY OF PT MV BOND | N/A | N/A | N/A | N/A | | |
| HOSP2CASH | HOSP DIST #2 GENERAL | N/A | N/A | N/A | N/A | | |
| SCH50BOND | SCHOOL DIST #50 BOND 2016 | N/A | N/A | N/A | N/A | | |
| SCH50CP | SCHOOL DIST #50 CAP PROJ | N/A | N/A | N/A | N/A | | |
| SCH50MO | SCHOOL DIST #50 EP & O | N/A | N/A | N/A | N/A | | |
| CONSERVE | CONSERVATION FUTURES | N/A | N/A | N/A | N/A | | |
| EMS1 | FIRE DIST #1 EMS | N/A | N/A | N/A | N/A | | |
| FD1 | FIRE DIST #1 GENERAL | N/A | N/A | N/A | N/A | | |
| PORTPT | PORT OF PT GENERAL | N/A | N/A | N/A | N/A | | |
| PORTPTIDD | PORT OF PT IDD 2019 | N/A | N/A | N/A | N/A | | |
| PUD1 | PUD #1 GENERAL | N/A | N/A | N/A | N/A | | |
| STATE | STATE SCHOOL PART 1 | N/A | N/A | N/A | N/A | | |
| STATE2 | STATE SCHOOL PART 2 | N/A | N/A | N/A | N/A | | |
| | Total Tax Rate: | N/A | | | | | |
| | | | | Taxes w/Current Exemptions: | N/A | | |
| | | | | Taxes w/o Exemptions: | N/A | | |
Improvement / Building
| Improvement #1: | Residential Bldg | State Code: | 11 | 1300.0 sqft | Value: | $638,294 |
| Bathrooms (#): | 2 (FULL) | Bedrooms (#): | 3 | | Exterior Wall: | SI/ST | Fireplace: | SIN 2-AVG | | Fireplace: | WD ST-AVG | Floor Construction: | FRAME | | Foundation: | CONPR | Heating/Cooling: | F/A | | Inside Verify: | YES-FIX | Roof Cover: | COMP |
|
| | Type | Description | Class CD | Sub Class CD | Year Built | Area |
| | MA | Main Area | 5+ | 1S | 1959 | 1300.0 |
| | HCPOR | House Concrete Porch | 4 | * | 1959 | 49.0 |
| | HDECK | House Deck | 4 | * | 1959 | 430.0 |
| | HENCL | House Enclosure | 4 | * | 1959 | 365.0 |
| | GATT | House Attached Garage | 4 | 1S | 1959 | 240.0 |
| | SHED | Shed (Table Not Dep) | 4 | * | 1959 | 130.0 |
| | BSMTF | House basement finished | 5 | * | 1959 | 301.0 |
| | BSMTU | House basement unfinished | 4 | * | 1959 | 559.0 |
Sketch
Property Image
Land
| 1 | 6280-1145F | Bluff S of Washington Overlooking Downtown/Bay | 0.0000 | 0.00 | 0.00 | 0.00 | 0.00 | $380,625 | $0 |
Roll Value History
| 2025 | N/A | N/A | N/A | N/A | N/A |
| 2024 | $529,639 | $378,000 | $0 | $907,639 | $907,639 |
| 2023 | $253,237 | $328,600 | $0 | $581,837 | $581,837 |
| 2022 | $253,236 | $323,600 | $0 | $576,836 | $576,836 |
| 2021 | $211,736 | $311,281 | $0 | $523,017 | $523,017 |
Deed and Sales History
| 1 | 05/29/2024 | SWD | Statutory Warranty Deed | MARGARET A TAKAKI | ALLAN R & MARY L MERRALLS | | | $1,200,000.00 | 142660 | |
| 2 | 05/10/2024 | QCD | Quit Claim Deed | JAMES W TAKAKI | MARGARET A TAKAKI | | | | 142628 | |
| 3 | 08/29/2023 | QCD | Quit Claim Deed | MARGARET A TAKAKI TRUSTEE | MARGARET A TAKAKI | | | | 141482 | |
| 4 | 09/23/2022 | QCD | Quit Claim Deed | MARGARET A TAKAKI TRUSTEE | MARGARET A TAKAKI | | | | 140046 | |
| 5 | 01/09/2002 | QCD | Quit Claim Deed | TAKAKI, MARGARET A | TAKAKI REVOCABLE LIVING TRUST | 0 | 0 | $0.00 | 93807 | 0 |
| 6 | 12/10/2001 | QCD | Quit Claim Deed | TAKAKI, MARGARET A TRUSTE | TAKAKI, MARGARET A | 0 | 0 | $0.00 | 93739 | 0 |
| 7 | 04/03/1998 | QCD | Quit Claim Deed | TAKAKI, MARGARET A | TAKAKI, MARGARET A/TRUST | 0 | 0 | $0.00 | 84253 | 0 |
| 8 | 07/24/1996 | SWD | Statutory Warranty Deed | JAMES, HAROLD L | TAKAKI, MARGARET A | 0 | 0 | $185,000.00 | 80079 | 0 |
Payout Agreement
| No payout information available.. |