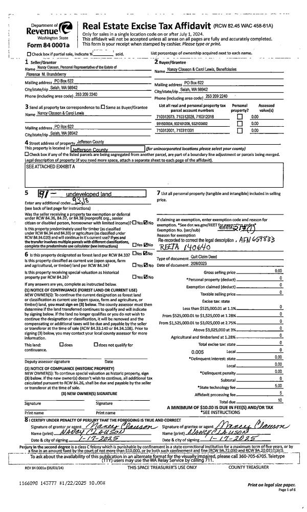
Property
Account |
| Property ID: | 39403 | Abbreviated Legal Description: | PORT TOWNSEND O.T. BLK 56 LOTS 2 & 4 (LS SE'LY 45') |
| Parcel # / Geo ID: | 989705604 | Agent Code: | |
| Type: | Real | | |
| Tax Area: | 0110 - C-50F1E1H2 | Land Use Code | 72 |
| Open Space: | N | DFL | N |
| Historic Property: | N | Remodel Property: | N |
| Multi-Family Redevelopment: | N | | |
| Township: | 30N | Section: | 2 |
| Range: | 1W |
Location |
| Address: | 821 JEFFERSON ST PORT TOWNSEND, WA 98368 | Mapsco: | 118/019 |
| Neighborhood: | PORT TOWNSEND DOWNTOWN COMMERCIAL DISTRICT | Map ID: | |
| Neighborhood CD: | 6290C |
Owner |
| Name: | PENEE MARIE D'AMICO | Owner ID: | 14019 |
| Mailing Address: | 521 TAYLOR ST PORT TOWNSEND, WA 98368-5828 | % Ownership: | 100.0000000000% |
| | | Exemptions: | |
Pay Tax Due
There is currently No Amount Due on this property.
Taxes and Assessment Details
Property Tax Information as of
10/24/2025
Click on "Statement Details" to expand or collapse a tax statement.
* Please enter a valid date ** Please enter a valid date *
Statement Details |
| | TOTAL: | $0.00 | $0.00 | $0.00 | $0.00 | $0.00 | $0.00 |
|
| | $0.00 | $0.00 | $0.00 | $0.00 | $0.00 | $0.00 |
Values
| (+) Improvement Homesite Value: | + | $0 | |
| (+) Improvement Non-Homesite Value: | + | $250,813 | |
| (+) Land Homesite Value: | + | $0 | |
| (+) Land Non-Homesite Value: | + | $226,598 | |
| (+) Curr Use (HS): | + | $0 | $0 |
| (+) Curr Use (NHS): | + | $0 | $0 |
| | | -------------------------- | |
| (=) Market Value: | = | $477,411 | |
| (–) Productivity Loss: | – | $0 | |
| | | -------------------------- | |
| (=) Subtotal: | = | $477,411 | |
| (+) Senior Appraised Value: | + | $0 | |
| (+) Non-Senior Appraised Value: | + | $477,411 | |
| | | -------------------------- | |
| (=) Total Appraised Value: | = | $477,411 | |
| (–) Senior Exemption Loss: | – | $0 | |
| (–) Exemption Loss: | – | $0 | |
| | | -------------------------- | |
| (=) Taxable Value: | = | $477,411 | |
Taxing Jurisdiction
| Owner: | PENEE MARIE D'AMICO | | |
| % Ownership: | 100.0000000000% | | |
| Total Value: | N/A | | |
| Tax Area: | 0110 - C-50F1E1H2 |
| CE | COUNTY CURRENT EXPENSE | N/A | N/A | N/A | N/A | | |
| CNTYDD | DEVELOPMENTAL DISABILITIES | N/A | N/A | N/A | N/A | | |
| CNTYVET | VETERANS RELIEF | N/A | N/A | N/A | N/A | | |
| MENTAL | MENTAL HEALTH | N/A | N/A | N/A | N/A | | |
| PTGEN | CITY OF PT GENERAL | N/A | N/A | N/A | N/A | | |
| PTLLL | CITY OF PT - LIBRARY LID LIFT | N/A | N/A | N/A | N/A | | |
| PTMVBOND | CITY OF PT MV BOND | N/A | N/A | N/A | N/A | | |
| HOSP2CASH | HOSP DIST #2 GENERAL | N/A | N/A | N/A | N/A | | |
| SCH50BOND | SCHOOL DIST #50 BOND 2016 | N/A | N/A | N/A | N/A | | |
| SCH50CP | SCHOOL DIST #50 CAP PROJ | N/A | N/A | N/A | N/A | | |
| SCH50MO | SCHOOL DIST #50 EP & O | N/A | N/A | N/A | N/A | | |
| CONSERVE | CONSERVATION FUTURES | N/A | N/A | N/A | N/A | | |
| EMS1 | FIRE DIST #1 EMS | N/A | N/A | N/A | N/A | | |
| FD1 | FIRE DIST #1 GENERAL | N/A | N/A | N/A | N/A | | |
| PORTPT | PORT OF PT GENERAL | N/A | N/A | N/A | N/A | | |
| PORTPTIDD | PORT OF PT IDD 2019 | N/A | N/A | N/A | N/A | | |
| PUD1 | PUD #1 GENERAL | N/A | N/A | N/A | N/A | | |
| STATE | STATE SCHOOL PART 1 | N/A | N/A | N/A | N/A | | |
| STATE2 | STATE SCHOOL PART 2 | N/A | N/A | N/A | N/A | | |
| | Total Tax Rate: | N/A | | | | | |
| | | | | Taxes w/Current Exemptions: | N/A | | |
| | | | | Taxes w/o Exemptions: | N/A | | |
Improvement / Building
| Improvement #1: | Commercial/Industrial/Government Bldg | State Code: | 72 | 0.0 sqft | Value: | $250,813 |
Sketch
| No sketches available for this property. |
Property Image
Land
| 1 | 6290-6265Q | Comm/Apts Downtown on Side Streets | 0.1641 | 7149.00 | 0.00 | 0.00 | 0.00 | $226,598 | $0 |
Roll Value History
| 2025 | N/A | N/A | N/A | N/A | N/A |
| 2024 | $251,154 | $226,598 | $0 | $477,752 | $477,752 |
| 2023 | $251,154 | $221,598 | $0 | $472,752 | $472,752 |
| 2022 | $239,194 | $216,598 | $0 | $455,792 | $455,792 |
| 2021 | $223,143 | $193,725 | $0 | $416,868 | $416,868 |
Deed and Sales History
| 1 | 05/09/2005 | QCD | Quit Claim Deed | SHORT LIV TRUST, RUTH | D'AMICO, PENEE | | | $0.00 | 103445 | 0 |
| 2 | 05/09/2005 | QCD | Quit Claim Deed | SHORT, RUTH | D'AMICO, PENEE | | | $0.00 | 103418 | 0 |
| 3 | 01/29/1999 | SWD | Statutory Warranty Deed | D'AMICO, PENEE M | SHORT LIVING TRUST | 0 | 0 | $64,481.00 | 86248 | 0 |
| 4 | 10/08/1997 | SWD | Statutory Warranty Deed | SPERRY, WILLIAM/KITTY L | D'AMICO, PENEE M | 0 | 0 | $70,000.00 | 82929 | 0 |
Payout Agreement
| No payout information available.. |