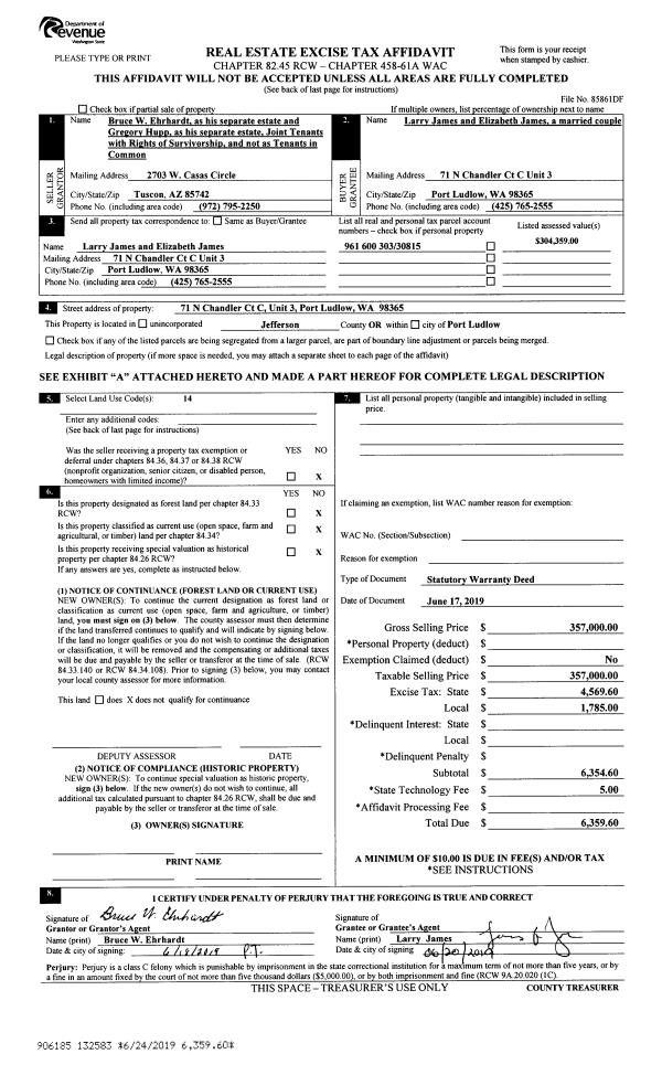
Property
Account |
| Property ID: | 39434 | Abbreviated Legal Description: | PORT TOWNSEND O.T. BLK 63 LOTS 5 & 7 |
| Parcel # / Geo ID: | 989706303 | Agent Code: | |
| Type: | Real | | |
| Tax Area: | 0110 - C-50F1E1H2 | Land Use Code | 11 |
| Open Space: | N | DFL | N |
| Historic Property: | N | Remodel Property: | N |
| Multi-Family Redevelopment: | N | | |
| Township: | 30N | Section: | 11 |
| Range: | 1W |
Location |
| Address: | 1536 WASHINGTON ST PORT TOWNSEND, WA 98368 | Mapsco: | 119/034 |
| Neighborhood: | PTOT ABOVE BLUFF TO LAWRENCE ST, WEST OF TYLER | Map ID: | |
| Neighborhood CD: | 6280 |
Owner |
| Name: | GRAY OWL PROPERTIES LLC | Owner ID: | 113069 |
| Mailing Address: | 7259 S SUNNYCREST RD SEATTLE, WA 98178-2655 | % Ownership: | 100.0000000000% |
| | | Exemptions: | |
Pay Tax Due
There is currently No Amount Due on this property.
Taxes and Assessment Details
Property Tax Information as of
10/24/2025
Click on "Statement Details" to expand or collapse a tax statement.
* Please enter a valid date ** Please enter a valid date *
Statement Details |
| | TOTAL: | $0.00 | $0.00 | $0.00 | $0.00 | $0.00 | $0.00 |
|
| | $0.00 | $0.00 | $0.00 | $0.00 | $0.00 | $0.00 |
Values
| (+) Improvement Homesite Value: | + | $0 | |
| (+) Improvement Non-Homesite Value: | + | $661,458 | |
| (+) Land Homesite Value: | + | $0 | |
| (+) Land Non-Homesite Value: | + | $398,000 | |
| (+) Curr Use (HS): | + | $0 | $0 |
| (+) Curr Use (NHS): | + | $0 | $0 |
| | | -------------------------- | |
| (=) Market Value: | = | $1,059,458 | |
| (–) Productivity Loss: | – | $0 | |
| | | -------------------------- | |
| (=) Subtotal: | = | $1,059,458 | |
| (+) Senior Appraised Value: | + | $0 | |
| (+) Non-Senior Appraised Value: | + | $1,059,458 | |
| | | -------------------------- | |
| (=) Total Appraised Value: | = | $1,059,458 | |
| (–) Senior Exemption Loss: | – | $0 | |
| (–) Exemption Loss: | – | $0 | |
| | | -------------------------- | |
| (=) Taxable Value: | = | $1,059,458 | |
Taxing Jurisdiction
| Owner: | GRAY OWL PROPERTIES LLC | | |
| % Ownership: | 100.0000000000% | | |
| Total Value: | N/A | | |
| Tax Area: | 0110 - C-50F1E1H2 |
| CE | COUNTY CURRENT EXPENSE | N/A | N/A | N/A | N/A | | |
| CNTYDD | DEVELOPMENTAL DISABILITIES | N/A | N/A | N/A | N/A | | |
| CNTYVET | VETERANS RELIEF | N/A | N/A | N/A | N/A | | |
| MENTAL | MENTAL HEALTH | N/A | N/A | N/A | N/A | | |
| PTGEN | CITY OF PT GENERAL | N/A | N/A | N/A | N/A | | |
| PTLLL | CITY OF PT - LIBRARY LID LIFT | N/A | N/A | N/A | N/A | | |
| PTMVBOND | CITY OF PT MV BOND | N/A | N/A | N/A | N/A | | |
| HOSP2CASH | HOSP DIST #2 GENERAL | N/A | N/A | N/A | N/A | | |
| SCH50BOND | SCHOOL DIST #50 BOND 2016 | N/A | N/A | N/A | N/A | | |
| SCH50CP | SCHOOL DIST #50 CAP PROJ | N/A | N/A | N/A | N/A | | |
| SCH50MO | SCHOOL DIST #50 EP & O | N/A | N/A | N/A | N/A | | |
| CONSERVE | CONSERVATION FUTURES | N/A | N/A | N/A | N/A | | |
| EMS1 | FIRE DIST #1 EMS | N/A | N/A | N/A | N/A | | |
| FD1 | FIRE DIST #1 GENERAL | N/A | N/A | N/A | N/A | | |
| PORTPT | PORT OF PT GENERAL | N/A | N/A | N/A | N/A | | |
| PORTPTIDD | PORT OF PT IDD 2019 | N/A | N/A | N/A | N/A | | |
| PUD1 | PUD #1 GENERAL | N/A | N/A | N/A | N/A | | |
| STATE | STATE SCHOOL PART 1 | N/A | N/A | N/A | N/A | | |
| STATE2 | STATE SCHOOL PART 2 | N/A | N/A | N/A | N/A | | |
| | Total Tax Rate: | N/A | | | | | |
| | | | | Taxes w/Current Exemptions: | N/A | | |
| | | | | Taxes w/o Exemptions: | N/A | | |
Improvement / Building
| Improvement #1: | Residential Bldg | State Code: | 11 | 2463.0 sqft | Value: | $661,458 |
| Bathrooms (#): | 3 (FULL) | Bedrooms (#): | 4 | | Exterior Wall: | SI/ST | Fireplace: | WD ST-AVG | | Floor Construction: | FRAME | Foundation: | CONPR | | Heating/Cooling: | ELBB | Roof Cover: | COMP |
|
| | Type | Description | Class CD | Sub Class CD | Year Built | Area |
| | MA | Main Area | 5+ | 15SF | 1900 | 1963.0 |
| | MA2 | Second Floor Main Area | 5+ | 15SF | 1900 | 500.0 |
| | HWPOR | House Wood Porch | 5 | * | 1900 | 41.0 |
| | HENCL | House Enclosure | 5 | * | 1900 | 95.0 |
| | GARAG | Garage (Table Not Dep) | 2 | * | 1900 | 330.0 |
Sketch
Property Image
Land
| 1 | 6280-1155L | Uptown Std Lot (View Area) | 0.0000 | 0.00 | 0.00 | 0.00 | 1.00 | $115,000 | $0 |
| 2 | 6280-1155L | Uptown Std Lot (View Area) | 0.0000 | 0.00 | 0.00 | 0.00 | 1.00 | $283,000 | $0 |
Roll Value History
| 2025 | N/A | N/A | N/A | N/A | N/A |
| 2024 | $576,087 | $401,100 | $0 | $977,187 | $977,187 |
| 2023 | $551,040 | $377,000 | $0 | $928,040 | $928,040 |
| 2022 | $551,040 | $372,000 | $0 | $923,040 | $923,040 |
| 2021 | $460,736 | $348,750 | $0 | $809,486 | $809,486 |
Deed and Sales History
| 1 | 07/25/2025 | SWD | Statutory Warranty Deed | LANNY A & LISA P TURAY | GRAY OWL PROPERTIES LLC | | | $1,250,000.00 | 144698 | |
| 2 | 03/24/2014 | SWD | Statutory Warranty Deed | ROBERT H PALMER | LANNY A & LISA P TURAY | | | $539,000.00 | 120935 | |
| 3 | 08/20/2004 | SWD | Statutory Warranty Deed | JACKSON, DAVID W/KIMBERLY | PALMER, ROBERT H/JANET L | 0 | 0 | $540,000.00 | 101194 | 0 |
| 4 | 10/28/1999 | SWD | Statutory Warranty Deed | MERRYMAN, MARK/JOHNS, HAN | JACKSON, DAVID/KIMBERLY | 0 | 0 | $222,500.00 | 88185 | 0 |
Payout Agreement
| No payout information available.. |