Property
Account |
| Property ID: | 39494 | Abbreviated Legal Description: | PORT TOWNSEND O.T. BLK 90 LOT 4(W40' OF N67') |
| Parcel # / Geo ID: | 989709003 | Agent Code: | |
| Type: | Real | | |
| Tax Area: | 0110 - C-50F1E1H2 | Land Use Code | 13 |
| Open Space: | N | DFL | N |
| Historic Property: | N | Remodel Property: | N |
| Multi-Family Redevelopment: | N | | |
| Township: | 30N | Section: | 2 |
| Range: | 1W |
Location |
| Address: | 717 FRANKLIN ST #1 TO #4 PORT TOWNSEND, WA 98368 | Mapsco: | 121/028 |
| Neighborhood: | PTOT ABOVE BLUFF TO LAWRENCE ST, EAST OF TYLER | Map ID: | |
| Neighborhood CD: | 6285 |
Owner |
| Name: | SEYMOUR REVOCABLE TRUST | Owner ID: | 103978 |
| Mailing Address: | MARK & KAREN SEYMOUR TRUSTEES 221 N ALBERT ST PORT ANGELES, WA 98362-3307 | % Ownership: | 100.0000000000% |
| | | Exemptions: | |
Pay Tax Due
There is currently No Amount Due on this property.
Taxes and Assessment Details
Property Tax Information as of
10/24/2025
Click on "Statement Details" to expand or collapse a tax statement.
* Please enter a valid date ** Please enter a valid date *
Statement Details |
| | TOTAL: | $0.00 | $0.00 | $0.00 | $0.00 | $0.00 | $0.00 |
|
| | $0.00 | $0.00 | $0.00 | $0.00 | $0.00 | $0.00 |
Values
| (+) Improvement Homesite Value: | + | $0 | |
| (+) Improvement Non-Homesite Value: | + | $510,641 | |
| (+) Land Homesite Value: | + | $0 | |
| (+) Land Non-Homesite Value: | + | $270,500 | |
| (+) Curr Use (HS): | + | $0 | $0 |
| (+) Curr Use (NHS): | + | $0 | $0 |
| | | -------------------------- | |
| (=) Market Value: | = | $781,141 | |
| (–) Productivity Loss: | – | $0 | |
| | | -------------------------- | |
| (=) Subtotal: | = | $781,141 | |
| (+) Senior Appraised Value: | + | $0 | |
| (+) Non-Senior Appraised Value: | + | $781,141 | |
| | | -------------------------- | |
| (=) Total Appraised Value: | = | $781,141 | |
| (–) Senior Exemption Loss: | – | $0 | |
| (–) Exemption Loss: | – | $0 | |
| | | -------------------------- | |
| (=) Taxable Value: | = | $781,141 | |
Taxing Jurisdiction
| Owner: | SEYMOUR REVOCABLE TRUST | | |
| % Ownership: | 100.0000000000% | | |
| Total Value: | N/A | | |
| Tax Area: | 0110 - C-50F1E1H2 |
| CE | COUNTY CURRENT EXPENSE | N/A | N/A | N/A | N/A | | |
| CNTYDD | DEVELOPMENTAL DISABILITIES | N/A | N/A | N/A | N/A | | |
| CNTYVET | VETERANS RELIEF | N/A | N/A | N/A | N/A | | |
| MENTAL | MENTAL HEALTH | N/A | N/A | N/A | N/A | | |
| PTGEN | CITY OF PT GENERAL | N/A | N/A | N/A | N/A | | |
| PTLLL | CITY OF PT - LIBRARY LID LIFT | N/A | N/A | N/A | N/A | | |
| PTMVBOND | CITY OF PT MV BOND | N/A | N/A | N/A | N/A | | |
| HOSP2CASH | HOSP DIST #2 GENERAL | N/A | N/A | N/A | N/A | | |
| SCH50BOND | SCHOOL DIST #50 BOND 2016 | N/A | N/A | N/A | N/A | | |
| SCH50CP | SCHOOL DIST #50 CAP PROJ | N/A | N/A | N/A | N/A | | |
| SCH50MO | SCHOOL DIST #50 EP & O | N/A | N/A | N/A | N/A | | |
| CONSERVE | CONSERVATION FUTURES | N/A | N/A | N/A | N/A | | |
| EMS1 | FIRE DIST #1 EMS | N/A | N/A | N/A | N/A | | |
| FD1 | FIRE DIST #1 GENERAL | N/A | N/A | N/A | N/A | | |
| PORTPT | PORT OF PT GENERAL | N/A | N/A | N/A | N/A | | |
| PORTPTIDD | PORT OF PT IDD 2019 | N/A | N/A | N/A | N/A | | |
| PUD1 | PUD #1 GENERAL | N/A | N/A | N/A | N/A | | |
| STATE | STATE SCHOOL PART 1 | N/A | N/A | N/A | N/A | | |
| STATE2 | STATE SCHOOL PART 2 | N/A | N/A | N/A | N/A | | |
| | Total Tax Rate: | N/A | | | | | |
| | | | | Taxes w/Current Exemptions: | N/A | | |
| | | | | Taxes w/o Exemptions: | N/A | | |
Improvement / Building
| Improvement #1: | Residential Bldg | State Code: | 13 | 2266.0 sqft | Value: | $510,641 |
| Bathrooms (#): | 4 (FULL) | Bedrooms (#): | 4 | | Exterior Wall: | SI/ST | Floor Construction: | FRAME | | Foundation: | PO&BL | Heating/Cooling: | OTHER | | Inside Verify: | YES-FIX | Roof Cover: | COMP |
|
| | Type | Description | Class CD | Sub Class CD | Year Built | Area |
| | MA | Main Area | 4+ | 2S | 1891 | 1226.0 |
| | MA2 | Second Floor Main Area | 4+ | 2S | 1891 | 1040.0 |
| | HWPOR | House Wood Porch | 4 | * | 1891 | 24.0 |
| | BSMTU | House basement unfinished | 3 | * | 1891 | 520.0 |
Sketch
Property Image
Land
| 1 | 6285-1155L | Uptown Std Lot (View Area) | 0.0000 | 0.00 | 0.00 | 0.00 | 1.00 | $270,500 | $0 |
Roll Value History
| 2025 | N/A | N/A | N/A | N/A | N/A |
| 2024 | $475,760 | $272,800 | $0 | $748,560 | $748,560 |
| 2023 | $436,114 | $243,000 | $0 | $679,114 | $679,114 |
| 2022 | $436,114 | $238,000 | $0 | $674,114 | $674,114 |
| 2021 | $364,643 | $220,200 | $0 | $584,843 | $584,843 |
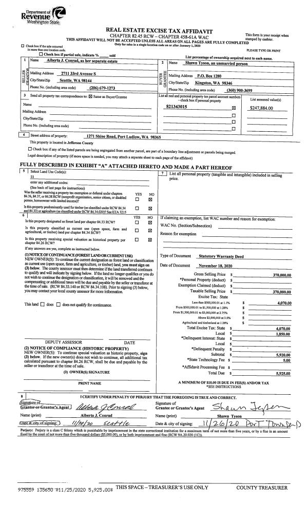
Deed and Sales History
| 1 | 12/24/2020 | SWD | Statutory Warranty Deed | SEYMOUR REVOCABLE TRUST | | | | | 136527 | |
| 2 | 12/24/2020 | SWD | Statutory Warranty Deed | | | | | | 136281 | |
| 3 | 12/24/2020 | SWD | Statutory Warranty Deed | FRANCES V WAFER TRUSTEE | SEYMOUR REVOCABLE TRUST | | | $586,500.00 | 135897 | |
| 4 | 02/22/2005 | QCD | Quit Claim Deed | WAFER TRUSTEE, FRANCES | WAFER TRUST, FRANCES V | 0 | 0 | $0.00 | 102809 | 0 |
| 5 | 10/25/2004 | SWD | Statutory Warranty Deed | CISNEROS, MAURICIO L & MA | WAFER, FRANCES V/TRUSTEE | 0 | 0 | $438,000.00 | 101902 | 0 |
| 6 | 12/19/2002 | SWD | Statutory Warranty Deed | BARRON, DALE C | CISNEROS, MAURICIO L/MARIA G | 0 | 0 | $329,000.00 | 96673 | 0 |
| 7 | 07/03/1998 | SWD | Statutory Warranty Deed | DOS HERMANAS | BARRON, DALE C | 0 | 0 | $255,000.00 | 84873 | 0 |
| 8 | 12/27/1995 | QCD | Quit Claim Deed | SNEED, E ALLISON/ET AL | DOS HERMANAS | 0 | 0 | $0.00 | 78524 | 0 |
| 9 | 01/03/1995 | QCD | Quit Claim Deed | SNEED, E A & S E/GOLDEN, | DOS HERMANAS L L P | 0 | 0 | $0.00 | 76028 | 0 |
| 10 | 10/12/1994 | SWD | Statutory Warranty Deed | GRABLE, ROBERT E/IRENE | SNEED, E ALISON/ET AL | 0 | 0 | $180,000.00 | 75373 | 0 |
| 11 | 07/28/1994 | QCD | Quit Claim Deed | LITTLE, ROBERT/CHRISTINE | GRABLE, ROBERT/IRENE | 0 | 0 | $0.00 | 74775 | 0 |
Payout Agreement
| No payout information available.. |