Property
Account |
| Property ID: | 39507 | Abbreviated Legal Description: | PORT TOWNSEND O.T. BLK 101 LOTS 2 & 4(N1/2 EA) & 6(N1/2 OF E1/2) BND BY BLA#120216 |
| Parcel # / Geo ID: | 989710102 | Agent Code: | |
| Type: | Real | | |
| Tax Area: | 0110 - C-50F1E1H2 | Land Use Code | 11 |
| Open Space: | N | DFL | N |
| Historic Property: | N | Remodel Property: | N |
| Multi-Family Redevelopment: | N | | |
| Township: | 30N | Section: | 1 |
| Range: | 1W |
Location |
| Address: | 513 CLAY ST PORT TOWNSEND, WA 98368 | Mapsco: | 122/007 |
| Neighborhood: | PTOT ABOVE BLUFF TO LAWRENCE ST, EAST OF TYLER | Map ID: | |
| Neighborhood CD: | 6285 |
Owner |
| Name: | CAROLYN C PARKER | Owner ID: | 99285 |
| Mailing Address: | 513A CLAY ST PORT TOWNSEND, WA 98368 | % Ownership: | 100.0000000000% |
| | | Exemptions: | |
Pay Tax Due
There is currently No Amount Due on this property.
Taxes and Assessment Details
Property Tax Information as of
10/24/2025
Click on "Statement Details" to expand or collapse a tax statement.
* Please enter a valid date ** Please enter a valid date *
Statement Details |
| | TOTAL: | $0.00 | $0.00 | $0.00 | $0.00 | $0.00 | $0.00 |
|
| | $0.00 | $0.00 | $0.00 | $0.00 | $0.00 | $0.00 |
Values
| (+) Improvement Homesite Value: | + | $0 | |
| (+) Improvement Non-Homesite Value: | + | $208,130 | |
| (+) Land Homesite Value: | + | $0 | |
| (+) Land Non-Homesite Value: | + | $309,500 | |
| (+) Curr Use (HS): | + | $0 | $0 |
| (+) Curr Use (NHS): | + | $0 | $0 |
| | | -------------------------- | |
| (=) Market Value: | = | $517,630 | |
| (–) Productivity Loss: | – | $0 | |
| | | -------------------------- | |
| (=) Subtotal: | = | $517,630 | |
| (+) Senior Appraised Value: | + | $0 | |
| (+) Non-Senior Appraised Value: | + | $517,630 | |
| | | -------------------------- | |
| (=) Total Appraised Value: | = | $517,630 | |
| (–) Senior Exemption Loss: | – | $0 | |
| (–) Exemption Loss: | – | $0 | |
| | | -------------------------- | |
| (=) Taxable Value: | = | $517,630 | |
Taxing Jurisdiction
| Owner: | CAROLYN C PARKER | | |
| % Ownership: | 100.0000000000% | | |
| Total Value: | N/A | | |
| Tax Area: | 0110 - C-50F1E1H2 |
| CE | COUNTY CURRENT EXPENSE | N/A | N/A | N/A | N/A | | |
| CNTYDD | DEVELOPMENTAL DISABILITIES | N/A | N/A | N/A | N/A | | |
| CNTYVET | VETERANS RELIEF | N/A | N/A | N/A | N/A | | |
| MENTAL | MENTAL HEALTH | N/A | N/A | N/A | N/A | | |
| PTGEN | CITY OF PT GENERAL | N/A | N/A | N/A | N/A | | |
| PTLLL | CITY OF PT - LIBRARY LID LIFT | N/A | N/A | N/A | N/A | | |
| PTMVBOND | CITY OF PT MV BOND | N/A | N/A | N/A | N/A | | |
| HOSP2CASH | HOSP DIST #2 GENERAL | N/A | N/A | N/A | N/A | | |
| SCH50BOND | SCHOOL DIST #50 BOND 2016 | N/A | N/A | N/A | N/A | | |
| SCH50CP | SCHOOL DIST #50 CAP PROJ | N/A | N/A | N/A | N/A | | |
| SCH50MO | SCHOOL DIST #50 EP & O | N/A | N/A | N/A | N/A | | |
| CONSERVE | CONSERVATION FUTURES | N/A | N/A | N/A | N/A | | |
| EMS1 | FIRE DIST #1 EMS | N/A | N/A | N/A | N/A | | |
| FD1 | FIRE DIST #1 GENERAL | N/A | N/A | N/A | N/A | | |
| PORTPT | PORT OF PT GENERAL | N/A | N/A | N/A | N/A | | |
| PORTPTIDD | PORT OF PT IDD 2019 | N/A | N/A | N/A | N/A | | |
| PUD1 | PUD #1 GENERAL | N/A | N/A | N/A | N/A | | |
| STATE | STATE SCHOOL PART 1 | N/A | N/A | N/A | N/A | | |
| STATE2 | STATE SCHOOL PART 2 | N/A | N/A | N/A | N/A | | |
| | Total Tax Rate: | N/A | | | | | |
| | | | | Taxes w/Current Exemptions: | N/A | | |
| | | | | Taxes w/o Exemptions: | N/A | | |
Improvement / Building
| Improvement #1: | Residential Bldg | State Code: | 11 | 1288.0 sqft | Value: | $208,130 |
| Bathrooms (#): | 2 (FULL) | Bedrooms (#): | 2 | | Exterior Wall: | SI/ST | Floor Construction: | FRAME | | Foundation: | CONPR | Heating/Cooling: | OTHER | | Roof Cover: | COMP |   |   |
|
| | Type | Description | Class CD | Sub Class CD | Year Built | Area |
| | MA | Main Area | 3 | 2S | 1848 | 828.0 |
| | MA2 | Second Floor Main Area | 3 | 2S | 1848 | 460.0 |
| | HWPOR | House Wood Porch | 3 | * | 1848 | 40.0 |
| | HDECK | House Deck | 3 | * | 1848 | 44.0 |
| | HENCL | House Enclosure | 3 | * | 1848 | 20.0 |
| | GDET | Detached Garage | 3 | * | 1848 | 528.0 |
Sketch
Property Image
Land
| 1 | 6285-1155L | Uptown Std Lot (View Area) | 0.0000 | 0.00 | 0.00 | 0.00 | 1.00 | $309,500 | $0 |
Roll Value History
| 2025 | N/A | N/A | N/A | N/A | N/A |
| 2024 | $186,972 | $310,200 | $0 | $497,172 | $497,172 |
| 2023 | $171,391 | $277,000 | $0 | $448,391 | $448,391 |
| 2022 | $171,391 | $272,000 | $0 | $443,391 | $443,391 |
| 2021 | $143,303 | $247,800 | $0 | $391,103 | $391,103 |
Deed and Sales History
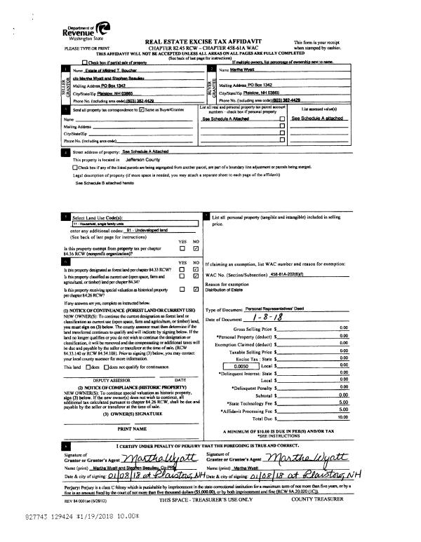
| 1 | 09/26/2017 | PRD | Personal Representatives Deed | WILLIAM T PARKER | CAROLYN C PARKER | | | | 130216 | |
| 2 | 04/10/2017 | SWD | Statutory Warranty Deed | ROGER W SPRINKLE | WILLIAM T PARKER | | | $330,000.00 | 127483 | |
| 3 | 12/31/2002 | SPWD | Special Warranty Deed | SPRINKLE, MILDRED ESTATE, | SPRINKLE, ROGER W | 0 | 0 | $0.00 | 96437 | 0 |
| 4 | 05/22/1995 | QCD | Quit Claim Deed | SPRINKLE, WILLIAM F(JR)/E | SPRINKLE, MILDRED | 0 | 0 | $0.00 | 77228 | 0 |
Payout Agreement
| No payout information available.. |