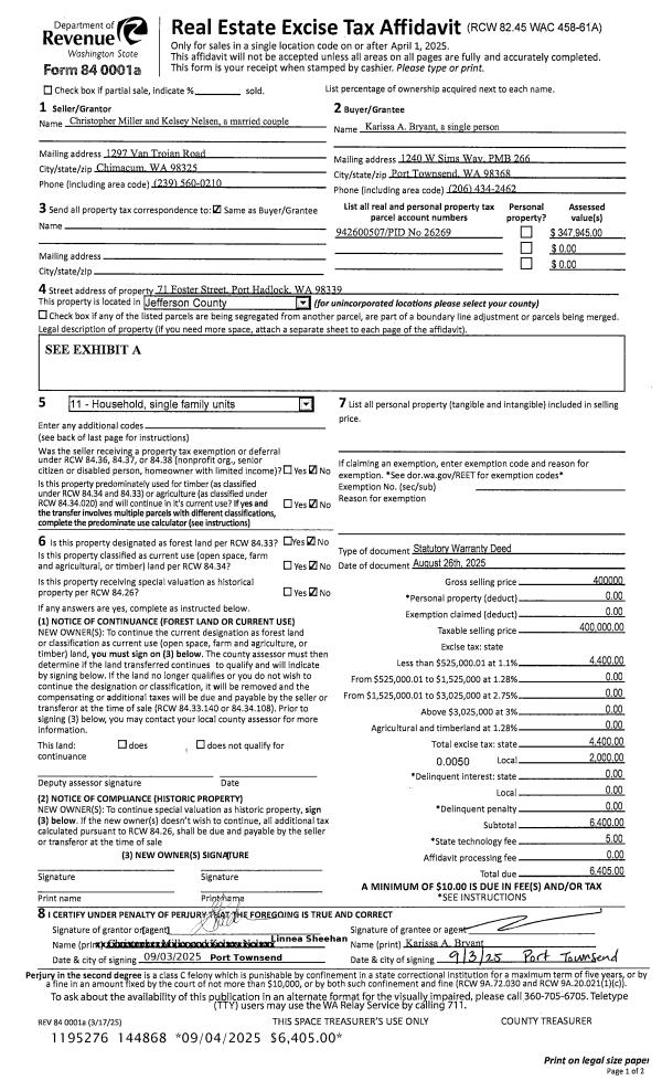
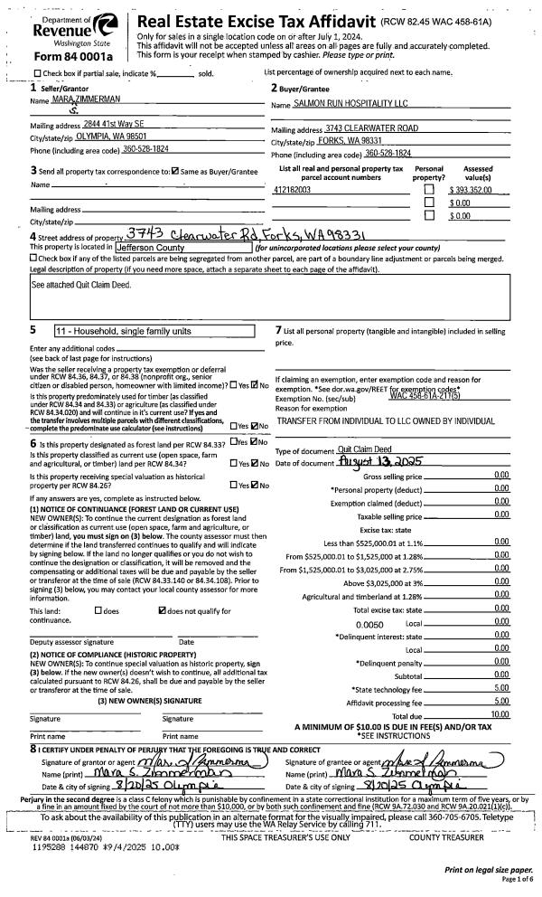
Property
Account |
| Property ID: | 39510 | Abbreviated Legal Description: | PORT TOWNSEND O.T. BLK 101 LOTS 5(W1/2) & 7(ALL) |
| Parcel # / Geo ID: | 989710105 | Agent Code: | |
| Type: | Real | | |
| Tax Area: | 0110 - C-50F1E1H2 | Land Use Code | 11 |
| Open Space: | N | DFL | N |
| Historic Property: | N | Remodel Property: | N |
| Multi-Family Redevelopment: | N | | |
| Township: | 30N | Section: | 1 |
| Range: | 1W |
Location |
| Address: | 500 MADISON ST PORT TOWNSEND, WA 98368 | Mapsco: | 122/009 |
| Neighborhood: | PTOT ABOVE BLUFF TO LAWRENCE ST, EAST OF TYLER | Map ID: | |
| Neighborhood CD: | 6285 |
Owner |
| Name: | MICHAEL N & MARICA E FREDERICKSEN | Owner ID: | 94811 |
| Mailing Address: | PO BOX 1858 PORT TOWNSEND, WA 98368 | % Ownership: | 100.0000000000% |
| | | Exemptions: | |
Pay Tax Due
There is currently No Amount Due on this property.
Taxes and Assessment Details
Property Tax Information as of
10/24/2025
Click on "Statement Details" to expand or collapse a tax statement.
* Please enter a valid date ** Please enter a valid date *
Statement Details |
| | TOTAL: | $0.00 | $0.00 | $0.00 | $0.00 | $0.00 | $0.00 |
|
| | $0.00 | $0.00 | $0.00 | $0.00 | $0.00 | $0.00 |
Values
| (+) Improvement Homesite Value: | + | $0 | |
| (+) Improvement Non-Homesite Value: | + | $1,417,201 | |
| (+) Land Homesite Value: | + | $0 | |
| (+) Land Non-Homesite Value: | + | $397,500 | |
| (+) Curr Use (HS): | + | $0 | $0 |
| (+) Curr Use (NHS): | + | $0 | $0 |
| | | -------------------------- | |
| (=) Market Value: | = | $1,814,701 | |
| (–) Productivity Loss: | – | $0 | |
| | | -------------------------- | |
| (=) Subtotal: | = | $1,814,701 | |
| (+) Senior Appraised Value: | + | $0 | |
| (+) Non-Senior Appraised Value: | + | $1,814,701 | |
| | | -------------------------- | |
| (=) Total Appraised Value: | = | $1,814,701 | |
| (–) Senior Exemption Loss: | – | $0 | |
| (–) Exemption Loss: | – | $0 | |
| | | -------------------------- | |
| (=) Taxable Value: | = | $1,814,701 | |
Taxing Jurisdiction
| Owner: | MICHAEL N & MARICA E FREDERICKSEN | | |
| % Ownership: | 100.0000000000% | | |
| Total Value: | N/A | | |
| Tax Area: | 0110 - C-50F1E1H2 |
| CE | COUNTY CURRENT EXPENSE | N/A | N/A | N/A | N/A | | |
| CNTYDD | DEVELOPMENTAL DISABILITIES | N/A | N/A | N/A | N/A | | |
| CNTYVET | VETERANS RELIEF | N/A | N/A | N/A | N/A | | |
| MENTAL | MENTAL HEALTH | N/A | N/A | N/A | N/A | | |
| PTGEN | CITY OF PT GENERAL | N/A | N/A | N/A | N/A | | |
| PTLLL | CITY OF PT - LIBRARY LID LIFT | N/A | N/A | N/A | N/A | | |
| PTMVBOND | CITY OF PT MV BOND | N/A | N/A | N/A | N/A | | |
| HOSP2CASH | HOSP DIST #2 GENERAL | N/A | N/A | N/A | N/A | | |
| SCH50BOND | SCHOOL DIST #50 BOND 2016 | N/A | N/A | N/A | N/A | | |
| SCH50CP | SCHOOL DIST #50 CAP PROJ | N/A | N/A | N/A | N/A | | |
| SCH50MO | SCHOOL DIST #50 EP & O | N/A | N/A | N/A | N/A | | |
| CONSERVE | CONSERVATION FUTURES | N/A | N/A | N/A | N/A | | |
| EMS1 | FIRE DIST #1 EMS | N/A | N/A | N/A | N/A | | |
| FD1 | FIRE DIST #1 GENERAL | N/A | N/A | N/A | N/A | | |
| PORTPT | PORT OF PT GENERAL | N/A | N/A | N/A | N/A | | |
| PORTPTIDD | PORT OF PT IDD 2019 | N/A | N/A | N/A | N/A | | |
| PUD1 | PUD #1 GENERAL | N/A | N/A | N/A | N/A | | |
| STATE | STATE SCHOOL PART 1 | N/A | N/A | N/A | N/A | | |
| STATE2 | STATE SCHOOL PART 2 | N/A | N/A | N/A | N/A | | |
| | Total Tax Rate: | N/A | | | | | |
| | | | | Taxes w/Current Exemptions: | N/A | | |
| | | | | Taxes w/o Exemptions: | N/A | | |
Improvement / Building
| Improvement #1: | Residential Bldg | State Code: | 11 | 3382.5 sqft | Value: | $1,417,201 |
| Bathrooms (#): | 3 (FULL) | Bedrooms (#): | 2 | | Exterior Wall: | MASON | Fireplace: | PROPS-GOOD | | Floor Construction: | CONCR | Foundation: | CONPR | | Heating/Cooling: | OTHER | Roof Cover: | METAL |
|
| | Type | Description | Class CD | Sub Class CD | Year Built | Area |
| | MA | Main Area | 6- | 2S | 2017 | 1828.8 |
| | MA2 | Second Floor Main Area | 6- | 2S | 2017 | 1553.7 |
| | GATT | House Attached Garage | 5 | 2S | 2017 | 702.0 |
| | HRPO | House Roof Patio | 5 | * | 2017 | 100.0 |
| | HRPO | House Roof Patio | 5 | * | 2017 | 124.0 |
| | PATIO | House Patio | 5 | * | 2017 | 627.4 |
| | SHED | Shed (Table Not Dep) | 5 | * | 2017 | 24.0 |
| | HBAL | House Balcony | 5 | * | 2017 | 124.0 |
| | BSMTF | House basement finished | 5 | 2S | 2017 | 320.0 |
Sketch
Property Image
Land
| 1 | 6285-1155L | Uptown Std Lot (View Area) | 0.0000 | 0.00 | 0.00 | 0.00 | 1.00 | $324,000 | $0 |
| 2 | 6285-1155L | Uptown Std Lot (View Area) | 0.0000 | 0.00 | 0.00 | 0.00 | 1.00 | $73,500 | $0 |
Roll Value History
| 2025 | N/A | N/A | N/A | N/A | N/A |
| 2024 | $1,328,596 | $396,000 | $0 | $1,724,596 | $1,724,596 |
| 2023 | $1,217,879 | $355,000 | $0 | $1,572,879 | $1,572,879 |
| 2022 | $1,217,879 | $350,000 | $0 | $1,567,879 | $1,567,879 |
| 2021 | $1,018,293 | $315,000 | $0 | $1,333,293 | $1,333,293 |
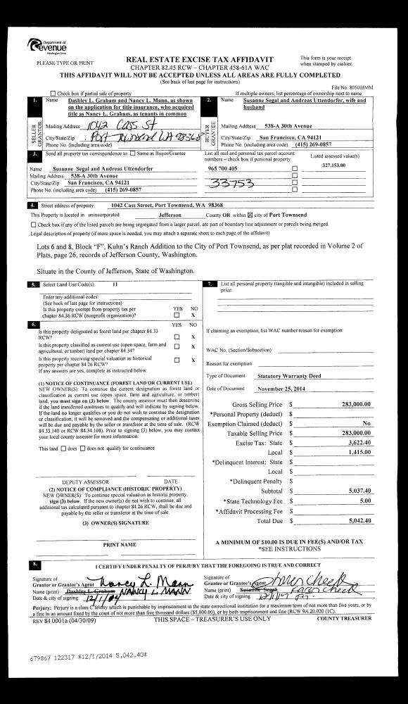
Deed and Sales History
| 1 | 12/07/2015 | SWD | Statutory Warranty Deed | PAUL W SCHULZ | MICHAEL N & MARICA E FREDERICKSEN | | | $392,000.00 | 124496 | |
| 2 | 08/18/2008 | SWD | Statutory Warranty Deed | MILLER, WHITNEY L/RICHARD | SCHULZ, PAUL W/MARGARET E | 0 | 0 | $335,000.00 | 111811 | 0 |
| 3 | 09/19/2006 | SWD | Statutory Warranty Deed | MC CARTHY, SHARON L | MILLER, RICHARD J/WHITNEY L | 0 | 0 | $335,000.00 | 107722 | 0 |
Payout Agreement
| No payout information available.. |