Property
Account |
| Property ID: | 39515 | Abbreviated Legal Description: | PORT TOWNSEND O.T. BLK 103 LOTS 6 & 8(N40' OF S1/2) |
| Parcel # / Geo ID: | 989710304 | Agent Code: | |
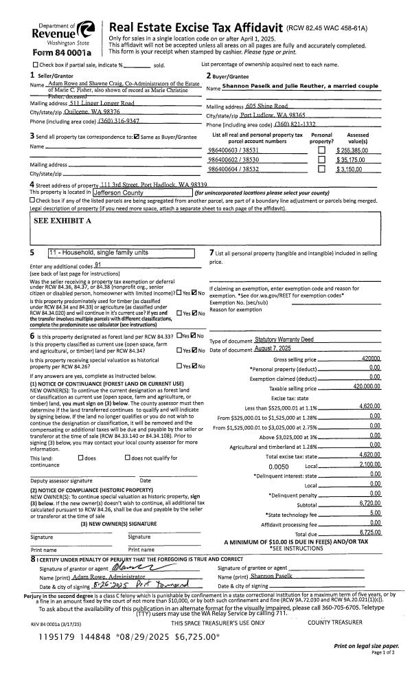
| Type: | Real | | |
| Tax Area: | 0110 - C-50F1E1H2 | Land Use Code | 11 |
| Open Space: | N | DFL | N |
| Historic Property: | N | Remodel Property: | N |
| Multi-Family Redevelopment: | N | | |
| Township: | 30N | Section: | 2 |
| Range: | 1W |
Location |
| Address: | 530 ADAMS ST PORT TOWNSEND, WA 98368 | Mapsco: | 122/019 |
| Neighborhood: | PTOT ABOVE BLUFF TO LAWRENCE ST, EAST OF TYLER | Map ID: | |
| Neighborhood CD: | 6285 |
Owner |
| Name: | GLENN PRESTWICH | Owner ID: | 107367 |
| Mailing Address: | RHEA BOUMAN DOMESTIC PARTNERS PO BOX 2087 PORT TOWNSEND, WA 98368-0259 | % Ownership: | 100.0000000000% |
| | | Exemptions: | |
Pay Tax Due
There is currently No Amount Due on this property.
Taxes and Assessment Details
Property Tax Information as of
10/24/2025
Click on "Statement Details" to expand or collapse a tax statement.
* Please enter a valid date ** Please enter a valid date *
Statement Details |
| | TOTAL: | $0.00 | $0.00 | $0.00 | $0.00 | $0.00 | $0.00 |
|
| | $0.00 | $0.00 | $0.00 | $0.00 | $0.00 | $0.00 |
Values
| (+) Improvement Homesite Value: | + | $0 | |
| (+) Improvement Non-Homesite Value: | + | $626,000 | |
| (+) Land Homesite Value: | + | $0 | |
| (+) Land Non-Homesite Value: | + | $275,000 | |
| (+) Curr Use (HS): | + | $0 | $0 |
| (+) Curr Use (NHS): | + | $0 | $0 |
| | | -------------------------- | |
| (=) Market Value: | = | $901,000 | |
| (–) Productivity Loss: | – | $0 | |
| | | -------------------------- | |
| (=) Subtotal: | = | $901,000 | |
| (+) Senior Appraised Value: | + | $0 | |
| (+) Non-Senior Appraised Value: | + | $901,000 | |
| | | -------------------------- | |
| (=) Total Appraised Value: | = | $901,000 | |
| (–) Senior Exemption Loss: | – | $0 | |
| (–) Exemption Loss: | – | $0 | |
| | | -------------------------- | |
| (=) Taxable Value: | = | $901,000 | |
Taxing Jurisdiction
| Owner: | GLENN PRESTWICH | | |
| % Ownership: | 100.0000000000% | | |
| Total Value: | N/A | | |
| Tax Area: | 0110 - C-50F1E1H2 |
| CE | COUNTY CURRENT EXPENSE | N/A | N/A | N/A | N/A | | |
| CNTYDD | DEVELOPMENTAL DISABILITIES | N/A | N/A | N/A | N/A | | |
| CNTYVET | VETERANS RELIEF | N/A | N/A | N/A | N/A | | |
| MENTAL | MENTAL HEALTH | N/A | N/A | N/A | N/A | | |
| PTGEN | CITY OF PT GENERAL | N/A | N/A | N/A | N/A | | |
| PTLLL | CITY OF PT - LIBRARY LID LIFT | N/A | N/A | N/A | N/A | | |
| PTMVBOND | CITY OF PT MV BOND | N/A | N/A | N/A | N/A | | |
| HOSP2CASH | HOSP DIST #2 GENERAL | N/A | N/A | N/A | N/A | | |
| SCH50BOND | SCHOOL DIST #50 BOND 2016 | N/A | N/A | N/A | N/A | | |
| SCH50CP | SCHOOL DIST #50 CAP PROJ | N/A | N/A | N/A | N/A | | |
| SCH50MO | SCHOOL DIST #50 EP & O | N/A | N/A | N/A | N/A | | |
| CONSERVE | CONSERVATION FUTURES | N/A | N/A | N/A | N/A | | |
| EMS1 | FIRE DIST #1 EMS | N/A | N/A | N/A | N/A | | |
| FD1 | FIRE DIST #1 GENERAL | N/A | N/A | N/A | N/A | | |
| PORTPT | PORT OF PT GENERAL | N/A | N/A | N/A | N/A | | |
| PORTPTIDD | PORT OF PT IDD 2019 | N/A | N/A | N/A | N/A | | |
| PUD1 | PUD #1 GENERAL | N/A | N/A | N/A | N/A | | |
| STATE | STATE SCHOOL PART 1 | N/A | N/A | N/A | N/A | | |
| STATE2 | STATE SCHOOL PART 2 | N/A | N/A | N/A | N/A | | |
| | Total Tax Rate: | N/A | | | | | |
| | | | | Taxes w/Current Exemptions: | N/A | | |
| | | | | Taxes w/o Exemptions: | N/A | | |
Improvement / Building
| Improvement #1: | Residential Bldg | State Code: | 11 | 1902.0 sqft | Value: | $626,000 |
| Bathrooms (#): | 2 (FULL) | Bedrooms (#): | 4 | | Exterior Wall: | SI/ST | Fireplace: | WD ST-GOOD | | Floor Construction: | FRAME | Foundation: | CONPR | | Heating/Cooling: | F/A | Roof Cover: | SHNGL |
|
| | Type | Description | Class CD | Sub Class CD | Year Built | Area |
| | MA | Main Area | 5+ | 2S | 1889 | 943.0 |
| | MA2 | Second Floor Main Area | 5+ | 2S | 1889 | 959.0 |
| | HWPOR | House Wood Porch | 5 | 2S | 1889 | 18.0 |
| | HDECK | House Deck | 5 | 2S | 1889 | 40.0 |
| | HENCL | House Enclosure | 5 | 2S | 1889 | 40.0 |
| | HBAL | House Balcony | 5 | 2S | 1889 | 80.0 |
Sketch
Property Image
Land
| 1 | 6285-1155L | Uptown Std Lot (View Area) | 0.0000 | 0.00 | 0.00 | 0.00 | 1.00 | $275,000 | $0 |
Roll Value History
| 2025 | N/A | N/A | N/A | N/A | N/A |
| 2024 | $603,508 | $275,000 | $0 | $878,508 | $878,508 |
| 2023 | $553,215 | $245,000 | $0 | $798,215 | $798,215 |
| 2022 | $498,352 | $191,000 | $0 | $689,352 | $689,352 |
| 2021 | $286,705 | $174,600 | $0 | $461,305 | $461,305 |
Deed and Sales History
| 1 | 07/21/2022 | SWD | Statutory Warranty Deed | TENCH-HAMILTON LIVING TRUST | GLENN PRESTWICH | | | $965,000.00 | 139507 | |
| 2 | 08/06/2014 | SWD | Statutory Warranty Deed | ANDREW D & CATHERINE W SIEGEL | TENCH-HAMILTON LIVING TRUST | | | $320,000.00 | 121769 | |
| 3 | 05/12/2010 | SWD | Statutory Warranty Deed | HERZOG, RACHAEL | SIEGEL, ANDREW/CATHERINE | | | $320,000.00 | 114418 | 0 |
| 4 | 03/28/2007 | QCD | Quit Claim Deed | HERZOG, ALICE | HERZOG, RACHAEL | 0 | 0 | $0.00 | 108891 | 0 |
| 5 | 03/16/2004 | QCD | Quit Claim Deed | HERZOG, RACHAEL | HERZOG, ALICE | 0 | 0 | $0.00 | 99755 | 0 |
Payout Agreement
| No payout information available.. |