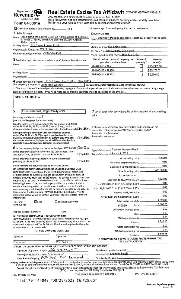
Property
Account |
| Property ID: | 39516 | Abbreviated Legal Description: | PORT TOWNSEND O.T. BLK 103 LOTS 6 & 8(N1/2 OF EACH) |
| Parcel # / Geo ID: | 989710305 | Agent Code: | |
| Type: | Real | | |
| Tax Area: | 0110 - C-50F1E1H2 | Land Use Code | 11 |
| Open Space: | N | DFL | N |
| Historic Property: | N | Remodel Property: | N |
| Multi-Family Redevelopment: | N | | |
| Township: | 30N | Section: | 2 |
| Range: | 1W |
Location |
| Address: | 538 ADAMS ST PORT TOWNSEND, WA 98368 | Mapsco: | 122/020 |
| Neighborhood: | PTOT ABOVE BLUFF TO LAWRENCE ST, EAST OF TYLER | Map ID: | |
| Neighborhood CD: | 6285 |
Owner |
| Name: | ROBIN R SHARAN | Owner ID: | 27125 |
| Mailing Address: | 538 ADAMS ST PORT TOWNSEND, WA 98368-5805 | % Ownership: | 100.0000000000% |
| | | Exemptions: | SNR/DSBL |
Pay Tax Due
There is currently No Amount Due on this property.
Taxes and Assessment Details
Property Tax Information as of
10/24/2025
Click on "Statement Details" to expand or collapse a tax statement.
* Please enter a valid date ** Please enter a valid date *
Statement Details |
| | TOTAL: | $0.00 | $0.00 | $0.00 | $0.00 | $0.00 | $0.00 |
|
| | $0.00 | $0.00 | $0.00 | $0.00 | $0.00 | $0.00 |
Values
| (+) Improvement Homesite Value: | + | $283,337 | |
| (+) Improvement Non-Homesite Value: | + | $291,051 | |
| (+) Land Homesite Value: | + | $160,000 | |
| (+) Land Non-Homesite Value: | + | $90,000 | |
| (+) Curr Use (HS): | + | $0 | $0 |
| (+) Curr Use (NHS): | + | $0 | $0 |
| | | -------------------------- | |
| (=) Market Value: | = | $824,388 | |
| (–) Productivity Loss: | – | $0 | |
| | | -------------------------- | |
| (=) Subtotal: | = | $824,388 | |
| (+) Senior Appraised Value: | + | $228,639 | |
| (+) Non-Senior Appraised Value: | + | $381,051 | |
| | | -------------------------- | |
| (=) Total Appraised Value: | = | $609,690 | |
| (–) Senior Exemption Loss: | – | $137,183 | |
| (–) Exemption Loss: | – | $0 | |
| | | -------------------------- | |
| (=) Taxable Value: | = | $472,507 | |
Taxing Jurisdiction
| Owner: | ROBIN R SHARAN | | |
| % Ownership: | 100.0000000000% | | |
| Total Value: | N/A | | |
| Tax Area: | 0110 - C-50F1E1H2 |
| CE | COUNTY CURRENT EXPENSE | N/A | N/A | N/A | N/A | | |
| CNTYDD | DEVELOPMENTAL DISABILITIES | N/A | N/A | N/A | N/A | | |
| CNTYVET | VETERANS RELIEF | N/A | N/A | N/A | N/A | | |
| MENTAL | MENTAL HEALTH | N/A | N/A | N/A | N/A | | |
| PTGEN | CITY OF PT GENERAL | N/A | N/A | N/A | N/A | | |
| PTLLL | CITY OF PT - LIBRARY LID LIFT | N/A | N/A | N/A | N/A | | |
| PTMVBOND | CITY OF PT MV BOND | N/A | N/A | N/A | N/A | | |
| HOSP2CASH | HOSP DIST #2 GENERAL | N/A | N/A | N/A | N/A | | |
| SCH50BOND | SCHOOL DIST #50 BOND 2016 | N/A | N/A | N/A | N/A | | |
| SCH50CP | SCHOOL DIST #50 CAP PROJ | N/A | N/A | N/A | N/A | | |
| SCH50MO | SCHOOL DIST #50 EP & O | N/A | N/A | N/A | N/A | | |
| CONSERVE | CONSERVATION FUTURES | N/A | N/A | N/A | N/A | | |
| EMS1 | FIRE DIST #1 EMS | N/A | N/A | N/A | N/A | | |
| FD1 | FIRE DIST #1 GENERAL | N/A | N/A | N/A | N/A | | |
| PORTPT | PORT OF PT GENERAL | N/A | N/A | N/A | N/A | | |
| PORTPTIDD | PORT OF PT IDD 2019 | N/A | N/A | N/A | N/A | | |
| PUD1 | PUD #1 GENERAL | N/A | N/A | N/A | N/A | | |
| STATE | STATE SCHOOL PART 1 | N/A | N/A | N/A | N/A | | |
| STATE2 | STATE SCHOOL PART 2 | N/A | N/A | N/A | N/A | | |
| | Total Tax Rate: | N/A | | | | | |
| | | | | Taxes w/Current Exemptions: | N/A | | |
| | | | | Taxes w/o Exemptions: | N/A | | |
Improvement / Building
| Improvement #1: | Residential Bldg | State Code: | 11 | 2712.0 sqft | Value: | $442,714 |
| Bathrooms (#): | 5 (FULL) | Bedrooms (#): | 4 | | Exterior Wall: | SI/ST | Fireplace: | WD ST-GOOD | | Floor Construction: | FRAME | Foundation: | PO&BL | | Heating/Cooling: | ELBB | Inside Verify: | YES | | Roof Cover: | COMP |   |   |
|
| | Type | Description | Class CD | Sub Class CD | Year Built | Area |
| | MA | Main Area | 4 | 15SF | 1881 | 2015.0 |
| | MA2 | Second Floor Main Area | 4 | 15SF | 1881 | 697.0 |
| | HDECK | House Deck | 4 | * | 1881 | 48.0 |
| | HWPOR | House Wood Porch | 4 | * | 1881 | 217.0 |
| | HDECK | House Deck | 4 | * | 1881 | 36.0 |
| Improvement #2: | Residential Bldg | State Code: | 11 | 638.0 sqft | Value: | $131,674 |
| Bathrooms (#): | 2 (FULL) | Bedrooms (#): | 2 | | Exterior Wall: | SI/ST | Floor Construction: | CONCR | | Foundation: | CONPR | Heating/Cooling: | ELBB | | Inside Verify: | YES | Roof Cover: | COMP |
|
Sketch
Property Image
Land
| 1 | 6285-1165L | Uptown Std Lot (Avg) | 0.0000 | 0.00 | 0.00 | 0.00 | 1.00 | $250,000 | $0 |
Roll Value History
| 2025 | N/A | N/A | N/A | N/A | N/A |
| 2024 | $514,061 | $253,000 | $0 | $767,061 | $444,313 |
| 2023 | $471,222 | $225,000 | $0 | $696,222 | $412,418 |
| 2022 | $471,222 | $220,000 | $0 | $691,222 | $410,618 |
| 2021 | $393,998 | $204,000 | $0 | $597,998 | $365,533 |
Deed and Sales History
Payout Agreement
| No payout information available.. |