Property
Account |
| Property ID: | 39573 | Abbreviated Legal Description: | PORT TOWNSEND O.T. BLK 129 LOT 1 |
| Parcel # / Geo ID: | 989712901 | Agent Code: | |
| Type: | Real | | |
| Tax Area: | 0110 - C-50F1E1H2 | Land Use Code | 11 |
| Open Space: | N | DFL | N |
| Historic Property: | N | Remodel Property: | N |
| Multi-Family Redevelopment: | N | | |
| Township: | 30N | Section: | 11 |
| Range: | 1W |
Location |
| Address: | 615 BENTON ST PORT TOWNSEND, WA 98368 | Mapsco: | 124/018 |
| Neighborhood: | PTOT ABOVE BLUFF TO LAWRENCE ST, WEST OF TYLER | Map ID: | |
| Neighborhood CD: | 6280 |
Owner |
| Name: | KAREN AMUNDSON | Owner ID: | 100107 |
| Mailing Address: | 615 BENTON ST PORT TOWNSEND, WA 98368-8001 | % Ownership: | 100.0000000000% |
| | | Exemptions: | |
Pay Tax Due
There is currently No Amount Due on this property.
Taxes and Assessment Details
Property Tax Information as of
10/24/2025
Click on "Statement Details" to expand or collapse a tax statement.
* Please enter a valid date ** Please enter a valid date *
Statement Details |
| | TOTAL: | $0.00 | $0.00 | $0.00 | $0.00 | $0.00 | $0.00 |
|
| | $0.00 | $0.00 | $0.00 | $0.00 | $0.00 | $0.00 |
Values
| (+) Improvement Homesite Value: | + | $368,021 | |
| (+) Improvement Non-Homesite Value: | + | $0 | |
| (+) Land Homesite Value: | + | $230,000 | |
| (+) Land Non-Homesite Value: | + | $0 | |
| (+) Curr Use (HS): | + | $0 | $0 |
| (+) Curr Use (NHS): | + | $0 | $0 |
| | | -------------------------- | |
| (=) Market Value: | = | $598,021 | |
| (–) Productivity Loss: | – | $0 | |
| | | -------------------------- | |
| (=) Subtotal: | = | $598,021 | |
| (+) Senior Appraised Value: | + | $0 | |
| (+) Non-Senior Appraised Value: | + | $598,021 | |
| | | -------------------------- | |
| (=) Total Appraised Value: | = | $598,021 | |
| (–) Senior Exemption Loss: | – | $0 | |
| (–) Exemption Loss: | – | $0 | |
| | | -------------------------- | |
| (=) Taxable Value: | = | $598,021 | |
Taxing Jurisdiction
| Owner: | KAREN AMUNDSON | | |
| % Ownership: | 100.0000000000% | | |
| Total Value: | N/A | | |
| Tax Area: | 0110 - C-50F1E1H2 |
| CE | COUNTY CURRENT EXPENSE | N/A | N/A | N/A | N/A | | |
| CNTYDD | DEVELOPMENTAL DISABILITIES | N/A | N/A | N/A | N/A | | |
| CNTYVET | VETERANS RELIEF | N/A | N/A | N/A | N/A | | |
| MENTAL | MENTAL HEALTH | N/A | N/A | N/A | N/A | | |
| PTGEN | CITY OF PT GENERAL | N/A | N/A | N/A | N/A | | |
| PTLLL | CITY OF PT - LIBRARY LID LIFT | N/A | N/A | N/A | N/A | | |
| PTMVBOND | CITY OF PT MV BOND | N/A | N/A | N/A | N/A | | |
| HOSP2CASH | HOSP DIST #2 GENERAL | N/A | N/A | N/A | N/A | | |
| SCH50BOND | SCHOOL DIST #50 BOND 2016 | N/A | N/A | N/A | N/A | | |
| SCH50CP | SCHOOL DIST #50 CAP PROJ | N/A | N/A | N/A | N/A | | |
| SCH50MO | SCHOOL DIST #50 EP & O | N/A | N/A | N/A | N/A | | |
| CONSERVE | CONSERVATION FUTURES | N/A | N/A | N/A | N/A | | |
| EMS1 | FIRE DIST #1 EMS | N/A | N/A | N/A | N/A | | |
| FD1 | FIRE DIST #1 GENERAL | N/A | N/A | N/A | N/A | | |
| PORTPT | PORT OF PT GENERAL | N/A | N/A | N/A | N/A | | |
| PORTPTIDD | PORT OF PT IDD 2019 | N/A | N/A | N/A | N/A | | |
| PUD1 | PUD #1 GENERAL | N/A | N/A | N/A | N/A | | |
| STATE | STATE SCHOOL PART 1 | N/A | N/A | N/A | N/A | | |
| STATE2 | STATE SCHOOL PART 2 | N/A | N/A | N/A | N/A | | |
| | Total Tax Rate: | N/A | | | | | |
| | | | | Taxes w/Current Exemptions: | N/A | | |
| | | | | Taxes w/o Exemptions: | N/A | | |
Improvement / Building
| Improvement #1: | Residential Bldg | State Code: | 11 | 1132.0 sqft | Value: | $368,021 |
| Bathrooms (#): | 2 (FULL) | Bedrooms (#): | 3 | | Exterior Wall: | PL/T1 | Fireplace: | SIN 1-GOOD | | Floor Construction: | FRAME | Foundation: | CONPR | | Heating/Cooling: | OTHER | Roof Cover: | SHAKE |
|
| | Type | Description | Class CD | Sub Class CD | Year Built | Area |
| | MA | Main Area | 4- | 1S | 1941 | 1132.0 |
| | HCPOR | House Concrete Porch | 4 | * | 1941 | 153.0 |
| | HDECK | House Deck | 4 | * | 1941 | 69.0 |
| | GATT | House Attached Garage | 4 | 1S | 1941 | 312.0 |
| | SHED | Shed (Table Not Dep) | 5 | * | 1941 | 140.0 |
| | BSMTF | House basement finished | 4 | * | 1941 | 420.0 |
Sketch
Property Image
Land
| 1 | 6280-1165L | Uptown Std Lot (Avg) | 0.0000 | 0.00 | 0.00 | 0.00 | 1.00 | $230,000 | $0 |
Roll Value History
| 2025 | N/A | N/A | N/A | N/A | N/A |
| 2024 | $344,004 | $231,000 | $0 | $575,004 | $575,004 |
| 2023 | $329,047 | $215,000 | $0 | $544,047 | $544,047 |
| 2022 | $329,047 | $210,000 | $0 | $539,047 | $539,047 |
| 2021 | $275,123 | $200,000 | $0 | $475,123 | $475,123 |
Deed and Sales History
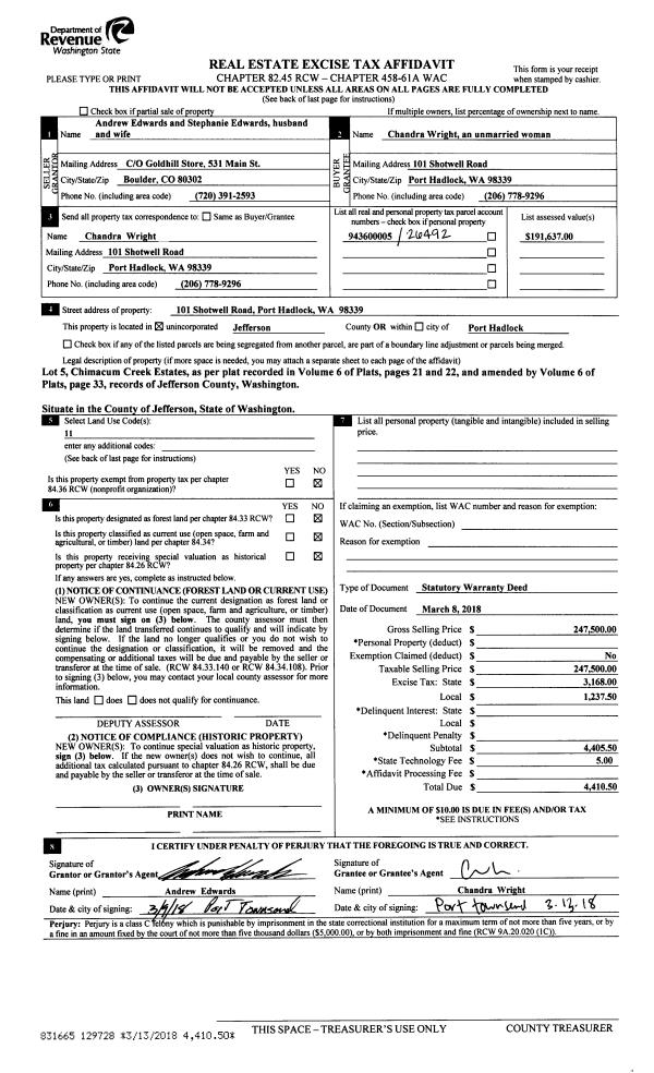
| 1 | 10/19/2018 | SWD | Statutory Warranty Deed | ELIZABETH L REID TRUSTEE | KAREN AMUNDSON | | | $390,000.00 | 131271 | |
| 2 | 08/25/2003 | QCD | Quit Claim Deed | REID, ELIZABETH L | REID, ELIZABETH L/TRUST | 0 | 0 | $0.00 | 98098 | 0 |
Payout Agreement
| No payout information available.. |